Добавить проект
Прочитать правила
Платный доступ
Авторизация:

Профиль для vika1998A

Все о пользователе vika1998A:
Ваш аватар:vika1998A
Статистика:
Дата регистрации: 21.4.22
Уровень:
Комментариев/сообщений:0
Последний вход: 3.3.25 20:03

Портфолио пользователя

Курсовой проект - 2-х этажный индивидуальный жилой дом19,5 х 9,2 м в г. АрхангельскКурсовой проект - 2-х этажный индивидуальный жилой дом19,5 х 9,2 м в г. Архангельск | Год выпуска: 2022
СевГУ / Проектирование индивидуального кирпичного дома со стропильной кровлей и ленточным фундаментом / Состав: 4 листа чертежи (планы, фасады, генеральный план, план кровли, план фундаментов, план раскладки стропил, план плит перекрытий, разрез, узлы) + ПЗ (17 страниц).
Дата: 29.4.23 06:43 | Поместил: vika1998A | Размер: 755.35 KB | Скачали: 2Платформа: AutoCad | Рб:
2
Курсовой проект - Литейный цех 108-48 м в г. ТюменьКурсовой проект - Литейный цех 108-48 м в г. Тюмень | Год выпуска: 2023
СПбГАСУ / Проектирование промышленного здания / Состав: 2 листа чертежи (план, фасады, разрез, узлы, план кровли, раскладка панелей) + ПЗ (10 страниц)
Дата: 10.5.23 06:31 | Поместил: vika1998A | Размер: 8.63 MB | Скачали: 2Платформа: AutoCad | Рб:
1
Курсовой проект - 2-х этажный индивидуальный жилой дом 11,1 х 10,0 м в г. МинусинскКурсовой проект - 2-х этажный индивидуальный жилой дом 11,1 х 10,0 м в г. Минусинск | Год выпуска: 2021
СФУ / Кафедра ПЗиЭН / Разработка конструкций индивидуального жилого дома. / Состав: 15 листов чертежи. Проект выполнен как рабочий.
Дата: 13.5.23 13:10 | Поместил: vika1998A | Размер: 819.54 KB | Скачали: 0Платформа: AutoCad | Рб:
2
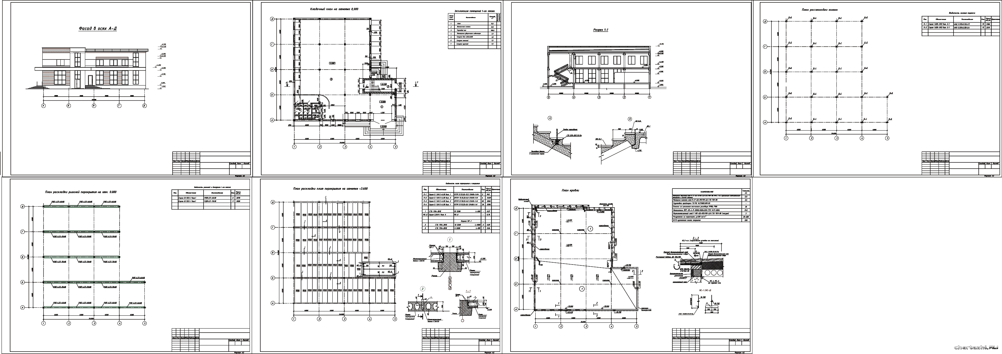
Курсовой проект - Торговый центр 24 х 24 м в г. АрхангельскКурсовой проект - Торговый центр 24 х 24 м в г. Архангельск | Год выпуска: 2024
ВоГУ / Общественное здание (2 этажа). / Состав: 7 листов чертежи (план на отм. 0.000, главный фасад, разрез, план расстановки колонн, план раскладки ригелей, план раскладки поит перекрытия, план кровли) + ПЗ (10 страниц).
Дата: 18.5.24 13:57 | Поместил: vika1998A | Размер: 2.58 MB | Скачали: 1Платформа: AutoCad | Рб:
1
Курсовой проект - 3-х этажный жилой дом 18,08 х 12,80 м в г. ЧелябинскКурсовой проект - 3-х этажный жилой дом 18,08 х 12,80 м в г. Челябинск | Год выпуска: 2024
ВолгГТУ / Малоэтажный квартирный жилой дом. / Состав: 4 листа чертежи (генеральный план, фасад, план кровли, план на отм. 0.000, ведомость перемычек, узлы, план фундаментов, план перекрытий, разрез) + ПЗ (23 страницы)
Дата: 18.5.24 14:09 | Поместил: vika1998A | Размер: 3.64 MB | Скачали: 2Платформа: AutoCad | Рб:
2
Курсовой проект (колледж) - ОиФ для школы на 825 мест в г. Санкт-ПетербургКурсовой проект (колледж) - ОиФ для школы на 825 мест в г. Санкт-Петербург | Год выпуска: 2023
МКАГ / В проекте выполняется сравнение вариантов фундаментов и выбор максимально эффективного варианта на основе полученных данных. / Состав: 3 листа чертежи (схема расположения фундаментов, нижняя схема армирования плиты, верхняя схема армирования плиты) + ПЗ (50 страниц).
Дата: 18.5.24 14:21 | Поместил: vika1998A | Размер: 10.93 MB | Скачали: 0Платформа: AutoCad | Рб:
1
Дипломный проект (колледж) - Гостиница на 90 мест 35,86 х 38,10 м в г. Санкт-ПетербургДипломный проект (колледж) - Гостиница на 90 мест 35,86 х 38,10 м в г. Санкт-Петербург | Год выпуска: 2024
СПАСК / Настоящим проектом предусмотрено строительство 5-и этажного здание гостиницы. / Состав: 10 листов чертежи (План подземного паркинга, план первого этажа, план второго этажа, план эксплуатируемой кровли, разрез 1-1, 2-2, Фасад 1-8, А-Н, генеральный план, план фундаментов) + 3D-вид (в jpeg) + ПЗ (23 страницы).
Дата: 24.6.24 13:19 | Поместил: vika1998A | Размер: 7.10 MB | Скачали: 3Платформа: AutoCad | Рб:
3
Курсовой проект - Столовая с залом на 150 посадочных мест 36 х 24 м в г. МогилёвКурсовой проект - Столовая с залом на 150 посадочных мест 36 х 24 м в г. Могилёв | Год выпуска: 2019
БелГУТ / Кафедра "Архитектура и строительство" / Состав: 2 листа чертежи (планы, фасады, разрез, план фундаментов, план перекрытий, узлы, план кровли) + ПЗ (27 страниц, присутствуют фото-вставки текста)
Дата: 30.5.23 13:25 | Поместил: vika1998A | Размер: 12.57 MB | Скачали: 1Платформа: AutoCad | Рб:
1
 
Cloudim - онлайн консультант для сайта бесплатно.