Добавить проект
Прочитать правила
Платный доступ
Авторизация:

Профиль для anna18

Все о пользователе anna18:
Ваш аватар:anna18
Статистика:
Дата регистрации: 7.9.24
Уровень:
Комментариев/сообщений:0
Последний вход: 7.9.24 14:44

Портфолио пользователя

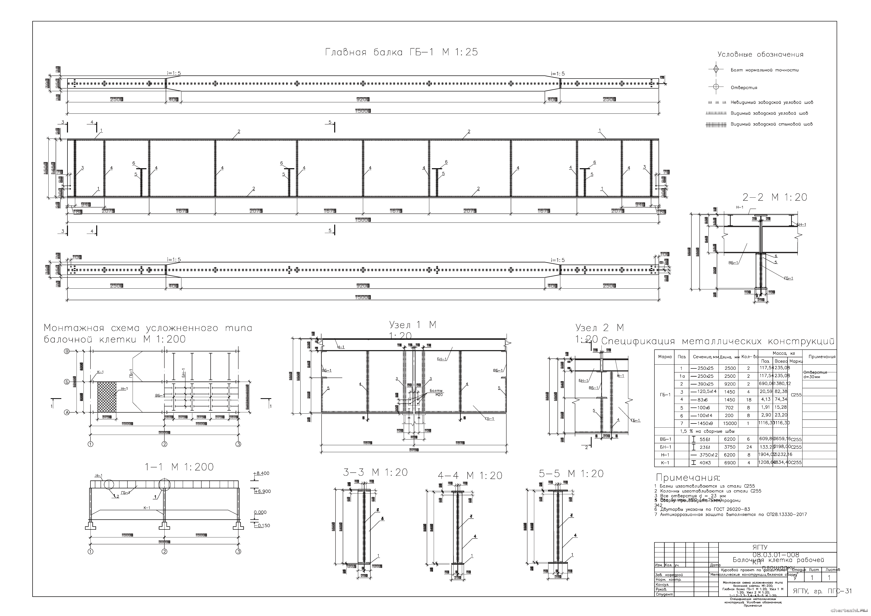
Курсовой проект - МК балочной клетки 15,0 х 6,2 м рабочей площадкиКурсовой проект - МК балочной клетки 15,0 х 6,2 м рабочей площадки | Год выпуска: 2024
ЯГТУ / Кафедра " Строительство зданий и сооружений" / по дисциплине «Металлические конструкции, включая сварку» / Целью работы является определение оптимального варианта балочной клетки, расчет составного сечения главной балки двутаврового сечения, расчет уменьшенного сечения поясов в приопорной зоне главной балки, определение сопряжений и расчет сварных и болтовых соединений, разработка способа сопряжения балок. / состав: 1 лист чертеж + ПЗ (44 страницы)
Дата: 21.9.24 14:26 | Поместил: anna18 | Размер: 1.79 MB | Скачали: 1Платформа: AutoCad | Рб:
1
Курсовой проект - ТК на возведение монолитных железобетонных фундаментов стаканного типа 1-о этажного производственного здания 96 х 48 мКурсовой проект - ТК на возведение монолитных железобетонных фундаментов стаканного типа 1-о этажного производственного здания 96 х 48 м | Год выпуска: 2024
ЯГТУ / Кафедра "Строительство зданий и сооружений" / по дисциплине «Технология строительного производства» / Целью данного курсового проекта является разработка технологической карты на возведение монолитных железобетонных фундаментов стаканного типа под отдельно стоящие двухветвевые колонны одноэтажного полносборно-каркасного промышленного здания. / Состав: 1 лист чертеж + ПЗ (66 страниц)
Дата: 21.9.24 14:38 | Поместил: anna18 | Размер: 2.31 MB | Скачали: 0Платформа: AutoCad | Рб:
1
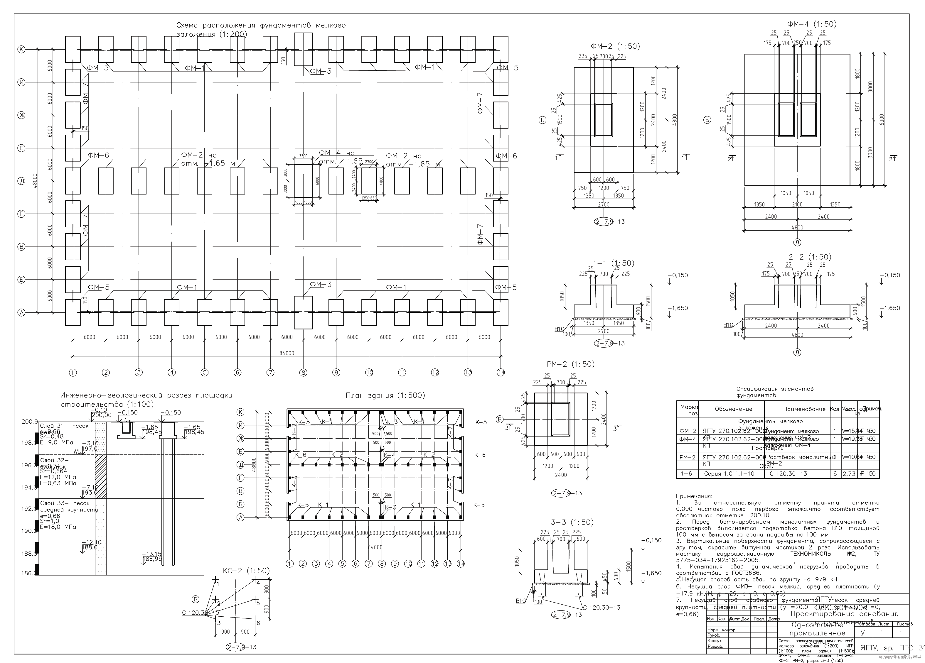
Курсовой проект - ОиФ производственного здания 84 х 48 м в г. КинешмаКурсовой проект - ОиФ производственного здания 84 х 48 м в г. Кинешма | Год выпуска: 2023
ЯГТУ / Кафедра "Строительство зданий и сооружений" / по дисциплине «Основания и фундаменты» / Запроектировать фундаменты: ФМЗ и свайный для промышленного здания. / Состав: 1 лист чертеж + ПЗ (37 страниц)
Дата: 21.9.24 16:51 | Поместил: anna18 | Размер: 18.80 MB | Скачали: 0Платформа: AutoCad | Рб:
1
Курсовой проект - ЖБК 4-х этажного промышленного здания 26 х 20 мКурсовой проект - ЖБК 4-х этажного промышленного здания 26 х 20 м | Год выпуска: 2024
ЯГТУ / Кафедра "Строительство зданий и сооружений" / Цель курсового проекта – рассчитать и сконструировать различные железобетонные конструкции промышленного здания. / Состав: 2 листа чертежи + ПЗ (73 страницы)
Дата: 23.9.24 16:43 | Поместил: anna18 | Размер: 3.29 MB | Скачали: 0Платформа: AutoCad | Рб:
1
Курсовой проект - ВиВ 9-ти этажного жилого дома на 99 квартирКурсовой проект - ВиВ 9-ти этажного жилого дома на 99 квартир | Год выпуска: 2023
ЯГТУ / Кафедра «Строительные конструкции» / по дисциплине «Водоснабжение и водоотведение с основами гидравлики» / Целью работы является проектирование систем холодного водоснабжения и канализации(водоотведения) жилого многоэтажного здания. / Состав: 1 лист чертеж + ПЗ (22 страницы)
Дата: 23.9.24 17:06 | Поместил: anna18 | Размер: 6.76 MB | Скачали: 1Платформа: AutoCad | Рб:
1
Курсовой проект - 1-о этажное промышленное здание 96 х 24 м с АБК в г. ВологдаКурсовой проект - 1-о этажное промышленное здание 96 х 24 м с АБК в г. Вологда | Год выпуска: 2023
ЯГТУ / Кафедра "Строительство зданий и сооружений" / Проектирование архитектуры ОПЗ. / Состав: 2 листа чертежи + ПЗ (38 страниц)
Дата: 24.9.24 19:00 | Поместил: anna18 | Размер: 21.85 MB | Скачали: 1Платформа: AutoCad | Рб:
2
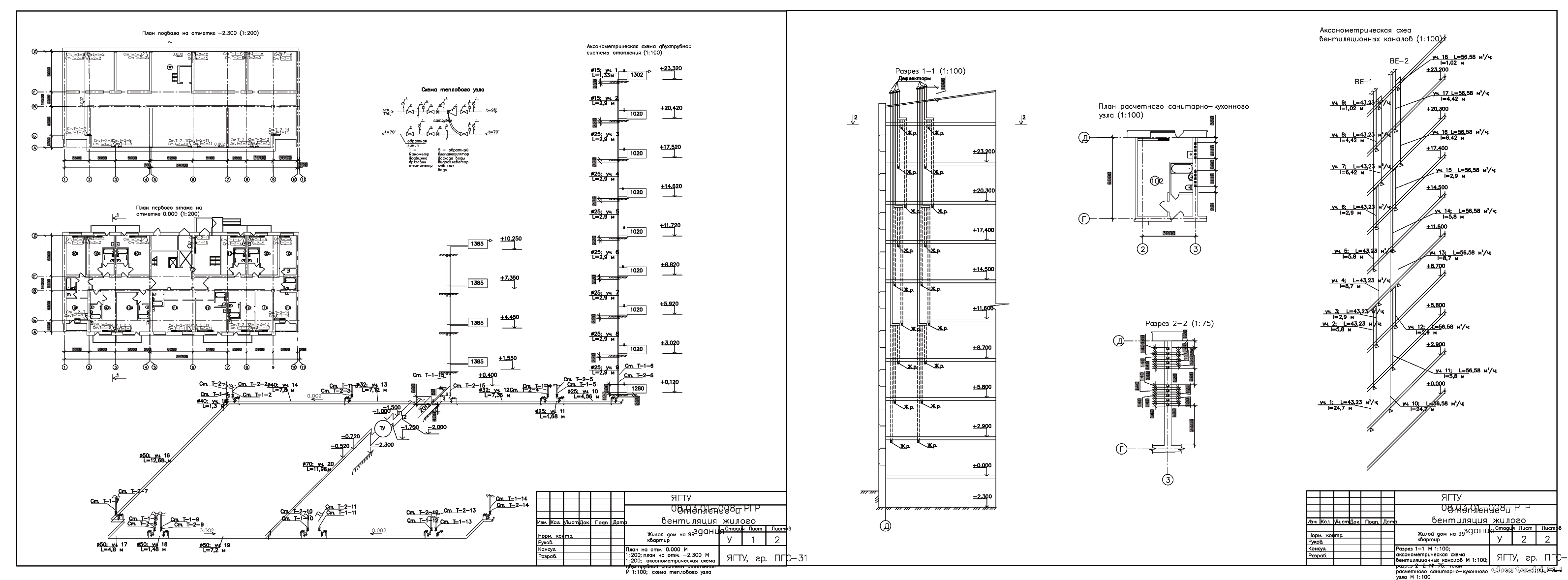
Расчетно-графическая работа - ОВ 9-ти этажного жилого дома на 99 квартирРасчетно-графическая работа - ОВ 9-ти этажного жилого дома на 99 квартир | Год выпуска: 2024
ЯГТУ / Кафедра "Строительство зданий и сооружений" / по дисциплине «Теплогазоснабжение и вентиляция» / Отопление и вентиляция жилого здания / Состав: 2 листа чертежи + ПЗ (36 страниц)
Дата: 26.9.24 11:51 | Поместил: anna18 | Размер: 1.42 MB | Скачали: 0Платформа: AutoCad | Рб:
1
 
Cloudim - онлайн консультант для сайта бесплатно.