Коротко о файле:РП / Технологическая часть проекта хозяйственного корпуса выполнена в составе клинического госпиталя на 250 коек. / Состав: комплект чертежей + спецификация.
Ведомость рабочих чертежей
Общие данные.
Компоновочный план на отметке 0,000
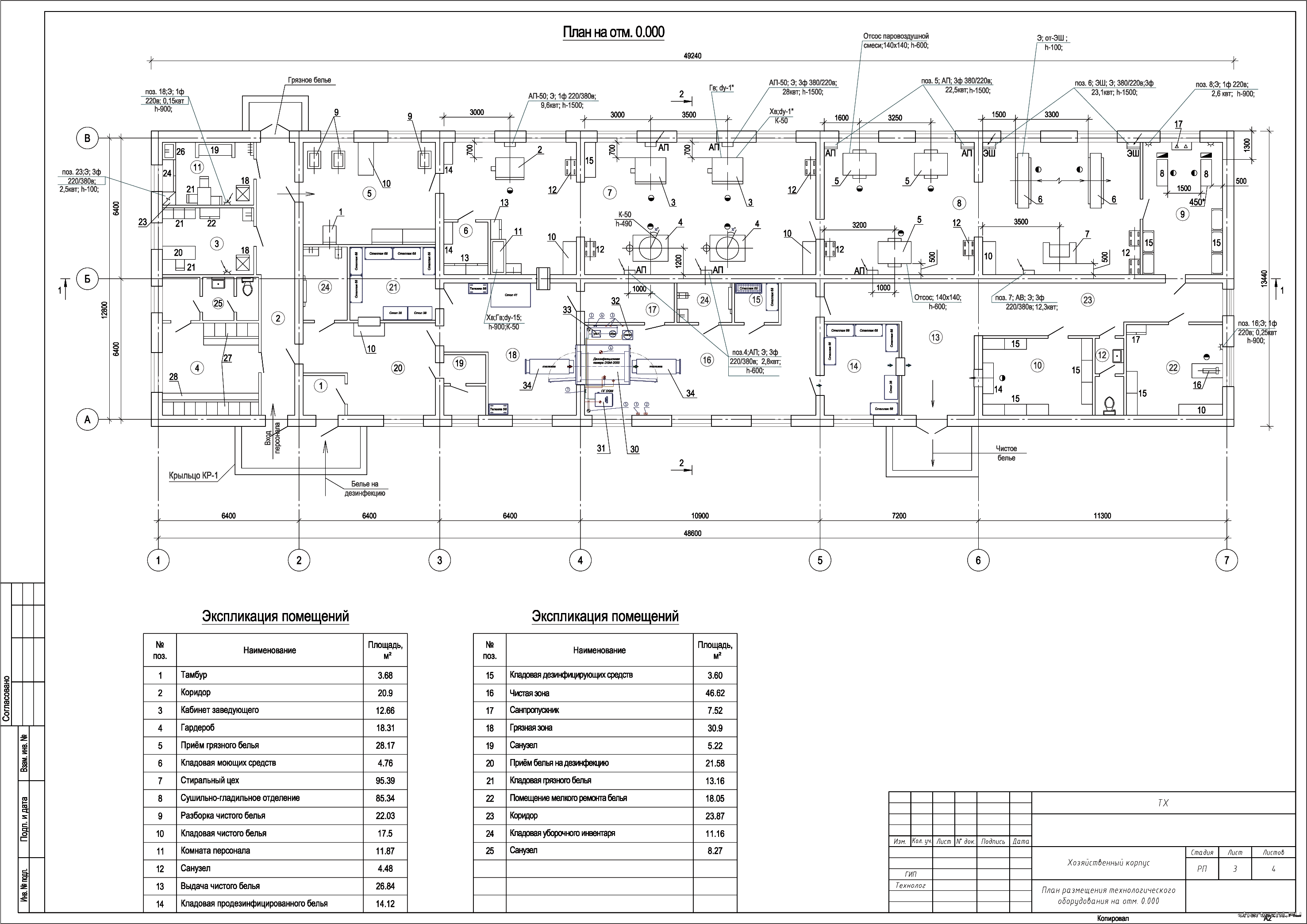
План расположения технологического оборудования на отметке 0,000
Разрез 2-2, фрагменты планов