Добавить проект
Прочитать правила
Платный доступ
Авторизация:
Информация


Чертежи и проекты

Рабочие проекты Файлов: 9422

Строительство » Инженерные системы » Технология помещений » Мебель » Автотранспорт » Машиностроение и механика (рп) » Технология

Дипломные и курсовые работы Файлов: 16166

Архитектура » Благоустройство. Генеральный план » Строительство » Рельсовый транспорт » Машиностроение и механика » Инженерные системы » Воздушный транспорт » Водный транспорт » Пищевая и химическая промышленность » Технологии сельскохозяйственного производства » Электроника » Добывающая промышленность

Всего файлов в нашем архиве: 25588
Показать выполненные в CAD программе:

Дипломный проект - Цех обжига 78 х 24 м в г. Абакан РХ ДП Дипломный проект - Цех обжига 78 х 24 м в г. Абакан РХ | Год выпуска: 2024
ТГТУ / Кафедра "Конструкции зданий и сооружений" / Ключевая мотивация — создание и последующее внедрение локального строительного проекта, способного закрыть внутренние потребности организации. Основные драйверы: наращивание производственных мощностей и переход на использование собственных материалов, что напрямую влияет на снижение финальной себестоимости. В итоге компания получает возможность укрепить свои позиции на рынке строительных услуг за счёт роста конкурентоспособности. В качестве технологического решения предложен выпуск о кирпича, который производится обжиговым способом. / Состав: 6 листов чертежи + ПЗ (91 страница).
Дата: 16.4.26 11:19 | Поместил: LeeEnfield | Размер: 2.52 MB | Скачали: 0 Платформа: AutoCad | Рб:
6
Курсовой проект - Газоснабжение промышленного предприятия КП Курсовой проект - Газоснабжение промышленного предприятия | Год выпуска: 2026
ННГАСУ / Кафедра «Теплогазоснабжения» / дисциплина «Газоснабжение промышленных предприятий» / Состав: 1 лист чертеж (план газопровода, продольный профиль газопровода Г2 от врезки до ГРПШ, схема внутренних газопроводов ГРПШ) + ПЗ (21 страница).
Дата: 15.4.26 20:38 | Поместил: Krutou | Размер: 617.04 KB | Скачали: 0 Платформа: AutoCad | Рб:
1
АР КР 1-о этажный индивидуальный жилой дом из SIP панелей 10 х 10 м в г. Челябинск РП АР КР 1-о этажный индивидуальный жилой дом из SIP панелей 10 х 10 м в г. Челябинск | Год выпуска: 2024
Р / Разработка проекта дома из SIP панелей. Площадь застройки 76,59 м2. / Состав: 2 комплекта чертежей.
Дата: 15.4.26 13:39 | Поместил: arturio | Размер: 79.16 MB | Скачали: 0 Платформа: ArchiCAD | Рб:
4
ТС Строительство тепловой сети до границ земельного участка для подключения пожарного депо в г. Пермь РП ТС Строительство тепловой сети до границ земельного участка для подключения пожарного депо в г. Пермь | Год выпуска: 2023
Р / Проектом предусматривается строительство тепловой сети от ЦТП до границы земельного участка для строительства пожарного депо I типа на 6 выездов. / Состав: комплект чертежей + спецификация.
Дата: 15.4.26 11:59 | Поместил: Wall | Размер: 2.14 MB | Скачали: 0 Платформа: AutoCad | Рб:
2
Дипломный проект - Промышленный цех 84 х 54 м в г. Ачинск Красноярском крае ДП Дипломный проект - Промышленный цех 84 х 54 м в г. Ачинск Красноярском крае | Год выпуска: 2024
ТГТУ / Кафедра "Конструкции зданий и сооружений" / Данная выпускная квалификационная работа преследует одну цель: поэтапно раскрыть шесть обязательных разделов. А именно: архитектурно-строительный, расчётно-конструктивный и раздел по проектированию фундаментов. К ним добавляются два технологических блока — технология и организация строительного производства — и завершающий экономический раздел. / Состав: 8 листов чертежи + ПЗ (196 страниц).
Дата: 15.4.26 10:18 | Поместил: LeeEnfield | Размер: 6.07 MB | Скачали: 0 Платформа: AutoCad | Рб:
7
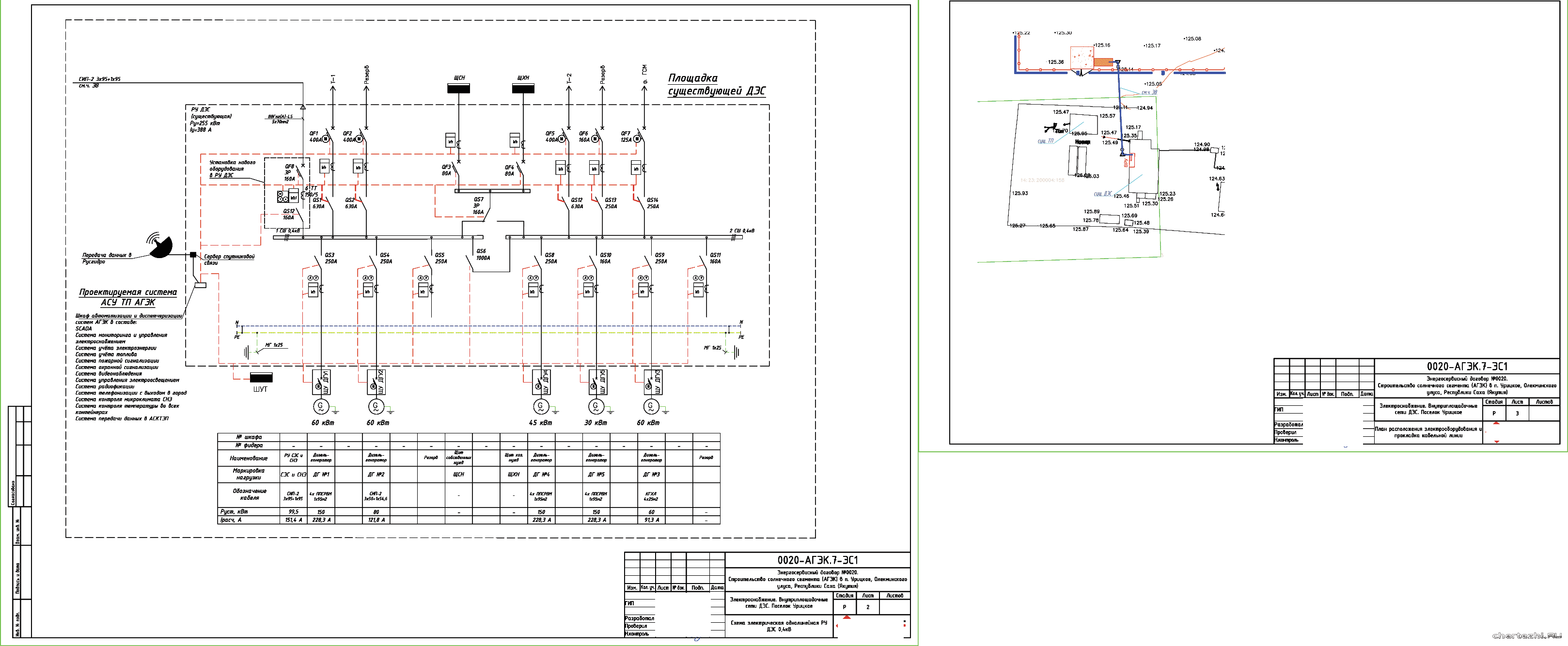
ЭОМ Крытый терминал для мехобезвоженного осадка в г. Калининград РП ЭОМ Крытый терминал для мехобезвоженного осадка в г. Калининград | Год выпуска: 2025
П / Реконструкция очистных сооружений. Система электроснабжения и электроосвещения. / Состав: комплект чертежей + спецификация + ПЗ.
Дата: 14.4.26 15:37 | Поместил: OsOlya | Размер: 343.96 KB | Скачали: 0 Платформа: AutoCad | Рб:
1
Курсовой проект - Производство работ нулевого цикла КП Курсовой проект - Производство работ нулевого цикла | Год выпуска: 2025
ЮЗГУ / Кафедра "Промышленное и гражданское строительство" / по дисциплине «Технологические проекты в строительстве» / Разработка технологических карт на устройство земляных работ и на устройство сборно-монолитных столбчатых фундаментов, календарного плана производства работ. / Состав: 6 листов чертежи + ПЗ (48 страниц).
Дата: 14.4.26 13:23 | Поместил: LeeEnfield | Размер: 915.29 KB | Скачали: 0 Платформа: AutoCad | Рб:
2
Курсовой проект - ТК на производство работ нулевого цикла при строительстве высотного общественного здания КП Курсовой проект - ТК на производство работ нулевого цикла при строительстве высотного общественного здания | Год выпуска: 2024
МГУ им. Н.П. Огарева / Кафедра строительных материалов и технологий / по дисциплине «Технологические процессы в строительстве» / Вариант 14 / Курсовой проект разрабатывается в соответствии с заданием и представляет собой проект производства работ нулевого цикла при строительстве гражданского здания с размерами на площадке 400х240 м. / Состав: 1 лист чертеж + ПЗ (70 страниц).
Дата: 14.4.26 11:40 | Поместил: inrevaluce | Размер: 7.09 MB | Скачали: 0 Платформа: AutoCad | Рб:
1
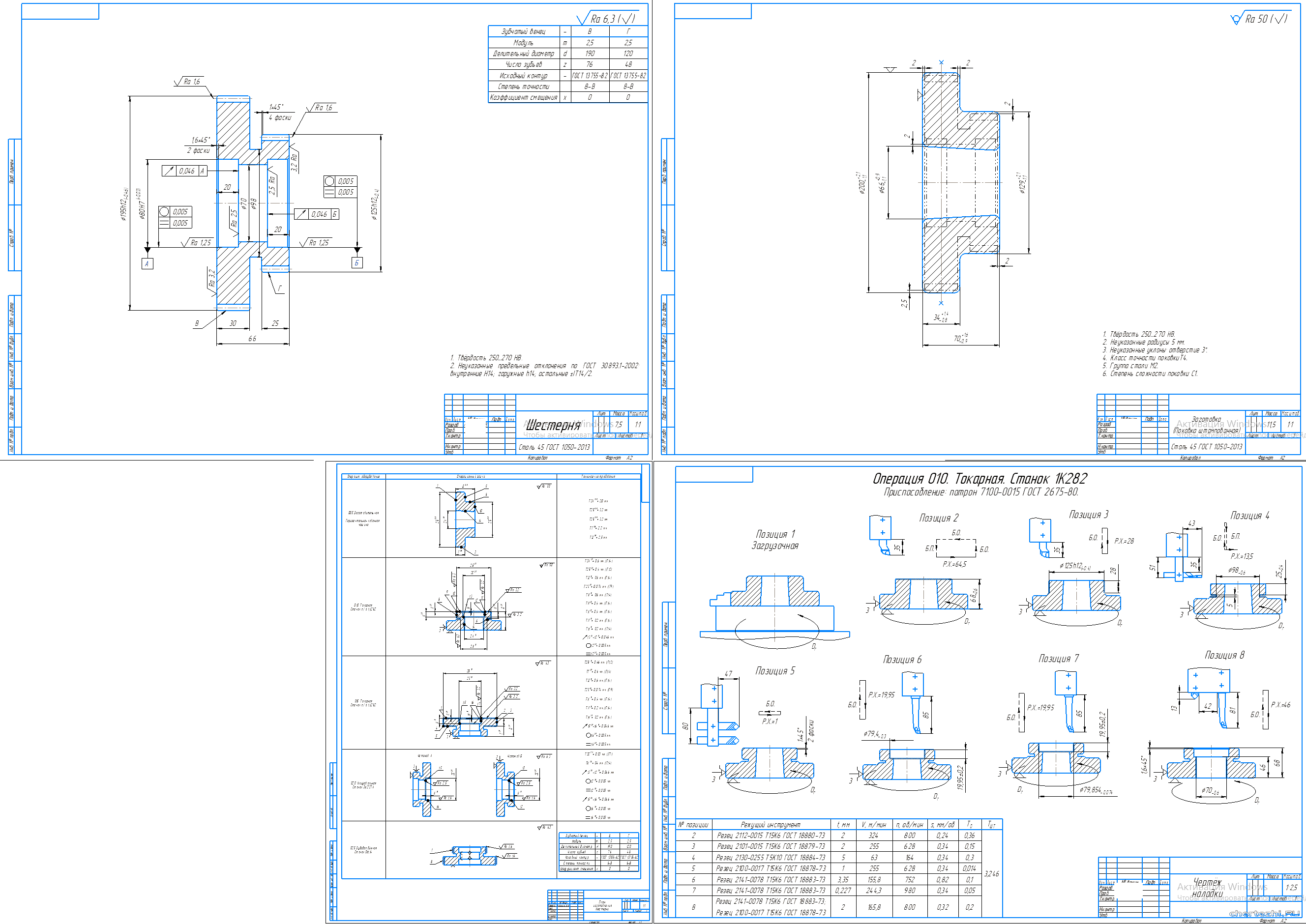
Курсовой проект - ЖБК Несущие конструкции 9-ти этажного производственного здания с неполным железобетонным каркасом 48 х 36 м в г. Курск КП Курсовой проект - ЖБК Несущие конструкции 9-ти этажного производственного здания с неполным железобетонным каркасом 48 х 36 м в г. Курск | Год выпуска: 2023
ЮЗГУ / Кафедра "Промышленное и гражданское строительство" / Несущие конструкции многоэтажного производственного здания с неполным железобетонным каркасом / Состав: 8 листов чертежи (Схема расположения балок перекрытия, разрез 1-1, 2-2, 3-3, 4-4. Плита Пм-1. Арматурные сетки, спецификация; ведомость расхода стали. Балка второстепенная Бм-2. Балка второстепенная Бм-2 - спецификации. Балка главная Бм-1; спецификация; ведомость расхода стали. Колонна К-1; фундамент Фм-1. Колонна К-1; фундамент Фм-1; - спецификации) + ПЗ (74 страницы).
Дата: 14.4.26 09:03 | Поместил: LeeEnfield | Размер: 2.33 MB | Скачали: 0 Платформа: AutoCad | Рб:
2
Курсовой проект - МК Расчёт и проектирование несущих конструкций одноэтажного здания 22,5 х 12,0 м КП Курсовой проект - МК Расчёт и проектирование несущих конструкций одноэтажного здания 22,5 х 12,0 м | Год выпуска: 2025
ЮЗГУ / Кафедра "Промышленное и гражданское строительство" / дисциплина «Металлические конструкции, включая сварку» / Необходимо выполнить расчет и проектирование несущих конструкций одноэтажного здания. / Состав: 2 листа чертежи (Схемы расположения элементов; Конструкция фермы Ф-1) + ПЗ (32 страницы).
Дата: 14.4.26 08:44 | Поместил: LeeEnfield | Размер: 726.01 KB | Скачали: 0 Платформа: AutoCad | Рб:
1
Курсовой проект - ОиФ цеха по производству швейных изделий 96 х 30 м в г. Курск КП Курсовой проект - ОиФ цеха по производству швейных изделий 96 х 30 м в г. Курск | Год выпуска: 2024
ЮЗГУ / Кафедра "Промышленного и гражданского строительства" / Проектирование фундаментов промышленных и гражданских зданий / Цель данной курсовой работы – проектирование и расчет фундаментов мелкого заложения цеха по производству швейных изделий. / Состав: 4 листа чертежи (План фундаментов. Разрез 1-1. Фундамент Фм-1. Балки фундаментные БФ-2, БФ-3, БФ-4. Каркасы КР-1, КР-2, КР-3) + ПЗ (17 страниц).
Дата: 13.4.26 16:06 | Поместил: LeeEnfield | Размер: 445.69 KB | Скачали: 0 Платформа: AutoCad | Рб:
1
Дипломный проект - Дом творчества на 290 человек в Самарской области ДП Дипломный проект - Дом творчества на 290 человек в Самарской области | Год выпуска: 2024
ТГТУ / Кафедра "Конструкции зданий и сооружений" / В рамках итоговой аттестации была выполнена разработка проектной документации для объекта культурно-досуговой сферы. В работе подробно рассмотрены все этапы проектирования. / Состав: 6 листов чертежи + ПЗ (107 страниц).
Дата: 13.4.26 09:11 | Поместил: LeeEnfield | Размер: 3.46 MB | Скачали: 0 Платформа: AutoCad | Рб:
6
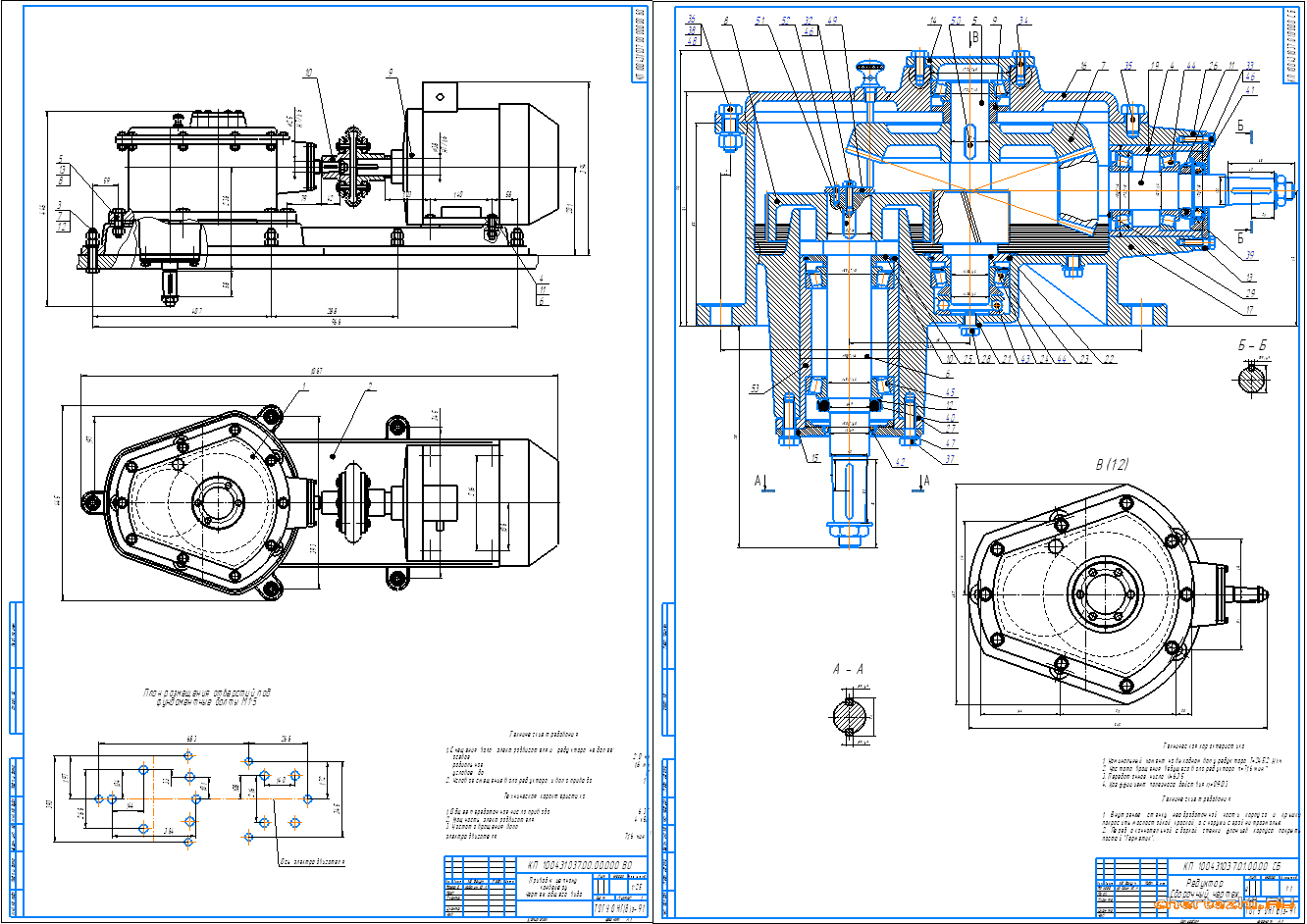
Курсовой проект - Расчёт двигателя внутреннего сгорания ВАЗ-21126 КП Курсовой проект - Расчёт двигателя внутреннего сгорания ВАЗ-21126 | Год выпуска: 2025
Политехнический институт СФУ / Кафедра "Высшей школы автомобильного сервиса" / Расчёт основных параметров ДВС / Основная проектная задача заключается в определении базовых размеров кривошипно-шатунного механизма (диаметра цилиндра D, хода поршня S и их соотношения λ). Кроме того, в результате теплового расчёта должны быть определены важнейшие показатели экономичности: удельный расход топлива (gₑ), коэффициенты полезного действия и статьи теплового баланса. / Состав: 1 лист чертеж + ПЗ (69 страниц).
Дата: 11.4.26 13:03 | Поместил: patron5775 | Размер: 1.73 MB | Скачали: 0 Платформа: Компас | Рб:
1
Дипломный проект - Проектирование авиационного ангара 86 х 78 м в г. Воронеж ДП Дипломный проект - Проектирование авиационного ангара 86 х 78 м в г. Воронеж | Год выпуска: 2025
УГНТУ / ПГС / Цель работы - осуществить расчет и проектирование металлических несущих конструкций здания; осуществить проектирование и разработку строительного генерального плана площадки строительства, а также технологической карты на монтаж металлических конструкций; представить предложения по сокращению вредного воздействия на окружающую среду во время производства работ по устройству здания; представить предложения по охране труда во время производства работ по устройству здания. / Состав: 7 листов чертежи + ПЗ (73 страницы).
Дата: 10.4.26 09:38 | Поместил: RaLiberty | Размер: 7.13 MB | Скачали: 0 Платформа: AutoCad, PDF | Рб:
7
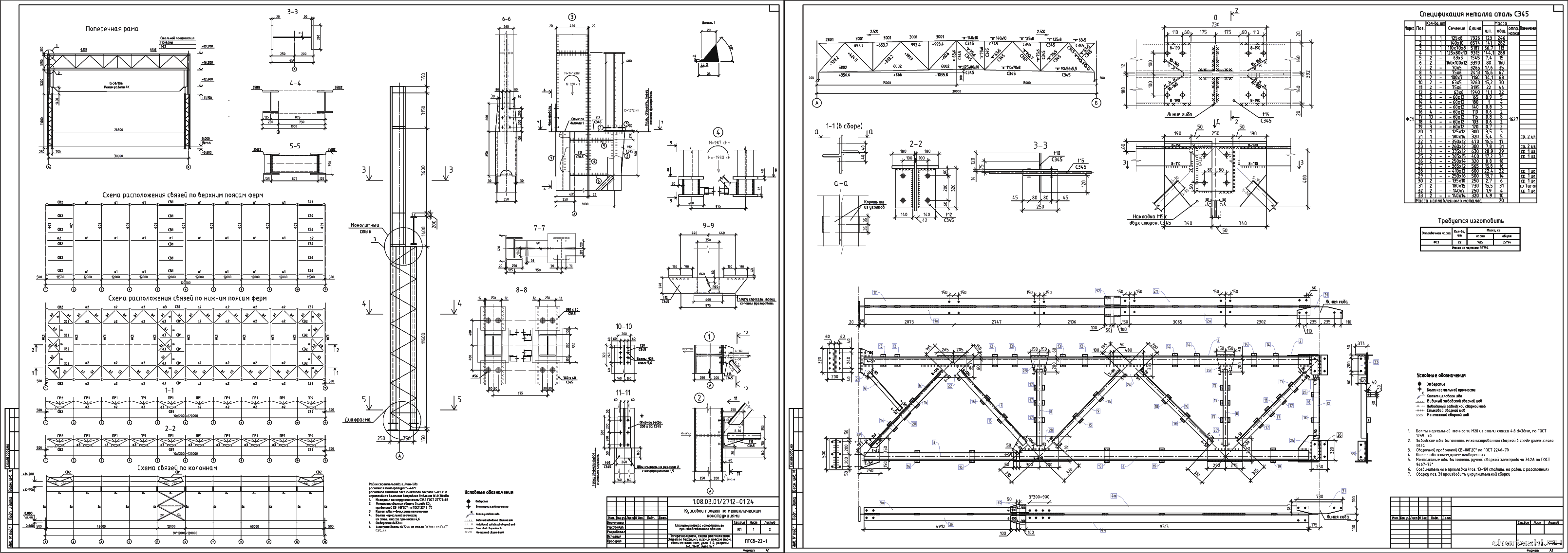
Курсовая работа - МК балочной рабочей площадки 66 х 18 м КП Курсовая работа - МК балочной рабочей площадки 66 х 18 м | Год выпуска: 2026
КГАСУ / Кафедра металлических и деревянных конструкций / Проектирование конструкций балочной рабочей площадки / Вариант 18 / Состав: 2 листа чертежи (Монтажная схема балочной клетки, разрезы, узлы; Отправочные марки Б1, Б2, К1) + ПЗ (54 страницы).
Дата: 9.4.26 15:24 | Поместил: LOS | Размер: 1.16 MB | Скачали: 0 Платформа: AutoCad | Рб:
1
Новые чертежи и проекты (нормы Украина)
- 7.4.26 Дипломний проект (коледж) - Шкільна їдаль..
- 29.3.26 Дипломний проект - Модернізація м’ясоподр..
- 26.3.26 Дипломний проект - Будівництво 2-поверхов..
- 5.3.26 АБ ГП Реконструкція складу, гаражів з при..
- 5.3.26 АБ Будівництво автоматичної автомийки сам..
- 28.2.26 Дипломний проект - Проект механізації кор..
- 28.2.26 АБ Реконструкція квартири №1 з влаштуванн..
- 3.2.26 Курсовий проект - ПОБ промислового компл..
- 22.1.26 Дипломний проект (коледж) - Розробка аван..
- 17.1.26 Курсовий проект (коледж) - Розрахунок мон..
- 16.1.26 Курсова робота (коледж) - Розробка ПВР на..
- 7.1.26 Курсовий проект - 2-х поверховий Індивіду..
- 10.12.25 Дипломний проект (коледж) - Заміський буд..
- 28.11.25 Курсовий проект - Розробка стенда для обс..
Новые чертежи и проекты (Разные страны)
- 14.4.26 Курсовой проект - Досуговый центр "Synthesis"
- 9.4.26 Дипломный проект - Сельский дом культуры на 500 мест 145,2 х..
- 3.4.26 ВК Объект быстрого питания в ТРЦ в г. Актау
- 28.3.26 ЭСН Комплекс бытового обслуживания
- 28.3.26 ЭСН Храм в г. Темиртау
- 27.3.26 Курстық жұмыс - Өскемен қаласында..
- 25.3.26 ТС ОДК Строительство и реконструкция соединительной тепломаг..
- 9.3.26 ТХ Строительство завода по производству газобетонных блоков ..
- 5.3.26 НВК Строительство столовой, 2-х телятников, зерносклада, авт..
- 26.2.26 АР КМ КЖ Доильно-молочный блок с предлагуной
- 26.2.26 АР КМ КЖ Строительство молочно-товарной фермы в СКО
- 26.2.26 АР КМ КЖ Строительство убойного пункта на территории действу..
- 26.2.26 ТХ Строительство убойного пункта на территории действующей М..
- 25.2.26 ЭС Строительство механизированного зерносклада для переработ..
- 25.2.26 ЭС Строительство завода по выпуску круп и хлопьев с элеватор..
 
Cloudim - онлайн консультант для сайта бесплатно.