Добавить проект
Прочитать правила
Платный доступ
Авторизация:
Информация


Чертежи » Дипломные и курсовые работы : Строительство : ТСП / ТВЗ / ТК Строительные работы : Курсовой протект - ТВЗ - ППР на возведение надземной части одноэтажного промышленного здания»

Курсовой протект - ТВЗ - ППР на возведение надземной части одноэтажного промышленного здания»

| Рб:
1
| Платформа: AutoCad | Поместил: archymaria | Дата: 12.9.25 17:48 | Год выпуска: 2024 | Размер: 5,53 MB | Скачали: 0
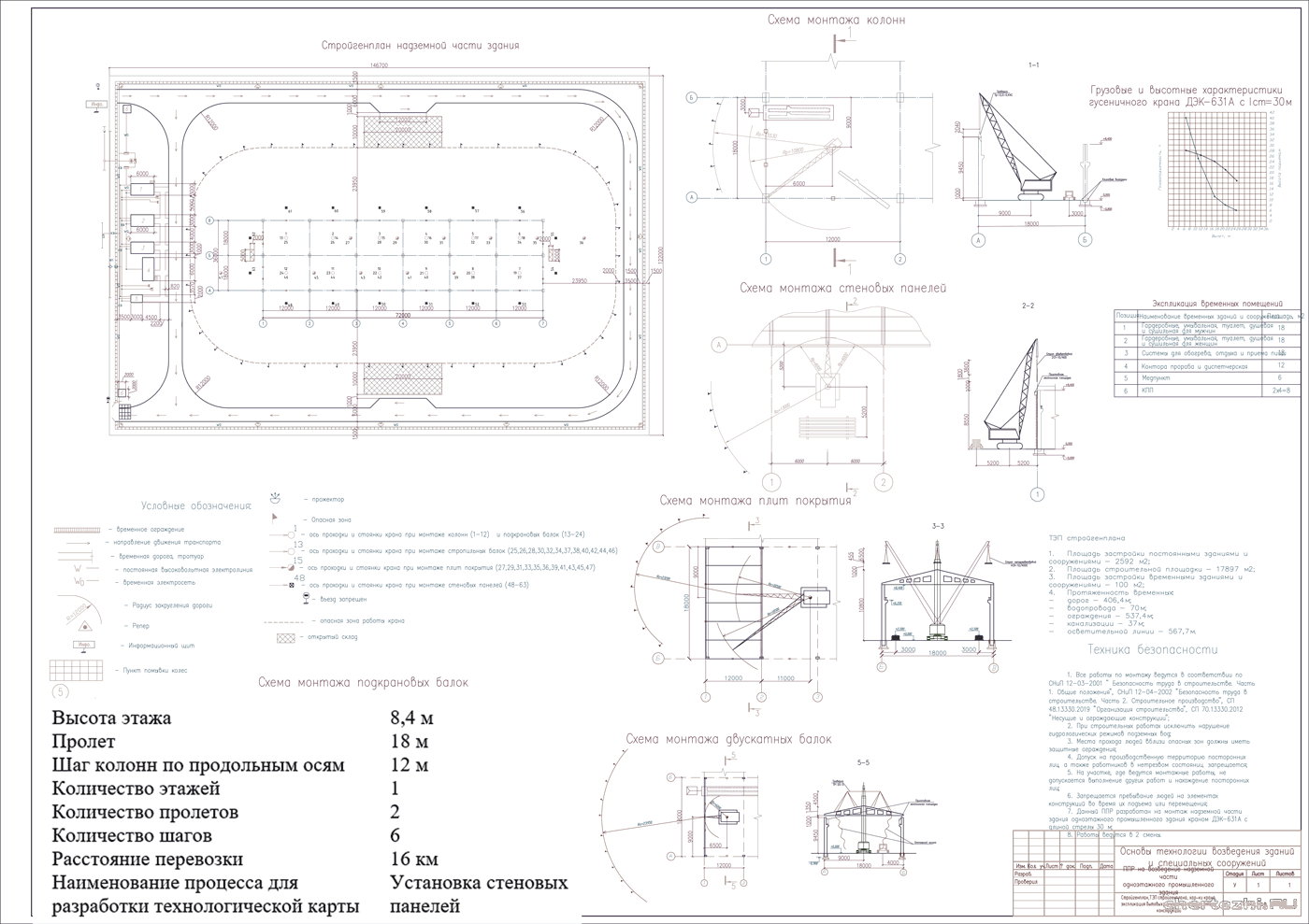
Коротко о файле: ПГУАС / ИСИ / Кафедра "Экономика, организация и управление производством" / Данный объект является промышленным зданием. Высота здания до низа стропильных конструкций 8,4 м. Отметка верха кровли 9,9 м. Здание двухпролетное. Размеры в плане 36 х 72 м. Фундамент монолитный железобетонный под колонны. Ограждающие конструкции выполнены из железобетонных навесных панелей. Несущие конструкции покрытия – ребристые плиты. Рельеф площадки ‒ участок строительства освоенный, спокойный без особых возвышенностей и выемок. / Состав: 1 лист чертежи в (.dwg) + ПЗ + таблицы в (.xlsx)
Курсовой протект - ТВЗ - ППР на возведение надземной части одноэтажного промышленного здания»

Содержание:
1. Исходные данные для проектирования. 3
2. Обоснование проектных решений. 4
2.1 Характеристика объемно-планировочного решения здания. 4
2.2 Спецификация сборных конструкций. 4
2.3 Ведомость подсчета объемов СМР. 7
2.4 Выбор средств подмащивания, инвентаря, монтажных приспособлений и оснастки. 8
2.5 Выбор монтажного крана по техническим параметрам 12
2.6 Выбор транспортных средств для доставки конструкций. 16
3. Разработка проекта производства работ. 19
3.1 Указания по подготовки объекта. 19
3.2 Методы и последовательность производства работ 20
3.3 Календарное планирование. Составление ведомости затрат труда, машинного времени и потребности в материалах 20
3.4. Технико-экономические показатели календарного плана 25
4. Технологическая карта 26
4.1. Общие положения. Область применения ТК 26
4.2. Организация и технология выполнения работ 26
4.3 Требования к качеству работ 29
4.4 Потребность в машинах, оборудовании, инструментах и материалах 33
4.5. Техника безопасности и охраны труда 35
4.6. Обеспечение пожарной безопасности 37
4.7. Технико-экономические показатели технологической карты 39
5.Стройгенплан на возведение надземной части здания 40
5.1. Внутрипостроечные дороги 40
5.2. Проектирование складских площадок 41
5.3. Определение потребности во временных зданиях и сооружениях 42
5.4 Проектирование освещения строительной площадки 44
5.5 Проектирование временных сетей 45
5.6 Технико-экономические показатели стройгенплана 47
5.7 Мероприятия по технике безопасности и охране окружающей среды .47
Список использованной литературы 50

Состав чертежей:
1 лист: стройгенплан, ТЭП стройгенплана, характеристики крана, экспликация бытовых помещений, схемы монтажа конструкций.



Содержимое архива


Проекты (работы, чертежи) можно скачать став участником и внеся свой вклад в развитие. Как скачать ? подробнее >>>>>>>
Последний раз скачивали:

 
Cloudim - онлайн консультант для сайта бесплатно.