Добавить проект
Прочитать правила
Платный доступ
Авторизация:
Информация


Чертежи » Дипломные и курсовые работы : Машиностроение и механика : Редукторы / Приводы : Курсовой проект - Привод цепного конвейера

Курсовой проект - Привод цепного конвейера

| Рб:
1
| Платформа: AutoCad | Поместил: Maksel1234 | Дата: 22.11.25 05:22 | Год выпуска: 2024 | Размер: 5,73 MB | Скачали: 1
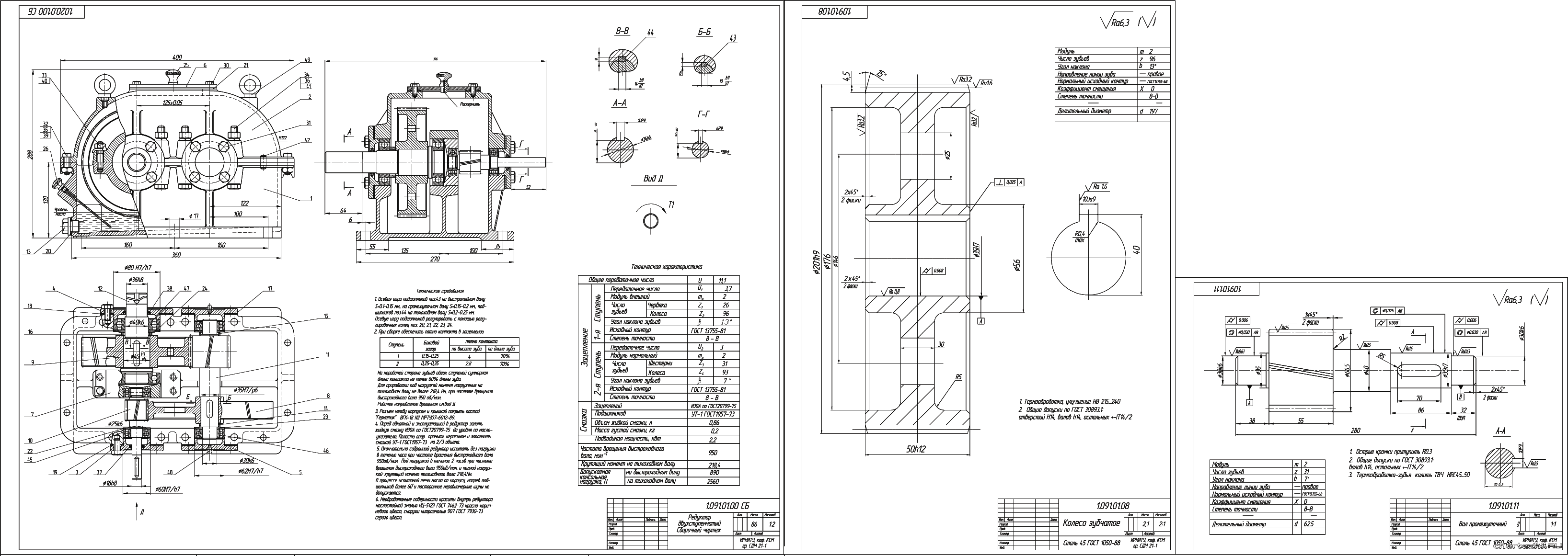
Коротко о файле: ИРНИТУ / Кафедра «Конструирования и стандартизации в машиностроении» / по дисциплине "Детали машин и основы конструирования" / Вариант №9; Задание №1 / Полный расчет привода цепного конвейера, расчет зубчатых колес, расчет валов редуктора, расчет цепной передачи, сборка редуктора. / Состав: 3 листа чертежи (редуктор, колесо зубчатое, вал промежуточный) + спецификация + ПЗ (57 страниц).
Курсовой проект - Привод цепного конвейера

Содержание
Задание на проект 
Введение 
1 Выбор электродвигателя и кинематический расчет 
2 Расчет зубчатых колес 
2.1 Выбор материала 
2.2 Определение допускаемых напряжений зубчатых колес 
2.3 Расчет быстроходной ступени 
2.4 Расчет тихоходной ступени 
3 Предварительный расчет валов редуктора 
4 Конструктивные размеры шестерни и колеса 
5 Выбор подшипников 
6 Выбор муфт 
7 Конструктивные размеры корпуса и крышки
8 Расчет цепной передачи 
9 Проверка долговечности подшипников 
10 Проверка прочности шпоночных соединений 
11 Уточненный расчет валов 
12 Выбор сорта масла 
13 Посадки деталей редуктора 
14 Сборка редуктора 
15 Заключение 
Список используемых источников 
Спецификация к редуктору

Спроектировать привод к цепному подвесному конвейеру по схеме с графиком нагрузки данным на рисунке. Окружное усилие на тяговой звездочке F=2,4 кН окружная скорость V=0,8 м/c, шаг тяговой цепи t=50,8мм и число зубьев звездочки z=40.

В работе необходимо спроектировать редуктор для цепного конвейера, а также подобрать муфту, двигатель. Редуктор состоит из литого чугунного корпуса, в котором помещены элементы передачи – 2 шестерни, 2 колеса, подшипники, валы и пр. Входной вал посредством муфты соединяется с двигателем, выходной посредством цепной передачи с конвейером.

Заключение
Была выполнена задача проектирования и конструирования двухступенчатого цилиндрического редуктора, использовались данные источника <3>. Подобран электродвигатель По ГОСТ 19523-81 по требуемой мощности
Nтр = 2, 56 кВт выбран электродвигатель трехфазный асинхронный короткозамкнутый серии 4А закрытый, обдуваемый с синхронной частотой n = 1000 об/мин 4А100L6 с параметрами Nдв = 2,2 кВт и скольжением S=5 %, отношение Nп/Nн=2. Рпуск=2∙2,2=4,4кВт - мощность данного двигателя на пуске полностью удовлетворяет условиям. Как видно из табличных значений данный редуктор удовлетворяет условиям прочности по контактным и изгибающим моментам.
Для редуктора выбраны шарикоподшипники радиально упорные однорядные легкой и средней серии. Для ведущего вала выбраны 2 подшипника 46305. Для промежуточного вала выбраны  2 подшипника 46306. Для вала выходного приняты 2 подшипника 46309
Подшипники удовлетворяют условиям долговечности, шпоночные пазы имеют запас прочности от воздействия напряжений смятия, диаметры валов подобраны (и их длины) так, чтобы соблюдались требования ГОСТа, и можно было подсоединить как электродвигатель, так и муфту МУВП. 
Корпус конструктивно обеспечивает надежную смазку и замену масла, а также контроль  уровня масла в редукторе.
Итак, можно сделать вывод, что данный редуктор, при заданных условиях эксплуатации, будет работать надежно и в соответствии со своим ресурсом.



Содержимое архива


Проекты (работы, чертежи) можно скачать став участником и внеся свой вклад в развитие. Как скачать ? подробнее >>>>>>>
Последний раз скачивали: 2026-01-13

 
Cloudim - онлайн консультант для сайта бесплатно.