Добавить проект
Прочитать правила
Платный доступ
Авторизация:
Информация


Чертежи » Дипломные и курсовые работы : Архитектура : Многоэтажные / Многоквартирные жилые дома : Дипломный проект (колледж) - 10-ти этажный жилой дом по адресу: ул. Комсомольская д.15б г. Первоуральск Свердловская область

Дипломный проект (колледж) - 10-ти этажный жилой дом по адресу: ул. Комсомольская д.15б г. Первоуральск Свердловская область

| Рб:
3
| Платформа: AutoCad | Поместил: Polinka_1807 | Дата: 28.11.25 10:24 | Год выпуска: 2024 | Размер: 3,51 MB | Скачали: 0
Коротко о файле: ГАПОУ СО "НТСК" / Цели дипломной работы: конструирование зданий; рассчитать и подобрать строительные конструкции; применение технологий и методов организации строительного производства. / Состав: 3 листа чертежи + ПЗ (48 страниц).
Дипломный проект (колледж) - 10-ти этажный жилой дом по адресу: ул. Комсомольская д.15б г. Первоуральск Свердловская область

Содержание
Введение    4
1 Конструктивное исполнение зданий    5
1.1 Конструирование зданий    5
1.1.1 Общая характеристика проектируемого здания    5
1.1.2 Объемно-планировочное решение    6
1.1.3 Расчеты к архитектурно-строительной части    7
1.1.4 Конструктивные решения    8
1.1.4.1Фундаменты    8
1.1.4.2Плиты перекрытия    10
1.1.4.3Стены    11
1.1.4.4. Окна    11
1.1.4.5Двери    11
1.1.4.6Лестницы    12
1.1.4.7Крыша    12
1.1.4.8Кровля    12
1.1.4.9Лифт    12
1.1.5 Отделка здания    13
1.1.6 Доступность здания для маломобильных групп населения    15
1.1.7 Инженерное оборудование здания    15
1.1.8 Технико-экономические показатели    16
1.1.9 Генеральный план    16
1.2 Расчет и подбор строительных конструкций    18
1.2.1Сбор нагрузок на фундамент    18
1.2.1.1Определение нагрузки на 1м2 надподвального перекрытия    18
1.2.1.2Определение нагрузки на 1м2 межэтажное перекрытие    19
1.2.1.3Определение нагрузки на 1м2 чердачного перекрытия    19
1.2.1.4Определение нагрузки на 1м2 покрытия    20
1.2.1.5Определение собственного веса стены    21
1.2.1.6Определение собственного веса фундамента    21
1.2.1.7Определение нагрузки на 1п.м. свайного фундамента    22
1.2.2. Определение размеров подошвы фундамента    23
2 Применение технологий и методов организации строительного производства    25
2.1 Технологическая карта на устройство свайного фундамента и монолитного ростверка    25
2.1.1 Область применения    25
2.1.2 Выбор и технико-экономическое обоснование способа производства работ, грузозахватных приспособлений    26
2.1.3 Выбор монтажного крана    27
2.1.3.1Минимальный требуемый вылет стрелы крана    27
2.1.3.2. Максимальный требуемый вылет стрелы крана    27
2.1.3.3. Необходима грузоподъемность крана    28
2.1.3.4Технология производства свайных работ    28
2.1.4 Техника безопасности    32
2.1.5 Порядок производства работ    32
2.1.6 Контроль качества    34
2.1.7 Свайные работы    35
2.1.8 Опалубочные, арматурные и бетонные работы    36
2.1.8.1Зимние условия труда    37
2.1.9 Определение трудоемкости работ    38
2.1.10 Технико-экономические показатели    42
Заключение    43
Список используемых источников    44

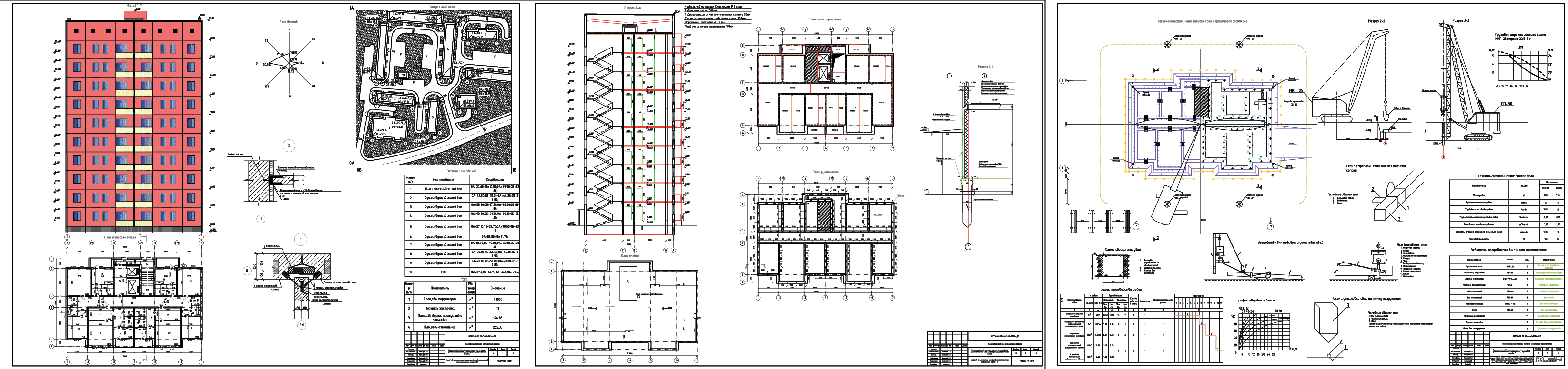
Чертежи проекта:
1. Фасад 1-7, план типового этажа, узел 1, узел 2, генеральный план, экспликация зданий, ТЭП.
2. Разрез А-А, план кровли, план фундамента, план плит перекрытия, разрез 1-1.
3. Технологическая схема забивки свай и устройство монолитного ростверка, устройство для подъема и установки свай, разрез 1-1, разрез 2-2, график твердения бетона,схема сборки мелкощитовой опалубки, грузовая характеристика МКГ-25, схема строповки свай для подъема копром,ТЭП, Ведомость потребности в машинах и механизмах, схема установки сваи на точку погружения.

Длина проектируемого здания –21600 мм, ширина – 14100 мм.
В проектируемом здании десять этажа высотой – 3000 мм.
Для эвакуации принят главный вход.
Инженерное оборудование: холодное и горячее водоснабжение, канализация, отопление.

Конструктивная система здания – бескаркасная с продольными и поперечными несущими стенами (перекрестный вариант).
В данном проекте использован свайный фундамент. Свайные фундаменты выполняются из железобетонных свай и ростверка. 
Междуэтажные плиты перекрытия сплошные железобетонные, толщиной 160 мм. Состоят из железобетонных плит перекрытия и шумоизоляция.  
Междуэтажные плиты перекрытия в сан узлах толщиной 160 мм. Состоят из железобетонных плит перекрытия, гидроизоляцией и шумоизоляция.
Над подвальные плиты перекрытия сплошные железобетонные толщиной 160 мм. Состоят из железобетонных плит перекрытия, теплоизоляции.
Чердачные плиты перекрытия сплошные железобетонные толщиной 160 мм. Состоят из железобетонных плит перекрытия, теплоизоляции, пароизоляции и гидроизоляции.
Стены выполнены из железобетонных панелей. В качестве утеплителя применяются плиты из пенополистирола. Наружная стена состоит из 3 слоёв: 1 слой состоит из железобетона толщиной 60 мм, 2 слой из плит пенополистирола толщиной 110 мм, 3 слой из железобетона толщиной 100 мм. Внутренние несущие стены выполнены из железобетонных панелей толщиной 180 мм. Перегородки выполнены из гипсобетонных панелей 80 мм.
В данном проекте использована плоская крыша. 
В данном проекте использована плоская кровля с уклоном 5˚. В состав кровли входит: кровельный материал «Стеклоизол Р», ребристая плита толщиной 300 мм, гидроизоляция, в качестве которой выступает цементно-песчаная стяжка толщиной 30 мм, утеплитель минеральная вата толщиной 150 мм, пароизоляция «Изоспан С», чердачная плита перекрытия 160 мм.
В данном проекте установлены 2 лифтовые шахты размерами 1950×2200 мм, 1700×2650 и кабины лифта 1400×1200 мм, 1200×2200 мм, данные пассажирские и грузопассажирские лифты выдерживают до 500кг. Над лифтовыми шахтами установлено машинное отделение лифта, в котором находится лифтовое оборудование и через которое осуществляется выход на крышу здания. 
При входе в здание имеется отмостка, которая является пандусом для маломобильных групп населения. Также в самом помещение на первом этаже предусмотрен стационарный пандус с двухсторонним ограждением с поручнями на высоте 0.9 м.

Заключение
Был разработан дипломный проект на тему «Проектирование 10 этажного жилого дома по адресу: ул. Комсомольская д.15б, г. Первоуральск, Свердловская область»
Проект выполнен в соответствии с заданием.
По окончанию разработки дипломного проекта, поставленные мной цели и задачи были выполнены:
‒были систематизированы и закреплены теоретические и практические знания по специальности и применены эти знания при решении профессиональных задач;
‒были подобраны конструктивные элементы здания;
‒выполнен теплотехнический расчет стены;
‒был выполнен расчет и определена глубина заложения фундамента;
‒была разработана графическая часть на 3 листах формата А1 в графическом редакторе Autoсad;
‒был выполнен сбор нагрузок и проверена несущая способность фундамента;
‒была разработана технологическая карта на устройство плоской кровли;
‒были подобраны материально-технические ресурсы.
 



Содержимое архива


Проекты (работы, чертежи) можно скачать став участником и внеся свой вклад в развитие. Как скачать ? подробнее >>>>>>>
Последний раз скачивали:

 
Cloudim - онлайн консультант для сайта бесплатно.