Добавить проект
Прочитать правила
Платный доступ
Авторизация:
Информация


Чертежи » Дипломные и курсовые работы : Архитектура : Многоэтажные / Многоквартирные жилые дома : Курсовой проект - 2-х этажный жилой дом на 6 квартир из мелкоразмерных элементов 19,8 х 13,2 м в Воронежской области

Курсовой проект - 2-х этажный жилой дом на 6 квартир из мелкоразмерных элементов 19,8 х 13,2 м в Воронежской области

| Рб:
1
| Платформа: AutoCad, PDF | Поместил: shat1770 | Дата: 1.12.25 13:02 | Год выпуска: 2024 | Размер: 2,01 MB | Скачали: 1
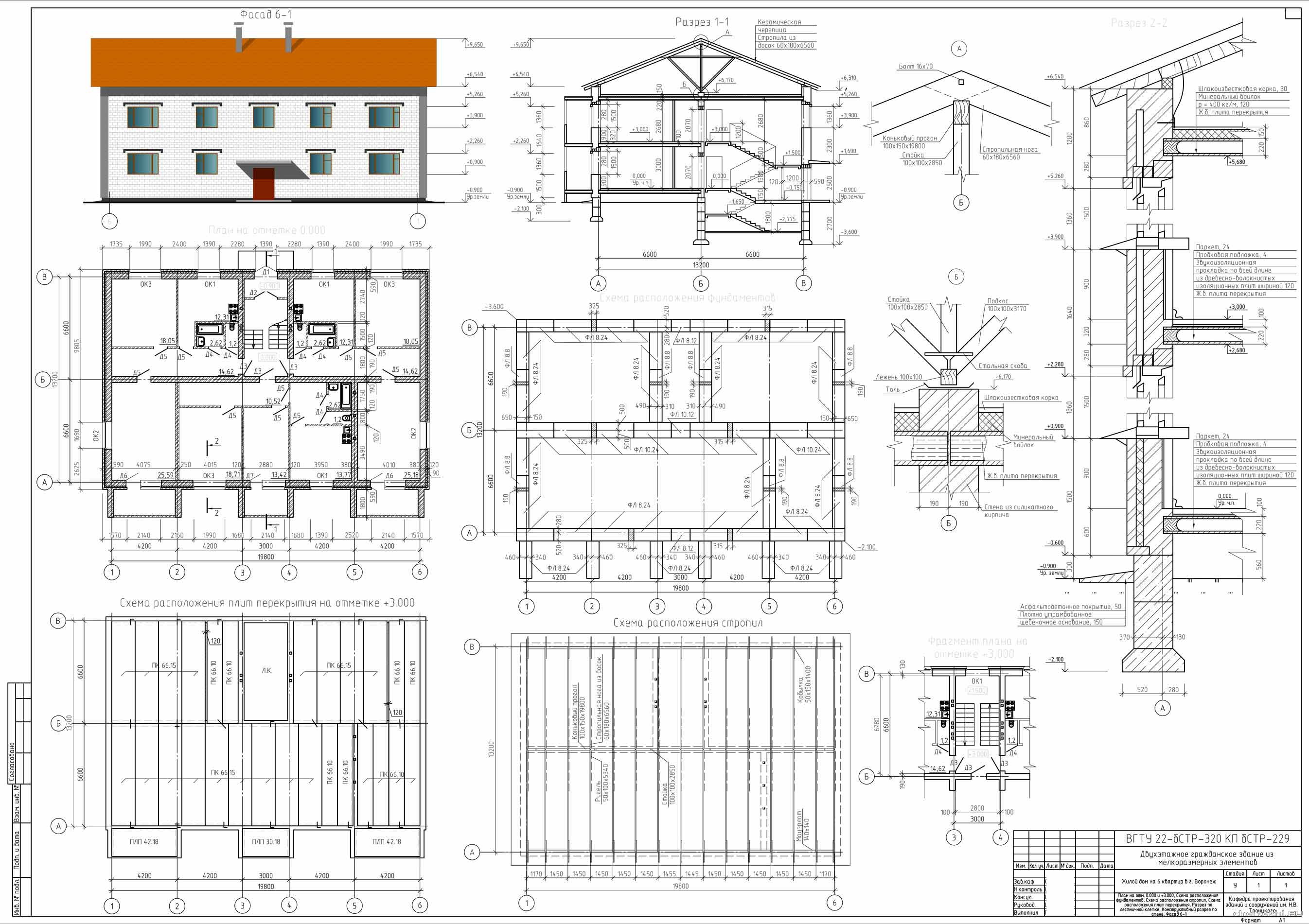
Коротко о файле: ВГТУ / Кафедра проектирования зданий и сооружений им. Н.В. Троицкого / по дисциплине «Основы архитектуры и строительных конструкций» / В курсовой работе спроектирован жилой дом на 6 квартир (24 жильца) из мелкоразмерных элементов. / Состав: 1 лист чертеж + ПЗ (15 страниц)
Курсовой проект - 2-х этажный жилой дом на 6 квартир из мелкоразмерных элементов 19,8 х 13,2 м в Воронежской области

Содержание
Введение
1.1. Теплотехнический расчет наружной стены
1.2.Заполнение оконных и дверных проемов
1.3. Расчет лестничной клетки
1.4. Расчет глубины заложения фундаментов
Приложения
Список литературы

В курсовой работе спроектирован жилой дом на 6 квартир (24 жильца) из мелкоразмерных элементов. 
Место строительства Воронежская область
Фундаменты ленточные железобетонные
Уровень земли на отметке -0,900
Конструктивная схема с продольными несущими стенами
Перекрытия из многопустотных железобетонных плит толщиной 220 мм ПК 66.15, ПК 66.10, ПЛП 42.18 и ПЛП 30.18
Крыша с холодным чердаком
Перегородки: - из керамического кирпича 120 мм в с/у,
из керамического кирпича 250 мм междуквартирные
Конструкция наружных стен: трехслойные, внутренний слой силикатный кирпич 380 мм, утеплитель – из минераловатных изделий из каменного волокна 90 мм, наружный слой облицовочный силикатный кирпич 120 мм
Крыша стропильная двухскатная из дощатых деревянных стропил с покрытием из керамической черепицы
Вентиляция естественная за счет разности температур воздуха, изменения давления
Лестница из железобетонных лестничных маршей и площадок. Тип ЛМ 30.12.15-4 и 1ЛП 30.16-4
Подвал предусмотрен
 



Содержимое архива


Проекты (работы, чертежи) можно скачать став участником и внеся свой вклад в развитие. Как скачать ? подробнее >>>>>>>
Последний раз скачивали: 2026-03-09

 
Cloudim - онлайн консультант для сайта бесплатно.