Добавить проект
Прочитать правила
Платный доступ
Авторизация:
Информация


Чертежи » Дипломные и курсовые работы : Архитектура : Многоэтажные / Многоквартирные жилые дома : Дипломный проект - Строительство 5-ти этажного кирпичного жилого дома на 80 квартир в г. Кострома

Дипломный проект - Строительство 5-ти этажного кирпичного жилого дома на 80 квартир в г. Кострома

| Рб:
6
| Платформа: AutoCad | Поместил: Jeka2211 | Дата: 2.12.25 05:55 | Год выпуска: 2025 | Размер: 13,06 MB | Скачали: 2
Коротко о файле: РУТ (МИИТ) / ИПСС / Кафедра “Строительные материалы и технологии” / Строительство МЖД / Сохранение архитектурной идентичности: 5-этажные кирпичные здания гармонично вписываются в исторический контекст Костромы, избегая диссонанса с памятниками деревянного зодчества и каменной архитектуры XIX века. / Состав: 7 листов чертежи + ПЗ (136 страниц) + доклад + презентация (в pdf).ㅤㅤㅤㅤㅤㅤㅤㅤㅤ
Дипломный проект - Строительство 5-ти этажного кирпичного жилого дома на 80 квартир в г. Кострома

Содержание
1. Общая часть 9
1.1 Актуальность темы 10
1.1.1 Контекстуальный фон 10
1.1.2 Проблематика 11
1.1.3 Экономическая значимость 11
1.1.4 Социальная значимость 11
1.1.5 Культурная значимость 12
1.2 Краткий обзор отечественного и зарубежного опыта проектирования аналогичных зданий 12
1.2.1 Отечественный опыт 12
1.2.2 Зарубежный опыт 13
1.3 Исходные данные для проектирования 14
2. АРХИТЕКТУРНО-СТРОИТЕЛЬНЫЙ РАЗДЕЛ 17
2.1 Градостроительная ситуация 18
2.2.1 Пространственная композиция и внутренняя структура здания 18
2.3 Конструктивная система, конструктивная схема и строительная система 18
2.4 Архитектурное решение фасадов 20
2.4.1. Внутренняя отделка помещений 21
2.5 Мероприятия противопожарной защиты здания. 22
2.6 Физико-технические расчеты ограждающих конструкций 25
2.6.1 Определение толщины наружной стены. 25
2.6.2 Расчет сопротивление теплопередаче чердачного перекрытия 28
2.6.3 Расчёт толщины межквартирной перегородки на изоляцию воздушного шума 31
2.6.4 Проверка принятого типа стеклопакета по теплотехническим показателям. 36
2.6.5 Светотехнический расчёт. 36
2.7 Инженерное оборудование и сети 38
2.7.1 Электроснабжение 38
2.7.2 Водоснабжение 38
2.7.3 Отопление и вентиляция 38
2.7.4 Канализация 39
2.7.5. Газоснабжение 39
2.7.6 Пожарная сигнализация 39
2.8. Мероприятия по обеспечению жизнедеятельности маломобильных групп населения и инвалидов. 39
3. РАСЧЕТНО-КОНСТРУКТИВНЫЙ РАЗДЕЛ 41
3.1 Общие данные 42
3.2 Сбор нагрузок 42
3.3 Материалы для плиты 43
3.4 Размеры расчетного сечения 43
3.5 Расчет плиты по предельным состояниям первой группы 44
3.5.1 Определение внутренних усилий 44
3.5.2 Расчет по прочности нормального сечения при действии изгибающего момента 44
3.5.3 Расчет по прочности при действии поперечной силы 46
3.6 Расчет плиты по предельным состояниям второй группы 48
3.6.1 Геометрические характеристики приведенного сечения 48
3.6.2 Потери предварительного напряжения арматуры 49
3.6.3 Расчет по раскрытию трещин 51
3.6.4 Расчет прогиба плиты 51
3.7 Расчет сборного ленточного фундамента. Сбор нагрузок при проектировании ленточного фундамента 53
3.7.1 Характеристики грунта. 56
3.7.2 Выбор типа и глубины заложения фундамента 57
3.7.3 Учет климатических условий района строительства 57
3.7.4 Влияние инженерно-геологических и гидрогеологических условий 58
3.7.5 Конструктивные особенности здания 59
3.7.6 Результаты расчета подошвы ленточного фундамента на естественном основании. 59
3.7.7 Результаты расчета деформации основания 61
4. Раздел организации и технологии строительства 63
4.1 Характеристики условий строительства 65
4.2 Определение продолжительности строительства 67
4.3. Календарный план строительства 67
4.3.1 Ведомость объемов строительно-монтажных и специальных работ 67
4.3.2 Ведомость потребности в строительных материалах, изделиях и конструкциях 70
4.3.3 Выбор основных методов производства работ 72
4.3.4 Выбор строительных машин по техническим характеристикам. 80
4.3.6 Разработка календарного плана 87
4.3.7 Технико-экономические показатели календарного плана 92
4.4 Проектирование объектного строительного генерального плана на надземный период строительства 94
4.4.1 Общие положения 94
4.4.2 Устройство временных дорог 94
4.4.3 Размещение строительных машин 95
4.4.4 Потребность во временных зданиях 97
4.4.5 Потребность в складах 98
4.5 Мероприятия по охране окружающей среды 101
4.6 Мероприятия по безопасности труда 102
4.7 Мероприятия по пожарной безопасности 104
4.8 Технико-экономические показатели 105
4.9 Технологическая карата на установка фундаментных блоков 106
Список литературы 122

Чертежи проекта:
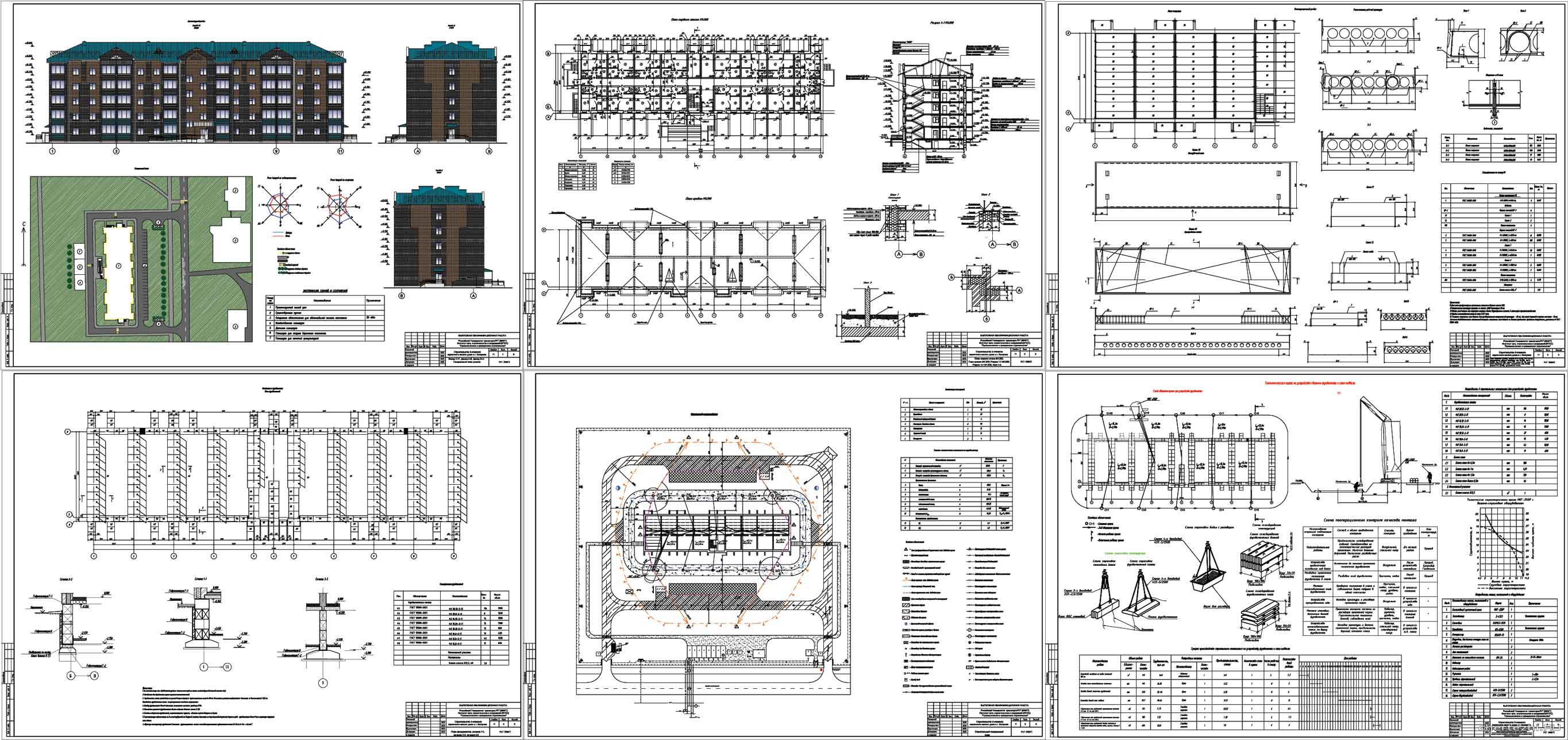
1. Фасад 1-11, фасад А-В, фасад В-А. Генеральный план участка 
2. План первого этажа М1:200; План кровли М1:200; Разрез 1-1 М1:200; Разрез 1-1 М1:200; Узел 1-4.
3. План покрытия (1:200), разрезы 2-2 (1:10), 3-3 (1:10), расположение рабочей арматуры, вид А(1:20), вид Б (1:20), вид В (1:20), каркас КР1, сетки С1, С2, узлы 1,2 (1:5), сверление ж/б плит, опалубочный план (1:20), разрезы 1-1 (1:20), армирование плиты
4. План фундаментов, сечение 1-1, сечение 2-2, сечение 3-3
5. Календарный план производства работ, график движения рабочих, технико-экономические показатели
6. Строительный генеральный план
7. Схема производства строительно-монтажных работ, разрез 1-1, схема строповки фундаментного блока, технические характеристики МКГ-25БР с башено-стреловым оборудованием, график производства строительно-монтажных работ на устройство фундамента, пооперационный контроль качества, потребность материалах и изделиях, потребность машин, механизмов и оборудования.

Объект капитального строительства располагается в городе Костроме, по адресу: Студенческий проезд, микрорайон Малышково. Габаритные размеры здания составляют 57,96 на 13,43 метра, здание представляет собой прямоугольную конфигурацию. Наибольшая высота 19,24 метра. Высота типового этажа  2,735 метра, а за условную отметку 0.000 принят уровень чистого пола первого этажа. Транспортная доступность обеспечивается существующей сетью автомобильных дорог. Для пешеходного движения предусмотрены специально оборудованные тротуары. Согласно СП 131.13330.2020 <27>, данный район относится ко II климатическому району. Снеговая нагрузка соответствует IV району, а ветровая – I району. Класс ответственности здания – II (нормальный).

Многоквартирный жилой дом секционного типа характеризуется доступом к индивидуальным жилым помещениям через общий коридор, связанный с лестничной площадкой. Эффективность использования пространства достигается благодаря прямоугольной форме здания и его ориентации по оси запад-восток (широтной направленности). Все квартиры имеют одностороннюю ориентацию окон. Планировочная структура квартир полностью соответствует требованиям технического задания. Ширина общих коридоров составляет 1,80 м, а глубина входных тамбуров – 2,30 м, что соответствует требованиям пожарной безопасности (Федеральный закон №123-ФЗ "Технический регламент о требованиях пожарной безопасности").
Однокомнатные квартиры имеют следующие параметры: жилая комната – 14 м², кухня – 8,0 м². Проектом предусмотрено объединение кухни и жилого пространства в формате "кухня-гостиная". Санитарный узел – совмещенный. Площадь прихожей – 4,0 м² при ширине 1,6 м, предусмотрена кладовая для хранения. В двухкомнатных квартирах общая жилая комната имеет площадь 16 м², одна из комнат объединена с кухонной зоной. Санузлы также объединены, ширина прихожей – 1,6 м. Каждая квартира оборудована лоджией глубиной 1,4 м, что обеспечивает дополнительное пространство и улучшает инсоляцию помещений.

Данное жилое строение представляет собой пятиэтажный объект с несущими стенами из кирпича, расположенными поперечно, что соответствует типовым конструктивным решениям для зданий данной категории, согласно СП 15.13330.2020 <8>. Под всей площадью здания размещен подвальный этаж, предназначенный для размещения инженерных сетей, включая системы водоснабжения, теплоснабжения, электроснабжения и вентиляции, а также технических помещений с инженерным оборудованием.
Выше пятого этажа располагается неотапливаемый чердак, спроектированный для обеспечения циркуляции воздуха и предотвращения образования конденсата на внутренней поверхности кровли, согласно СП 17.13330.2017 <9>. 
Кровля выполнена двускатной с применением деревянной стропильной системы, что представляет собой традиционное и экономичное решение для зданий с небольшими пролетами.
Пространственная жесткость здания обеспечивается продольными самонесущими и внутренними поперечными несущими стенами из кирпича, а также железобетонными плитами перекрытия, опирающимися на эти стены. Данная конструктивная схема гарантирует устойчивость и надежность здания при воздействии различных видов нагрузок, включая собственный вес, вес установленного оборудования, а также снеговые и ветровые нагрузки, согласно СП 20.13330.2016 <10>. 
Кирпичные стены обеспечивают высокую степень огнестойкости здания. Наружные стены, расположенные выше отметки минус 0,350 м, выполнены в виде трехслойной конструкции с гибкими связями, разработанной на основании СП 15.13330.2012 <8> и серии 2.030-2.01 в.1 «Стены многослойные с эффективной теплоизоляцией».
Несущие торцевые стены представляют трехслойную конструкцию с несущим слоем из полнотелого керамического кирпича толщиной 380 мм, слоем теплоизоляции, состоящей из монолитного пенобетона по технологии «СОВБИ» толщиной 270 мм и защитно-декоративным слоем из желтого и силикатного кирпича толщиной 120 мм.
Самонесущие стены также трехслойной конструкции с внутренним слоем из полнотелого кирпича толщиной 120 мм, слоем теплоизоляции, состоящей из монолитного пенобетона по технологии «СОВБИ» толщиной 270 мм и защитно-декоративным слоем толщиной 250 мм. Внутренний слой в самонесущих стенах поэтажно оперт на плиты перекрытия. 
Монолитный пенобетон, изготовленный по технологии «СОВБИ», обеспечивает эффективную теплоизоляцию благодаря своей пористой структуре, что позволяет значительно снизить теплопотери через ограждающие конструкции. Защитно-декоративный слой, выполненный из желтого и силикатного кирпича, не только придает зданию эстетичный внешний вид, но и обеспечивает дополнительную защиту от атмосферных воздействий, повышая долговечность конструкции в целом. Технология «СОВБИ» предполагает использование опалубочных систем для формирования монолитного слоя пенобетона непосредственно на строительной площадке, что позволяет оптимизировать затраты на транспортировку и монтаж теплоизоляционных материалов.
В качестве теплоизоляционного слоя проектом предусмотрен заливочный пенобетон марки по средней плотности D200 толщиной 250, 270 мм с коэффициентом теплопроводности 0,078 Вт/(мºС), изготавливаемый по технологии «СОВБИ» Внутренний слой стен выполняется из кирпича рядового полнотелого М100 (ГОСТ 530-2007) на растворе М75. 
Защитно-декоративный слой запроектирован из силикатного (ГОСТ 379-95) и пустотелого облицовочного кирпича марки 125 на растворе М75. Марка защитно-декоративного слоя толщиной 250 мм по морозостойкости - F50, толщиной 120 мм - F75 по таблице 1 СП 15.13330.2012 <8>. 
Конструкция наружных стен усилена посредством горизонтального армирования арматурными сетками, выполненными из арматуры диаметром 4 мм класса Вр-I (ГОСТ 6727-80). В зонах сопряжения наружных стен с внутренними стенами и стенами лоджий, связевые сетки располагаются с интервалом в четыре ряда кладки, со смещением относительно горизонтального армирования стен. Для изготовления арматурных и связевых сеток применяются коррозионностойкие стали или стали, прошедшие антикоррозийную обработку (СП 28.13330.2017).
На уровне третьего этажа, вдоль несущих торцевых стен, предусмотрена разгрузочная керамзитобетонная балка (γ=1400 кг/м³) класса прочности В12,5, включающая термовкладыши из пенобетона марки D200. Производство балки осуществляется по технологии «СОВБИ» (Серийное Объемно-Ванное Бетонирование Изделий). Внутренние поперечные стены, имеющие толщину 380 мм, возведены из красного полнотелого кирпича марки М100 (ГОСТ 530-2012) с применением кладочного раствора марки М75 (ГОСТ 28013-98).
За нулевую отметку (± 0,000) принят уровень чистого пола первого этажа, соответствующий абсолютной отметке 90,6 метров.
Высота этажей жилых помещений 3,0 м. Высота жилых помещений в свету 2,735 м. Высота подвала составляет в свету  - 2,10 м.   
В качестве междуэтажных перекрытий и покрытия использованы сборные многопустотные железобетонные плиты, соответствующие серии 1.141-1, выпуски 60 и 64, а также монолитные участки. Монолитные участки выполнены из бетона класса В15 (ГОСТ 25192-2012), армированного пространственными каркасами и сварными сетками, изготовленными из арматурной стали классов А-I, А-III и Вр-I (ГОСТ 34028-2016). Перемычки, расположенные над проемами в наружных и внутренних стенах, представлены сборными железобетонными элементами из тяжелого бетона, изготовленными в соответствии с требованиями серии 1.038.1-1, а также сборными перемычками из пенобетона, выполненными по индивидуальным проектам.
В здании одна лестничная клетка типа Л 1. Лестничная клетка  имеет естественное  освещение  и  выполнена из  сборных  железобетонных ступеней по металлическим  косоурам и подкосоурным  балкам. Выход на чердак в жилом доме предусмотрен  с лестничной клетки по металлической стремянке. 
Предусмотрено 2 выхода на  кровлю  через смотровые окна и стремянки, расположенные  в  чердачном пространстве. Жилые помещения квартир  отделены от лестничных площадок  внутренними кирпичными поперечными стенами  толщиной 380 мм. 
Конфигурация внутренних ограждающих конструкций включает в себя следующие типы:
Одинарные межкомнатные перегородки, выполненные из кирпичной кладки толщиной 250 мм (СП 15.13330.2020 "Каменные и армокаменные конструкции").
Межквартирные перегородки облегченного типа, имеющие общую толщину 250 мм, сформированные кладкой из цельного кирпича, уложенного на ребро, с предусмотренным воздушным зазором для улучшения звукоизоляции (ГОСТ 530-2012 "Кирпич и камень керамические. Общие технические условия").
Перегородки, разделяющие квартиры и общедомовой коридор, выполнены из цельного кирпича толщиной 250 мм.
Ограждающие конструкции лоджий состоят из светопрозрачных элементов, выполненных с использованием системы «СИАЛ», и металлических компонентов: вертикальных стоек из квадратного профиля 20х20 мм, установленных с интервалом 850 мм, горизонтальных элементов из стальной полосы размером 50х4 мм и поручня из швеллера №8 (ГОСТ 8240-97 "Швеллеры стальные горячекатаные. Сортамент").
Обшивка решетчатых металлических ограждений производится штампованным настилом ПС8-1150-0,7 производства «ИНСИ».
Фасады жилого дома отделаны снаружи силикатным и желтым облицовочным кирпичом, что обеспечивает эстетичный внешний вид и дополнительную защиту от атмосферных воздействий в соответствии с требованиями. 



Содержимое архива


Проекты (работы, чертежи) можно скачать став участником и внеся свой вклад в развитие. Как скачать ? подробнее >>>>>>>
Последний раз скачивали: 2026-02-03 / 2025-12-18

 
Cloudim - онлайн консультант для сайта бесплатно.