Добавить проект
Прочитать правила
Платный доступ
Авторизация:
Информация


Чертежи » Рабочие проекты : Инженерные системы : СКС : СКС Детский сад

СКС Детский сад

| Рб:
1
| Платформа: AutoCad | Поместил: checkthetest | Дата: 15.12.25 10:16 | Год выпуска: 2025 | Размер: 18,39 MB | Скачали: 1
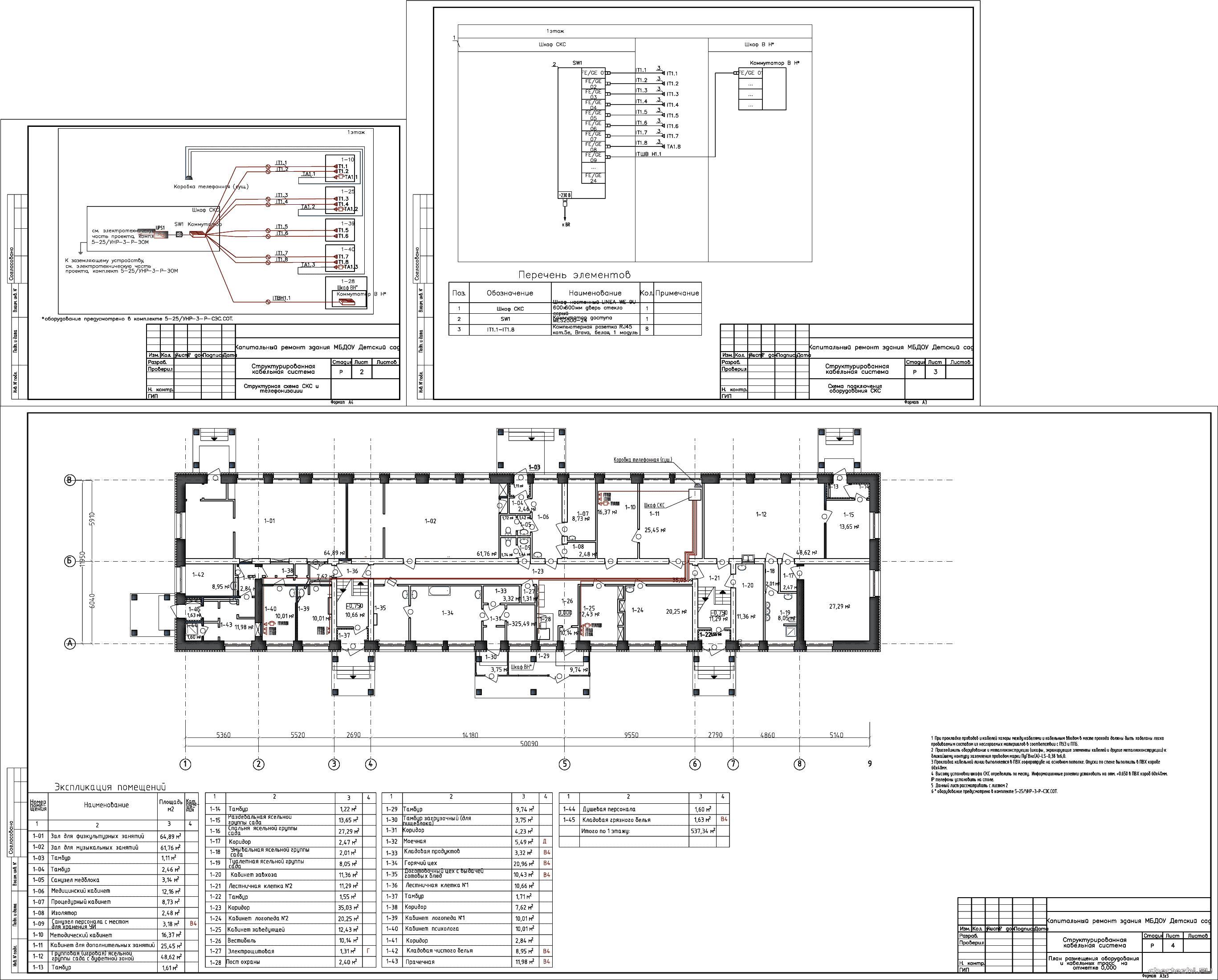
Коротко о файле: Р / Настоящий раздел разработан для здания МБДОУ Детский сад. Класс функциональной пожарной опасности – Ф1.1. Стены кирпичные. / Состав: комплект чертежей + спецификация + кабельный журнал + задание на ЭС и заземление.
СКС Детский сад

Рабочей документацией предусмотрено:
- структурированная кабельная система;
- телефонизация.

Ведомость рабочих чертежей
Общие данные
Структурная схема СКС и телефонизации
Схема подключений оборудования СКС
План размещения оборудования и кабельных трасс на отметке 0,000
Схема прохода через ЖБ, кирпичные перегородки
План расположения оборудования в шкафу ШСКС
 



Содержимое архива


Проекты (работы, чертежи) можно скачать став участником и внеся свой вклад в развитие. Как скачать ? подробнее >>>>>>>
Последний раз скачивали: 2025-12-18

 
Cloudim - онлайн консультант для сайта бесплатно.