Добавить проект
Прочитать правила
Платный доступ
Авторизация:
Информация


Чертежи » Дипломные и курсовые работы : Архитектура : Промышленные здания : Курсовой проект - Ремонтно-механический цех 84,75 х 49,00 м в г. Владивосток

Курсовой проект - Ремонтно-механический цех 84,75 х 49,00 м в г. Владивосток

| Рб:
2
| Платформа: AutoCad | Поместил: Venera5055 | Дата: 5.1.26 10:34 | Год выпуска: 2024 | Размер: 961,78 KB | Скачали: 0
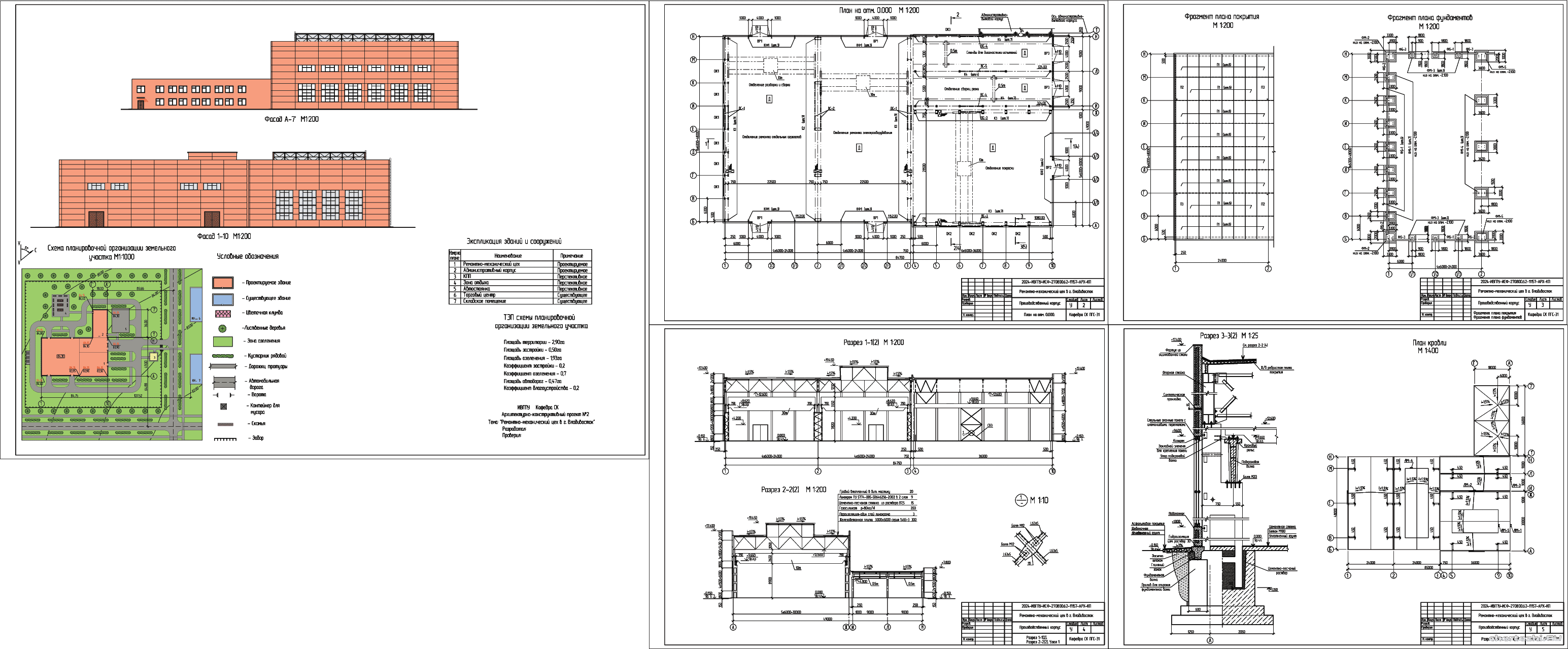
Коротко о файле: ИвГПУ / Кафедра строительных конструкций / Разработка архитектурно-конструктивного проекта промышленного здания. / Состав: 5 листов чертежи (Схема планировочной организации земельного участка, Фасад 1-10. План на отм. 0.000. Фрагмент плана покрытия, Фрагмент плана фундаментов. Разрез 1-1(2), Разрез 2-2(2). Узел 1. Разрез 3-3(2). План кровли) + ПЗ (33 страницы).
Курсовой проект - Ремонтно-механический цех 84,75 х 49,00 м в г. Владивосток

СОДЕРЖАНИЕ
Задание
Введение
1. Схема планировочной организации земельного участка
2. Технологический процесс предприятия
3. Подъемно-транспортное оборудование:
3.1. Мостовые краны
3.2. Подвесные краны
4. Объемно-планировочное решение
5. Конструктивное решение
5.1. Конструктивная схема
5.2. Фундаменты
5.3. Фундаментные балки
5.4. Колонны
5.5. Стропильные конструкции
5.6. Плиты покрытия
5.7. Подкрановые балки
5.8. Наружные стены
5.9. Лестницы
5.10. Перемычки
5.11. Ворота и двери
5.12. Окна
5.13. Фонари
5.14. Полы
5.15 Кровля
5.16 Пожарные лестницы
6. Отделка помещений
7. Отделка фасадов
8. Специальная защита конструкций
9. Противопожарные мероприятия
10. Выбор колонн
11. Расчет глубины заложения фундаментов
12. Теплотехнический расчет
12.1 Теплотехнический расчет покрытия
12.2 Теплотехнический расчет стенового ограждения
Библиографический список

По заданию на проектирование  для перемещения грузов по пролетам и над технологическим оборудованием требуется следующее ПТО:
мостовые краны:
-В блоке «А» – грузоподъемностью 10 т с зоной обслуживания в осях А-Ж, 4-10;
-В блоке «Б» - грузоподъемностью 30 т с зоной обслуживания в осях Б-Н, 1-3;
-Подвесные краны в блоке «В» – с грузоподъемностью 0,5 т  с зоной обслуживания в осях И-Н, 4-10;
-Автокары.

Здание запроектировано в плане с размерами в осях 49,0х84,75м. Количество пролетов 5 в том числе:
-блок «А» – однопролетный, пролет 30 м, высотой – 8 м, длиной – 36 м, 
-блок «Б» – двухпролетный, пролет 24 м, высотой – 6,4 м, длиной – 48 м,
-блок «В» – двухпролетный, пролет 9 м, высотой – 4,5 м, длиной – 36 м.
Размеры приняты согласно расположению и габаритам технологического и подъемно транспортного оборудования. Приводится обоснование расположения производственных участков и помещений. Например, в блоке «А» расположено отделение покраски, в блоке «Б»: отделение ремонта отдельных агрегатов, отделение разборки и сборки и  отделение ремонта  электрооборудования, в блоке «В»: отделение сварки, резки и стенды для диагностики испытаний.
По технологическим соображениям, а также для обеспечения условий эвакуации из здания, запроектированы  выходы на улицу.
По условиям производства на рабочих местах должен быть обеспечен коэффициент естественной освещенности е= 4 % (для III разряда зрительной работы). 
Здание каркасное, запроектировано по рамно-связевой схеме. Рамы вдоль здания соединяются плитами покрытия и подкрановыми балками.
Жесткость обеспечивается:
А) в продольном направлении: стальными крестовыми и портальными связями, расположенными между осями: в блоке  “A”  6-7; в блоке  “Б”   Е-И, Е-К; в блоке  “В” 6-7, 6-8. Рядовые колонны соединяются со связевыми колоннами распорками, проходящими по их верху в бескрановом блоке (блок «В») и подкрановыми балками в блоках с опорными кранами (блок «А», «Б»).
-диском покрытия, который состоит из железобетонных плит, приваренных к стропильным фермам или балкам с последующим замоноличиванием швов.
Б) в поперечном направлении: рамой, образованной колоннами и стропильными фермами.
В проекте предусмотрены монолитные железобетонные столбчатые фундаменты для колонн, и с опорами под фундаментные балки.
Для передачи веса самонесущих стен на фундамент применяются фундаментные балки сечением 400х30 по серии 1.415-1.
Для блока «А» пролетом 30м, высотой 8м приняты железобетонные колонны 500х1000 по серии КЭ-01-52 с уровнем головки рельса 9,65м и мостового крана грузоподъемностью 10т (расчет см п10).
Для двухпролетного блока «Б» пролетом по 24м, высотой 6,4м приняты двухветвевые металлические колонны по серии 1.424-4, с уровнем головки рельса 8,62м и мостового крана грузоподъемностью 30т (расчет см п10).
Для двухпролетного блока «В» пролетом по 9м, высотой 4,5м приняты ж.б. колонны сплошного сечения по серии 1.423-3 сечением 300х400мм.
Для крепления стеновых панелей торцевых стен приняты стальные колонны фахверка двутаврового сечения.
Для покрытия блока “А” приняты металлические фермы  пролетом 30 метров при шаге 6 метров по серии 1.460-4, которые опираются на железобетонные колонны.
Для покрытия блока “Б”  приняты металлические фермы  пролетом  24 метра при шаге 6 метров по серии 1.460-4, которые опираются на металлические колонны. 
Для покрытия блока «В» приняты балки железобетонные для покрытий зданий пролетом 9 м прямоугольного сечения с номинальной высотой 890 мм по серии 1.462-3. Балки опираются на железобетонные колонны.
Несущими элементами ограждающей части покрытия являются сборные железобетонные ребристые плиты  П1  6000х3000 по серии 1.465-3. В местах установки водоприемных воронок запроектированы плиты  П2, П3 с отверстиями.
Для мостовых кранов грузоподъемностью 10 и 30т шагом колонн 6 м применяются металлические и (железобетонные) разрезные подкрановые балки двутаврового сечения высотой 1100мм и (таврового сечения высотой 800мм) по серии 1.426-1.
Крановые пути прокладываются из железнодорожных рельсов КР-70.
Наружные стены – самонесущие навесные панели 6м по серии 1.432-5.
Для подъема на мостовые краны запроектировано 5 металлических лестниц.
Ворота в наружных стенах распашные размером 4,2х4,0 м. Двери однопольные глухие высотой 2100мм шириной 1000 мм.
Кровля запроектирована из 5 слоев, верхний слой – гравий на битумной мастике. 


 



Содержимое архива


Проекты (работы, чертежи) можно скачать став участником и внеся свой вклад в развитие. Как скачать ? подробнее >>>>>>>
Последний раз скачивали:

 
Cloudim - онлайн консультант для сайта бесплатно.