Добавить проект
Прочитать правила
Платный доступ
Авторизация:
Информация


Чертежи » Дипломные и курсовые работы : Инженерные системы : Курсовой проект (колледж) - Проектирование пожарной сигнализации и системе оповещения в гостинице с рестораном в г. Краснодар

Курсовой проект (колледж) - Проектирование пожарной сигнализации и системе оповещения в гостинице с рестораном в г. Краснодар

| Рб:
1
| Платформа: Компас | Поместил: Dmitry04 | Дата: 31.3.26 16:52 | Год выпуска: 2024 | Размер: 4,70 MB | Скачали: 0
Коротко о файле: ЮУрГТК / по МДК 01.04 Технология монтажа и эксплуатации систем видеонаблюдения и систем безопасности / Основные задачи курсового проектирования: спроектировать системы безопасности, описать проектируемые системы, подобрать оборудование, рассчитать резервное питание, рассчитать количество оборудования. / Состав: 2 листа чертежи (пожарная сигнализация и система оповещения) + ПЗ.
Курсовой проект (колледж) - Проектирование пожарной сигнализации и системе оповещения в гостинице с рестораном в г. Краснодар

СОДЕРЖАНИЕ
Введение    4
1 Общая часть    7
1.1 Краткое описание объекта    7
1.2 Краткое описание проектируемых систем связи    7
1.3 Основные проектные решения      9                                                                
2   Выбор оборудования                                                                                       
2.1 Пожарная сигнализация                                                                                   
2.1.1 Извещатель пожарный дымовой ИП 212-31    12
2.1.2 Извещатель пожарный тепловой максимальный ИП 103-55-В       13
2.1.3 Извещатель ручной пожарный ИП 535-26 "Север"    14
2.2   Система оповещения    15
2.2.1 Оповещатель пожарный световой ОПОП 1-8М "Выход"    15
2.2.2 Оповещатель пожарный речевой АС-2-2    16
2.2.3 Прибор управления оповещениями Рокот-2    17
2.3   Приемно-контрольный прибор Гранит-20    18
2.4   Кабель пожарной сигнализации и оповещения КСВВнг(А)-LS 2х0,5    19
3     Расчетная часть    21
3.1   Расчет количества оборудования    21
3.2   Расчет резервного питания устройств систем    23
3.3   Резервный источник питания РИП 12 исп.14    27
Заключение    29
Список используемых источников    32

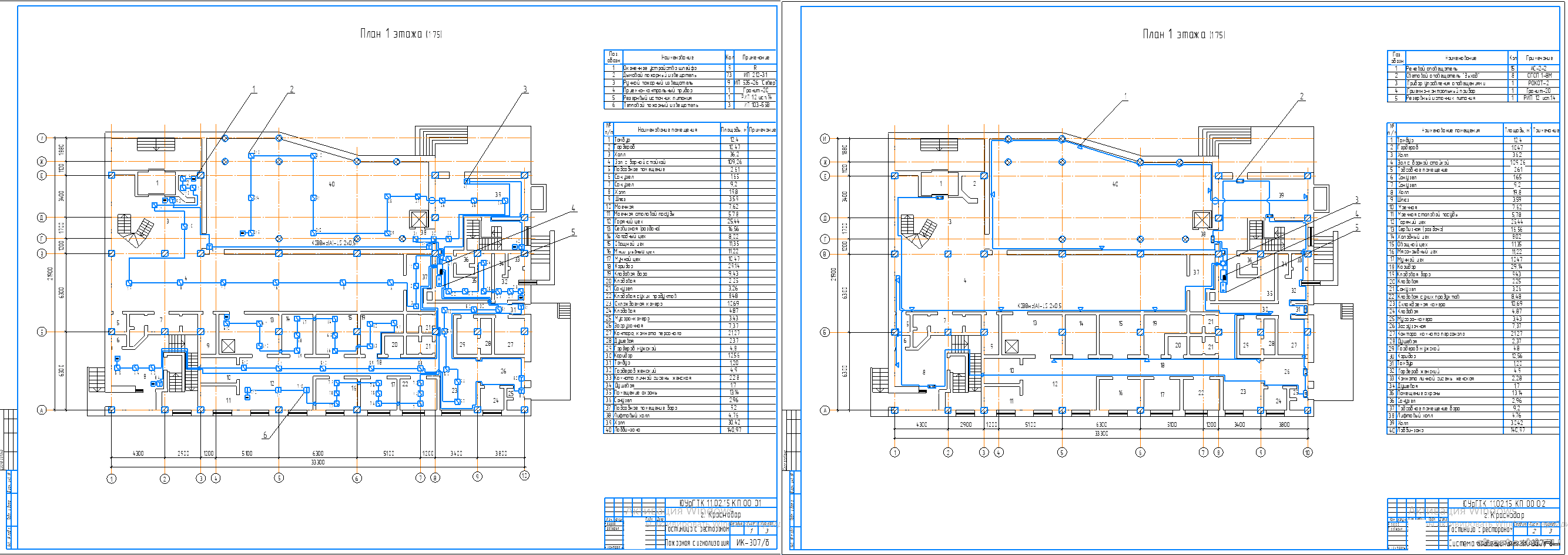
Объект представляет собой гостиницу с рестораном, расположенную в городе Краснодаре. В данном проекте рассматривается проектирование только первого этажа. Он включает в себя 40 помещений, общей площадью 633 м2.

В курсовом проекте необходимо спроектировать пожарную сигнализацию и систему оповещения.
Пожарная сигнализация – совокупность технических средств для обнаружения загорания, сообщения о месте его возникновения и обработки сигнала, также процесс получения, обработки, передачи и представления информации о пожаре в заданном виде с помощью данных технических средств.
СОУЭ – комплекс организационных мероприятий и технических средств, предназначенных для своевременной передачи информации о возникновении пожара и путях эвакуации, а также для обеспечения безопасной эвакуации людей при пожаре путём включения технических средств, предотвращения паники. СОУЭ приводится в действие командным импульсом автоматических установок системы обнаружения пожара или диспетчером по сигналам автоматических установок системы обнаружения пожара (полуавтоматическое управление).

Заключение
В ходе выполнения проектирования для достижения поставленной цели были выполнены следующие задачи:
‒ спроектированы системы безопасности;
‒ описаны проектируемые системы связи;
‒ подобрано оборудование систем;
‒ рассчитано резервное питание;
‒ рассчитано количество оборудования.
Для проектируемых систем безопасности подобраны технические средства с учетом специфики проектируемого объекта. Конкретно, в состав системы пожарной сигнализации вошли устройства и приборы:
‒ извещатель пожарный дымовой ИП 212-31;
‒ извещатель пожарный тепловой максимальный ИП 103-55-В;
‒ извещатель ручной пожарный ИП 535-26 "Север";
‒ прибор приемно-контрольный Гранит-20;
‒ резервный источник питания РИП-12 исп. 14;
‒ кабель КСВВнг(А)-LS 2х0,5.
Состав второй системы пожарной безопасности – системы оповещения, схож с пожарной сигнализацией, вместо извещателей – оповещатели, а также добавился прибор управления оповещениями. В состав системы оповещения вошли следующие технические средства:
‒ оповещатель пожарный световой ОПОП 1-8М "Выход";
‒ оповещатель пожарный речевой АС-2-2;
‒ прибор управления оповещениями Рокот-2;
‒ прибор приемно-контрольный Гранит-20;
‒ резервный источник питания РИП-12 исп. 14;
‒ кабель КСВВнг(А)-LS 2х0,5.
Исходя из важности объекта и возможного количества жертв при пожаре, проектом определена установка как минимум 3 автоматических пожарных извещателей на каждое помещение (исключения описаны в проекте), а также установка ручных пожарных извещателей на путях эвакуации – у выходов из здания. 
Объект представляет собой здание с постоянным скопление большого количества людей, исходя из этого на объекте реализуется система оповещения 3 типа, которая обеспечит своевременную эвакуацию людей из здания с речевым и световым указанием путей эвакуации. 
Для обработки информации и управления системой на объекте устанавливается приемно-контрольный прибор Гранит-20. Для поддержания работоспособности системы при отсутствии основного электропитания используется резервный источник питания.
Согласно нормативно-техническим требованиям, при отсутствии основного электропитания, резервный источник питания должен поддерживать работоспособность системы в течение 24 часов в дежурном режиме и в течение 1 часа в режиме тревоги. Исходя из этого, были выполнены расчеты токопотребления устройств системы.
К кабелям систем противопожарной защиты также предъявляются особенные требованиям по работоспособности. Конкретно, кабель должен поддерживать работоспособность систем в условиях возгораний в течение всего времени эвакуации. Как показывает практика, кабели прокладываются групповым способом, то есть, при выборе кабеля необходимо учесть факт нераспространения возгораний. Также особенно важным является пониженное газо- и дымовыделения при пиролизе (плавлении). Исходя из перечисленных требований, а также типовых проектных решениях был подобран соответствующий кабель систем противопожарной защиты.



Содержимое архива


Проекты (работы, чертежи) можно скачать став участником и внеся свой вклад в развитие. Как скачать ? подробнее >>>>>>>
Последний раз скачивали:

 
Cloudim - онлайн консультант для сайта бесплатно.