Добавить проект
Прочитать правила
Платный доступ
Авторизация:
Информация


Чертежи » Дипломные и курсовые работы : Архитектура : Здания социально-бытового назначения : Дипломный проект - Школа на 480 мест в г. Железногорск Красноярского края

Дипломный проект - Школа на 480 мест в г. Железногорск Красноярского края

| Рб:
7
| Платформа: AutoCad | Поместил: LeeEnfield | Дата: 18.4.26 10:05 | Год выпуска: 2024 | Размер: 8,49 MB | Скачали: 0
Коротко о файле: ТГТУ / Кафедра "Конструкции зданий и сооружений" / Возведение нового школьного здания позволит обеспечить обучающимся доступность качественного образования, а педагогическим работникам — достойные условия профессиональной деятельности. Таким образом, строительство школы вместимостью 480 мест является объективной необходимостью для города Железногорска. / Состав: 7 листов чертежи + ПЗ (139 страниц).
Дипломный проект - Школа на 480 мест в г. Железногорск Красноярского края

СОДЕРЖАНИЕ                                   
Введение    9
1 Архитектурно-строительный раздел    11
1.1 Исходные данные для проектирования    11
1.1.1 Характеристика объекта строительства    11
1.2 Исходные данные и условия для подготовки проектной документации на объект капитального строительства    11
1.3 Сведения о функциональном назначении объекта капитального строительства, состав и характеристика производства, номенклатура выпускаемой продукции (работ, услуг)    11
1.4 Технико-экономические показатели проектируемых объектов капитального строительства    12
1.5 Схема планировочной организации земельного участка    12
1.5.1 Характеристика земельного участка, предоставленного для размещения объекта капитального строительства    12
1.6 Архитектурные решения    13
1.6.1 Описание и обоснование внешнего и внутреннего вида объекта капитального строительства, его пространственной, планировочной и функциональной организации    13
1.7 Обоснование принятых объемно-пространственных и архитектурно- художественных решений. В том числе, в части соблюдения предельных параметров разрешенного объекта капитального строительства    14
1.8 Описание и обоснование использованных композиционных приемов при оформлении фасадов и интерьеров объекта капитального строительства    14
1.9 Обоснование принятых архитектурных решений в части обеспечения соответствия зданий, строений и сооружений установленным требованиям энергетической эффективности (за исключением зданий, строений, сооружений, на которые требования энергетической эффективности не распространяются)    15
1.10 Описание архитектурно-строительных мероприятий, обеспечивающих защиту помещений от шума, вибрации и другого воздействия    16
1.11 Описание архитектурных решений, обеспечивающих естественное освещение помещений с постоянным пребыванием людей    
1.12 Описание решений по светоограждению объекта, обеспечивающих безопасность полета воздушных судов (при необходимости)    
1.13 Описание решений по декоративно-художественной и цветовой отделке интерьеров (для объектов непроизводственного назначения)    17
1.14 Описание    решений    по    отделке    помещений  основного, вспомогательного, обслуживающего и технического назначения    
1.15 Конструктивные решения    18
1.15.1 Сведения о топографических, инженерно-геологических, гидрогеологических, метеорологических и климатических условиях земельного участка, предоставленного для размещения объекта капитального строительства    18
1.15.2 Сведения об особых природных климатических условиях территории, на которой располагается земельный участок, предоставленный для размещения объекта капитального строительства    19
1.15.3 Описание и обоснование технических решений, обеспечивающих необходимую прочность, устойчивость, пространственную неизменяемость зданий и сооружений объекта капитального строительства в целом, а также их отдельных конструктивных элементов, узлов, деталей в процессе изготовления, перевозки, строительства и эксплуатации объекта капитального строительства    20
1.15.4 Описание конструктивных и технических решений подземной части объекта капитального строительства    21
1.15.5 Обоснование проектных решений и мероприятий, обеспечивающих: соблюдение требуемых теплозащитных характеристик ограждающих конструкций    21
1.16 Обоснование проектных решений и мероприятий, обеспечивающих соблюдение требуемых характеристик конструкций    22
1.16.1 Обеспечение  требуемых  теплозащитных  характеристик ограждающих конструкций    22
1.16.2 Обеспечение снижения шума и вибраций    22
1.16.3 Обеспечение гидроизоляции и пароизоляции помещений    22
1.16.4 Обеспечение снижения загазованности помещений    23
1.16.5 Обеспечение удаления избытков тепла    23
1.16.6 Обеспечение соблюдения безопасного уровня электромагнитных и иных излучений, соблюдение санитарно-гигиенических условий    23
1.16.7 Обеспечение пожарной безопасности    23
1.17 Теплотехнические расчеты    24
1.17.1 Теплотехнический расчет стены    24
1.17.2 Теплотехнический расчет ограждающих конструкций покрытия    27
1.17.3 Определение вида заполнения оконных проемов    28
2 Расчётно-конструктивный раздел    28
2.1 Исходные данные    28
2.2 Расчёт монолитного ребристого перекрытия с балочными плитами    29
2.2.1 Компоновка перекрытия    29
2.2.2 Расчёт и конструирование плиты    32
2.2.3 Расчёт и конструирование второстепенных балок    41
2.2.4 Расчёт и конструирование главной балки    51
3. Проектирование свайного фундамента    63
3.1 Исходные данные    63
3.2 Проектирование забивных свай    66
3.2.1 Определение параметров сваи    66
3.2.2 Определение несущей способности забивной сваи    66
3.2.3 Определение числа сваи в фундаменте и эскизное конструирование ростверка        68
3.2.4 Расчет свайного фундамента по несущей способности грунта основания        69
3.2.5 Выбор сваебойного оборудования. Назначение расчетного отказа . 70
3.2.6 Расчеты плиты ростверка на продавливание колонной    70
3.2.7 Конструирование  свайного  фундамента.  Армирование  плиты ростверка        72
3.3 Проектирование буронабивных свай    74
3.3.1 Определение параметров сваи    74
3.2.2 Определение несущей способности буронабивной сваи    74
3.2.4 Расчет nехнико-экономический показателей свайного фундамента 76 4 Технология строительного производства    77
4.1 Условия осуществления строительства    77
4.1.1 Природно-климатические условия строительства    77
4.1.2 Нормативный срок строительства    78
4.1.3 Сведения об условиях обеспечения материалами и конструкциями, о расстояниях для их доставки, видах транспорта, о необходимых запасах материалов    78
4.1.4 Источник обеспечения строительной площадки водой, электроэнергией, сжатым воздухом и т.д    79
4.1.5 Состав участников строительства    80
4.1.6 Данные о потребности строительной площадки в инвентарных временных зданиях и сооружениях производственного и жилищно-бытового назначения    80
4.2 Работы подготовительного периода    81
4.3 Технологическая карта на устройство монолитного каркаса здания   82
4.3.1 Область применения    82
4.3.2 Организация и технология выполнения работ    82
4.3.3 Требования к качеству выполнения работ    88
4.3.4 Потребность в материально-технических ресурсах    89
4.3.5 Подбор строительной техники    91
4.3.6 Техника безопасности и охрана труда    92
4.3.7 Технико-экономические показатели    94
5. Организация строительного производства    95
5.1 Область применения строительного генерального плана    95
5.2 Подбор стрелового крана    97
5.3 Размещение стрелового крана на площадке строительства    97
5.4 Определение зон действия крана    98
5.5 Проектирование временных дорог    99
5.6 Потребность строительства в кадрах. Расчет потребности и подбор временных административных, жилых, хозяйственных и культурно-бытовых зданий    99
5.7 Проектирование складов    100
5.8 Проектирование временного электроснабжения    102
5.9 Проектирование временного водоснабжения    103
5.10 Проектирование временного теплоснабжения    104
5.11 Снабжение сжатым воздухом, кислородом и ацетиленом    105
5.12 Мероприятия по охране труда и пожарной безопасности    105
5.13 Мероприятия по охране окружающей среды и рациональному использованию природных ресурсов    105
6 Экономика строительства    105
6.1 Расчет прогнозной стоимости строительства объекта на основании УНЦС     105
6.2 Локальный сметный расчёт на общестроительные работы    111
6.3 Технико-экономические показатели    114
ЗАКЛЮЧЕНИЕ    117
СПИСОК ИСПОЛЬЗОВАННЫХ ИСТОЧНИКОВ    118

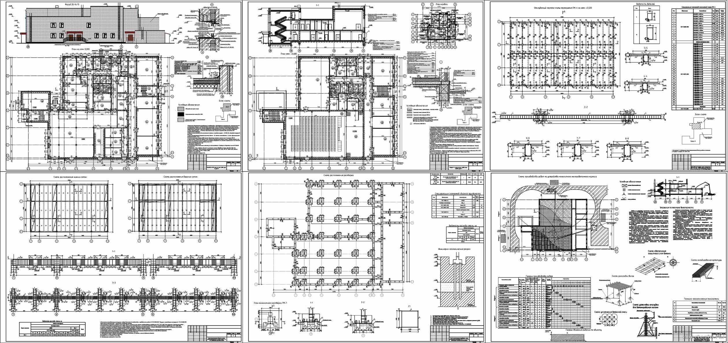
Чертежи проекта:
1. Фасад 20-(4/1), план на отм. 0.000, узел 2, узел 3
2. Разрез 1-1, план на отм +3.600, план кровли, узел 1
3. Опалубочный чертеж плиты перекрытия ПМ-4 на отм. +3.520, ведомость деталей, 2-2-, 4-4, 5-5, 6-6, 7-7, 8-8, блок-схема
4. Схема расположения верхних сеток,  схема расположения нижних сеток, 1-1, 3-3, ведомость расхода стали
5. Схема расположения ростверка, план монолитного ростверка РМ-1, 1-1, 2-2, С1, инженерно-геологический разрез
6. Схема производства работ, схема строповок конструкций, график производства работ, ТЭП, график движения рабочих, ТБ, разрез 1-1
7. Объектный стройгенплан, график высоты подъема крюка крана КМК4070 KRUPP, график грузоподъемности крана КМК4070 KRUPP, условные обозначения, экспликация зданий и сооружений, ТЭП.

Проектируемое общеобразовательное учреждение обеспечивает реализацию учебного процесса в соответствии с образовательными программами трёх ступеней обучения (школа рассчитана на 11 классов). Вместимость школы составляет 480 учащихся. Распределение по ступеням образования выглядит следующим образом:
• I ступень – начальное общее образование (1–4 классы): количество классов в каждой параллели – 2;
• II ступень – основное общее образование (5–9 классы): количество классов в каждой параллели – 2;
• III ступень – среднее (полное) общее образование (10–11 классы): количество классов в каждой параллели – 2.
Учебный процесс организован в одну смену.
Блок «Б» представляет собой двухэтажное здание, не имеющее подвальной части и технического подполья. В плане сооружение имеет прямоугольную конфигурацию. Габаритные размеры здания в осях составляют 35,24 × 44,76 м. Высотные параметры: расстояние от уровня пола до потолка в основных помещениях — 3,3 м; высота спортивного зала (до низа несущих конструкций) — 6,0 м и 9,0 м; высота актового зала — 5,0 м. Общая высота блока достигает 11,95 м.
Стены — кирпичные, несущие, толщиной 380 мм, с наружным облицовочным слоем толщиной 120 мм, закреплённым на гибких стеклопластиковых связях, и внутренним слоем, выполненным из эффективного теплоизоляционного материала.
Оконные заполнения — блоки из поливинилхлоридных профилей, оснащённые стеклопакетами, изготовленные по ГОСТ 30674-99.
Кровля — плоская, бесчердачного типа, выполненная из наплавляемых рулонных материалов марки ТехноЭласт, с организованным наружным водоотводом.
Лестничные конструкции — марши, скомпонованные из сборных железобетонных ступеней, уложенных на стальные косоуры. Размещаются лестницы в осях Т–У / (4/1)–7, а также в осях 18–20 / Ф–Э.
Объёмно-планировочное решение здания базируется на принципе функционального зонирования: отдельные блоки объединены в единый пространственный объём.
• Облицовка наружных стен — лицевой кирпич серого цвета.
• Отделка цокольной части — керамогранит, цвет RAL 9023.
• Облицовка крылец — керамическая плитка с противоскользящим покрытием, цвет RAL 7004.
• По периметру здания устроена бетонная отмостка шириной 1,0 м.
Внутреннее пространство школы спланировано с учётом компактного размещения учебных аудиторий, соблюдения нормативной ориентации помещений в соответствии с возрастными группами обучающихся, а также обеспечения полноценного учебного процесса и размещения общешкольных и административных зон.
Первый этаж блока «Б» (зона начального образования)
Для учащихся начальной школы предусмотрены:
• 2 учебных кабинета для вторых классов;
• учительская — методический кабинет младших классов;
• кабинет логопеда;
• рекреационная зона.
Пищеблок (расположен на первом этаже)
Состав помещений пищеблока:
• обеденный зал на 275 посадочных мест с зоной раздачи и зоной умывальников;
• горячий цех, холодный цех, овощной цех, мясо-рыбный цех, цех обработки овощей, мучной цех;
• кладовая сухих продуктов, кладовая для хранения овощей;
• помещение с холодильным оборудованием;
• моечные кухонной и столовой посуды, моечная тары;
• помещение временного хранения пищевых отходов.
Административно-бытовые помещения пищеблока:
• кабинет заведующей производством;
• комната персонала;
• помещения для временного хранения чистого и грязного белья;
• санитарный узел для персонала;
• душевая для персонала;
• помещение для хранения уборочного инвентаря и приготовления дезинфицирующих растворов.
Инженерные помещения первого этажа
Для ввода и распределения инженерных коммуникаций предусмотрено помещение индивидуального теплового пункта (ИТП).
Второй этаж блока «Б» (зона начального образования)
На втором этаже размещаются:
• 1 учебный кабинет для четвёртых классов;
• кабинет иностранного языка;
• игровая комната;
• рекреационная зона.
Спортивный блок (второй этаж, для учащихся 1–4 классов)
В состав блока входит спортивный зал размерами 9,88 × 17,96 м. При зале предусмотрены следующие вспомогательные помещения:
• снарядная (инвентарная);
• раздевальная для тренера с душевой и санитарным узлом;
• раздевальные для мальчиков и девочек с отдельными душевыми и санитарными узлами;
• раздевальное помещение для маломобильных групп населения (МГН), оборудованное унитазом и душевой кабиной;
• помещение для хранения уборочного инвентаря и приготовления дезинфицирующих растворов.
Для учебных блоков принята конструктивная схема с несущими кирпичными стенами и сборными перекрытиями из пустотных железобетонных плит. Покрытие здания сформировано из сборных железобетонных плит, опирающихся на металлические балки и кирпичные стены. Класс конструктивной пожарной опасности сооружения — С0, степень огнестойкости — II.
Наружные и внутренние несущие стены выполнены кирпичными общей толщиной 380 мм. Конструкция стены включает наружный облицовочный слой толщиной 120 мм, закреплённый на гибких стеклопластиковых связях, и внутренний слой из эффективного теплоизоляционного материала. Кирпич для несущих стен: марка КР-р-по 250×120×65 /1НФ/125/2,0/50 по ГОСТ 530-2012, укладка на растворе марки М100. Кирпич для облицовочного слоя: марка КР-р-пу 250×120×65 /1НФ/125/2,0/50 по ГОСТ 530-2012, укладка на растворе марки М100.
Перегородки — кирпичные, из кирпича марки КР-р-по 250×120×65 /1НФ/100/2,0/35 по ГОСТ 530-2012, на растворе марки М50. Перемычки — сборные железобетонные. Спецификация и ведомость перемычек приведены в приложении Д.
Балки покрытия в спортивном и актовом залах — стальные, выполненные из двутавров по СТО АСЧМ 20-93, а также сварные балки. Применяемая сталь — марки С345. Лестницы — сборные железобетонные ступени, укладываемые на стальные косоуры из швеллера 20П по ГОСТ 8240-97. Балки лестничных маршей — из швеллера 22П и 27П по ГОСТ 8240-97. Марка стали — С345.
Плиты перекрытия и покрытия — сборные железобетонные многопустотные. Стены цоколя — из фундаментных блоков ФБС.
Монолитный каркас выполняется из бетона класса В25 с нормируемыми показателями морозостойкости F100 и водонепроницаемости W4. Параметры элементов: колонны сечением 400×400 мм, балки сечением 400×600 мм (высота), монолитное перекрытие толщиной 200 мм.
Кровля — плоская, бесчердачного типа, рулонная.
Предусмотрена конструктивная огнезащита следующих элементов: балок покрытия — до предела огнестойкости R90, стальных элементов лестниц — до предела огнестойкости R60. Огнезащита выполняется цементной штукатуркой толщиной 30 мм по армирующей сетке.
Несущая способность одной сваи при полностью водонасыщенном состоянии грунта составляет 56 тонн, при этом расчётная нагрузка, передаваемая на сваю, не превышает 40 тонн.
Применяются забивные сваи длиной 6 метров с поперечным сечением 300×300 мм. Для изготовления свай используется бетон класса В25 с нормируемыми показателями морозостойкости F200 и водонепроницаемости W6.
Ростверки выполняются из тяжёлого конструкционного бетона класса В25 (F200, W6) по ГОСТ 26633-2015, с применением в качестве рабочей арматуры стержней класса А500С по ГОСТ Р 52544-2006.
Для предотвращения деформаций, вызванных морозным пучением грунтов, под ростверками, расположенными по периметру здания выше глубины сезонного промерзания, предусмотрена укладка теплоизоляционных плит марки ПСБ-С-25.
Строительная система здания — монолитная, конструктивная система — каркасная. Блок Б представляет собой двухэтажное сооружение, в котором размещены пищеблок, актовый зал и спортивный зал. Для данной части здания принят монолитный железобетонный каркас, включающий колонны и монолитное железобетонное балочное перекрытие, в сочетании с наружными несущими стенами из кирпича.

Технико-экономические показатели проекта:
Общая площадь здания 𝑆общ в т.ч.    м2    4377,9
1 этаж    м2    1752,6
2 этаж    м2    1472,3
Тех. этаж    м2    1153,0
Площадь застройки    м2    1752,6
Полезная площадь здания 𝑆пол    м2    2244,58
Расчётная площадь здания 𝑆рас    м2    1853,84
Этажность    эт.    3;2
Высота этажа:        
-Актового зала    м    5,0
-Спортивного зала    м    6,0
-Основных помещений    м    3,3
Строительный объем 𝑉стр, всего, в том числе    м3    26167,5
-надземной части    м3    26167,5
-подземной части    м3    -
Мощность на все здание    1 место    480
Планировочный коэффициент 𝐾пл     0,42
Объемный коэффициент 𝐾об            14,27

ЗАКЛЮЧЕНИЕ
Итогом выполнения бакалаврской работы в форме проектных материалов стала разработка проектно-сметной документации на строительство блока Б школы вместимостью 480 учащихся в городе Железногорске. Проектная документация разработана в строгом соответствии с утверждённым заданием на проектирование.
Технические решения, заложенные в проекте, соответствуют требованиям экологических, санитарно-гигиенических, противопожарных и иных норм, действующих на территории Российской Федерации, и обеспечивают безопасную эксплуатацию объекта для жизни и здоровья людей при условии соблюдения предусмотренных проектом мероприятий.
В процессе проектирования были проработаны основные вопросы, связанные с разработкой и строительством блока:
выполнены архитектурно-планировочные и объёмно-конструктивные решения;
проведено сравнение двух вариантов свайных фундаментов (с забивными и буронабивными сваями);
разработана технологическая карта на монтаж монолитного каркаса;
составлен строительный генеральный план на период возведения надземной части;
определена стоимость строительства на основе укрупнённых нормативов цены строительства (НЦС), а также стоимость работ по устройству монолитного каркаса.
Все задачи, поставленные при выполнении бакалаврской работы, решены в полном объёме. Принятые конструктивные решения обеспечивают необходимую прочность и устойчивость здания, а разработанные технологическая карта и строительный генеральный план гарантируют рациональный подход к использованию материалов и организации строительного процесса.
Теоретическая и проектная ценность полученных результатов заключается во внедрении решений, направленных на создание комфортных условий для осуществления учебного процесса в школе.
 



Содержимое архива


Проекты (работы, чертежи) можно скачать став участником и внеся свой вклад в развитие. Как скачать ? подробнее >>>>>>>
Последний раз скачивали:

 
Cloudim - онлайн консультант для сайта бесплатно.