Добавить проект
Прочитать правила
Платный доступ
Авторизация:
Информация


экспликация помещений  /  Wiki

Показать описание раздела

Важной частью строительных чертежей и общей проектной документации является экспликация помещений. ГОСТ регламентирует ее внешний вид и содержание. Как правило, экспликацию выполняют в табличной форме.
Удобной, с точки зрения пользования, и концентрированной по наполнению является экспликация помещений. Таблица позволяет выгодно скомпоновать технико-экономические показатели какого-либо помещения.
Примером наибольшего распространения этого документа выступает план. Экспликация помещений размещается в стороне от основного чертежа, обычно сбоку или в нижней его части. Ширина и высота строк, количество столбцов, толщина линий регламентируется ГОСТом.
Обычно в таблице содержатся следующие данные:
- номер, обозначающий часть помещения, или часть здания;
- наименование, говорящее о функциональном предназначении конкретной части помещения на плане;
- площадь в квадратных метрах (либо другой технический показатель) показанного на плане участка.
Поэтажная экспликация помещений вмещает в себя сбор данных по многоэтажному зданию. Здесь могут фигурировать различные качественные либо количественные показатели:
- общая площадь по каждому этажу;
- информация по функциональным зонам этажей;
- жилой, технической и общей площади по этажам и т.д.
Экспликация помещений в «АрхиКаде» размещается не только на планах, но и на других видах чертежей, например, эскизах. Экспликацию также используют не только как составную часть архитектурных либо конструкторских чертежей. Часто подобные таблицы имеют силу отдельного юридического документа, технических паспортов при оформлении права собственности на жилье либо коммерческие помещения.
Чтобы грамотно составить экспликацию, необходимо:
- подсчитать площадь каждой части помещения;
- суммировать полученные результаты;
- сравнить их с общим периметром здания по внутреннему контуру за вычетом площади перегородок.
Большое распространение получила экспликация при описании конструкции полов. В этом случае табличная форма отображает количественные показатели каждого слоя, используемого при устройстве полов. Это позволяет сметчику быстро подсчитать объем и стоимость строительных материалов.

Проекты содержащие в своем описании "экспликация помещений". Подборка не содержит всех проектов, не нашли по метке воспользуйтесь поиском по каталогу проектов.
КМ Здание для переработки лесоматериалов (пилорама) 12 х 12 м РП КМ Здание для переработки лесоматериалов (пилорама) 12 х 12 м | Год выпуска: 2015
Район строительства - 1В. Зона влажности - сухая. Сейсмичности нет. Степень долговечности - II. Уровень ответственности-II. Класс здания - II. Степень огнестойкости здания - IIIа. Степень долговечности здания - II. Класс функциональной пожарной опасности - Ф5.1. Класс конструктивной пожарной опасности - С1. Высота - 7 м. Здание каркасное из стальных колонн(двутавр), балок перекрытия(двутавр), обшивка наружных стен профлист. Здание не отапливаемое. фундаменты ростверк и сваи. Кровля двускатная с организованным водостоком. Уклон кровли 8°.
Дата: 26.4.15 18:12 | Поместил: Olga2016 | Размер: 918.58 KB | Скачали: 11 Платформа: AutoCad | Рб:
2
Курсовой проект - Общественное здание 98,62 х 43,90 м в г. Киров КП Курсовой проект - Общественное здание 98,62 х 43,90 м в г. Киров | Год выпуска: 2015
Класс здания - ІІ. Степень долговечности - ІІ. Степень огнестойкости - ІІ. Здание 3-ох и 9-ти этажное. Здание компонуется из зон разного назначения, каждая из которых состоит из группы помещений либо комнат, объединённых объёмом вестибюлей, коридоров и лестниц. Проектируемое здание в плане имеет форму многоугольника. Конструктивная схема с продольными несущими стенами. Общая высота здания 35,6 м, высота этажа 3,3 м. Вход в здание решен непосредственно через лестничную клетку. Фундаменты палевые, состоят из свай и ростверков. Внешние и внутренние стены выполнены из обычных шлакобетонных блоков. / 4 листа чертежи + ПЗ.
Дата: 20.4.15 14:06 | Поместил: Riddle145 | Размер: 2.69 MB | Скачали: 6 Платформа: AutoCad | Рб:
2
Курсовой проект - Двухэтажный 4 - х квартирный жилой дом 21,6 х 10,2 м в г.Саратов КП Курсовой проект - Двухэтажный 4 - х квартирный жилой дом 21,6 х 10,2 м в г.Саратов | Год выпуска: 2014
ЗабГУ / Инженерно-Строительный Факультет / Кафедра Строительства / дисциплина "Основы архитектуры и строительных конструкций"/ Климатический район - 11В. Здание несложной формы в плане, высотой 9,11 м от уровня земли, с высотой этажа 2,54 м. Площади помещений дома определены с учетом расстановки необходимого набора мебели и оборудования. Общая площадь здания – 305,12 м2; жилая площадь здания равна 149,52 м2 и включает следующие помещения: гостиные, детские и спальные комнаты. Конструктивная схема: здание с продольными несущими стенами. В проекте приняты фундаменты монолитные ленточные железобетонные. Для кладки наружных и внутренних стен применяется сплошной силикатный кирпич. / 2 листа чертежи + ПЗ.
Дата: 4.4.15 11:23 | Поместил: ruslan010489 | Размер: 983.35 KB | Скачали: 2 Платформа: AutoCad | Рб:
2
Курсовой проект - Реконструкция пятиэтажного четырехсекционного многоквартирного крупноблочного дома серии 1-439А 67,2 м х 12,0 м КП Курсовой проект - Реконструкция пятиэтажного четырехсекционного многоквартирного крупноблочного дома серии 1-439А 67,2 м х 12,0 м | Год выпуска: 2008
МГТУ. Проект по дисциплине «переустройство и реабилитация жилых зданий». Исходным вариантом является дом с высотой этажа 2,8 м. Здание имеет прямоугольную форму в плане и меридианальную ориентацию На каждом этаже имеются четыре квартиры: 3 двухкомнатные квартиры и 1 однокомнатная. Все квартиры рассчитаны на посемейное заселение. Они состоят из прихожей, совмещенного санузла, кухни и смежных жилых комнат. Начиная со второго этажа перед всеми главными комнатами расположены балконы. Полносборное здание с продольными несущими стенами из легкобетонных блоков и перекрытиями из длинномерных многопустотных железобетонных плит. 8 листов чертежи (планы, разрезы, фасады, до и после реконструкции, мансарда) + ПЗ.
Дата: 1.8.08 08:58 | Поместил: Аноним | Размер: 6.87 MB | Скачали: 14 Платформа: ArchiCad | Рб:
2
АР АС Двухэтажный одноквартирный жилой дом с цокольным и мансардным этажом 19 х 18 м в Нижегородской области РП АР АС Двухэтажный одноквартирный жилой дом с цокольным и мансардным этажом 19 х 18 м в Нижегородской области | Год выпуска: 2011
Климатический район IIВ. Кладку наружных стен выполняют из керамического полнотелого кирпича пластического прессования М150 (ГОСТ 379-95 ) на растворе М50 с облицовкой "Афонинским" лицевым керамическим кирпичом, толщина кладки 770 мм. Площадь коттеджа - 478,75 м2. / Состав: 2 комплекта чертежей
Дата: 16.2.15 15:45 | Поместил: Endron | Размер: 8.53 MB | Скачали: 20 Платформа: Компас, PDF | Рб:
2
Курсовой проект - Двухэтажный одноквартирный жилой дом из мелкоразмерных элементов 17,24 х 13,55 м в г. Орел КП Курсовой проект - Двухэтажный одноквартирный жилой дом из мелкоразмерных элементов 17,24 х 13,55 м в г. Орел | Год выпуска: 2015
СТИ / Область применения – район с обычными геологическими условиями, расчетная температура наружного воздуха минус двадцать шесть°С. Грунт по геологическим данным – суглинки. Класс здания - 3; огнестойкость- 3 степень. Ориентация здания на местности неограниченная. Высота этажа- 3.0 м. Высота здания – 8.50 м. В здании предусмотрено чердачное помещение. Фундаменты ленточные; стены наружные кирпичные; перегородки кирпичные; перекрытия многопустотные железобетонные; лестницы деревянные; крыша стропильная, покрытие волнистые асбестоцементные листы. / Состав: 3 листа чертежи + ПЗ.
Дата: 4.2.15 08:49 | Поместил: CorFaeron | Размер: 1.96 MB | Скачали: 6 Платформа: AutoCad | Рб:
2
АС Пожарное депо 21 х 18 м на 2 автомашины Урал - 4320 РП АС Пожарное депо 21 х 18 м на 2 автомашины Урал - 4320 | Год выпуска: 2014
Главным помещением пожарного депо является гараж, предназначенный для хранения в полной боевой готовности пожарных автомобилей. Помещение гаража предназначено для стоянки 2 пожарных машин марки: Автоцистерна пожарная АЦ-7,5-40 на шасси Урал-4320. Модульная Пожарные депо каркасного типа, запроектировано из металлических конструкций. Стены из навесных панелей типа «сэндвич». Кровля – кровельные панели типа «сэндвич» по металлическим прогонам. Материал металлических конструкций – сталь С 235 по ГОСТ 27772-80.
Дата: 6.12.14 12:09 | Поместил: Аноним | Размер: 7.08 MB | Скачали: 34 Платформа: AutoCad | Рб:
3
АС Магазин 8 х 9 м в Воронежской области РП АС Магазин 8 х 9 м в Воронежской области | Год выпуска: 2014
Здание магазина – одноэтажное, прямоугольное в плане, с площадкой 5.0 х 8.0 м. Высота внутренних помещений составляет 3.00 м. Конструктивные решения представляют каркасные и стеновые схемы. Они обеспечивают пространственную устойчивость при любых воздействиях. Конструктивная схема принята каркасная со стойками и колоннами и пролетными фермами. Стойки выполнены их труб квадратного сечения. Колонны выполнены из двутавра. Фундамент - монолитная плита на песчаной подушке толщиной 400 мм.
Предполагается устройство бетонной подготовки толщ. 100 мм.
Дата: 2.11.14 09:33 | Поместил: sprankor | Размер: 226.94 KB | Скачали: 27 Платформа: AutoCad | Рб:
2
АУПТ Магазин в г. Липецк РП АУПТ Магазин в г. Липецк
Защите системой автоматического пожаротушения тонкораспылённой водой подлежат, офисные помещения, комнаты отдыха, помещения торговых залов и подсобно-бытовые помещения магазина.Защищаемые помещения расположены в двухэтажном здании. Наружные стены здания – кирпичные, из керамического кирпича, оштукатурены. Внутренние перегородки – кирпичные и каркасно-обшивные из ГКЛ. Оконные блоки – алюминиевые, заполнение оконных проемов – стеклопакеты, дверные блоки – фанерованные, дверные коробки – из твердых пород дерева. Имеются три выхода из здания. Помещения относятся к категории В3 - В4, Г и Д по пожарной опасности по НПБ 105-03 и зоне класса П - IIа по ПУЭ. В проекте 5 листов чертежи: Схема электрических подключений, План расположения модулей пожаротушения, План расположения оборудования пожарной сигнализации, План расположения оборудования системы оповещения, Экспликация помещений. Пояснительная записка к проекту прилагается.
Дата: 2.7.14 05:20 | Поместил: Аноним | Размер: 1.35 MB | Скачали: 27 Платформа: AutoCad | Рб:
2
ПС Производственный цех завода РП ПС Производственный цех завода | Год выпуска: 2013
В цеху (3 этажа) установлена автоматическая установка пожарной сигнализации с использованием оборудования фирмы "BOLID" и система оповещения и управления эвакуацией людей при пожаре 2 типа. / Состав: комплект чертежей + спецификация + ПЗ.
Дата: 9.6.14 18:48 | Поместил: Аноним | Размер: 460.02 KB | Скачали: 25 Платформа: AutoCad | Рб:
1
Курсовая работа - Механический цех предприятия машиностроения г.Волгоград КП Курсовая работа - Механический цех предприятия машиностроения г.Волгоград | Год выпуска: 2014
ТГУ / По дисциплине: «Архитектура гражданских и промышленных зданий» / Кафедра ГСХ / Состав: чертежи 2 листа (план этажа, разрезы прод. и поперечн., фысад, план кровли, узлы, генплан, план здания АБК, совмещенная схема плит покрытий, фундаментов) + Пояснительная записка
Дата: 28.5.14 06:38 | Поместил: Аноним | Размер: 402.22 KB | Скачали: 17 Платформа: Компас | Рб:
1
Курсовой проект - Кинотеатр 36,00 х 48,38 м в г. Тюмень КП Курсовой проект - Кинотеатр 36,00 х 48,38 м в г. Тюмень | Год выпуска: 2014
Климатический район – II. Степень огнестойкости II. Функциональная пожарная опасность Ф-3.1, Ф-2.1, Ф-3.2. Территория свободна от застройки, расположена в черте города. Количество одновременно прибывающих человек в здании 550 чел. Этажность – 2 этажа; высота этажа 3,9 м; высота подвального этажа 2,6 м. Компактная композиционная схема на основе амфиладно-кольцевой структуры группировки помещений. Несущие элементы здания сложены в стержневую (каркасную) конструктивную систему. Фундамент свайный, состоящий из 455 свай, соединенных монолитным ростверком, высотой 400 мм, по подстилающему слою из бетона, толщиной 100 мм. Наружные стены самонесущие. Кладка выполнена из пеноблоков размером 625×250×300 массой 23,4кг. Внутренние перегородки: стекло, гипсокартонные панели, кладка из пеноблоков размером 600×250×125, массой 7,5кг. 5 листов чертежи(3 плана, 2 фасада, 2 разреза, план свай, генплан, экспликация помещений) + ПЗ.
Дата: 14.5.14 10:45 | Поместил: Аноним | Размер: 2.41 MB | Скачали: 35 Платформа: AutoCad | Рб:
2
Курсовой проект - Литейный цех 72 х 42 м в г. Хабаровск КП Курсовой проект - Литейный цех 72 х 42 м в г. Хабаровск | Год выпуска: 2008
ИжГТУ / Кафедра “Архитектура” / Дисциплина “Архитектура промышленных и гражданских зданий и сооружений” / Здание литейного цеха относится к климатическому району – 1В. Одноэтажное здание литейного цеха, с общей площадью 3024,00 м2; класс здания по степени долговечности = 3; класс здания по степени огнестойкости = 3; фундамент – столбчатый монолитный железобетонный; стены – панельные; покрытия – рубероид. Высота – 12,0 м.; 16,2 м. / 2 листа чертежи + ПЗ.
Дата: 6.4.14 20:59 | Поместил: Аноним | Размер: 1.70 MB | Скачали: 23 Платформа: Компас | Рб:
1
Курсовой проект -  Разработка в составе ППР "ТК" "КП" и "СГП" на  девятиэтажную крупнопанельную жилую блок-секцию в  г.Вологда КП Курсовой проект - Разработка в составе ППР "ТК" "КП" и "СГП" на девятиэтажную крупнопанельную жилую блок-секцию в г.Вологда | Год выпуска: 2013
В составе проекта 3 листа чертежи ТК(Схема организации работ на этаже; Привязка крана; Почасовой график производств; Диаграмма крана; Тех. характеристика крана; Схема строповок), КП(Календарный план производства работ, график движения рабочих, график работы механизмов), СГП(Строительный генеральный план, условные обозначения, Экспликация помещений быт. городка.) + ПЗ.
Дата: 14.2.14 14:17 | Поместил: Damir709 | Размер: 832.30 KB | Скачали: 41 Платформа: AutoCad | Рб:
1
Дипломный проект (техникум) - Кафе на 200 мест 24 х 24 м в г. Чебоксары ДП Дипломный проект (техникум) - Кафе на 200 мест 24 х 24 м в г. Чебоксары | Год выпуска: 2012
БОУ ЧР СПО ЧТСГХ. Климатический район – IIB. Класс капитальности (ответственности) – II. Степень огнестойкости – II. Степень долговечности – II. Класс функциональной пожарной опасности – Ф3.2. Класс конструктивной пожарной опасности – С1. Здание трёхэтажное, высота этажа 3,3 м; бесподвальное. Планировочная схема здания – коридорная. Конструктивная система здания – каркасная. Конструктивная схема –с продольным расположением ригелей. Фундаменты – сборные железобетонные стаканного типа под железобетонные колонны, класс бетона В15. Стены -кирпич. 10 листов чертежи (архитектура, конструкции, фундаменты, организация, технология, благоустройство) + ПЗ.
Дата: 15.1.14 12:03 | Поместил: Аноним | Размер: 1.49 MB | Скачали: 119 Платформа: AutoCad | Рб:
4
ИОС Водоснабжение и водоотведение детского сада на 100 мест РП ИОС Водоснабжение и водоотведение детского сада на 100 мест | Год выпуска: 2012
В данном комплекте предусматривается разработка внутренних сетей водоснабжения и водоотведения детского сада: -система хозяйственно-питьевого противопожарного водопровода (В1); - система горячего водоснабжения (Т3); - система хозяйственно-бытовой канализации (К1); - система производственной канализации (К3).
Дата: 26.12.13 05:06 | Поместил: IrinaZaremba | Размер: 2.33 MB | Скачали: 46 Платформа: AutoCad | Рб:
2
Дипломный проект - Спортивно - оздоровительный комплекс 66 х 48 м в с.Новые Параты ДП Дипломный проект - Спортивно - оздоровительный комплекс 66 х 48 м в с.Новые Параты | Год выпуска: 2012
МарГТУ / Кафедра СК и О / Здание комплекса запроектировано двухэтажным простой конфигурации в плане с габаритами в осях 48 на 66 метров. Высота помещения 1-го и 2-го этажа составляет 4 м. Класс ответственности здания -II. Степень огнестойкости - I. Степень долговечности -II. Шаг несущих конструкций 6м. За отметку 0,000 принят условно уровень чистого пола 1 этажа, что соответствует абсолютной отметке 186,28 м./ 11 листов чертежи + ПЗ.
Дата: 8.12.13 09:38 | Поместил: Alcohol11 | Размер: 8.64 MB | Скачали: 134 Платформа: AutoCad | Рб:
6
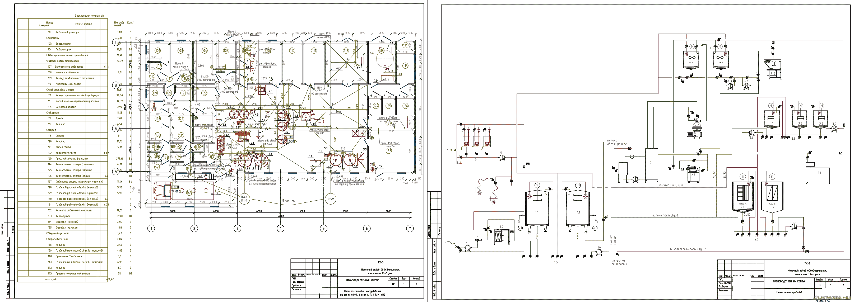
ТХ ВК ТС Технические решения для строительства молочного завода  мощностью 13 т. цельномолочной продукции в сутки РП ТХ ВК ТС Технические решения для строительства молочного завода мощностью 13 т. цельномолочной продукции в сутки | Год выпуска: 2013
Техническое решение молочного завода в с. Юдановка, Воронежской обл. разработан в соответствии с техническим заданием на проектирование. Техническим решением предусмотрена переработка молока в количестве 13 тонн в сутки.
Дата: 26.11.13 09:31 | Поместил: Аноним | Размер: 2.26 MB | Скачали: 55 Платформа: AutoCad | Рб:
3
АС Одноэтажный жилой дом 10,6 х 8,6 м в Краснодарском крае РП АС Одноэтажный жилой дом 10,6 х 8,6 м в Краснодарском крае | Год выпуска: 2011
Климатический район - III Б. Фундамент – ленточный, монолитный, из бетона марки М 200; Стены – кирпичные (кирпич М 75); Гидроизоляция стен – цементный раствор; Перегородки – кирпичные; Перекрытия – щиты перекрытий по деревянным балкам; Крыша – двухскатная, из асбестоцементных волнистых листов, либо металлопрофиль по деревянной обрешетке.
Дата: 12.10.13 13:52 | Поместил: Аноним | Размер: 1.65 MB | Скачали: 54 Платформа: PDF | Рб:
1
ТХ Пожарное депо РП ТХ Пожарное депо | Год выпуска: 2007
Рабочим проектом предусматривается новое строительство блочно-модульного «Пождепо на два выезда Фаинского месторождения».
Дата: 9.10.13 13:54 | Поместил: Аноним | Размер: 351.79 KB | Скачали: 28 Платформа: AutoCad | Рб:
1
« К началу 1 2 3 4 5 6 7 8 9 Далее»
 
Cloudim - онлайн консультант для сайта бесплатно.