Добавить проект
Прочитать правила
Платный доступ
Авторизация:
Информация


Электроснабжение магазина

  /  Метка
Показать описание раздела

При строительстве или реконструкции помещения для торговли разрабатывается проект электроснабжения магазина. Без проекта невозможно подключить объект торговли к электрическим сетям. На основании полученных технических условий разрабатывается схема снабжения магазина электрической энергией. Проектирование производится по действующим нормативам и требованиям заказчика.
Электроснабжение магазина характеризуется:
- высоким уровнем потребления электроэнергии;
- большим количеством оборудования, которое потребляет электроэнергию;
- необходимостью дополнительного источника энергии;
- высокими требованиями пожарной безопасности;
- обеспечением скрытой проводки кабеля;
- раздельным расположением силовых кабелей аварийного освещения;
- необходимостью освещения магазина в темное время;
- организацией энергопитания светящихся рекламных конструкций;
- организацией системы защиты при коротких замыканиях;
- необходимостью отопления, вентиляции и кондиционирования помещений.
Схема электроснабжения магазина разрабатывается с учетом высоких нагрузок на сеть и повышенных требований к пожарной безопасности.
Технические характеристики кабелей рассчитываются с учетом этих требований. Большое количество оборудования торговли требует бесперебойного снабжения электроэнергией. Это лампы для освещения, кассовые аппараты, холодильники и компьютеры. Отключение холодильника в продуктовом супермаркете, например, принесет магазину убытки. Прерывание работы компьютера приведет к потере информации.
Проект ЭС магазина определяет схему работы оборудования. Рассчитывается мощность, и нужное количество светильников и определяется план их размещения. Проектируются схемы расположения розеток. Определяется способ монтажа негорючих силовых кабелей. В магазинах используется скрытая проводка в специально оборудованных коробах на стене или под полом. Проект предусматривает выполнение чертежей, планов и схем энергоснабжения.
При проектировании, кроме того, разрабатывается однолинейная схема. Она представляет подробную схему расположения автоматов на электрическом щите, с указанием длины проводов для потребителей тока. Группы помещений для управления со щита предоставляет дизайнер проекта и заказчик. Однолинейная схема упрощает включение и выключение света в нужном отделе магазина.
Проектирование электроснабжения магазина проходит согласованно с командой дизайнеров, службой пожарного надзора, охранными и другими службами, что обеспечивает безопасную и стабильную работу магазина.

Сборник проектов собран в ручную для метки "Электроснабжение магазина".
Подборка не содержит всех проектов, не нашли по метке воспользуйтесь поиском по каталогу проектов.
Отфильтровать по группе:
          
Отметьте галочками нужную группу проектов для показу по назначению (КП - курсовой, ДП - дипломный, РП - рабочий проект), и нажмите "ок" по умолчанию показаны все группы.

ЭО Магазин РП ЭО Магазин | Год выпуска: 2009
Р / Перепланировка жилой однокомнатной квартиры в магазин непродовольственных товаров. / Состав: комплект чертежей + спецификация.
Дата: 16.12.10 20:28 | Поместил: CATY_2205 | Размер: 202.63 KB | Скачали: 59 Платформа: AutoCad | Рб:
1
ЭСН Внешнее электроснабжение магазина Рязанская обл. РП ЭСН Внешнее электроснабжение магазина Рязанская обл. | Год выпуска: 2009
Рабочий проект внешнего электроснабжение магазина 6кВт, 220В / Состав: комплект чертежей + спецификация
Дата: 16.9.10 09:50 | Поместил: Аноним | Размер: 278.77 KB | Скачали: 274 Платформа: AutoCad | Рб:
1
ЭО Ювелирный магазин РП ЭО Ювелирный магазин | Год выпуска: 2009
Р / Проект электроснабжения торгово-офисного помещения / Состав: комплект чертежей + размещение витрин (в pdf) + дизайн (в jpeg) + ПЗ.
Дата: 30.8.10 07:14 | Поместил: Аноним | Размер: 1010.30 KB | Скачали: 87 Платформа: AutoCad, PDF | Рб:
1
ЭОМ Магазин РП ЭОМ Магазин | Год выпуска: 2006
Внутреннее электроснабжение магазина (1 этаж). / Состав: комплект чертежей + спецификация.
Дата: 19.7.10 19:34 | Поместил: pangolin | Размер: 1.39 MB | Скачали: 72 Платформа: AutoCad | Рб:
1
ЭС Торговый центр с офисами РП ЭС Торговый центр с офисами | Год выпуска: 2009
По степени обеспечения надежности электроснабжения электроприёмники торгового центра и расположенного в нем магазина относятся ко второй категории. Потребная мощность торгового центра 150,0 кВт. Потребная мощность продовольственного магазина - 130,0 кВт. Напряжение сети 380/220 В с глухозаземленной нейтралью. Расчетная нагрузка торгового центра «МIХ» в связи с увеличением потребной мощности составляет 129,9 кВт. Система заземления принята типа TN – C – S.
Дата: 15.5.10 20:23 | Поместил: pangolin | Размер: 3.89 MB | Скачали: 201 Платформа: AutoCad,Visio | Рб:
1
ЭОМ АВК ПС Магазин РП ЭОМ АВК ПС Магазин | Год выпуска: 2009
Р / Проект содержит разделы электроснабжение (ЭОМ), автоматизация канализационной задвижки и электропитание узла управления (АВК), пожарная сигнализация (ПС) на оборудовании НВП "Болид", для магазина, который находится в цокольном этаже 43-х квартирного жилого дома. / Состав: 3 комплекта чертежей + спецификации.
Дата: 23.2.10 19:54 | Поместил: Аноним | Размер: 5.69 MB | Скачали: 191 Платформа: AutoCad | Рб:
1
ЭО Магазин смешанных товаров РП ЭО Магазин смешанных товаров | Год выпуска: 2006
РП / Проектом решается электроосвещение, электрооборудование и резервное электроснабжение магазина смешанных товаров ООО “Керамик” в п. Глебычево Выборгского р-на Лен. области. / Состав: комплект чертежей + спецификация.
Дата: 4.10.09 10:53 | Поместил: Аноним | Размер: 857.45 KB | Скачали: 165 Платформа: AutoCad | Рб:
1
ЭС Магазин продовольственных товаров РП ЭС Магазин продовольственных товаров | Год выпуска: 2009
Р / Данным комплектом рабочих чертежей предусмотрены работы по силовому электрооборудованию и электроосвещению продовольственного магазина N1. / Состав: комплект чертежей + спецификация
Дата: 29.8.09 05:16 | Поместил: SmirnovSL | Размер: 444.65 KB | Скачали: 237 Платформа: AutoCad | Рб:
1
ЭС Магазин РП ЭС Магазин | Год выпуска: 2009
Р / Электроснабжение магазина. / Состав: комплект чертежей + спецификация.
Дата: 26.8.09 08:01 | Поместил: Аноним | Размер: 429.06 KB | Скачали: 218 Платформа: AutoCad | Рб:
1
ЭС Электроснабжение магазина "Копейка" РП ЭС Электроснабжение магазина "Копейка" | Год выпуска: 2009
Основными потребителями являются электроприемники технологического оборудования, сантехнического оборудования, электроосветительные приборы. Категория надежности электроснабжения универсама - II, за исключением аварийного освещения, электроприемников противопожарных устройств и охранной сигнализации, а также компьютерных касс, которые относятся к потребителям I категории надежности и для которых выполнено устройство аварийного включения резерва (АВР) на вводах в силовые шкафы. Напряжение сети - 380/220 В; Установленная мощность - 80 кВт; Расчетная мощность - 72 кВт; Расчетный ток - 128 А; Максимальная потеря напряжения - 1,8%.
Дата: 17.8.09 10:48 | Поместил: pangolin | Размер: 1.08 MB | Скачали: 256 Платформа: AutoCad | Рб:
2
СКС Встроено-пристроенный блок обслуживания 32-х квартирного дома РП СКС Встроено-пристроенный блок обслуживания 32-х квартирного дома | Год выпуска: 2009
Р / Комплекс систем безопасности. Системы видеонаблюдения, контроля кассовых операций, озвучивания и структурированная кабельная система магазина на 8 касс. /
Дата: 15.7.09 08:25 | Поместил: Аноним | Размер: 4.60 MB | Скачали: 152 | Рейтинг: 9.00 (1 голос) Платформа: AutoCad | Рб:
1
ЭЛ Магазин непродовольственных товаров в г. Аксай РП ЭЛ Магазин непродовольственных товаров в г. Аксай | Год выпуска: 2008
РП / Электроснабжение магазина непродовольственных товаров в Ростовской обл. / Состав: комплект чертежей + спецификация.
Дата: 2.3.09 12:23 | Поместил: Аноним | Размер: 1.07 MB | Скачали: 305 Платформа: AutoCad | Рб:
1
ЭОМ Магазин РП ЭОМ Магазин | Год выпуска: 2009
РП / Электропроект магазина в торговом комплексе. Электропитание щита ЩР выполняется от шинопровода Busbar- 1BB9 основного абонента пятипроводной питающей линией, выполняемой кабелем ВВГнг 5x4 мм. Питающая линия защищена автоматическим термомагнитным выключателем S203 3P/25A(C) (ABB). Щит ЩР индивидуального исполнения. Все комплектующие изделия производства группы фирм АВВ. / Состав: комплект чертежей + спецификация.
Дата: 24.2.09 06:58 | Поместил: rooslan | Размер: 296.42 KB | Скачали: 183 Платформа: AutoСad | Рб:
1
ЭМ Внутренняя электрическая сеть продуктового магазина РП ЭМ Внутренняя электрическая сеть продуктового магазина | Год выпуска: 2007
Р / Внутренняя электрическая сеть маленького продуктового магазина реконструированного из жилой квартиры. / Состав: 1 лист чертеж + ПЗ.
Дата: 18.2.09 19:54 | Поместил: Аноним | Размер: 69.46 KB | Скачали: 128 Платформа: Компас | Рб:
1
ЭОМ Проект электроснабжения магазина "Перекресток" г. Москва РП ЭОМ Проект электроснабжения магазина "Перекресток" г. Москва | Год выпуска: 2006
Использована трехпроводная сеть для однофазных электроприемников и пяти-проводная сеть для трехфазных электроприемников.
Дата: 1.10.08 09:36 | Поместил: Аноним | Размер: 2.29 MB | Скачали: 453 Платформа: AutoCad | Рб:
1
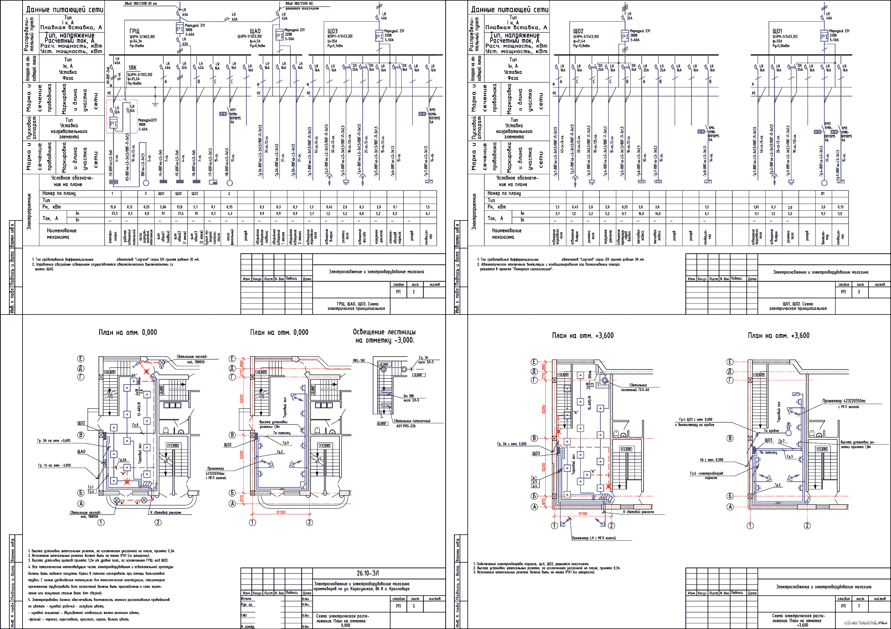
ЭЛ Магазин в г. Краснодар РП ЭЛ Магазин в г. Краснодар | Год выпуска: 2007
Р / Электроснабжение и электрооборудование промтоварного магазина 2 этажа. / Состав: комплект чертежей + спецификация.
Дата: 27.3.08 09:16 | Поместил: Аноним | Размер: 246.48 KB | Скачали: 378 Платформа: AutoCad | Рб:
1
ЭС Проект электроснабжения рекламной вывески с внутренним люминисцентным подсветом Рм - 0,9 кВт РП ЭС Проект электроснабжения рекламной вывески с внутренним люминисцентным подсветом Рм - 0,9 кВт | Год выпуска: 2007
Электроустановка запитывается от щита ЩР1, расположенного внутри здания и от щита ЩР2 находящегося на крыше магазина
Дата: 8.9.07 19:37 | Поместил: Аноним | Размер: 75.12 KB | Скачали: 532 Платформа: AutoCad | Рб:
1
« К началу 1 2 3 4
 
Cloudim - онлайн консультант для сайта бесплатно.