Добавить проект
Прочитать правила
Платный доступ
Авторизация:
Информация


Иностранные чертежи » Узбекистан : Рабочие проекты : Инженерные системы : Электроснабжение : ЭОМ Здание диализного центра в г. Ташкент

ЭОМ Здание диализного центра в г. Ташкент

| Рб:
4
| Платформа: AutoCad | Поместил: Assa_273 | Дата: 11.11.25 10:00 | Год выпуска: 2021 | Размер: 8.99 MB | Скачали: 0
Коротко о файле: Р / Электрическое освещение и силовое электрооборудование здания диализного центра (3 этажа + подвал). / Состав: 3 комплекта чертежей + спецификации.
ЭОМ Здание диализного центра в г. Ташкент

ЭО:
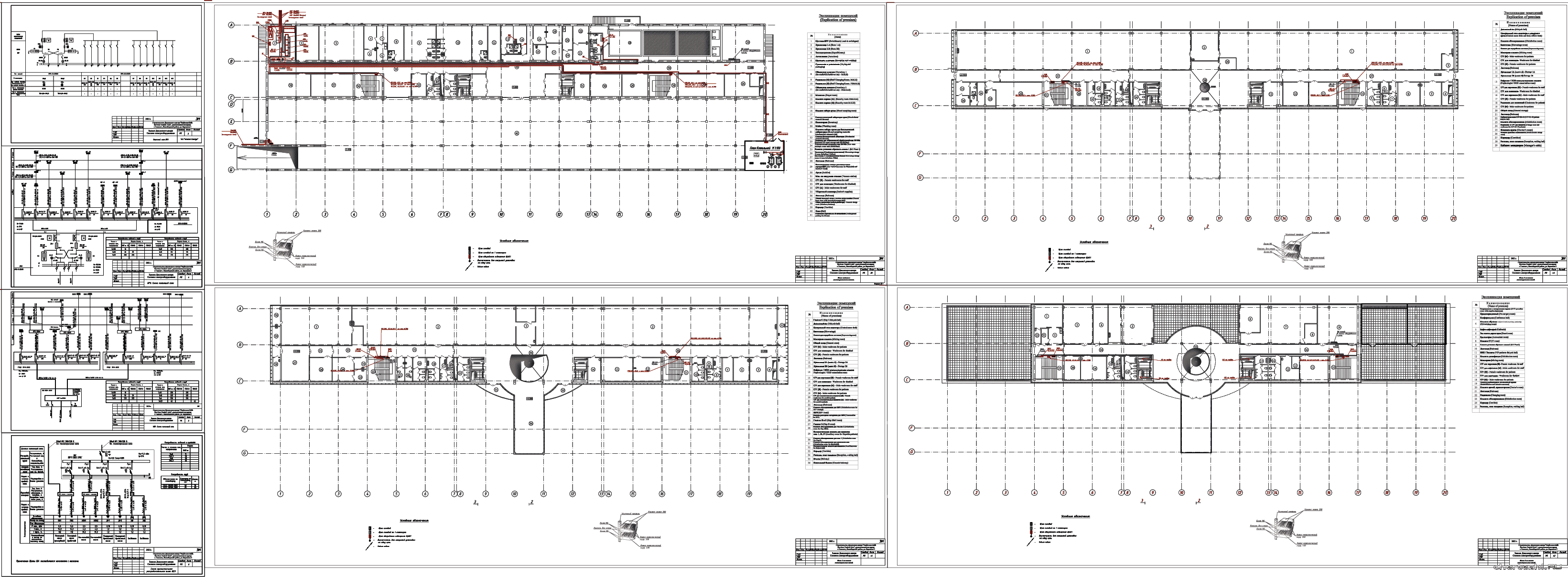
Проектом предусматривается устройство общего и аварийного освещения.
Общее освещение выполнено с проектируемых щитов ЩО1÷ЩО6 и ЩОп.
Аварийное освещение всего здания выполнено с проектируемых щитов аварийного освещения ЩАО1 и ЩАО2.
ЩАО1÷ЩАО2         - Расчетная мощность -7,74кВт;   Расчетная ток-12,4А
ЩО1÷ЩО6, ЩОп      - Расчетная мощность - 34,95;     Расчетная ток-56,03А
Освещение выполнено светильниками со светодиодными лампами.

Ведомость рабочих чертежей ЭО
Общие данные
Электроосвещение. План подвала на отм. "-3.600"
Электроосвещение. План 1-го этажа на отм. "-0.000"
Электроосвещение. План 2-го этажа на отм. "+4.800"
Электроосвещение. План 3-го этажа на отм. "+8.700"

ЭМ:
Проектом предусмотрено освещение и подключение силового электрооборудования здания для диализа.
Напряжение в сети 380/220 В.
Суммарная расчетная мощность объекта - 461,6 кВт
Из них 208 кВт потребитель I особой категории, 34 кВт потребитель I категории, 212,6 II категории.
Для электроснабжения потребителей I проектом предусмотрен АВР на 3 ввода с третьим вводом от дизельной подстанции, для особой категории дополнительно источники бесперебойного питания. для потребителей II категории установлен ВРУ на 2 независимых ввода.

Ведомость рабочих чертежей ЭМ
Общие данные
Опросный лист ВРУ
ВРУ. Схема питающей сети  
АВР. Схема питающей сети   
Схема принципиальная распределительная щита ЩСН  
ЩС осмос  1.  Расчётно -монтажная схема .   
ЩС-0.1. Расчётно-монтажная схема
ЩС-0.2. Расчётно-монтажная схема
ЩС-1.1. Расчётно-монтажная схема.   
ЩС-1.2. Расчётно-монтажная схема.   
ЩС-1.3. Расчётно-монтажная схема.   
ЩС -1.4. Расчётно -монтажная схема   
ЩС -2.1. Расчётно -монтажная схема
ЩС -2.2. Расчётно -монтажная схема   
ЩС -2.3. Расчётно -монтажная схема
ЩС -2.4. Расчётно -монтажная схема 
ЩС -3.0. Расчётно -монтажная схема    
ЩС -3.1. Расчётно -монтажная схема
ЩС -3.2. Расчётно -монтажная схема   
ЩС -3.3. Расчётно -монтажная схема    
ЩС осмос 2. Расчётно -монтажная схема   
Расчетно -монтажная схема. ЩВ  
Расчетно -монтажная схема. ЩВп 
Расчетно -монтажная схема . ЩВ 1.1
Расчетно -монтажная схема . ЩВ 2.1 
Расчетно -монтажная схема . ЩВ 3.1 
Расчетно -монтажная схема . ЩВ 3.2
План подвала с магистральными сетями .   
План 1-го этажа с магистральными сетями .   
План 2-го этажас магистральными сетями .   
План 3-го этажас магистральными сетями .   
План подвала с подключением силового электрооборудования  
План 1-го этажа с подключением силового электрооборудования  
План 2-го этажа с подключением силового электрооборудования 
План 3-го этажа с подключением силового электрооборудования  
План раскладки силовых кабелей для вентиляционного оборудования на отм . -3.600  
План раскладки силовых кабелей для вентиляционного оборудования на отм . 0.000 
План раскладки силовых кабелей для вентиляционного оборудования на отм . +4.800  
План раскладки силовых кабелей для вентиляционного оборудования на отм . +8.700  
План раскладки силовых кабелей для вентиляционного оборудования на отм . +13.200  
План расположения кабельных лотков для электрического кабеля подвала  
План расположения кабельных лотков для электрического кабеля 1-го этажа  
План расположения кабельных лотков для электрического кабеля 2-го этажа
План расположения кабельных лотков для электрического кабеля 3-го этажа 
Отключение вентиляции при пожаре. Схема электрическая принципиальная. Схема подключения  
Отключение вентиляции при пожаре. План раскладки кабелей в подвале  
План пожаротушения подвала  
План пожаротушения  1-го этажа  
План пожаротушения  2-го этажа  
План пожаротушения  3-го этажа

ЭОМ "Парковка":
Проектом предусматривается питание силового электрооборудование и устройство общего и аварийного освещения.
Питание силового электрооборудование предусмотрено трёхфазным переменным током напряжением 380/220В.
По степени обеспечении электроснабжения электроприемники:
-потребители I категории - Рр=50,12кВт;
-потребители III категории - Рр=1,3кВт; 
Общее освещение выполнено с проектируемого щита ЩОп. 
Аварийное освещение парковки выполнено с проектируемого щита АВРп.
Освещение выполнено светильниками со светодиодными лампами.

Ведомость рабочих чертежей ЭОМ "Парковка"
Общие данные
Силовое электрооборудование и электроосвещение. Общие данные
Электрооборудование сантехустройств.  Схема электрическая принципиальная.  АВРп.
Электроосвещение. План подвала на отм. "-3.600"
План раскладки силовых кабелей для вентиляционного оборудования на отм. -3.600
 


Содержимое архива

Проекты (работы, чертежи) можно скачать став участником и внеся свой вклад в развитие. Как скачать ? подробнее >>>>>>>
 
Cloudim - онлайн консультант для сайта бесплатно.