Добавить проект
Прочитать правила
Платный доступ
Авторизация:
Информация


Иностранные чертежи » Казахстан : Рабочие проекты : Инженерные системы : Электроснабжение : Жилые здания / помещения (э) : ЭМ Электроснабжение лифта МЖД

ЭМ Электроснабжение лифта МЖД

| Рб:
1
| Платформа: AutoCad | Поместил: serg222 | Дата: 16.12.25 12:10 | Год выпуска: 2021 | Размер: 149.34 KB | Скачали: 0
Коротко о файле: Р / Подключение лифта к Щитовой дома. / Состав: комплект чертежей + спецификация.
ЭМ Электроснабжение лифта МЖД

Основные показатели проекта: 
Категория электроснабжения - III
Напряжение питающей сети - 0,38 кВ
Установленная мощность - 7,5 кВт
Расчетный ток (номинальный) - 17,5 А
Расчетный ток (пусковой) - 43,7 А
Коэффициент мощности - 0,65
Максимальные потери напряжения - 1,11%

По надежности электроснабжения объект относится к электроприемникам третьей категории.
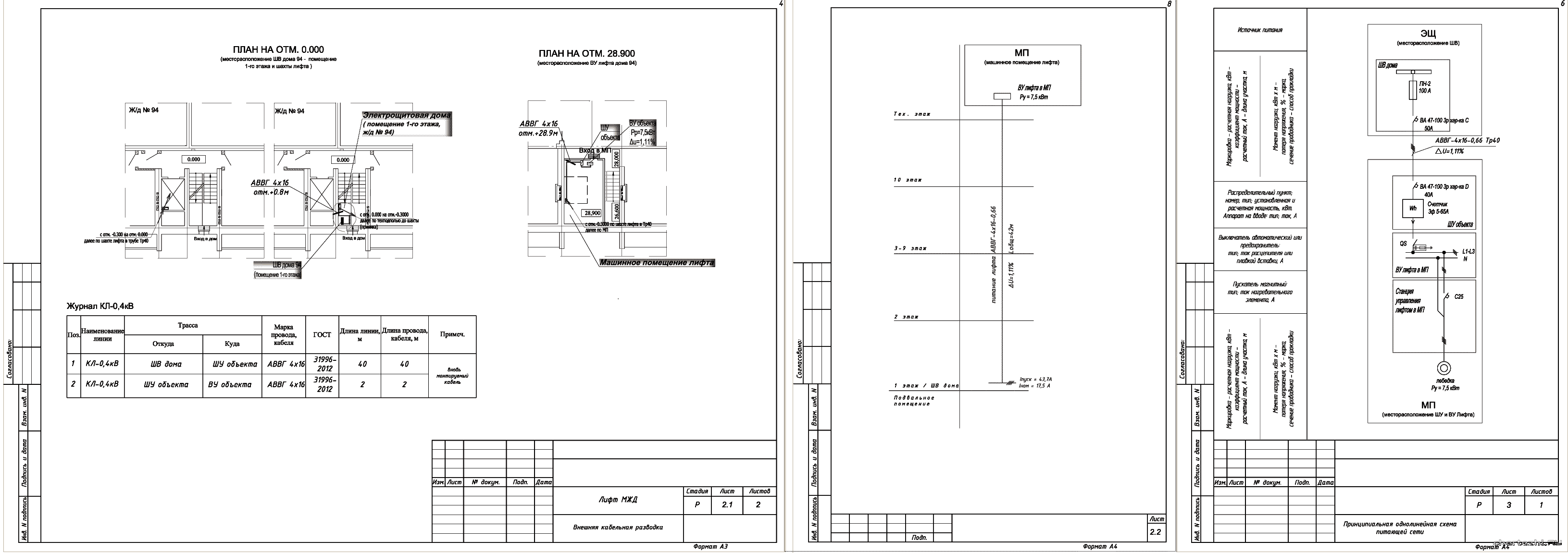
Электроснабжение предусмотрено от существующего источника питания - шкафа вводного (ШВ) дома.
Кабель выхода с группы от ШВ дома АВВГ 4х16, проложенный открыто с креплением скобами по строительным конструкциям по подвальному помещению дома.
Организация учета осуществляется на стороне потребителя в шкафу учета ШУ со счетчиком 380 В.
Выбор питающего кабеля 0,4 кВ от ШВ дома до ВР подключаемого объекта произведен согласно приложенных расчетов.
Кабельная разводка показана на отметке 0.000 и план на отметке 28.900.
Схема питающей сети от ШВ дома до ВУ лифта.

Ведомость рабочих чертежей
Общие данные
Внешняя кабельная разводка: план на отметке 0.000 и план на отметке 28.900.
Принципиальная однолинейная схема питающей сети 


Содержимое архива

Проекты (работы, чертежи) можно скачать став участником и внеся свой вклад в развитие. Как скачать ? подробнее >>>>>>>
 
Cloudim - онлайн консультант для сайта бесплатно.