Добавить проект
Прочитать правила
Платный доступ
Авторизация:
Информация


Чертежи » Рабочие проекты » Инженерные системы » Электрика и связь » Автоматизация / Автоматика » Просмотр раздела

Автоматизация / Автоматика


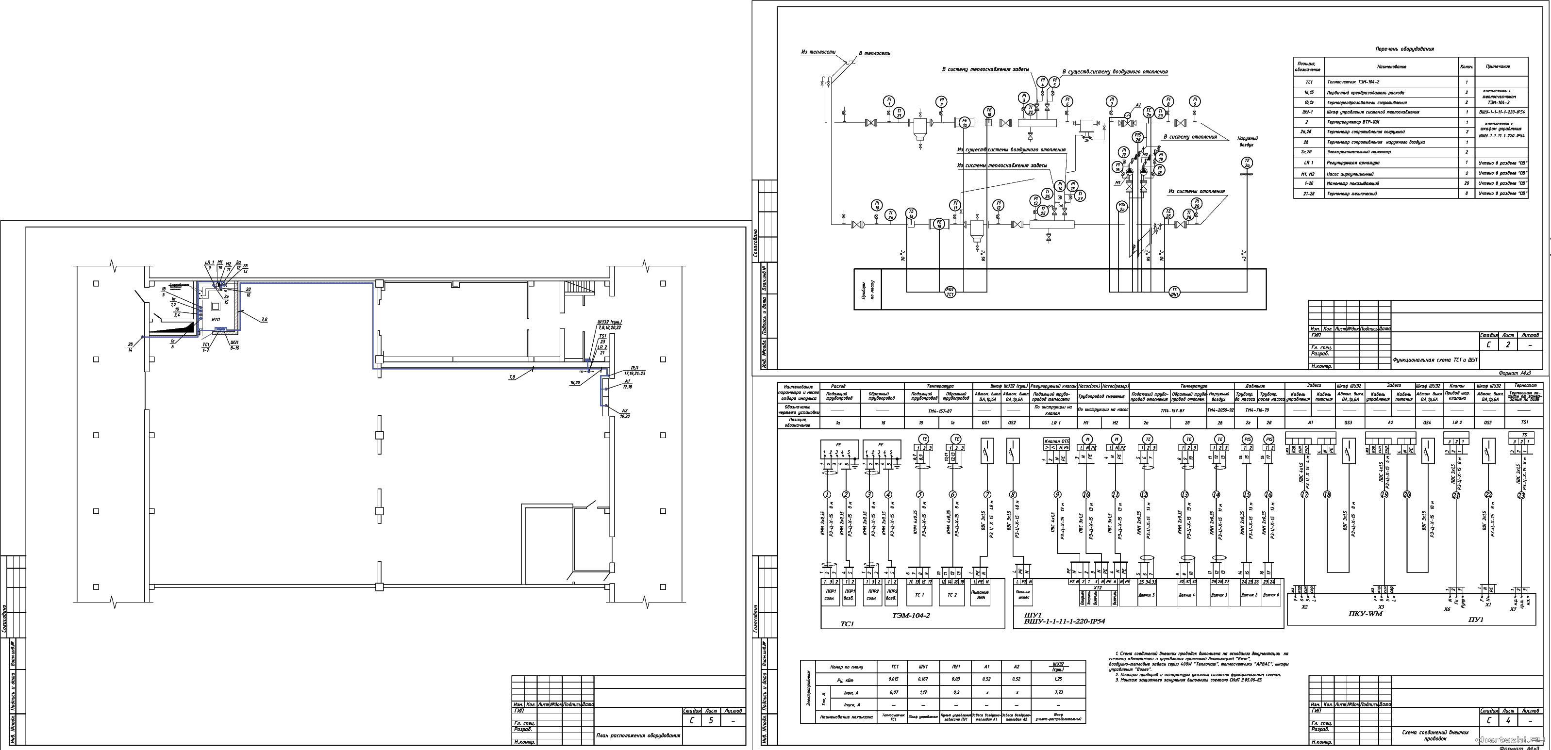
АОВ Автоматизация ИТП и воздушно-тепловых завес РП АОВ Автоматизация ИТП и воздушно-тепловых завес | Год выпуска: 2018
C / Проектом предусматривается оборудование ИТП приборами и средствами автоматизации, обеспечивающими коммерческий учет тепла, затрачиваемого на отопление, регулирование расхода тепловой энергии, а также автоматизацию управления воздушно-тепловыми завесами. ТЭМ-104-2,ШУ на базе ВТР-10И, ПУ-WM Тепломаш. / Состав: комплект чертежей + спецификация + ПЗ.
Дата: 21.3.25 07:02 | Поместил: Rider | Размер: 393.76 KB | Скачали: 0 Платформа: AutoCad | Рб:
1

АПК Жилой комплекс с объектами социально-общественного назначения в г. Минск РП АПК Жилой комплекс с объектами социально-общественного назначения в г. Минск | Год выпуска: 2021
С / Создание пропускной системы / Автоматизированный парковочный комплекс / Состав: комплект чертежей + спецификация + ПЗ + ведомости работ + задания
Дата: 13.8.24 06:56 | Поместил: Alex1995u | Размер: 17.34 MB | Скачали: 0 Платформа: AutoCad | Рб:
2

АТМ Блочно-модульная котельная на МВТ мощностью 0,5 МВт РП АТМ Блочно-модульная котельная на МВТ мощностью 0,5 МВт | Год выпуска: 2017
C / Автоматизация 2-х водогрейных котлов общей мощностью 0,5 МВт. / Состав: комплект чертежей + спецификация.
Дата: 8.12.22 09:53 | Поместил: ascarot | Размер: 206.46 KB | Скачали: 0 Платформа: AutoCad | Рб:
1

АВК Автоматизация пожарных насосов и пожарной задвижки РП АВК Автоматизация пожарных насосов и пожарной задвижки | Год выпуска: 2018
Стадия С / Реконструкция областной библиотеки им. М. Горького / Состав: комплект чертежей + Спецификация
Дата: 1.12.20 20:07 | Поместил: phoph86 | Размер: 1.38 MB | Скачали: 1 Платформа: AutoCad | Рб:
1

АТХ ЭМ ЭСН Автоматизация и электроснабжение насосной станции над артскважиной РП АТХ ЭМ ЭСН Автоматизация и электроснабжение насосной станции над артскважиной | Год выпуска: 2019
Стадия С / Рабочим проектом предусматривается ручное и автоматическое управление насосным агрегатом по уровню в водонапорной башне: - включение насоса при Р < 0,13 мПа; - отключение насоса при Р > 0,3 мПа. / Состав: 3 комплекта чертежей + Спецификация
Дата: 12.6.20 11:53 | Поместил: kskpromstroi | Размер: 3.75 MB | Скачали: 1 Платформа: AutoCad | Рб:
1

АГС Капитальный ремонт с элементами модернизации котельной в суде в Гомельской области РП АГС Капитальный ремонт с элементами модернизации котельной в суде в Гомельской области | Год выпуска: 2019
Р / Автоматизация оборудования газоснабжения котельной. / Состав: комплект чертежей + спецификация
Дата: 30.3.20 12:48 | Поместил: kirnika | Размер: 4.06 MB | Скачали: 0 Платформа: AutoCad | Рб:
1

АОВ АТХ Возведение производственно - складского здания со сносом зерносклада в г.Минск РП АОВ АТХ Возведение производственно - складского здания со сносом зерносклада в г.Минск | Год выпуска: 2018
Стадии С и А / Полный архитектурный и рабочий строительный проект устройства сетей автоматизации инженерных коммуникаций возводимого производственного цеха в г.Минске. / Состав: 2 комплекта чертежей (19 чертежей строительного проекта и 13 чертежей архитектурного) + спецификации.
Дата: 4.1.19 07:44 | Поместил: Hillen10035 | Размер: 4.69 MB | Скачали: 0 Платформа: AutoCad | Рб:
2

АХС АОВ АВК Автоматизация торгового магазина в г. Гродно РП АХС АОВ АВК Автоматизация торгового магазина в г. Гродно | Год выпуска: 2018
С / Автоматизация оборудования торгового продовольственного магазина. Автоматизация холодильных камер.(поддержание заданной температуры. Автоматическая регулировка температуры). Автоматическое закрытие клапан-отсекателя канализации( колодец выше уровня пола магазина). / Состав: 3 комплекта чертежи.
Дата: 22.7.18 11:39 | Поместил: Gilevich | Размер: 1.10 MB | Скачали: 0 Платформа: AutoCad | Рб:
2

АГСВ ГСВ Контроль загазованности помещения хлебозавода РП АГСВ ГСВ Контроль загазованности помещения хлебозавода | Год выпуска: 2017
Контроль загазованности помещения. ФСТ-03М. установка датчиков загазованности СН4, СО. Подключение клапана-отсекателя газа на печи Г4-ХПФ-16 №1 №2 / Состав: 3 комплекта чертежей (2 ГСВ (2 участка завода) + АГСВ ) + Спецификация
Дата: 14.11.17 05:55 | Поместил: pchelka | Размер: 518.10 KB | Скачали: 0 Платформа: AutoCad | Рб:
2

АТМ Автоматизация теплового пункта в пролете главного корпуса завода РП АТМ Автоматизация теплового пункта в пролете главного корпуса завода | Год выпуска: 2010
Стадия С / В проекте выполнена автоматизация теплового пункта с применением комплектного шкафа управления ЩА1 и ЩА2 производства ЧТПУП "Респект Билдинг". / Состав: комплект чертежей + ПЗ.
Дата: 24.10.17 17:46 | Поместил: vitbak | Размер: 527.49 KB | Скачали: 0 Платформа: AutoCad | Рб:
1
 
Cloudim - онлайн консультант для сайта бесплатно.