Добавить проект
Прочитать правила
Платный доступ
Авторизация:
Информация


Чертежи » Дипломные и курсовые работы : Строительство : Технология и оборудование строительных материалов : Курсовой проект - Цех по производству многопустотных плит покрытий

Курсовой проект - Цех по производству многопустотных плит покрытий

| Рб:
1
| Платформа: AutoCad | Поместил: Аноним | Дата: 16.4.13 11:33 | Год выпуска: 2012 | Размер: 405,46 KB | Скачали: 20
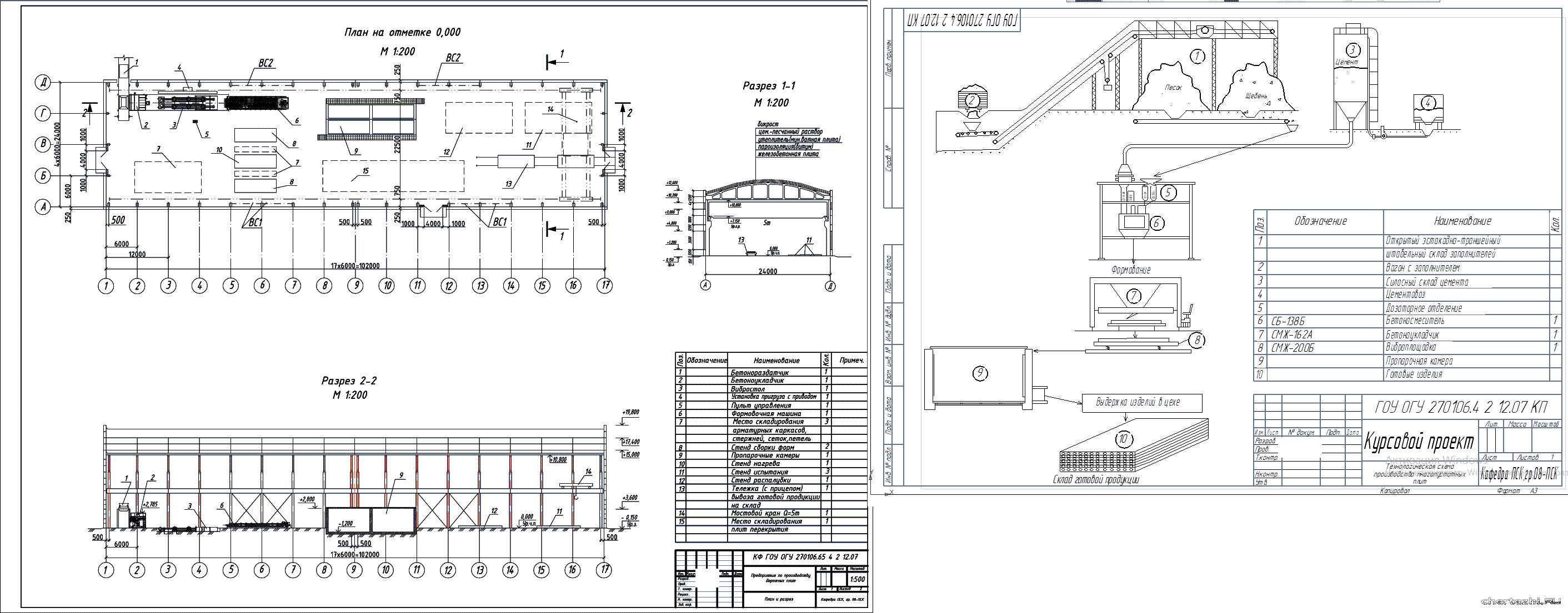
Коротко о файле: КФ ОГУ / Кафедра ПСК / В данном проекте разработан цех по производству многопустотных плит покрытий. Производительность – 20000 м3 в год. Произведен расчет состава смеси, подобрана технологическая схема, технологическое оборудование, проанализированы условия и основные мероприятия по охране труда при производстве железобетонных изделий. / Состав: 2 листа чертежи + ПЗ (46 страниц).
Курсовой проект - Цех по производству многопустотных плит покрытий

Содержание
Введение
1 Номенклатура
1.1 Расчет производственной программы
2 Характеристика сырьевых материалов
3 Выбор и обоснование способа производства и технологической схемы
3.1 Технологическая схема производства
4 Техническая часть
4.1 Расчет состава тяжелого бетона
4.2 Расчет фонда рабочего времени
4.3 Расчет материального баланса
4.4 Подбор оборудования
4.5 Расчет складов и промежуточных бункеров для хранения материалов
5 Контроль качества
6 Определение потребности в основных и вспомогательных рабочих
7 Охрана труда
Список использованных источников
Плиты должны удовлетворять установленным при проектировании требованиям по прочности, жесткости, трещиностойкости и при испытании их нагружением в случаях, предусмотренных рабочими чертежами, выдерживать контрольные нагрузки.

Плиты, применяемые в качестве несущей части лоджий, должны удовлетворять также дополнительным требованиям ГОСТ 25697.
Плиты следует изготовлять из тяжелого бетона по ГОСТ 26633, конструкционного легкого бетона плотной структуры средней плотности не менее 1400 кг/м3 по ГОСТ 25820 или плотного силикатного бетона средней плотности не менее 1800 кг/м3 по ГОСТ 25214 классов или марок по прочности на сжатие, указанных в рабочих чертежах этих плит.

Годовая программа выпуска изделий:

Наименование изделия

Размеры, мм

Масса изделия, т

Вид, класс (марка) бетона

Расход на изделие

Программа выпуска изделия

 

b

l

h

бетон , м3

сталь, кг

м3

шт

 
 

ПК 63.12-8

1190

6280

220

2,2

300

0,9

41,51

8000

4939

 

ПК 60.12-8

1190

5980

220

2.1

 

0,86

36,18

12000

7742

 

Итого

             

20000

12681

 

 



Содержимое архива


Проекты (работы, чертежи) можно скачать став участником и внеся свой вклад в развитие. Как скачать ? подробнее >>>>>>>
Последний раз скачивали: 2021-02-24 / 2021-01-21 / 2019-12-01

 
Cloudim - онлайн консультант для сайта бесплатно.