Добавить проект
Прочитать правила
Платный доступ
Авторизация:
Информация


Чертежи » Дипломные и курсовые работы : Архитектура : Коттеджи и дачи : Курсовой проект - 2-х этажный коттедж со стенами из мелкоразмерных элементов 10,8 х 11,7 м в г. Сальск Ростовской области

Курсовой проект - 2-х этажный коттедж со стенами из мелкоразмерных элементов 10,8 х 11,7 м в г. Сальск Ростовской области

| Рб:
1
| Платформа: AutoCad | Поместил: Hrikin | Дата: 30.11.25 04:58 | Год выпуска: 2025 | Размер: 435,49 KB | Скачали: 0
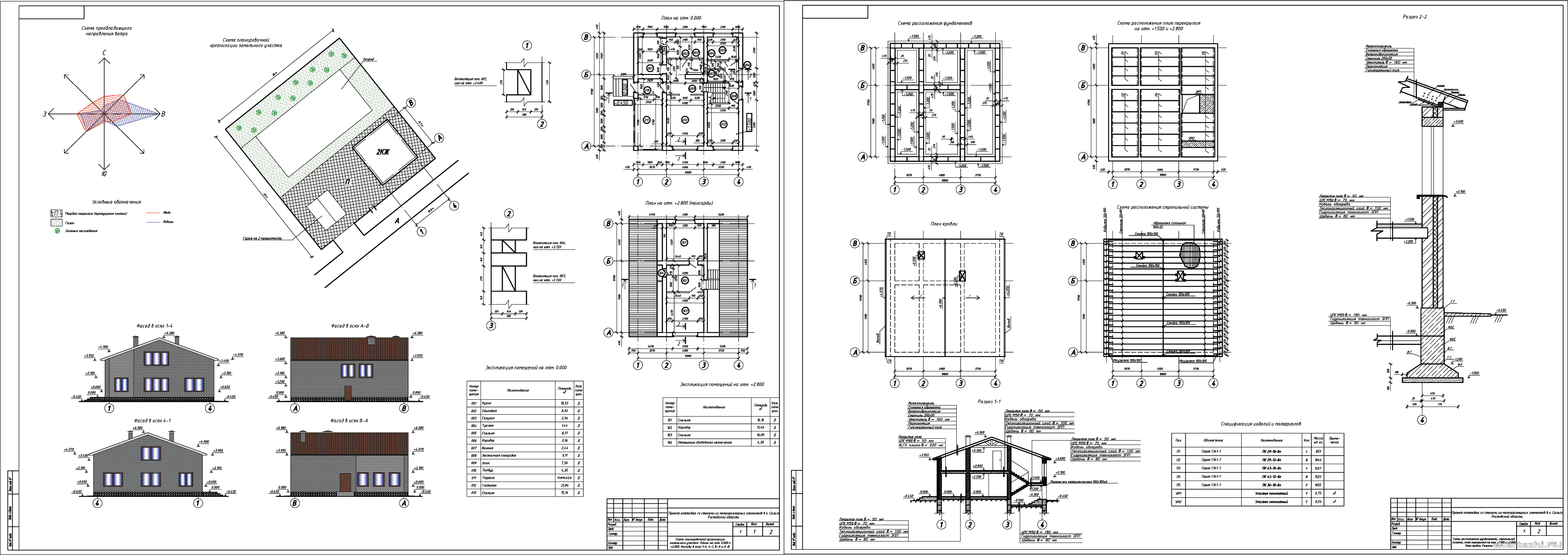
Коротко о файле: КубГТУ / АМТИ / Кафедра машиностроения / Разработать проект коттеджа со стенами из мелкоразмерных элементов в г. Сальск Ростовской области. / Состав: 2 листа чертежи (Схема планировочной организации земельного участка. Планы на отм. 0.000 и +2.800. Фасады в осях 1-4, 4-1, В-А и А-В. Схемы расположения фундаментов, стропильной системы, плит перекрытия на отм. +1.500 и +2.800. План кровли. Разрезы 1-1 2-2) + ПЗ (23 страницы).
Курсовой проект - 2-х этажный коттедж со стенами из мелкоразмерных элементов 10,8 х 11,7 м в г. Сальск Ростовской области

Содержание
Введение    8
Нормативные ссылки    9
Термины и определения    11
1 Генеральный план участка строительства    12
2 Архитектурные решения    14
3 Конструктивные и объемно-планировочные решения    17
3.1 Климатические и теплоэнергетические параметры    17
3.2 Теплотехнический расчет наружной стены здания    17
3.3 Теплотехнический расчет кровли здания    19
3.4 Конструктивные решения    20
4 Мероприятия по обеспечению соблюдения требований энергетической эффективности и требований оснащенности приборами учёта используемых энергетических ресурсов    23
Заключение    25
Список использованных источников    26

Жилой дом запроектирован двухэтажным, второй этаж мансардный. В плане здание прямоугольной формы. Высота первого этажа здания – 2,50 м «в свету», высота второго этажа составляет 2,50 м.
«Центром» здания является холл общего пользования, вокруг которого формируются все помещения. Немаловажную роль в общем пользовании помещений семьи играет кухня, которая в проекте разделена со столовой, чтобы попасть в столовую, необходимо из холла пройти на кухню, а далее непосредственно в нужное помещение. Столовая запроектирована с учетом того, что в ней за общим столом имеет возможность находится вся семья одновременно.
На первом этаже так же расположены терраса, гостиная, санузлы, гостевая, и две жилые комнаты.
Жилые комнаты запроектированы так, что в каждой из комнат возможно проживание двух человек. По площади комнаты запроектированы с учетом расстановки двух полноценных (полутороместных) спальных кроватей; письменных столов; шкафы для одежды; полки и тумбочки для хранения личных вещей и книг. Для спален предусмотрен отдельный сан. узел, вход в него предусмотрен из коридора. 
В проекте дома на втором этаже предусмотрено помещение свободного назначения для непосредственных нужд жильцов.
Связь между группами помещений осуществляется за счёт холлов и коридоров. Для связи по вертикали между этажами предусмотрена двухмаршевая лестница с шириной марша один метр. Проступь и подступенок запроектированы 250 мм и 150 мм соответственно.

Конструктивная система жилого дома – бескаркасная. 
Конструктивная схема здания – кирпичные стены комплексной конструкции с замкнутым контуром наружных стен и несущими продольными стенами. Устойчивость здания при сейсмических воздействиях на вертикальные и горизонтальные нагрузки обеспечивается совместной работой железобетонных сердечников, кладки стен, дисков перекрытий из железобетонных плит и монолитных железобетонных обвязок в уровнях перекрытий. 
Конструктивная схема здания – кирпичные стены комплексной конструкции с замкнутым контуром наружных стен и несущими продольными стенами. Устойчивость здания при сейсмических воздействиях на вертикальные и горизонтальные нагрузки обеспечивается совместной работой железобетонных сердечников, кладки стен, дисков перекрытий из железобетонных плит и монолитных железобетонных обвязок в уровнях перекрытий. 

Объемно-планировочные показатели здания:
Общая площадь помещений    м2    142,77    
Площадь жилых комнат            м2    77,45    
Площадь здания                        м2    147,42    
Строительный объем                м3    940,54    
Кол-во этажей                            шт    2    
 



Содержимое архива


Проекты (работы, чертежи) можно скачать став участником и внеся свой вклад в развитие. Как скачать ? подробнее >>>>>>>
Последний раз скачивали:

 
Cloudim - онлайн консультант для сайта бесплатно.