Добавить проект
Прочитать правила
Платный доступ
Авторизация:
Информация


Чертежи » Дипломные и курсовые работы » Архитектура » Коттеджи и дачи » Просмотр раздела

Коттеджи и дачи

Фильтр по проектам:
Показать выполненные в CAD программе:
Вузы: (Коттеджи и дачи) Название Вуза с буквы:
     А     Б     В     Д     И     К     М     Н     О     П     Р     С     Сред.проф.зав.     Т     У     Х     Ч     Ю    Без фильтра
Учебные работы / Показать дома с этажностью:
     1 этаж     1 этаж + мансарда     2 этажа     2 этажа + мансарда     3 этажа и выше    Без фильтра
Курсовой проект - 2-х этажный индивидуальный жилой дом 14,22 х 15,04 м в г. Тихорецк КП Курсовой проект - 2-х этажный индивидуальный жилой дом 14,22 х 15,04 м в г. Тихорецк | Год выпуска: 2023
КубГАУ / Кафедра архитектуры / по дисциплине «Основы архитектурно-строительного проектирования» / Малоэтажный жилой дом / Состав: 9 листов чертежи (План первого этажа в масштабе 1:100; План второго этажа в масштабе 1:100; План раскладки элементов фундамента в масштабе 1:100; План плит перекрытий первого этажа в масштабе 1:100; Плана кровли в масштабе 1:100; План стропильной системы в масштабе 1:100; Поперечный и продольный разрезы здания в масштабе 1:100; Два фасада в масштабе 1:100; Узлы в масштабе 1:20) + ПЗ (21 страница).
Дата: 15.12.25 10:05 | Поместил: bansheee | Размер: 1.47 MB | Скачали: 0 Платформа: AutoCad | Рб:
2
Курсовой проект - 2-х этажный коттедж с котельной 12,77 х 9,40 м в ст. Воронежская Краснодарского края КП Курсовой проект - 2-х этажный коттедж с котельной 12,77 х 9,40 м в ст. Воронежская Краснодарского края | Год выпуска: 2025
КубГТУ / АМТИ / Кафедра машиностроения / Разработать проект ИЖД со стенами из мелкоразмерных элементов / Состав: 2 листа чертежи (Схема планировочной организации земельного участка. Планы на отм. 0.000 и +3.300. Фасады в осях 1-8, 8-1, И-А и А-И. Разрез 1-1. Схемы расположения фундаментов,, стропильной системы, плит перекрытия на отм. +3.000 и +6.000. План кровли. Разрез 2-2) + ПЗ (23 страницы).
Дата: 5.12.25 12:50 | Поместил: Hrikin | Размер: 488.24 KB | Скачали: 0 Платформа: AutoCad | Рб:
2
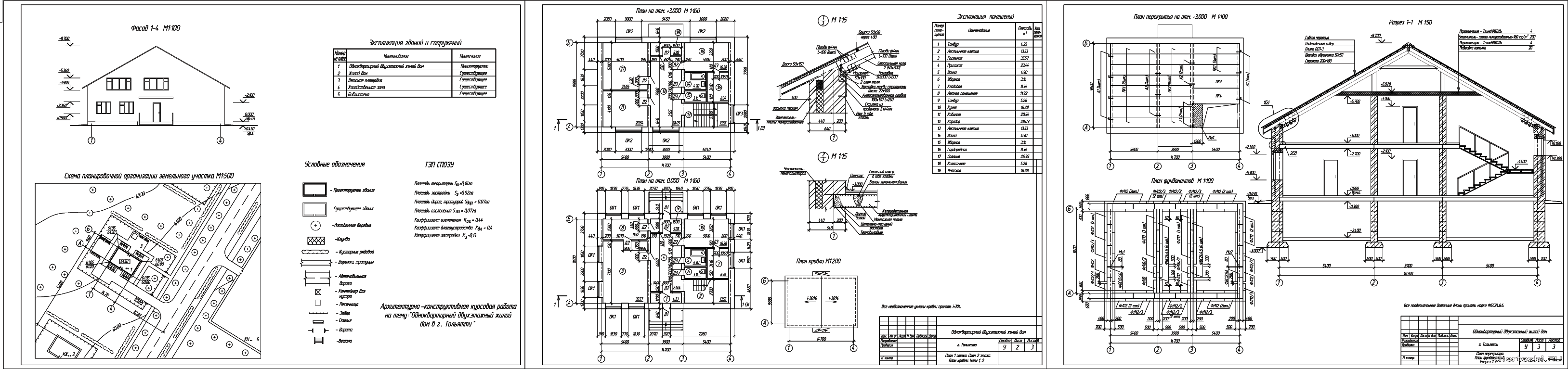
Курсовой проект - 2-х этажный коттедж с сауной и гаражом 16,59 х 13,75 м в г. Новокубанск Краснодарского края КП Курсовой проект - 2-х этажный коттедж с сауной и гаражом 16,59 х 13,75 м в г. Новокубанск Краснодарского края | Год выпуска: 2025
КубГТУ / АМТИ / Кафедра машиностроения / Разработать проект ИЖД со стенами из мелкоразмерных элементов. / Состав: 2 листа чертежи (Схема планировочной организации земельного участка. Планы на отм. 0.000 и +3.300. Фасады в осях 1-8, 8-1, И-А и А-И. План кровли. Схемы расположения фундаментов, плит перекрытия на отм. +3.300 и +6.600,стропильной системы. Разрезы 1-1 и 2-2) + ПЗ (23 страницы).
Дата: 5.12.25 04:52 | Поместил: Hrikin | Размер: 974.30 KB | Скачали: 1 Платформа: AutoCad | Рб:
2
Курсовой проект (колледж) - 2-х этажный жилой дом с эркером 15,6 х 13,5 м в п. Федотовка г. Новороссийск КП Курсовой проект (колледж) - 2-х этажный жилой дом с эркером 15,6 х 13,5 м в п. Федотовка г. Новороссийск | Год выпуска: 2019
НКСЭ / Проектирование ИЖД. / Состав: 2 листа чертежи (Фасад 1-4, разрез 1-1, план первого и второго этажа, М 1:100. Генплан М 1:200. План перекрытия, план фундамента, план кровли, М:100. Узел1 и сечение 1-1, М1:20. Расчет плиты перекрытия) + ПЗ (44 страницы в pdf).
Дата: 4.12.25 09:12 | Поместил: NTs24 | Размер: 4.12 MB | Скачали: 0 Платформа: AutoCad | Рб:
1
Курсовой проект - 2-х этажный коттедж с террасой 10,8 х 11,7 м в г. Сальск Ростовской области КП Курсовой проект - 2-х этажный коттедж с террасой 10,8 х 11,7 м в г. Сальск Ростовской области | Год выпуска: 2025
КубГТУ / АМТИ / Кафедра машиностроения / Разработать проект коттеджа со стенами из мелкоразмерных элементов в г. Сальск Ростовской области. / Состав: 2 листа чертежи (Схема планировочной организации земельного участка. Планы на отм. 0.000 и +2.800. Фасады в осях 1-4, 4-1, В-А и А-В. Схемы расположения фундаментов, стропильной системы, плит перекрытия на отм. +1.500 и +2.800. План кровли. Разрезы 1-1 2-2) + ПЗ (23 страницы).
Дата: 30.11.25 04:58 | Поместил: Hrikin | Размер: 435.49 KB | Скачали: 0 Платформа: AutoCad | Рб:
1
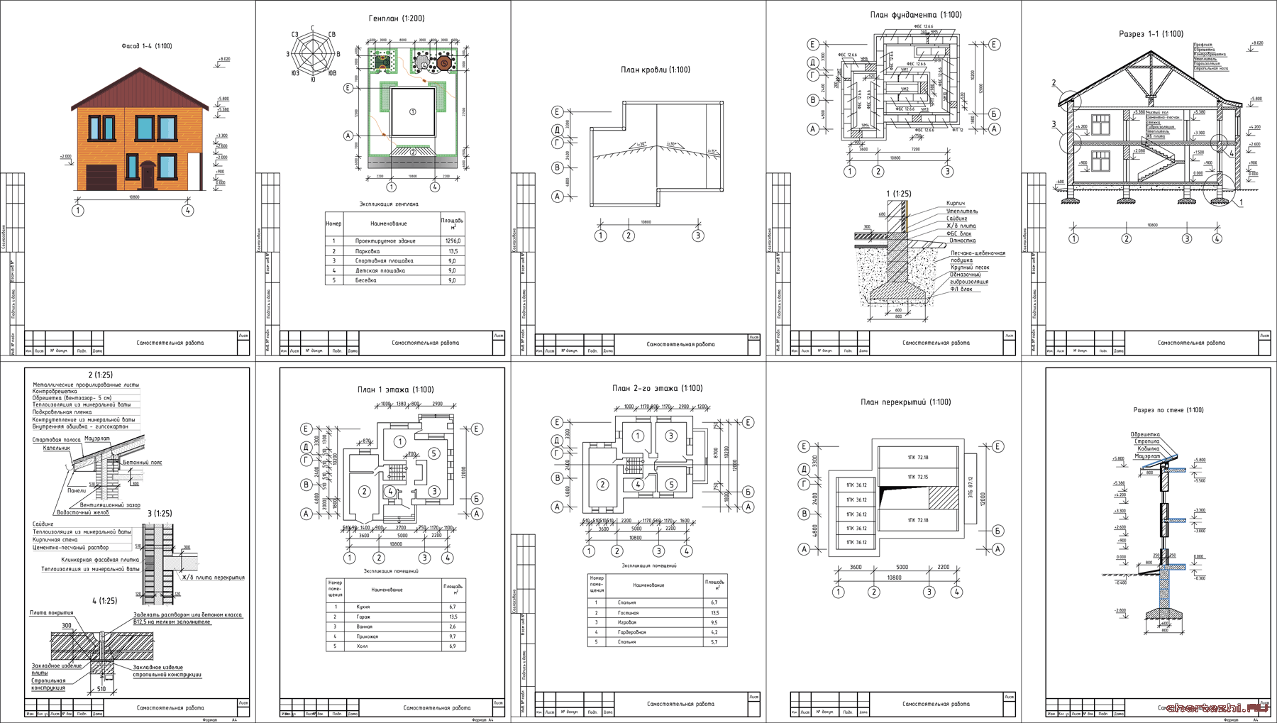
Курсовой проект - 2-х этажный индивидуальный жилой дом 18,3 х 21,3 м в г. Екатеринбург КП Курсовой проект - 2-х этажный индивидуальный жилой дом 18,3 х 21,3 м в г. Екатеринбург | Год выпуска: 2022
НИУ МГСУ / ИПГС / Кафедра "Архитектурно-строительного проектирования и физики среды" / Проектирование малоэтажного жилого здания из мелкоразмерных элементов. / Состав: 14 листов чертежи (Фасад в осях 1-6, План первого этажа, План второго этажа, План раскладки балок перекрытия, План раскладки плит перекрытия, План фундамента, План кровли, План стропил, Поперечный разрез по зданию, Разрез по наружной стене, План и разрез по лестничной клетке, Конструктивные узлы здания (Узел 1 и Узел 2), Конструктивные узлы здания (Узел 3 и Узел 4), Схема планировочной организации земельного участка) + ПЗ (19 страниц).
Дата: 24.11.25 13:48 | Поместил: Eugene1234 | Размер: 24.34 MB | Скачали: 0 Платформа: AutoCad | Рб:
2
Курсовой проект - 2-х этажный коттедж 14,0 х 9,8 м в г. Иркутск КП Курсовой проект - 2-х этажный коттедж 14,0 х 9,8 м в г. Иркутск | Год выпуска: 2023
ИрНИТУ / Кафедра архитектуры и градостроительства / по курсу "Архитектура зданий и сооружений" / Малоэтажный жилой дом / Разработать архитектурный проект коттеджа в г. Иркутске для семьи с двумя автомобилями. / Состав: 11 листов чертежи (генплан, фасад, планы первого и второго этажей, план фундамента, разрез по зданию, план перекрытия, план кровли, разрез по стене, узлы) + ПЗ (10 страниц).
Дата: 23.11.25 14:44 | Поместил: glalal04 | Размер: 607.66 KB | Скачали: 4 Платформа: AutoCad | Рб:
1
Курсовой проект - 2-х этажный коттедж 18,6 х 11,0 м в г. Иркутск КП Курсовой проект - 2-х этажный коттедж 18,6 х 11,0 м в г. Иркутск | Год выпуска: 2023
ИрНИТУ / Кафедра архитектуры и градостроительства / по дисциплине "Архитектура зданий и сооружений" / Малоэтажное жилое здание / Разработать архитектурный проект коттеджа в г. Иркутске для семьи с двумя автомобилями. / Состав: 10 листов чертежи (генплан, фасад, планы первого и второго этажей, план фундамента, разрез по зданию, план перекрытия, план кровли, разрез по стене, узлы) + ПЗ (10 страниц).
Дата: 21.11.25 14:15 | Поместил: daniilkorovdoil | Размер: 425.67 KB | Скачали: 2 Платформа: AutoCad | Рб:
1
Дипломный проект - Реконструкция индивидуального жилого дома в 10 микрорайоне г. Абакан РХ ДП Дипломный проект - Реконструкция индивидуального жилого дома в 10 микрорайоне г. Абакан РХ | Год выпуска: 2025
ХТИ (ф) СФУ / Кафедра "Строительство и экономика" / Реконструкция частного жилого дома / Состав: 7 листов чертежи + ПЗ (69 страниц) + смета.
Дата: 10.11.25 07:50 | Поместил: div2838 | Размер: 34.15 MB | Скачали: 0 Платформа: AutoCad | Рб:
6
Курсовой проект - 2-х этажный коттедж с котельной и террасой 10,62 х 14,85 м в г. Тимашевск Краснодарского края КП Курсовой проект - 2-х этажный коттедж с котельной и террасой 10,62 х 14,85 м в г. Тимашевск Краснодарского края | Год выпуска: 2025
КубГТУ / АМТИ / Кафедра машиностроения / В работе представлены архитектурные и объемно-планировочные решения и конструкции здания жилого дома со стенами из глиняного кирпича с облицовочным слоем из керамического кирпича в г. Тимашевск Краснодарского края, произведены теплотехнические расчеты ограждающих конструкций здания (наружной стены и чердачного перекрытия), определены объемно-планировочные показатели здания (строительный объем, площадь застройки здания, общая площадь и площадь жилых комнат). / Состав: 2 листа чертежи (Схема планировочной организации земельного участка. Планы на отм. 0.000 и +3.300. Фасады в осях 1-8, 8-1, И-А и А-И. План кровли. Схемы расположения фундаментов, плит перекрытия на отм. +3.300 и +6.600,стропильной системы. Разрезы 1-1 и 2-2) + ПЗ (24 страницы).
Дата: 22.10.25 05:25 | Поместил: Hrikin | Размер: 536.04 KB | Скачали: 0 Платформа: AutoCad | Рб:
1
 
Cloudim - онлайн консультант для сайта бесплатно.