Добавить проект
Прочитать правила
Платный доступ
Авторизация:
Информация


Чертежи » Дипломные и курсовые работы : Архитектура : Коттеджи и дачи : Курсовой проект - 2-х этажный коттедж с сауной и гаражом 16,59 х 13,75 м в г. Новокубанск Краснодарского края

Курсовой проект - 2-х этажный коттедж с сауной и гаражом 16,59 х 13,75 м в г. Новокубанск Краснодарского края

| Рб:
2
| Платформа: AutoCad | Поместил: Hrikin | Дата: 5.12.25 04:52 | Год выпуска: 2025 | Размер: 974,30 KB | Скачали: 2
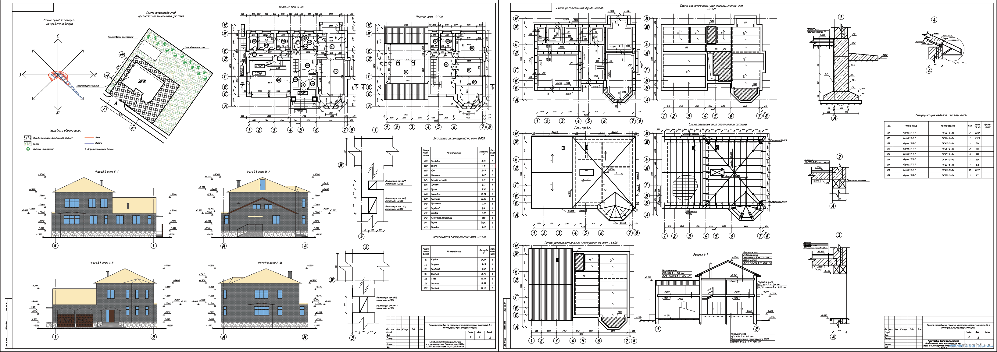
Коротко о файле: КубГТУ / АМТИ / Кафедра машиностроения / Разработать проект ИЖД со стенами из мелкоразмерных элементов. / Состав: 2 листа чертежи (Схема планировочной организации земельного участка. Планы на отм. 0.000 и +3.300. Фасады в осях 1-8, 8-1, И-А и А-И. План кровли. Схемы расположения фундаментов, плит перекрытия на отм. +3.300 и +6.600,стропильной системы. Разрезы 1-1 и 2-2) + ПЗ (23 страницы).
Курсовой проект - 2-х этажный коттедж с сауной и гаражом 16,59 х 13,75 м в г. Новокубанск Краснодарского края

Содержание
Введение    8
Нормативные ссылки    9
Термины и определения    11
1 Генеральный план участка строительства    12
2 Архитектурные решения    14
3 Конструктивные и объемно-планировочные решения    18
3.1 Климатические и теплоэнергетические параметры    18
3.2 Теплотехнический расчет наружной стены здания    18
3.3 Теплотехнический расчет чердачного перекрытия здания    20
3.4 Конструктивные решения    21
4 Мероприятия по обеспечению соблюдения требований энергетической эффективности и требований оснащенности приборами учёта используемых энергетических ресурсов    23
Заключение    25
Список использованных источников    26

Жилой дом запроектирован двухэтажным. В плане здание состоит из двух несимметричных частей. Высота первого этажа здания – 3,00 м «в свету», высота второго этажа составляет 2,50 м.
«Центром» здания является холл общего пользования, вокруг которого формируются все помещения. Немаловажную роль в общем пользовании помещений семьи играет кухня, которая в проекте не совмещена со столовой. Кухня запроектирована с учетом того, что в ней за общим столом имеет возможность находится вся семья одновременно.
На первом этаже так же расположены вспомогательные помещения: сан. узлы, помещение для установки отопительного агрегата, сауна. Вход в помещение для установки отопительного агрегата не предусмотрен из прихожей. В этом помещении установлена раковина для того, чтобы в случае необходимости можно было помыть уличную обувь. Непосредственно с улицы для удобства имеется вход в помещение для хранения хозяйственного и спортивного инвентаря.
Жилые комнаты запроектированы на втором этаже. В каждой из комнат предусматривается проживание двух человек. По площади комнаты запроектированы с учетом расстановки двух полноценных (полутороместных) спальных кроватей; письменных столов; шкафы для одежды; полки и тумбочки для хранения личных вещей и книг. Для спален предусмотрен отдельный сан. узел, вход в него предусмотрен из коридора.
На втором этаже так же располагаются жилые комнаты. Предусмотрен отдельный сан. узел. Вход в него предусмотрен непосредственно из холла.
В проекте дома для целесообразности предусмотрен гардероб для хранения сезонной одежды.
Связь между группами помещений осуществляется системой коридоров и холлов. Для связи по вертикали между этажами предусмотрена лестница.

Конструктивная система жилого дома – бескаркасная. 
Конструктивная схема здания – кирпичные стены комплексной конструкции с замкнутым контуром наружных стен и несущими продольными стенами. Устойчивость здания при сейсмических воздействиях на вертикальные и горизонтальные нагрузки обеспечивается совместной работой железобетонных сердечников, кладки стен, дисков перекрытий из железобетонных плит и монолитных железобетонных обвязок в уровнях перекрытий. 
Фундамент под дом – ленточный. Ленточные блоки размерами: 1200х400х600 мм и 1200х500х600 мм.
Перемычки запроектированы сборные ж/б по серии 1.038.1-1. Величина опирания перемычек согласно СНиП 11-7 не менее 250 мм при ширине проема менее 1.5 м и не менее 350 мм при ширине проема более или равной 1.5 м.
Конструкции стропильной системы запроектированы из пиленой древесины.
Кладка несущих и самонесущих стен запроектирована из керамического пустотно-поризованного кирпича PORONORM-1 марки М100 производства ОАО «Славянский кирпич» на растворе М50 на цементом вяжущем. Кладка внутренних несущих и самонесущих стен запроектирована из хорошо обож-женного кирпича полусухого прессования М125 на растворе М75 на цемент-ном вяжущем. Облицовочный (лицевой) ряд – керамический одинарный лице-вой пустотелый кирпич М125 (ГОСТ 530-2012), марка по морозостойкости F50.
Диски перекрытий запроектированы из панелей перекрытий с круглыми пустотами по серии 1.141-1 в.60, 63; серии 1.141.1-31 в. 4, 10. Элементы лест-ниц – монолитные железобетонные. Работы по устройству перекрытий выпол-нять согласно СНиП 3.03.01 «Несущие и ограждающие конструкции». Панели перекрытий укладывать на выровненный слой цементного раствора М100 толщиной 10 мм. Глубина опирания панелей 120 мм. Перегородки и другие конструктивные элементы могут устанавливаться на панели перекрытия.


Объемно-планировочные показатели здания
Общая площадь помещений    - 246,9 м2    
Площадь жилых комнат           -    93,6 м2    
Площадь здания    -                    228,11 м2
Строительный объем            -    1893,31 м3    
Кол-во этажей     -                       2    



Содержимое архива


Проекты (работы, чертежи) можно скачать став участником и внеся свой вклад в развитие. Как скачать ? подробнее >>>>>>>
Последний раз скачивали: 2025-12-26 / 2025-12-06

 
Cloudim - онлайн консультант для сайта бесплатно.