Добавить проект
Прочитать правила
Платный доступ
Авторизация:
Информация


Проекты металлоконструкций

  /  Метка
Показать описание раздела

Преимущества металлических конструкций по сравнению с бетонными:
- легкость;
- технологичность изготовления;
- простота доставки;
- простота установки;
- изготовление сложных конструкций.
Проект здания из металлоконструкций разрабатывается для строительства каркасов промышленных объектов и конструкций: цехов, складов.
Ажурные металлические элементы незаменимы при возведении коммерческих и развлекательных сооружений: рынков, стадионов, торговых комплексов.
Проект металлических конструкций включает следующие работы:
1. Расчет нагрузок, которые действуют на элементы конструкций.
2. Расчет сечений и других характеристик профилей.
3. Проектирование схемы каркаса.
4. Подбор элементов согласно расчетам. При проектировании применяются стандартные профили: уголки, швеллеры, трубы и другие.
5. Разработка чертежей проектируемого объекта.
6. Разработка спецификаций и ведомостей.
Проекты металлоконструкций выполняются для каждого этапа существования объекта. На этапе возведения прорабатываются варианты работы в период незавершенного строительства, с дополнительными нагрузками при монтаже, и прочностью, которая отличается от проектной. Основной этап – период эксплуатации с расчетными нагрузками и требованиями, которые учитываются в проекте. Для безопасного демонтажа, после окончания срока службы, разрабатывается отдельный проект.
Конструкции из металла применяют при возведении зданий и при изготовлении конструкций из листового материала, которые используются для хранения и транспортировки. Конструкции несложные, универсальные, поэтому можно применять существующие проекты металлоконструкций.
Скачать и переработать эти материалы для использования в конкретных условиях быстрее, чем разрабатывать новый проект.
Типовые проекты металлоконструкций можно использовать аналогичным образом, потому что унификация конструкций из металла высокая. Это позволяет неоднократно использовать проекты с привязкой к существующим условиям.
Чтобы выбрать проект, который лучше подходит, найдите примеры проекта металлоконструкций и проведите сравнение (учитывая регион строительства, так как одной из важных характеристик является регион строительства). Главными критериями являются условия долговечности и прочности конструкции или сооружения. Выбирается проект, который обусловлен экономической целесообразностью, с меньшими расходами и менее трудоемкий в технологическом плане.
На нашем сайте найдете проекты металлоконструкций (условно бесплатно, см. правила сайта), с необходимыми чертежами, расчетами, ведомостями используемых элементов. Проекты содержат указания по защите от коррозии, огня и вандализма.

Сборник проектов собран в ручную для метки "Проекты металлоконструкций".
Подборка не содержит всех проектов, не нашли по метке воспользуйтесь поиском по каталогу проектов.
Отфильтровать по группе:
          
Отметьте галочками нужную группу проектов для показу по назначению (КП - курсовой, ДП - дипломный, РП - рабочий проект), и нажмите "ок" по умолчанию показаны все группы.

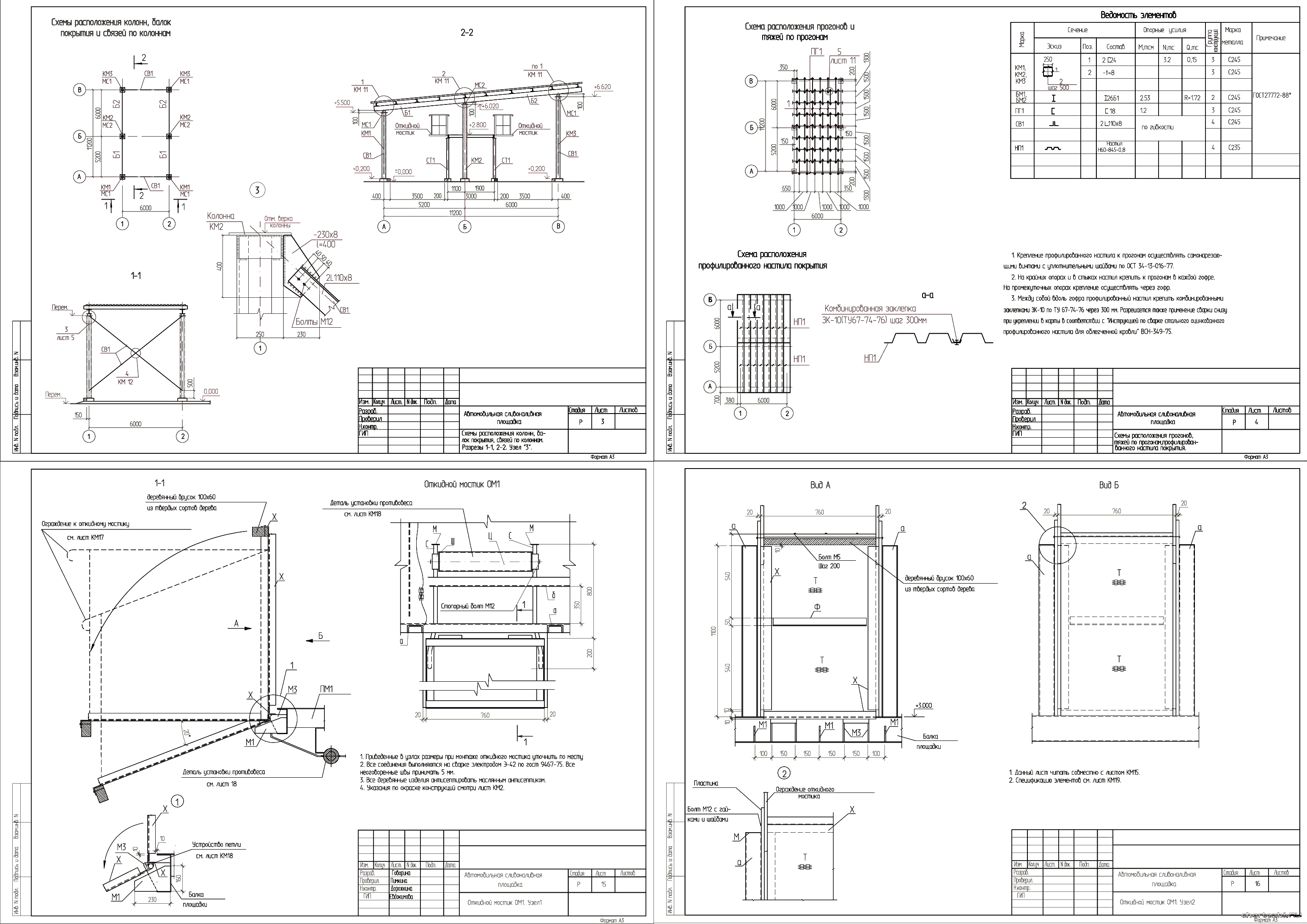
КМ Автомобильная сливоналивная площадка РП КМ Автомобильная сливоналивная площадка | Год выпуска: 2012
Р / Чертежи автомобильной сливоналивной площадки с навесом, откидными мостиками, молниеприёмниками. / Состав: комплект чертежей
Дата: 30.3.12 06:26 | Поместил: cntdap | Размер: 851.08 KB | Скачали: 53 Платформа: AvtoCad | Рб:
1
КМД Навес для колесной техники на 28 единиц РП КМД Навес для колесной техники на 28 единиц | Год выпуска: 2012
Рабочая документация для работы на заводе. В осях 18,0 х 72,0 м / Состав: 48 листов чертежи (балка, колонна, косынка, навес, молниезащита), без общих данных + Спецификации
Дата: 28.3.12 09:24 | Поместил: deniscornienko | Размер: 14.44 MB | Скачали: 102 Платформа: AutoCad | Рб:
2
КМ Связевая ферма крыши для 2-х этажного общежития с цокольным этажом с жилыми ячейками на 182 места РП КМ Связевая ферма крыши для 2-х этажного общежития с цокольным этажом с жилыми ячейками на 182 места | Год выпуска: 2012
Связевая металлическая ферма крыши для общежития на 182 места.
Дата: 3.3.12 01:24 | Поместил: Аноним | Размер: 926.36 KB | Скачали: 63 Платформа: AutoCad | Рб:
2
Чертежи КМ КЖ Универсальный магазин "Супермаркет" в г. Кириши РП Чертежи КМ КЖ Универсальный магазин "Супермаркет" в г. Кириши | Год выпуска: 2007
Состав: чертежи КМ - 45 листов, чертежи КЖ - 7 листов, без общих данных.
Дата: 16.2.12 16:50 | Поместил: Аноним | Размер: 2.70 MB | Скачали: 58 Платформа: AutoCad | Рб:
1
КМ База негорючих материалов 24 х 60 м в г. Саратов РП КМ База негорючих материалов 24 х 60 м в г. Саратов | Год выпуска: 2011
База из металлоконструкций. / Состав: комплект из 19 листов чертежи.
Дата: 6.12.11 09:59 | Поместил: Andxxrq | Размер: 1.55 MB | Скачали: 84 Платформа: AutoCad | Рб:
2
АР КМ КЖ ВК ЭО Автомойка на 4 автомобиля ручным способом РП АР КМ КЖ ВК ЭО Автомойка на 4 автомобиля ручным способом | Год выпуска: 2009
Здание ручной мойки автомобилей модификации РМ 4-12х16 общей площадью 192,0 м2. Здание автомойки предназначено для одновременного обслуживания 4 автомашин. Для повышения огнестойкости несущих металлоконструкций применяется краска огнезащитная вспучивающаяся INTERCHAR 693 на водной основе для защиты металлических конструкций. / Состав: комплект АР - 9 листов чертежи, комплект КМ - 6 листов чертежи, комплект КЖ - 3 листа чертежи, комплект ЭО - 8 листов чертежи, комплект ВК - 5 листов чертежи.
Дата: 18.5.11 19:56 | Поместил: pangolin | Размер: 1.23 MB | Скачали: 589 Платформа: AutoCad | Рб:
2
КМ Рамы, для силосного склада для 2-х банок диаметром 7 м РП КМ Рамы, для силосного склада для 2-х банок диаметром 7 м
Силосные баки. Фундамент, опалубка. для 1-ой очереди обогатительной
Дата: 17.5.11 18:38 | Поместил: pangolin | Размер: 793.04 KB | Скачали: 89 Платформа: AutoCad | Рб:
2
КМ Коровник с безпривязочным содержанием на 480 голов с молочным блоком РП КМ Коровник с безпривязочным содержанием на 480 голов с молочным блоком
В проекте разработан металлический каркас коровника. Каркас состоит из поперечных рам и связей в продольном направлении здания. Поперечные рамы металлические однопролетные с шарнирным опиранием ригилей на колонны. Закрепление крайних колонн к фундаментам шарнирное и жестким закреплением внутренних колонн. Жесткий диск покрытия образован прогонами и связями по покрытию.
Дата: 25.4.11 23:18 | Поместил: Аноним | Размер: 1.50 MB | Скачали: 442 Платформа: AutoCad | Рб:
5
КМД Одноэтажное здание модульной конструкции на болтовых соединениях 20х12х3 РП КМД Одноэтажное здание модульной конструкции на болтовых соединениях 20х12х3 | Год выпуска: 2010
В составе: общие виды / спецификация элементов (ведомость чертежей) / деталировочные чертежи. В проекте нет описания или общих данных.
Дата: 22.3.11 08:56 | Поместил: ruznik | Размер: 6.07 MB | Скачали: 130 Платформа: AutoCad | Рб:
1
КМ Металлическая стропильная ферма пролетом 18 м РП КМ Металлическая стропильная ферма пролетом 18 м
Представлен 1 чертеж - Стропильной фермы Ф-1 с узлами и спецификацией.
Дата: 10.3.11 08:55 | Поместил: Аноним | Размер: 259.87 KB | Скачали: 304 Платформа: AutoCad | Рб:
1
КМ Белаз Центр РП КМ Белаз Центр | Год выпуска: 2010
Р / Металлические конструкции. Для металлоконструкций применена углеродистая сталь по ГОСТ 27772-88*. / Состав: комплект чертежей.
Дата: 15.2.11 06:53 | Поместил: smnv | Размер: 944.97 KB | Скачали: 288 Платформа: AutoCad | Рб:
1
КМ Надземный пешеходный переход над автодорогой РП КМ Надземный пешеходный переход над автодорогой | Год выпуска: 2010
Пролетные фермы из квадратной трубы. Покрытие сотовый поликарбонат. На металлических трубах в качестве опор. / Состав: комплект чертежей (46 страниц)
Дата: 20.11.10 06:16 | Поместил: Аноним | Размер: 1.29 MB | Скачали: 123 Платформа: AutoCad | Рб:
3
КМ Шарнирные узлы и рамные узлы примыкания ригелей к колоннам РП КМ Шарнирные узлы и рамные узлы примыкания ригелей к колоннам | Год выпуска: 2007
Проект содержит рабочие чертежи типовых узлов балочных клеток, отапливаемых производственных зданий: шарнирные узлы соединения балок с колоннами и рамные узлы соединений ригелей с колоннами. Приведенные в выпуске узлы позволяют унифоцировать соединения элементов и сами элементы балочных клеток, что уменьшает трудозатраты при разработке документации на стальные конструкции на стадии КМ и КМД, а также при изготовлении и монтаже конструкций и сокращает общий расход стали. Узлы предназначаются для стальных конструкций отапливаемых зданий, возводимых в районах с расчетной температурой минус 65градусов и выше и неотапливаемых зданий, возводимых в районах с расчетной температурой минус 40 градусов и выше. Узлы могут применяться в зданиях, эксплуотируемых в районах несейсмичных и сейсмичных до 9 баллов включительно. 56 листов чертежи узлов.
Дата: 14.8.10 17:00 | Поместил: Аноним | Размер: 3.30 MB | Скачали: 254 Платформа: AutoCad | Рб:
1
КМД Деталировка металлоконструкции башни Н=60 м РП КМД Деталировка металлоконструкции башни Н=60 м | Год выпуска: 2010
Цифровая радиорелейная линия связи / Монтажные схемы / Состав: 58 листов чертежи
Дата: 12.8.10 05:51 | Поместил: Аноним | Размер: 4.59 MB | Скачали: 112 Платформа: AutoCad | Рб:
1
КМ Металлоконструкции разгрузочной площадки с тельфером РП КМ Металлоконструкции разгрузочной площадки с тельфером | Год выпуска: 2010
Проект разработан для строительства во IIв климатическом районе / Каркас здания принят металлическим рамного типа. Рамы состоят из стальных колонн из труб, жестко защемленных в фундаментах и балок покрытия из двутавров. Сопряжение балок с колоннами шарнирное. Каркас запроектирован с учетом системы связей и жестких дисков покрытия. / Состав: 5 листов чертежи
Дата: 16.6.10 06:11 | Поместил: Аноним | Размер: 145.40 KB | Скачали: 115 Платформа: Компас | Рб:
1
АС (КМ) Навес на 4 автомашины  из легких металлоконструкций 10,4 х 5,5 м РП АС (КМ) Навес на 4 автомашины из легких металлоконструкций 10,4 х 5,5 м | Год выпуска: 2010
Данный проект разработан на устройство легкого автонавеса на 4 машиноместа 2. Сварная конструкция автонавеса, выполнена из металлических труб квадратного и прямоугольного сечения. Опорные стойки крепятся к монолитным железобетонным столбчатым фундаментам при помощи фундаментных болтов . На стойки опирается арочная конструкция в процессе монтажа дополнительно раскрепленная связевыми фермами. Покрытие атонавеса выполнено из плит поликарбоната фирмы "Полигаль" / Комплект КМ входит в комплект АС
Дата: 16.6.10 05:33 | Поместил: Аноним | Размер: 1.19 MB | Скачали: 314 Платформа: AutoCad | Рб:
2
КМ Купол 38 метров РП КМ Купол 38 метров | Год выпуска: 2009
Полный комплект рабочих чертежей металлического купола диаметром 38 метров.
Дата: 25.5.10 18:49 | Поместил: Nicromonger | Размер: 1.41 MB | Скачали: 173 Платформа: AutoCad | Рб:
2
КМ Ангар для машин с мойкой 9,5 х 63,0 м РП КМ Ангар для машин с мойкой 9,5 х 63,0 м | Год выпуска: 2010
Устойчивость каркаса в поперечном направлении обеспечивается за счет колонн сплошного сечения, жестко защемленных на опоре. Устойчивость каркаса в продольном направлении обеспечена постановкой вертикальных связей. Перераспределение усилий обеспечивается за счет жесткости горизонтального диска покрытия и системы горизонтальных связей по низу несущих балок покрытия. / Состав: комплект из 9 листов чертежи.
Дата: 15.2.10 22:20 | Поместил: Аноним | Размер: 974.92 KB | Скачали: 336 | Рейтинг: 9.00 (1 голос) Платформа: AutoCad | Рб:
1
КМ Лестница пожарная РП КМ Лестница пожарная | Год выпуска: 2009
Лестница пожарная: металлоконструкции,фундаменты.
Дата: 30.10.09 12:04 | Поместил: Аноним | Размер: 5.12 MB | Скачали: 351 | Рейтинг: 9.00 (1 голос) Платформа: AutoCad | Рб:
1
КМ Лестничная клетка РП КМ Лестничная клетка | Год выпуска: 1
Чертежи(15 листов+2 листа спецификации)
Дата: 2.10.09 10:37 | Поместил: Romalis | Размер: 1.07 MB | Скачали: 111 Платформа: AutoCad | Рб:
1
« К началу 1 2 3 4 5 Далее»
 
Cloudim - онлайн консультант для сайта бесплатно.