Добавить проект
Прочитать правила
Платный доступ
Авторизация:
Информация


технология возведения зданий

  /  Метка
Показать описание раздела

Высокий уровень качества современных строительных работ достигается благодаря повышенному вниманию к технологической части процесса строительства. В зависимости от специфики конечного объекта строительства, существующую теоретическую базу можно разделить на несколько больших разделов, посвященных технологиям возведения подземных и наземных зданий и сооружений из заводских конструкций или железобетонных монолитов, а также строительству в специфических условиях.
Общие принципы
Вне зависимости от вида и предназначения, технология возведения зданий и сооружений обязана подчиняться ряду принципов:
• технология должна быть конкурентоспособной и отвечать соответствовать современному уровню;
• строительная продукция должна соответствовать государственным стандартам;
• несущие конструкции должны поддерживать геометрическую неизменяемость, прочность и пространственную устойчивость каждой конструктивной ячейки и всей конструкции в целом;
• специализированные и общестроительные работы, сопровождающие ведущий процесс, должны быть предельно совмещены с основным процессом по строительству коробки здания;
• ведущий процесс может осуществляться лишь в полной увязке с сопутствующими работами;
• качество выпускаемой продукции должно отвечать нормируемым параметрам;
• все орудия и предметы труда подбираются в соответствии с технологическими требованиями, а их поступление на площадку должно регламентироваться технологической необходимостью относительно времени и объема;
• все технологические процессы должны обеспечивать безопасность работников и не причинять вреда окружающей среде.
Кроме того, все работы по возведению, ремонту и реконструкции зданий и сооружений должны проходить согласно утвержденному проекту, содержащему подробное описание технологического процесса, а также все необходимые документы, расчеты и чертежи.

Сборник проектов собран в ручную для метки "технология возведения зданий".
Подборка не содержит всех проектов, не нашли по метке воспользуйтесь поиском по каталогу проектов.
Отфильтровать по группе:
               
Отметьте галочками нужную группу проектов для показу по назначению (КП - курсовой, ДП - дипломный, РП - рабочий проект), и нажмите "ок" по умолчанию показаны все группы.

Курсовой проект - Технология возведения четырнадцатиэтажного панельного жилого здания КП Курсовой проект - Технология возведения четырнадцатиэтажного панельного жилого здания | Год выпуска: 2015
ЮУрГУ. Здание прямоугольной формы. Фундамент - ленточный. Стены здания – ж/б стеновые панели. Перкрытия – ж/б плиты перекрытия. 2 листа чертежи (График производства работ / схемы производства и монтажа работ) + ПЗ. В пояснительной записке представлено: Определение объемов и трудоёмкостей работ, описание технологии возведения здания, выбор основных машин и механизмов, составление графика производства работ.
Дата: 24.3.15 12:02 | Поместил: suricat | Размер: 395.53 KB | Скачали: 8 Платформа: Компас | Рб:
1
Курсовой проект - Технология возведения четырежэтажного промышленного здания КП Курсовой проект - Технология возведения четырежэтажного промышленного здания | Год выпуска: 2015
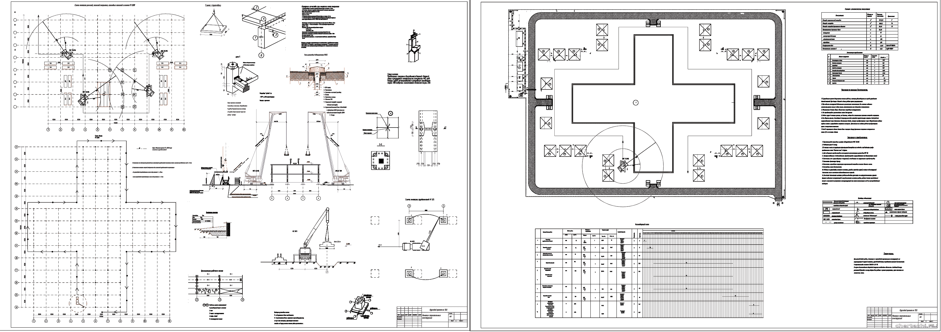
СГТУ / Организация работ ведется по возведению многоэтажного промышленного здания. Высота 24,0 м, число пролетов в здании – 4. Конструктивное решение: здание имеет каркасную конструктивную схему с несущими колоннами. Фундаменты – сборные стаканного типа. Колонны, плиты покрытия, стропильные фермы - сборные железобетонные. Стены наружные – сборные стеновые панели из ячеистого автоклавного бетона. Инженерно-геологические условия – обычные. / 2 листа чертежи (Стройгенплан; разрез 1-1; календарный план производственных работ; график движения рабочих; технологическая характеристика крана. Технологическая карта на монтаж шатра. Технология возведения зданий и сооружений) + ПЗ.
Дата: 4.3.15 11:40 | Поместил: Natali999 | Размер: 820.25 KB | Скачали: 17 Платформа: AutoCad | Рб:
1
Курсовой проект - ТК на возведение 1-но этажного промышленного здания КП Курсовой проект - ТК на возведение 1-но этажного промышленного здания | Год выпуска: 2015
СГУ ИЭИ / Кафедра ПГС / В данном проекте разработана технология возведения одноэтажного промышленного здания. В проекте разрабатывается надземная часть здания. Условно принимается, что подземная часть (фундаменты, подвал с перекрытием) возведена; пазухи котлована засыпаны; площадка подготовлена к ведению работ; временные инженерные сети и дороги проложены. / Состав: 6 листов чертежи + лист с общими данными + ПЗ.
Дата: 6.2.15 17:32 | Поместил: Nadbiskup | Размер: 1.65 MB | Скачали: 12 Платформа: AutoCad | Рб:
1
Курсовой проект - Технология возведения 16 - ти этажного одноподъездного монолитного жилого дома 33,0 х 13,2 м в г. Казань КП Курсовой проект - Технология возведения 16 - ти этажного одноподъездного монолитного жилого дома 33,0 х 13,2 м в г. Казань | Год выпуска: 2010
МГСУ. Кафедра "Технологии строительного производства". Конструктивная схема здания смешанного типа- с десятью поперечными и средней продольной несущими монолитными стенами. Здание имеет 11 поперечных (оси 1…11) и восемь продольных осей (оси А..И). Шаг продольных осей различный -1,2 м, 1,8 м, 4,8 м. Шаг поперечных осей -3,0 м, 3,3 м, 4,8 м. Высота этажа в соответствии с заданием принята 3,0 м. 13 листов чертежи (стройгенплан, планы этажей, планы раскладки балок, разрез, установка крана, график производства работ) + ПЗ
Дата: 4.2.15 18:03 | Поместил: Kotoksan | Размер: 10.03 MB | Скачали: 21 Платформа: AutoCad | Рб:
2
Курсовой проект - Технология возведения шестнадцатиэтажного четырехсекционного дома КП Курсовой проект - Технология возведения шестнадцатиэтажного четырехсекционного дома | Год выпуска: 2014
УГТУ / Задачи выполнения курсового проекта: выполнить расчеты по отдельным вопросам экономики, организации и планирования ремонтно - строительного производства объекта; экономически обосновать организационные решения и показать эффективность принятого решения. / 2 листа чертежи + ПЗ.
Дата: 4.1.15 23:58 | Поместил: rruhaa | Размер: 646.09 KB | Скачали: 17 Платформа: AutoCad | Рб:
1
Курсовой проект - Возведение пятиэтажного промышленного здания 48 х 18 м КП Курсовой проект - Возведение пятиэтажного промышленного здания 48 х 18 м | Год выпуска: 2013
ВолгГАСУ / Технология возведения зданий и сооружений / В курсовом проекте рассматриваются вопросы, связанные с выполнением технологических процессов, последовательностью выполнения работ и отдельных процессов, способы производства работ, намечаются средства механизации, составы рабочих бригад, мероприятия по технике безопасности и охране труда, указываются правила проведения контроля качества производства. Курсовой проект выполняется в виде технологической карты на монтаж многоэтажного промышленного здания. / 1 лист чертеж + ПЗ.
Дата: 20.11.14 17:55 | Поместил: stydentik | Размер: 1.73 MB | Скачали: 18 Платформа: AutoCad | Рб:
1
Курсовой проект - ППР на возведение мебельного магазина торговой площадью 1000 м2 КП Курсовой проект - ППР на возведение мебельного магазина торговой площадью 1000 м2 | Год выпуска: 2010
ПГАТУ Д.Н.Прянишникова / по дисциплине «Технология возведения зданий и сооружений». В сетевом графике увязаны такие работы: подготовительные – составляют 12 дней, земляные работы – 1 день, устройство фундаментов – 8 дней, устройство плит покрытия на фундаментные балки – 19 дней, монтаж металлического каркаса – 6 дней, монтаж панелей стен – 18 дней, монтаж панелей покрытия– 8 дней, штукатурные работы – 26 дней, малярные работы – 7 дней, устройство бетонного пола – 1 день, устройство деревянных блоков – 4 дня, устройство полов из керамической плитки – 7 дней, заполнение проемов – 4 дня, а также спецработы: инженерные сети – 15 дней, электромонтажные работы – 7 дней, , прочие неучтенные работы – 15 дней, благоустройство – 12 дней, сдача объекта – 4 дня. В архиве: 2 листа чертежей + ПЗ
Дата: 9.10.14 08:57 | Поместил: Аноним | Размер: 188.68 KB | Скачали: 16 Платформа: AutoCad | Рб:
1
Курсовой проект - ТК на монтаж строительных конструкций 2- х этажного промышленного здания КП Курсовой проект - ТК на монтаж строительных конструкций 2- х этажного промышленного здания | Год выпуска: 2014
ПГТУ / по дисциплине «Технология возведения зданий»/ Составы: 2 листа чертежи + ПЗ.
Дата: 29.1.14 13:16 | Поместил: Аноним | Размер: 827.15 KB | Скачали: 20 Платформа: AutoCad | Рб:
1
Курсовой проект - Технология возведения 16 - ти этажного здания в г. Томск КП Курсовой проект - Технология возведения 16 - ти этажного здания в г. Томск | Год выпуска: 2012
ЛГТУ / по дисциплине "Технология возведения зданий". Целью выполнения данного курсового проекта является усвоение ключевых положений технологии возведения монолитных и сборно-монолитных зданий на основе требований Строительных Норм и Правил (СНиП), ряда других нормативных документов, а также разработка основных элементов проекта производства работ (ППР) на бетонные (железобетонные) работы. 6 листов чертежи + ПЗ.
Дата: 18.1.14 07:04 | Поместил: Аноним | Размер: 5.40 MB | Скачали: 24 Платформа: AutoCad | Рб:
1
Курсовой проект - Технология возведения монолитных фундаментов КП Курсовой проект - Технология возведения монолитных фундаментов | Год выпуска: 2013
ПГУ / Курсовой проект по предмету "Строительная технология" с ПЗ для жилого и промышленного помещения.
Дата: 28.6.13 11:26 | Поместил: ennino | Размер: 229.84 KB | Скачали: 41 Платформа: Компас | Рб:
1
Курсовой проект - Шпалорезный цех с одним станком ЦДТ6 – 4 г. Иваново КП Курсовой проект - Шпалорезный цех с одним станком ЦДТ6 – 4 г. Иваново | Год выпуска: 2013
КГСХА / Кафедра «Технология, организация и экономика строительства» / По дисциплине «Технология возведения зданий и сооружений» / Промышленное здание типовой проект 411-2-185.87 / Проект «Шпалорезный цех с одним станком ЦДТ6 – 4 производительностью 220 тыс. штук шпал в год и 16.3 тыс. м3 технологической щепы для цеп». Здание в плане имеет размеры в осях «1 – 12» 60300 м; в осях «А–Ж» 30000 м. АБК одноэтажное – высота этажа 2,7 м; высота цеха 6 м. Под строительство выделен участок земли площадью 7171 м2 / Состав: 5 листов чертежи + ПЗ 20л.
Дата: 31.5.13 13:31 | Поместил: Аноним | Размер: 10.76 MB | Скачали: 44 Платформа: AutoCad | Рб:
2
Курсовой проект - Возведение большепролетных зданий КП Курсовой проект - Возведение большепролетных зданий | Год выпуска: 2006
КГАСУ / Целью выполнения курсового проекта является овладение основами проектирования технологии монтажа строительных конструкций полносборных зданий. Кроме того, студент должен познакомиться с методикой разработки основных документов проекта производства работ. К таким документам относятся: технологические карты на монтаж строительных конструкций, технологические схемы монтажа сборных элементов, график производства всех видов монтажных работ на строительной площадке. В архиве: чертежи + ПЗ в AutoCad.
Дата: 26.4.13 17:14 | Поместил: Аноним | Размер: 291.79 KB | Скачали: 17 Платформа: AutoCad | Рб:
1
Курсовой проект - Технология возведения пятиэтажного жилого кирпичного здания КП Курсовой проект - Технология возведения пятиэтажного жилого кирпичного здания | Год выпуска: 2012
Курсовой проект состоит из 4 чертежей: (Строительный генеральный план / План первого и типового этажей; Разрез 1-1; Схема расположения эл-тов фундамента и перекрытий; Экспликация полов / Поперечная привязка бешенного крана / Календарный план) + пояснительной записки. / МГТУ / Кафедра ПГС
Дата: 25.4.13 13:42 | Поместил: impachi | Размер: 1.14 MB | Скачали: 47 Платформа: AutoCad | Рб:
1
Курсовой проект - Монтаж конструкций одноэтажного промышленного здания КП Курсовой проект - Монтаж конструкций одноэтажного промышленного здания | Год выпуска: 2011
УГТУ. Кафедра ПГС. В архиве 3 курсовых проекта по дисциплине:" Технология возведения зданий и сооружений". Во всех проектах исходным зданием является одноэтажное промышленное здание. В 1 проекте 7 листов чертежи + ПЗ, во 2 проекте 2 листа чертежи + ПЗ, в 3 проекте 2 листа чертежи + ПЗ.
Дата: 21.2.13 17:03 | Поместил: Аноним | Размер: 12.23 MB | Скачали: 24 Платформа: AutoCad | Рб:
2
Курсовой проект - Унифицированное здание машиностроительной промышленности 144 х 72 м в г. Ухта КП Курсовой проект - Унифицированное здание машиностроительной промышленности 144 х 72 м в г. Ухта | Год выпуска: 2012
Климатический подрайон - IВ. Класс здания - II. Степень долговечности - II. Степень огнеустойчивости - II. Здание одноэтажное, имеет прямоугольную форму, с сеткой колонн 12 × 18 м и высота до нижнего элемента покрытия 10,8 м. Тип здания – пролётный. Началом направления технологического процесса является пункт поступления - участок приёма сырья, заготовок, откуда их развозят по зонам или отделениям. В пролётах размещены подкрановые балки, грузоподъёмностью 5 тонн, которые ведут выполнение технологического процесса в одном продольном направлении. Сборный железобетонный каркас здания состоит из поперечных рам, объединённых в пространственную систему плитами покрытия, связями и другими элементами. 3 листа чертежи + ПЗ.
Дата: 3.1.13 12:34 | Поместил: Аноним | Размер: 1.59 MB | Скачали: 47 Платформа: AutoCad | Рб:
2
Курсовой проект - Технология земляных работ и возведение подземной части здания КП Курсовой проект - Технология земляных работ и возведение подземной части здания | Год выпуска: 2011
МГСУ / В данном курсовом проекте разработаны основы проектирования технологии строительных процессов при планировке строительной площадки и возведении подземной части здания из монолитного железобетона, а также принятие экономически обоснованных технических решений по механизации работ и организации выполнения строительных процессов. / Cостав: 1 лист чертеж + ПЗ.
Дата: 19.8.12 06:39 | Поместил: Аноним | Размер: 888.30 KB | Скачали: 70 Платформа: AutoCad | Рб:
1
Курсовой проект - Технология строительных процессов при возведении  подземной части зданий КП Курсовой проект - Технология строительных процессов при возведении подземной части зданий | Год выпуска: 2011
Цель данной курсовой работы – овладение основами технологического проектирования строительных процессов нулевого цикла, развитие навыков самостоятельной творческой работы и инженерного подхода к решению конкретных технических задач. 1 лист чертеж + ПЗ.
Дата: 6.8.12 18:22 | Поместил: pangolin | Размер: 864.77 KB | Скачали: 55 Платформа: AutoCad | Рб:
1
Курсовой проект - Выбор метода возведения одноэтажного однопролетного промышленного здания 90 х 27 м в металлическом каркасе КП Курсовой проект - Выбор метода возведения одноэтажного однопролетного промышленного здания 90 х 27 м в металлическом каркасе | Год выпуска: 2005
ТулГУ. Проект по ТВЗ. Шаг колонн – 6 м. Отметка низа стропильной фермы – 10,2 м. Отметка подкрановой части колонн – 6,68 м. Проектируемое здание оснащено опорно – мостовым краном. Колонны каркаса стальные с раскосами (поперечное сечение - двутавр). Покрытие представляет собой стальную стропильную ферму с параллельными пояса-ми. Ограждающие элементы покрытия – профлист по стальным прогонам. Стеновые панели – железобетонные, толщиной 220 мм и высотой 1200 и 1800 мм.
.
Дата: 17.5.12 19:31 | Поместил: kashtanka01 | Размер: 299.45 KB | Скачали: 89 Платформа: AutoCad | Рб:
1
Курсовой проект - Технология возведения строительных конструкций промышленных и гражданских зданий КП Курсовой проект - Технология возведения строительных конструкций промышленных и гражданских зданий | Год выпуска: 2008
ИжГТУ. Кафедра Ракетостроение. Проект по учебной дисциплине «Технология возведения зданий и сооружений». Размеры в плане монтируемого здания 60×54м, общая высота здания 15,2м, количество пролётов – 2, ширина пролёта 24м, и 30м, шаг колонн среднего ряда6 м, крайних рядов 6м, высота колонн от уровня чистого пола 8,4м, шаг колонн фахверка по торцам здания 6м, высота светоаэрационных фонарей 2,7м, длина 48м. 2 листа чертежи и ПЗ прилагаются.
Дата: 26.2.12 15:00 | Поместил: Аноним | Размер: 718.98 KB | Скачали: 24 Платформа: Компас | Рб:
1
ПОС возведения промышленного здания в Ленинградской области РП ПОС возведения промышленного здания в Ленинградской области | Год выпуска: 2011
План, разрез, циклограмма, технологическая схема строительства
Дата: 7.12.11 18:33 | Поместил: Аноним | Размер: 212.15 KB | Скачали: 66 Платформа: AutoCad | Рб:
1
« К началу 1 2 3 4 5 6 Далее»
 
Cloudim - онлайн консультант для сайта бесплатно.