Добавить проект
Прочитать правила
Платный доступ
Авторизация:
Информация


Иностранные чертежи » Казахстан » Рабочие проекты » Инженерные системы » Системы связи » Просмотр раздела

Системы связи



СС Школа Казахстан
РП
СС Школа | Год выпуска: 2025
РП / Сети связи (СКС, СКУД, СГС, Зв, Чс) здания школы (2 этажа). / Состав: комплект чертежей + спецификация.
Дата: 22.2.25 07:41 | Поместил: AVP777 | Размер: 3.49 MB | Скачали: 0 Платформа: AutoCad | Рб:
2
СС Административное здание Казахстан
РП
СС Административное здание | Год выпуска: 2018
РП / Системы связи: видеонаблюдение (ВН), система коллективного приема телевидения (СКПТ), структурированная кабельная система (СКС). Административное здание (2 этажа). / Состав: комплект чертежей + спецификация.
Дата: 14.2.25 08:43 | Поместил: AVP777 | Размер: 872.18 KB | Скачали: 0 Платформа: AutoCad | Рб:
1
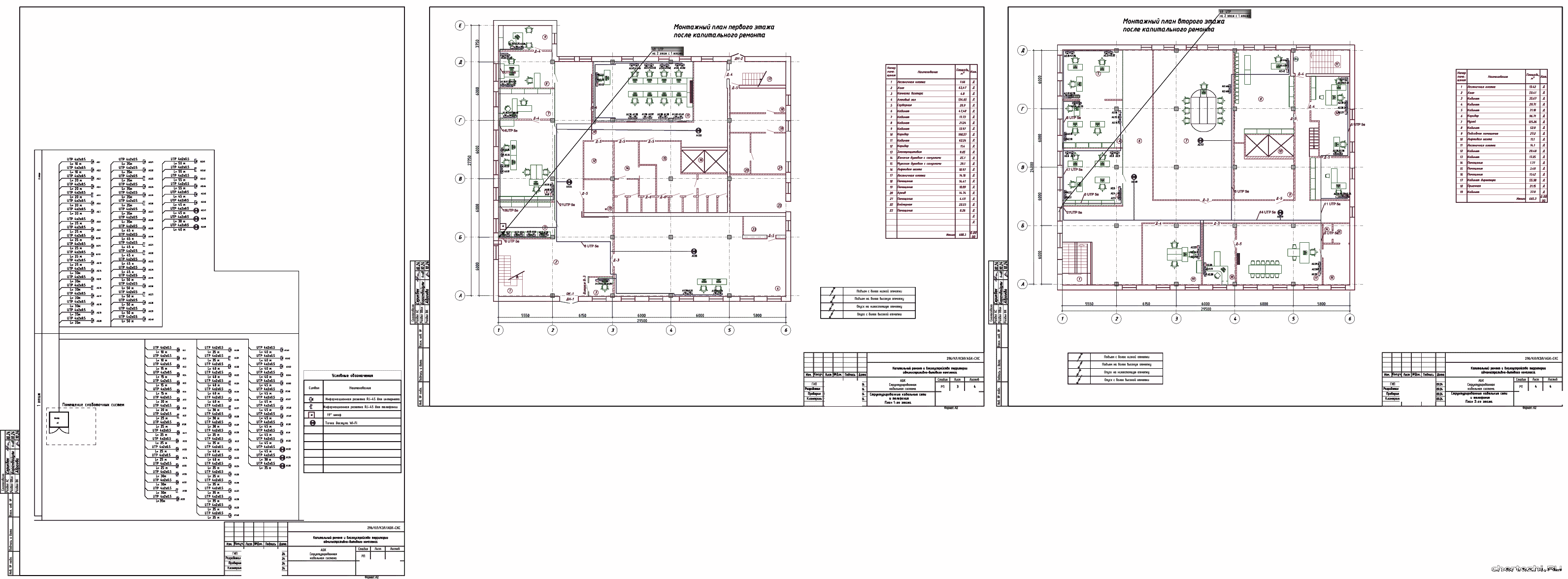
СКС Административно-бытовой комплекс Казахстан
РП
СКС Административно-бытовой комплекс | Год выпуска: 2024
РП / Капитальный ремонт и благоустройства территории административно-бытового комплекса (2 этажа). Структурированная кабельная система и телефония. / Состав: комплект чертежей + спецификация.
Дата: 17.10.24 09:55 | Поместил: Berik2512 | Размер: 430.58 KB | Скачали: 0 Платформа: AutoCad | Рб:
1
СКС Здание архива Казахстан
РП
СКС Здание архива | Год выпуска: 2023
Р / Система локальной вычислительной сети и IP телефонии с доступом в интернет здания архива (6 этажей + цокольный). / Состав: комплект чертежей + спецификация.
Дата: 21.12.23 14:10 | Поместил: Ololoandrey | Размер: 1.39 MB | Скачали: 0 Платформа: AutoCad | Рб:
1
ВН Административно-бытовой комплекс 48 х 18 м Казахстан
РП
ВН Административно-бытовой комплекс 48 х 18 м | Год выпуска: 2022
РП / Проект видеонаблюдения АБК вахтового поселка (2 этажа). / Состав: комплект чертежей + спецификация. К этому проекту на сайте есть другие комплекты: ПС Административно-бытовой комплекс 48 х 18 м.
Дата: 6.1.23 04:14 | Поместил: lexa9711 | Размер: 2.16 MB | Скачали: 0 Платформа: AutoCad | Рб:
1
СС Многофункциональный жилой комплекса с подземным паркингом в г. Алматы Казахстан
РП
СС Многофункциональный жилой комплекса с подземным паркингом в г. Алматы | Год выпуска: 2019
РП / Диспетчеризация лифтов, видеодомофонная связь, система видеонаблюдения и сети GPoN 3-х жилый блоков ЖК (блоки А,Б,В) и паркинга. / Состав: 4 комплекта чертежей (45 листов всего) + спецификации. Проект прошел экспертизу. К этому проекту на сайте есть другие комплекты: ЭОМ ЭН Многофункциональный жилой комплекса с подземным паркингом в г. Алматы.
Дата: 26.7.22 18:04 | Поместил: Sultanalan | Размер: 5.78 MB | Скачали: 5 Платформа: AutoCad | Рб:
3
ВН СКУД СКС АПС РО Системы связи г. Алматы Казахстан
РП
ВН СКУД СКС АПС РО Системы связи г. Алматы | Год выпуска: 2018
Стадия Р / Проектирование системы связи офиса / Состав: 5 комплектов чертежей + Спецификация
Дата: 7.4.21 04:07 | Поместил: Ulykbek | Размер: 33.50 MB | Скачали: 0 Платформа: AutoCad | Рб:
1
СКС СС Офисные помещения 3 этажа г. Алматы Казахстан
РП
СКС СС Офисные помещения 3 этажа г. Алматы | Год выпуска: 2018
Стадия Р / В данном офисе реализована СКС на основе патч-панелей и розеток Netgear. Подключение принтеров и розеток для точек Wi-Fi осуществляется по кабелям категории Cat 5e. Подключение телевизоров и проекторов осуществляется по кабелям категории Cat 6. Для подключения Проекторов к ПК предусмотрена установка розеток HDMI в напольных и Кабели LAN и Wi-Fi сведены на патч-панели RJ45 в шкафу в кроссовой. / Состав: комплект чертежей + Кабельный журнал + Спецификация
Дата: 7.4.21 03:38 | Поместил: Ulykbek | Размер: 8.49 MB | Скачали: 0 Платформа: AutoCad | Рб:
1
ВСС Детсад Казахстан
ВСС Детсад | Год выпуска: 2018
Стадия Р / Внутренние слаботочные сети детского сада / Состав: комплект чертежей (7 листов, планы сетей, общие данные) + Спецификация
Дата: 30.5.19 19:16 | Поместил: PadiShakh | Размер: 446.14 KB | Скачали: 0 Платформа: AutoCad | Рб:
1
УКВ АГРС Казахстан
УКВ АГРС | Год выпуска: 2017
Стадия Р / Раздел радиосвязи и передачи данных на АГРС / Состав: комплект чертежей + Спецификация
Дата: 19.5.19 10:09 | Поместил: gip99 | Размер: 886.79 KB | Скачали: 2 Платформа: AutoCad | Рб:
1
1 2 3 Далее »
 
Cloudim - онлайн консультант для сайта бесплатно.