Добавить проект
Прочитать правила
Платный доступ
Авторизация:
Информация


Чертежи » Рабочие проекты » Инженерные системы » Электрика и связь » Электроснабжение » Промышленные здания » Просмотр раздела

Электроснабжение - Промышленные здания


ЭС ЭО ЭМ АОВ Реконструкция здания гаража под арматурный цех РП ЭС ЭО ЭМ АОВ Реконструкция здания гаража под арматурный цех | Год выпуска: 2017
С / Реконструкция здания гаража на 5 машин с бомбоубежищем под арматурный цех. Разделы электроснабжения, силового электрооборудования, электроосвещения, автоматизация вентиляции и отопления. / Состав: 4 комплекта чертежей + спецификации
Дата: 22.7.25 12:54 | Поместил: Volod80 | Размер: 1.69 MB | Скачали: 0 Платформа: AutoCad | Рб:
2

ЭО Производственно-складской корпус с бытовыми помещениями в Минской области РП ЭО Производственно-складской корпус с бытовыми помещениями в Минской области | Год выпуска: 2019
С / Реконструкция с расширением производственной базы по переработке нефтепродуктов. Электроосвещение производственно-бытового корпуса. 1-я и 2-я очередь. / Состав: 2 комплекта чертежей + спецификации. К этому проекту на сайте есть другие комплекты: ЭМ Производственно-складской корпус с бытовыми помещениями в Минской области.
Дата: 21.7.25 13:40 | Поместил: Volod80 | Размер: 1.99 MB | Скачали: 0 Платформа: AutoCad | Рб:
2

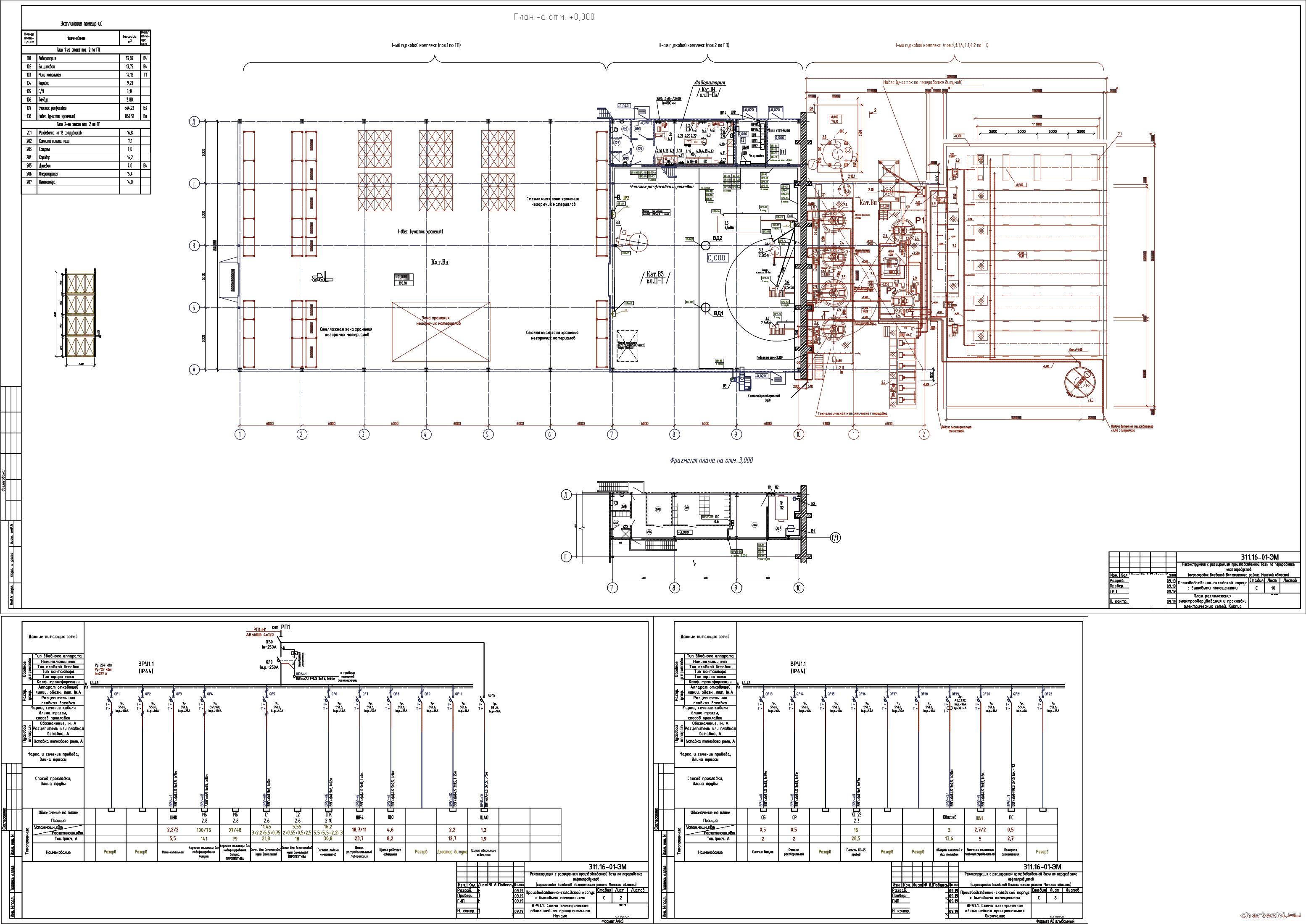
ЭМ Производственно-складской корпус с бытовыми помещениями в Минской области РП ЭМ Производственно-складской корпус с бытовыми помещениями в Минской области | Год выпуска: 2019
С / Реконструкция с расширением производственной базы по переработке нефтепродуктов. Электроснабжение производственно-складского корпуса и технологических установок. Силовое электрооборудование. / Состав: комплект чертежей + спецификация. К этому проекту на сайте есть другие комплекты: ЭО Производственно-складской корпус с бытовыми помещениями в Минской области.
Дата: 21.7.25 13:34 | Поместил: Volod80 | Размер: 1.74 MB | Скачали: 0 Платформа: AutoCad | Рб:
2

ЭМ Блочно-модульная котельная на МВТ мощностью 0,5 МВт РП ЭМ Блочно-модульная котельная на МВТ мощностью 0,5 МВт | Год выпуска: 2017
С / Электроснабжение 2-х водогрейных котлов общей мощностью 0,5 МВт. / Состав: комплект чертежей + спецификация.
Дата: 8.12.22 09:56 | Поместил: ascarot | Размер: 170.78 KB | Скачали: 0 Платформа: AutoCad | Рб:
1

ЭМ Котельная РП ЭМ Котельная | Год выпуска: 2018
С / Электроснабжение котельной. / Состав: комплект чертежей + спецификация.
Дата: 20.8.22 12:35 | Поместил: Konstanta | Размер: 3.08 MB | Скачали: 0 Платформа: AutoCad | Рб:
1

ЭМ Склад РП ЭМ Склад | Год выпуска: 2019
С / Электроснабжение здания склада. / Состав: комплект чертежей.
Дата: 20.8.22 12:21 | Поместил: Konstanta | Размер: 841.06 KB | Скачали: 0 Платформа: AutoCad | Рб:
1

ЭОМ Строительство производственно-складского здания г. Жабинка РП ЭОМ Строительство производственно-складского здания г. Жабинка | Год выпуска: 2022
Стадия С / Электроосвещение и силовое электрооборудование / Состав: комплект чертежей + Спецификация
Дата: 17.3.22 14:12 | Поместил: Ig0rex4 | Размер: 8.43 MB | Скачали: 0 Платформа: AutoCad | Рб:
2

ЭОМ Склад Рм - 36,3 кВт РП ЭОМ Склад Рм - 36,3 кВт | Год выпуска: 2018
Стадия С / Реконструкция здания неотапливаемого склада, здания административно складского с производственными помещениями под производственную базу и строительство производственной базы. / Состав: комплект чертежей + ПЗ + Спецификация
Дата: 18.10.19 07:03 | Поместил: 2D | Размер: 1.87 MB | Скачали: 0 Платформа: AutoCad | Рб:
3

Все комплекты - Строительство отдельно стоящих боксов СТО - 1534,51 м2 Минский район РП Все комплекты - Строительство отдельно стоящих боксов СТО - 1534,51 м2 Минский район | Год выпуска: 2018
Стадия С / Строительство отдельно стоящих боксов станции технического обслуживания грузовых автомобилей из металлоконструкций, при расчете КМ предусмотрено размещение кран-балки на 5т / Состав: комплекты АР; КМ; КЖ; ГП; АВК; ВК; НВК; ОВ; ЭК; ЭМО + Спецификации (где положено)
Дата: 20.3.19 20:26 | Поместил: avatarrk | Размер: 18.77 MB | Скачали: 0 Платформа: PDF | Рб:
5

ЭОМ Строительство автомойки самообслуживания РП ЭОМ Строительство автомойки самообслуживания | Год выпуска: 2018
Стадия С / Разработка раздела внутреннего электрооборудования и электроосвещения для автомойки самообслуживания. / Состав: комплект чертежей + Спецификация
Дата: 2.12.18 15:27 | Поместил: Beau | Размер: 2.05 MB | Скачали: 7 Платформа: AutoCad | Рб:
1
 
Cloudim - онлайн консультант для сайта бесплатно.