Добавить проект
Прочитать правила
Платный доступ
Авторизация:
Информация


Чертежи » Дипломные и курсовые работы » Строительство » Строительные конструкции » Фундаменты и основания » Просмотр раздела

Курсовые работы: Фундаменты и основания

Фильтр по проектам:
Показать выполненные в CAD программе:
Вузы: (ОиФ) Название Вуза с буквы:
     А     Б     В     Г     Д     З     И     К     Л     М     Н     О     П     Р     С     Т     У     Ч     Ю     Я    Без фильтра
Курсовой проект - ОиФ 9-ти этажного жилого дома 26,8 х 14,0 м в г. Омск КП Курсовой проект - ОиФ 9-ти этажного жилого дома 26,8 х 14,0 м в г. Омск | Год выпуска: 2025
СочиГУ / Кафедра «Строительства и сервиса» / по дисциплине “Основания и фундаменты городских зданий и сооружений” / Проектирование фундаментов 9-ти этажного жилого дома / Состав: 1 лист чертеж + ПЗ (59 страниц).
Дата: 24.4.26 11:15 | Поместил: Sevavi | Размер: 4.73 MB | Скачали: 0 Платформа: AutoCad | Рб:
1
Курсовой проект - ОиФ крупноблочного 5-ти этажного здания школы на 880 учащихся в г. Ростов-на-Дону КП Курсовой проект - ОиФ крупноблочного 5-ти этажного здания школы на 880 учащихся в г. Ростов-на-Дону | Год выпуска: 2025
СочиГУ / Кафедра Строительства и сервиса / по дисциплине «Основания и фундаменты городских зданий и сооружений» / Проектирование фундамента крупноблочного 5-ти этажного здания школы / Состав: 1 лист чертеж + ПЗ (50 страниц).
Дата: 24.4.26 11:04 | Поместил: Sevavi | Размер: 2.20 MB | Скачали: 0 Платформа: AutoCad | Рб:
1
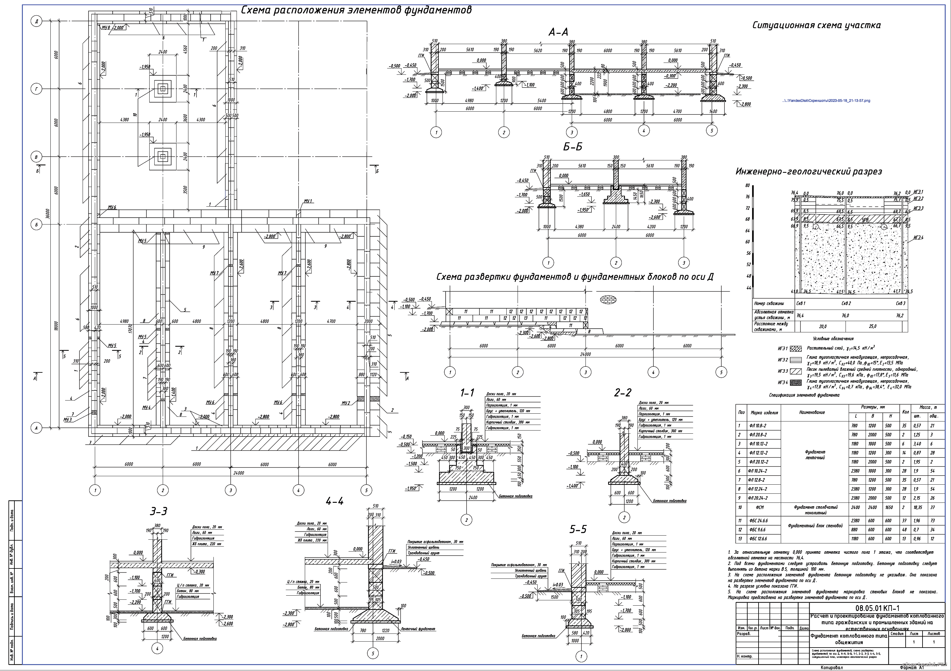
Курсовая работа - ОиФ 6-ти этажного жилого дома 38,2 х 12,0 м в г. Калининград КП Курсовая работа - ОиФ 6-ти этажного жилого дома 38,2 х 12,0 м в г. Калининград | Год выпуска: 2023
СочиГУ / Кафедра «Строительства и сервиса» / по дисциплине “Основания и фундаменты городских зданий и сооружений” / Проектирование фундаментов 6-ти этажного 4-х секционного МЖД / Состав: 1 лист чертеж (Фрагмент фасада; Разрез А-А; План типового этажа; Геологический разрез; План фундамента; Развёртка фундамента оси А; Сечение 1-5) + ПЗ (49 страниц).
Дата: 20.4.26 17:53 | Поместил: verzilova_a | Размер: 2.19 MB | Скачали: 0 Платформа: AutoCad | Рб:
1
Курсовой проект - ОиФ цеха по производству швейных изделий 96 х 30 м в г. Курск КП Курсовой проект - ОиФ цеха по производству швейных изделий 96 х 30 м в г. Курск | Год выпуска: 2024
ЮЗГУ / Кафедра "Промышленного и гражданского строительства" / Проектирование фундаментов промышленных и гражданских зданий / Цель данной курсовой работы – проектирование и расчет фундаментов мелкого заложения цеха по производству швейных изделий. / Состав: 4 листа чертежи (План фундаментов. Разрез 1-1. Фундамент Фм-1. Балки фундаментные БФ-2, БФ-3, БФ-4. Каркасы КР-1, КР-2, КР-3) + ПЗ (17 страниц).
Дата: 13.4.26 16:06 | Поместил: LeeEnfield | Размер: 445.69 KB | Скачали: 0 Платформа: AutoCad | Рб:
1
Курсовой проект - ОИФ Проектирование столбчатого и свайного фундамента под колонну в г. Дудинка КП Курсовой проект - ОИФ Проектирование столбчатого и свайного фундамента под колонну в г. Дудинка | Год выпуска: 2025
СФУ / Кафедра ГИСиФ / Целью данного курсового проекта является оптимальный выбор конструкции фундамента с помощью вариантного проектирования. / Состав: 2 листа чертежи (Проектирование столбчатого фундамента под колонну. План фундамента, разрезы, арматурные сетки, спецификации элементов и изделий. Проектирование свайного фундамента под колонну. План фундамента, разрезы, арматурные сетки, план свайного куста, инженерно-геологический разрез) + ПЗ (30 страниц).
Дата: 20.3.26 03:28 | Поместил: Stichhu | Размер: 726.70 KB | Скачали: 0 Платформа: AutoCad | Рб:
1
Курсовой проект - Проектирование ограждающей конструкции 29-ти этажного жилого здания 34,6 х 26,4 м КП Курсовой проект - Проектирование ограждающей конструкции 29-ти этажного жилого здания 34,6 х 26,4 м | Год выпуска: 2025
НИУ МГСУ / Кафедра "Механики грунтов и геотехники" / дисциплина "Основания и фундаменты уникальных зданий и сооружений" / В рамках выполненной курсовой работы был проведен анализ инженерно-геологических условий и выполнен расчет основных конструкций (фундаментная плита и шпунтовое ограждение) подземной части 29-этажного жилого дома с двухуровневым подвалом. / Состав: 1 лист чертеж (Инженерно-геологический разрез участка строительства, расчетная схема ограждающей конструкции, расчетная схема грунтового анкера, план устройства ограждающей конструкции, схема устройства ограждающей конструкции из шпунта Ларсена, схема устройства ограждающей конструкции из буросекущих свай, узел крепления анкера к обвязочной балке, узел устройства гидроизоляции фундамента) + ПЗ (64 страницы).
Дата: 2.3.26 19:36 | Поместил: kaneko | Размер: 3.28 MB | Скачали: 0 Платформа: AutoCad | Рб:
1
Курсовая работа - ОиФ 5-ти этажного здания 24 х 12 м в г. Москва КП Курсовая работа - ОиФ 5-ти этажного здания 24 х 12 м в г. Москва | Год выпуска: 2025
ИжГТУ / по дисциплине "Основания и фундаменты" / Расчёт и проектирование фундамента мелкого заложения и свайного фундамента для 5 этажного здания. / Состав: 1 лист чертеж (геологический разрез, разрез по 3-м сечениям фундамента мелкого заложения, разрез по 3-м сечениям свайного фундамента, 3 эпюры осадки для фундамента мелкого заложения, 3 эпюры для свайного фундамента, ситуационный план, развёртка по оси А, Б, 1, 2) + ПЗ (70 страниц).
Дата: 24.2.26 13:49 | Поместил: AndreiSham | Размер: 5.89 MB | Скачали: 1 Платформа: AutoCad, PDF | Рб:
1
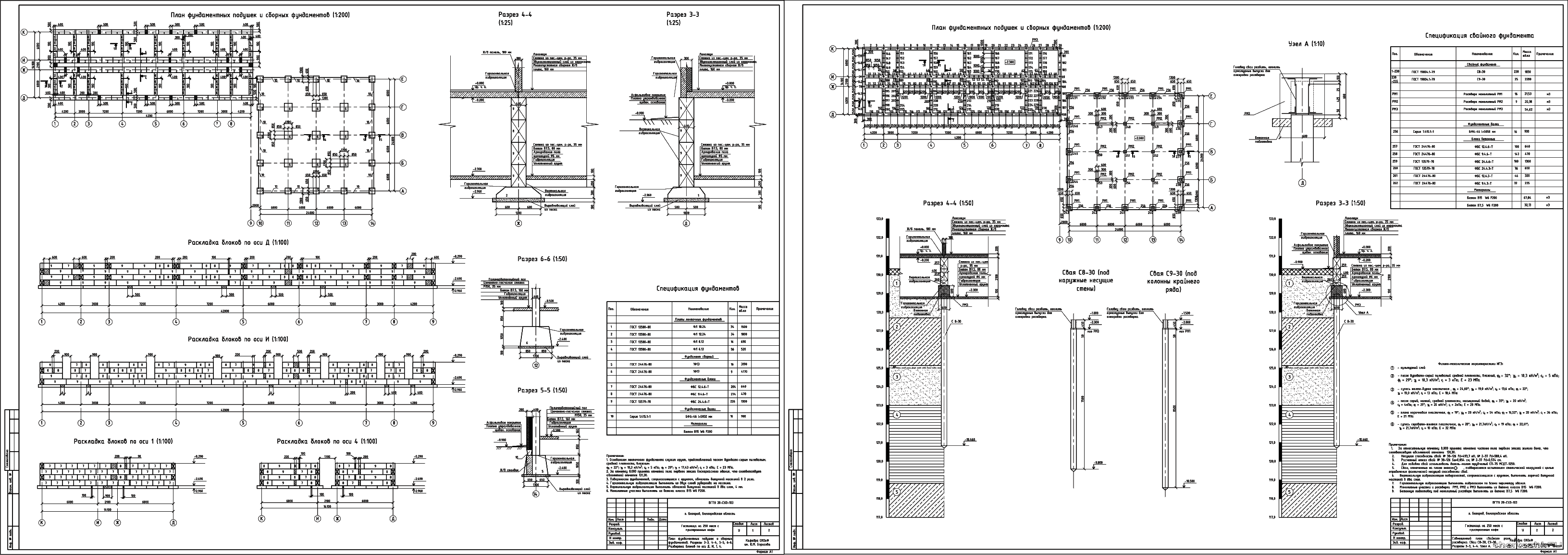
Курсовой проект - ОиФ 7-ми этажного жилого здания 37 х 12 м КП Курсовой проект - ОиФ 7-ми этажного жилого здания 37 х 12 м | Год выпуска: 2025
ЧГУ им. И.Н. Ульянова / Кафедра строительных технологий, геотехники и экономики строительства / Основной целью проектирования оснований и фундаментов является расчет фундамента мелкого заложения и свайного фундамента, технико-экономическое сравнение вариантов и выбор экономичного типа фундаментов, расчет и прогноз осадки фундаментов, проектирование фундаментов по расчету. / Состав: 1 лист чертеж (План свайного поля; План фундаментов; Геологический разрез участка; Генплан; 3 разреза свайного фундамента по 3 сечениям; Развертка стены по оси А; Развертка стены по оси 1; Спецификация элементов фундамента) + ПЗ (44 страницы).
Дата: 21.12.25 08:48 | Поместил: karina172 | Размер: 2.16 MB | Скачали: 1 Платформа: AutoCad | Рб:
1
Курсовой проект - ОиФ учебного корпуса 48 х 12 м в г. Ульяновск ДП Курсовой проект - ОиФ учебного корпуса 48 х 12 м в г. Ульяновск | Год выпуска: 2025
УлГТУ / Кафедра «ПГС» / по дисциплине «Основания и фундаменты» / Расчет оснований и фундаментов учебного корпуса. / В данном курсовом проекте необходимо запроектировать три варианта фундаментов: фундамент мелкого заложения на естественном основании, фундамент на песчаной подушке и свайный фундамент. / Состав: 1 лист чертеж + ПЗ (52 страницы).
Дата: 26.11.25 20:26 | Поместил: Wolchok89 | Размер: 3.58 MB | Скачали: 2 Платформа: AutoCad | Рб:
1
Курсовая работа - ОиФ 9-ти этажного жилого дома в открытом котловане 71,2 х 12,0 м в г. Смоленск КП Курсовая работа - ОиФ 9-ти этажного жилого дома в открытом котловане 71,2 х 12,0 м в г. Смоленск | Год выпуска: 2024
МГСУ / Кафедра «Механики грунтов и геотехники» / по дисциплине «Основания и фундаменты зданий и сооружений» / Проектирование фундаментов под 9-ти этажное здание в открытом котловане / Состав: 1 лист чертеж (Расчетная схема. Геология. План фундамента мелкого заложения. План свайного фундамента. План котлована. Разрезы) + ПЗ (65 страниц).
Дата: 25.11.25 22:40 | Поместил: Arina111 | Размер: 4.75 MB | Скачали: 0 Платформа: AutoCad | Рб:
1
Показать описание раздела:
«Основания и фундаменты» курсовая – составляющая процесса обучения, задачами которой является углубление теоретических знаний, полученных студентами при изучении соответствующих дисциплин, развитие навыков решения инженерных задач.
Проектирование фундамента курсовая состоит в выборе основания, вида, конструкции, размеров фундамента. От правильности принятых решений во многом зависят эксплуатационные качества зданий/сооружений, их устойчивость и прочность.
В этом разделе сайта Чертежи.РУ представлены готовые проекты на тему «Основания и фундаменты». Курсовая работа имеет указание состава по количеству чертежей, ВУЗ и описание взятое из ПЗ работы. Можно воспользоваться данным сервисом и выбрать вариант, наиболее подходящий полученному техническому заданию.
В наличии имеются следующие категории «Фундамент курсовая»:
- промышленных и гражданских зданий/сооружений;
- одно- и многоэтажных объектов;
- по уровню заложения: мелкие и глубокие;
- по конструкции: ленточные, столбчатые, свайные, опускные колодцы, сплошные плитные и т.д.;
- с естественным и искусственно укрепленным основанием.
Курсовой проект по фундаментам и основаниям содержит следующие разделы:
- общие сведения;
- анализ грунтовых условий;
- выбор и расчет фундаментов;
- технико-экономическая часть;
- графическая часть;
В «общих сведениях» приводится техзадание и исходные данные. В части «анализ грунтовых условий» выполняется инженерно-геологическая оценка строительной площадки, определяются физические и механические характеристики грунта.
В разделе «Расчет фундамента. Курсовая» представлены вычисления оптимальных вариантов фундамента (оценивается глубина заложения, размеры, расчет конструкции, нагрузки и т.д.), что определяется характеристиками грунта, типом проектируемого здания, его функциональным назначением. В тех случаях, когда естественные основания являются недостаточно прочными или сильно сжимаемыми, осуществляется проектирование их искусственного улучшения.
Графическая часть содержит планы фундамента, развертку по осям, сечения, рабочие чертежи конструкций фундамента, при необходимости чертеж отдельных узлов/деталей, план строительной площадки, инженерно-геологический разрез.
В технико-экономической части приводится сравнение проектируемых вариантов фундамента в пользу наиболее подходящего, приводится обоснование.
«Основания и фундаменты. Курсовые работы» можно скачать условно бесплатно на нашем сайте.
 
Cloudim - онлайн консультант для сайта бесплатно.