Добавить проект
Прочитать правила
Платный доступ
Авторизация:
Информация


Пример проекты квартир

  /  Метка
Показать описание раздела

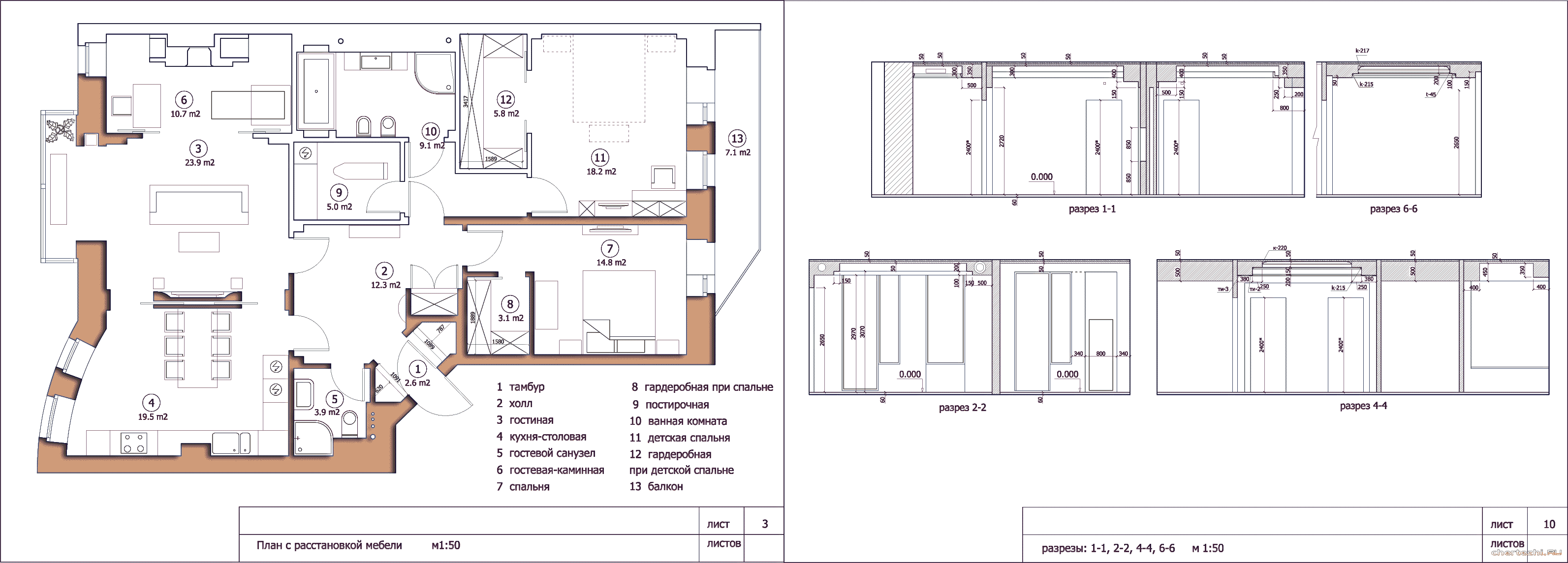
Переустройство помещения, с преобразованием технических и эксплуатационных параметров, называется перепланировкой. Реконструкция выполняется с учетом требований жилищного кодекса. Изменения вносятся в технический паспорт, согласовываются в жилищной инспекции и вносятся в Росеестр. Чтобы выполнить работы, с соблюдением необходимых нормативов, создается проект перепланировки квартиры. Пример оформления реконструкции квартиры представляет наш сайт. Проекты содержат:
- анализ состояния помещения;
- схему перепланировки, с учетом расположения несущих стен и инженерных систем, которые не подлежат реконструкции;
- перечень работ, которые выполняются при перепланировке;
- планы квартиры до, после реконструкции;
- расчеты, техническое обоснование проекта;
- технологическую документацию;
- чертежи, спецификацию и др.
На нашем сайте найдете пример: проекты квартир, которые разработаны с использованием программ AutoCad, ArchiCad, Компас. Документы используются для ознакомления, скачивания, обучения. Имеется документация для перепланировки:
1. Комнат общежития под квартиры.
2. Двухкомнатной квартиры.
3. 1-комнатной квартиры в 1,5-комнатную.
4. 3-комнатной квартиры.
5. Помещения, с чертежами усиления.
6. 4-комнатной квартиры в 2-комнатную.
При переустройстве помещения разрабатывается проект электроснабжения квартиры. Пример, который представлен на сайте, определяет направления разработок. Проектируется однолинейная расчетная схема. Выполняется план разводки осветительных и розеточных групп.
Разрабатывается схема подключения водонагревательного оборудования, системы кондиционирования воздуха. Создаются планы подключения дополнительного оборудования – электрической сауны, теплых полов и т.д. Проектируется план разводки дополнительных потенциалов.
Рассчитывается схема уравнивания потенциалов, схема управления нагрузкой. Составляются спецификации необходимых материалов и оборудования.
Пример проекта ремонта квартиры содержит перечень работ, которые выполняются при переустройстве. Разрабатывается: - обмерный план;
- порядок демонтажных работ – разборка и снятие перегородок, полов, дверных проемов, плинтусов и др.;
- порядок монтажа конструкций;
- план потолков и полов со схемой обустройства;
- схема освещения;
- план размещения силового оборудования;
- проект расстановки мебели с учетом расположения электроприборов;
- развертка стен помещения;
- спецификация строительных материалов и оборудования, которое заменяется.

Сборник проектов собран в ручную для метки "Пример проекты квартир".
Подборка не содержит всех проектов, не нашли по метке воспользуйтесь поиском по каталогу проектов.
Реконструкция квартиры РП Реконструкция квартиры
Реконструкция квартиры
Дата: 28.3.09 05:52 | Поместил: AlekseiK | Размер: 318.21 KB | Скачали: 198 Платформа: AutoCad | Рб:
1
АР Перепланировка квартиры РП АР Перепланировка квартиры | Год выпуска: 2004
Идивидуальный проект перепланировки квартиры VIP Уровня! В проекте: -план демонтажа строительных конструкций; -план монтажа перегородок и дверных проемов; -план квартиры с сетями Л1 и К3Н; -план квартиры с сетями В1, Т3 и Т4; -план полов; -план потолков; -план расстановки мебели; -план полов совмещенный с планом расстановки мебели; -детали
Дата: 20.3.09 09:21 | Поместил: RZ320DZ | Размер: 2.14 MB | Скачали: 633 Платформа: AutoCad | Рб:
1
Дизайн-проект квартиры РП Дизайн-проект квартиры
Планы, электрика, расстановка мебели, ведомость отделочных материалов. Только чертежи в dwg
Дата: 27.2.09 08:03 | Поместил: Аноним | Размер: 1.31 MB | Скачали: 607 Платформа: AutoCad | Рб:
1
АС Перепланировка 4-х комнатной квартиры РП АС Перепланировка 4-х комнатной квартиры | Год выпуска: 2006
в основном пробивка проемов (5 штук), есть фото и пояснение.
Дата: 8.2.09 20:24 | Поместил: Аноним | Размер: 1.42 MB | Скачали: 446 Платформа: AutoCad | Рб:
1
Дизайн - проект 3-х комнатной квартиры РП Дизайн - проект 3-х комнатной квартиры | Год выпуска: 2008
Дизайн - проект 3-х комнатной квартиры с двумя санузлами / Состав: 14 листов чертежей
Дата: 9.12.08 13:33 | Поместил: Аноним | Размер: 1.31 MB | Скачали: 642 Платформа: AutoCad | Рб:
1
ОПС Элитная квартира в г. Москва РП ОПС Элитная квартира в г. Москва | Год выпуска: 2008
РП / Настоящий альбом марки ОПС рабочего проекта содержит основные решения по организации охранно-пожарной сигнализации в помещениях квартиры на базе Vista 501. / Состав: комплект чертежей + спецификация
Дата: 5.10.08 09:00 | Поместил: Аноним | Размер: 219.74 KB | Скачали: 213 Платформа: AutoCad | Рб:
1
ЭОМ Двухуровневая квартира 372 м2 в г. Москва РП ЭОМ Двухуровневая квартира 372 м2 в г. Москва | Год выпуска: 2005
Р / Электроснабжение двухуровневая квартира, Pp=35 кВт. / Состав: комплект чертежей + спецификация
Дата: 20.3.08 13:57 | Поместил: Аноним | Размер: 676.40 KB | Скачали: 462 Платформа: AutoCad | Рб:
1
ЭМО Слаботочные системы квартиры РП ЭМО Слаботочные системы квартиры | Год выпуска: 2007
проект слаботочных систем на примере частной квартиры в многоэтажке с коллективной видеодомофонной системой "Vizit" серии 400.
Дата: 24.12.07 08:58 | Поместил: Аноним | Размер: 419.43 KB | Скачали: 532 Платформа: AutoCad | Рб:
1
ЭОМ Проект электроснабжения квартиры г. Москва РП ЭОМ Проект электроснабжения квартиры г. Москва | Год выпуска: 2007
Учет потребления электроэнергии производится 3-х фазным 2-х тарифным счетчиком прямого включения ПСЧ-3ТА.04.1 5-50А, 380/220В.
Дата: 27.9.07 15:26 | Поместил: Аноним | Размер: 636.21 KB | Скачали: 608 Платформа: AutoCad | Рб:
1
АС Переоборудование квартиры в магазин промышленных товаров - 73,1 м2 / г. Калининград РП АС Переоборудование квартиры в магазин промышленных товаров - 73,1 м2 / г. Калининград | Год выпуска: 2007
Переоборудование квартиры на первом этаже многоквартирного панельного жилого дома под магазин пром товаров
Дата: 28.2.07 11:50 | Поместил: Аноним | Размер: 644.25 KB | Скачали: 1082 Платформа: AutoCad | Рб:
1
Проект сауны, ванны и туалета РП Проект сауны, ванны и туалета
в трехкомнатной квартире
Дата: 9.12.06 04:35 | Поместил: Аноним | Размер: 55.69 KB | Скачали: 590 Платформа: AutoCad | Рб:
1
ВК Водоснабжение 6 - ти комнатной квартиры РП ВК Водоснабжение 6 - ти комнатной квартиры | Год выпуска: 2006
РП / Проектом предусмотрена прокладка трубопроводов внутреннего холодного, и горячего водоснабжения из металлопластиковых труб VALPEX Ду16-26 мм. Проектом предусмотренна самотечная система канализации из канализационнных полипропиленовых труб тип "RAUPIANO" диаметром 50 и 110 мм фирмы REHAU, с применением соответствующих фасонных частей. Расчетный расход общ.водоснабжения-1,9 м3/сут. Расчетный расход общ.канализации - 1,2 м3/сут. / Состав: комплект чертежей + спецификация.
Дата: 22.10.06 03:49 | Поместил: Аноним | Размер: 267.94 KB | Скачали: 472 Платформа: AutoCad | Рб:
1
« К началу 1 2 3 4 5 6 7 8
 
Cloudim - онлайн консультант для сайта бесплатно.