Добавить проект
Прочитать правила
Платный доступ
Авторизация:
Информация


Иностранные чертежи » Молдавия » Рабочие проекты » Просмотр раздела

Рабочие проекты



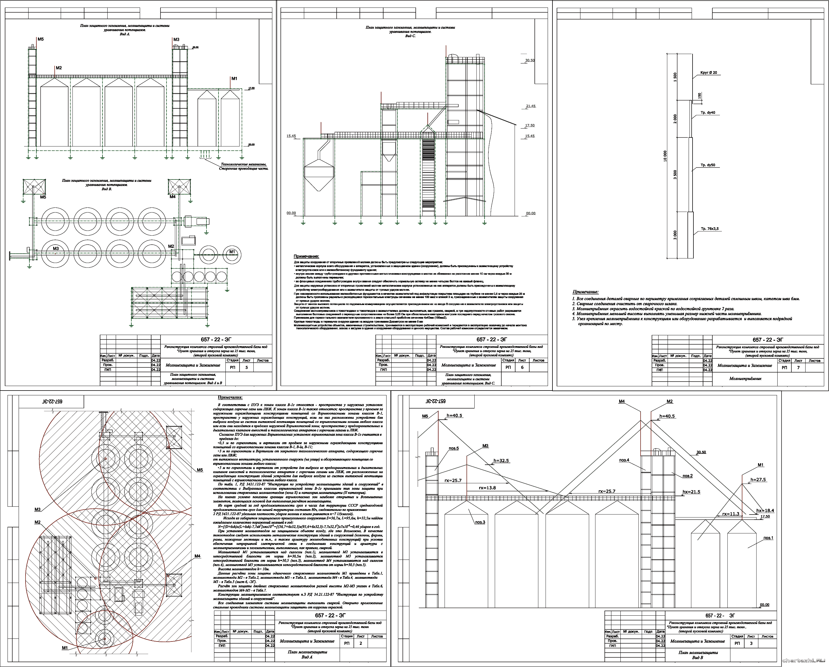
ЭГ Реконструкция комплекса строений производственной базы под "Пункт хранения и отпуска зерна на 25 тыс. тонн" Молдавия
РП
ЭГ Реконструкция комплекса строений производственной базы под "Пункт хранения и отпуска зерна на 25 тыс. тонн" | Год выпуска: 2022
РП / Молниезащита и заземление. / Состав: комплект чертежей + спецификация.
Дата: 22.8.25 23:49 | Поместил: Strages | Размер: 331.73 KB | Скачали: 0 Платформа: AutoCad | Рб:
1
ЭМ Реконструкция комплекса строений производственной базы под "Пункт хранения и отпуска зерна на 25 тыс. тонн" Молдавия
РП
ЭМ Реконструкция комплекса строений производственной базы под "Пункт хранения и отпуска зерна на 25 тыс. тонн" | Год выпуска: 2022
С / Схема принципиальная распределительной сети / Состав: комплект чертежей + спецификация
Дата: 22.8.25 23:44 | Поместил: Strages | Размер: 526.83 KB | Скачали: 0 Платформа: AutoCad | Рб:
1
ЭОМ Перепланировка помещений 1 этажа здания лит. А-1 административного корпуса Молдавия
РП
ЭОМ Перепланировка помещений 1 этажа здания лит. А-1 административного корпуса | Год выпуска: 2024
Р / Силовое электрооборудование и освещение 1-го этажа административного корпуса. / Состав: комплект чертежей + спецификация.
Дата: 22.8.25 23:35 | Поместил: Strages | Размер: 846.11 KB | Скачали: 0 Платформа: AutoCad | Рб:
1
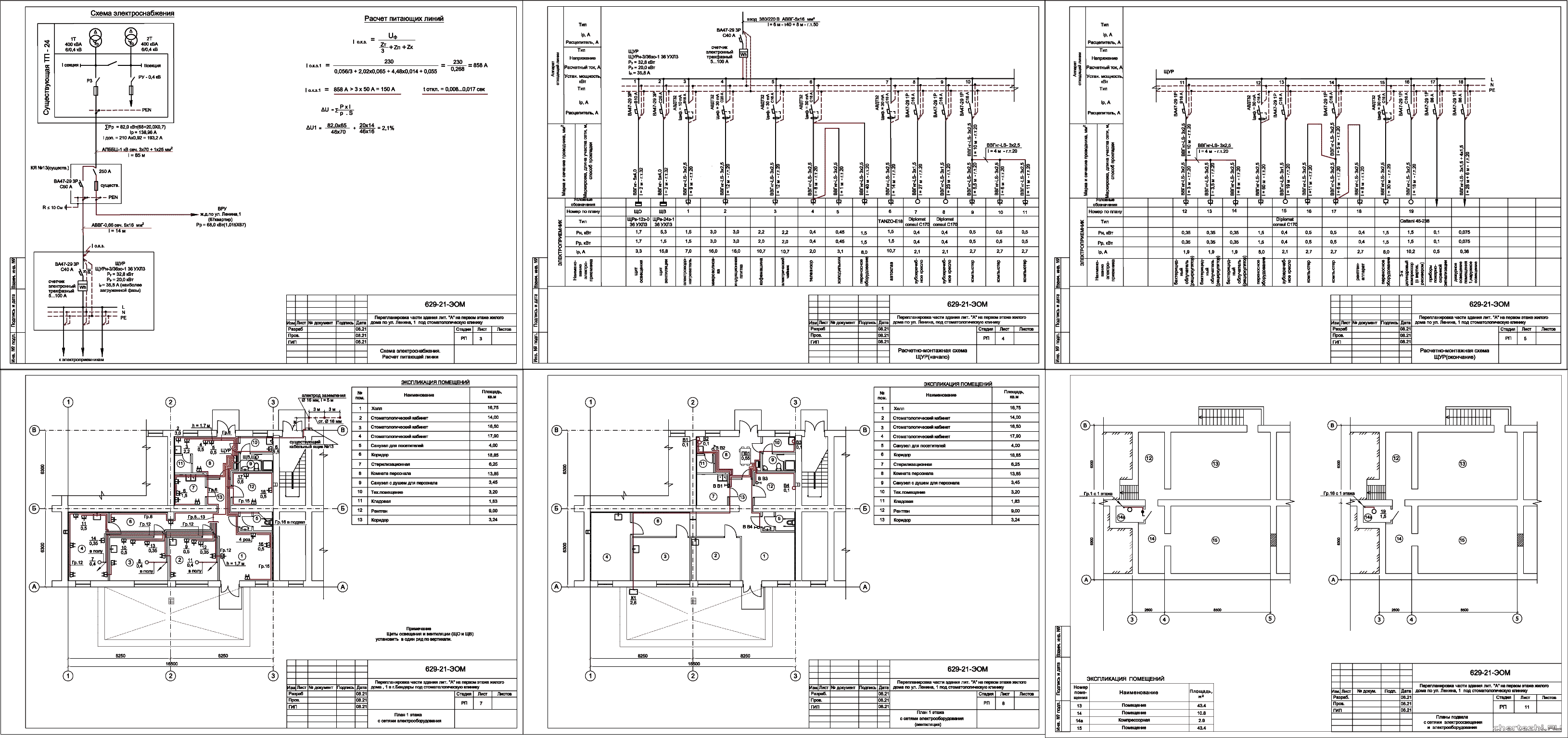
ЭОМ Перепланировка части здания лит. "А" на 1-ом этаже жилого дома под стоматологическую клинику Молдавия
РП
ЭОМ Перепланировка части здания лит. "А" на 1-ом этаже жилого дома под стоматологическую клинику | Год выпуска: 2021
РП / Электроосвещение и электрооборудование стоматологической клиники (1 этаж). / Состав: комплект чертежей + спецификация.
Дата: 22.8.25 23:30 | Поместил: Strages | Размер: 548.15 KB | Скачали: 0 Платформа: AutoCad | Рб:
1
ГСВ Газоснабжение 9-ти этажного жилого дома коммерческими целями на первом этаже и подземной автостоянкой в г. Кишинев Молдавия
РП
ГСВ Газоснабжение 9-ти этажного жилого дома коммерческими целями на первом этаже и подземной автостоянкой в г. Кишинев | Год выпуска: 2018
Р / Внутренние сети газоснабжения 9-ти этажного дома на 72 квартиры. / Состав: комплект чертежей + спецификация.
Дата: 16.7.25 13:54 | Поместил: Lia77 | Размер: 4.15 MB | Скачали: 0 Платформа: AutoCad | Рб:
2
АС Реконструкция нежилого здания уровней S+P+1E+M с преобразованием в S+P+3E Молдавия
РП
АС Реконструкция нежилого здания уровней S+P+1E+M с преобразованием в S+P+3E | Год выпуска: 2021
А / Конструктивные решения реконструкции нежилого здания. / Состав: комплект чертежей.
Дата: 3.1.25 18:31 | Поместил: sebastiansocolov | Размер: 2.24 MB | Скачали: 0 Платформа: AutoCad | Рб:
3
AGE AGI Alimentarea cu gaze naturale a casei de locuit individuală cu garaj si constructii  accesorii, amplasată în mun. Chişinău, sat. Coloniţa Молдавия
РП
AGE AGI Alimentarea cu gaze naturale a casei de locuit individuală cu garaj si constructii accesorii, amplasată în mun. Chişinău, sat. Coloniţa | Год выпуска: 2024
Reţelele de gaz exterioare/interioare. / Compoziție: 2 seturi de desene + specificații.
Дата: 22.12.24 11:54 | Поместил: sebastiansocolov | Размер: 11.28 MB | Скачали: 0 Платформа: AutoCad | Рб:
1
AGE AGI Alimentarea cu gaze naturale a imobilului reconstruit lit. 02 cu supraetajare şi edificarea unei anexe Молдавия
РП
AGE AGI Alimentarea cu gaze naturale a imobilului reconstruit lit. 02 cu supraetajare şi edificarea unei anexe | Год выпуска: 2023
Reţelele de gaze exterioare/interioare. / Compoziție: 2 seturi de desene + specificații.
Дата: 22.12.24 11:28 | Поместил: sebastiansocolov | Размер: 35.67 MB | Скачали: 0 Платформа: AutoCad | Рб:
2
AGE Alimentarea cu gaze naturale a casei de locuit tip P+E Молдавия
РП
AGE Alimentarea cu gaze naturale a casei de locuit tip P+E | Год выпуска: 2024
Reţelele de gaze exterioare / Alimentarea cu gaze naturale a casei de locuit tip P+E, amplasată în mun. Chişinău, com. Truşeni, sat. Truşeni, str. Hârtoape. / Compoziție: set de desene + specificații.
Дата: 22.12.24 10:51 | Поместил: sebastiansocolov | Размер: 45.76 MB | Скачали: 0 Платформа: AutoCad | Рб:
2
AGE AGI Alimentarea cu gaze naturale a casei de locuit cu trei scări cu regimul de înălțime S+P+9E Молдавия
РП
AGE AGI Alimentarea cu gaze naturale a casei de locuit cu trei scări cu regimul de înălțime S+P+9E | Год выпуска: 2023
Proiectul de execuţie prevede: Alimentarea cu gaze naturale a casei de locuit cu trei scări cu regimul de înălțime S+P+9E cu suprafețe comerciale la parter amplasată r-nul Soroca, mun. Soroca. / Compoziție: set de desene + specificații.
Дата: 1.10.24 10:24 | Поместил: sebastiansocolov | Размер: 10.50 MB | Скачали: 0 Платформа: AutoCad | Рб:
3
1 2 3 4 5 6 7 Далее »
 
Cloudim - онлайн консультант для сайта бесплатно.