Добавить проект
Прочитать правила
Платный доступ
Авторизация:
Информация


Чертежи » Рабочие проекты » Инженерные системы » Автоматизация / Автоматика » Промышленное оборудование (а) » Просмотр раздела

Промышленное оборудование

Фильтр по проектам:
Показать выполненные в CAD программе:
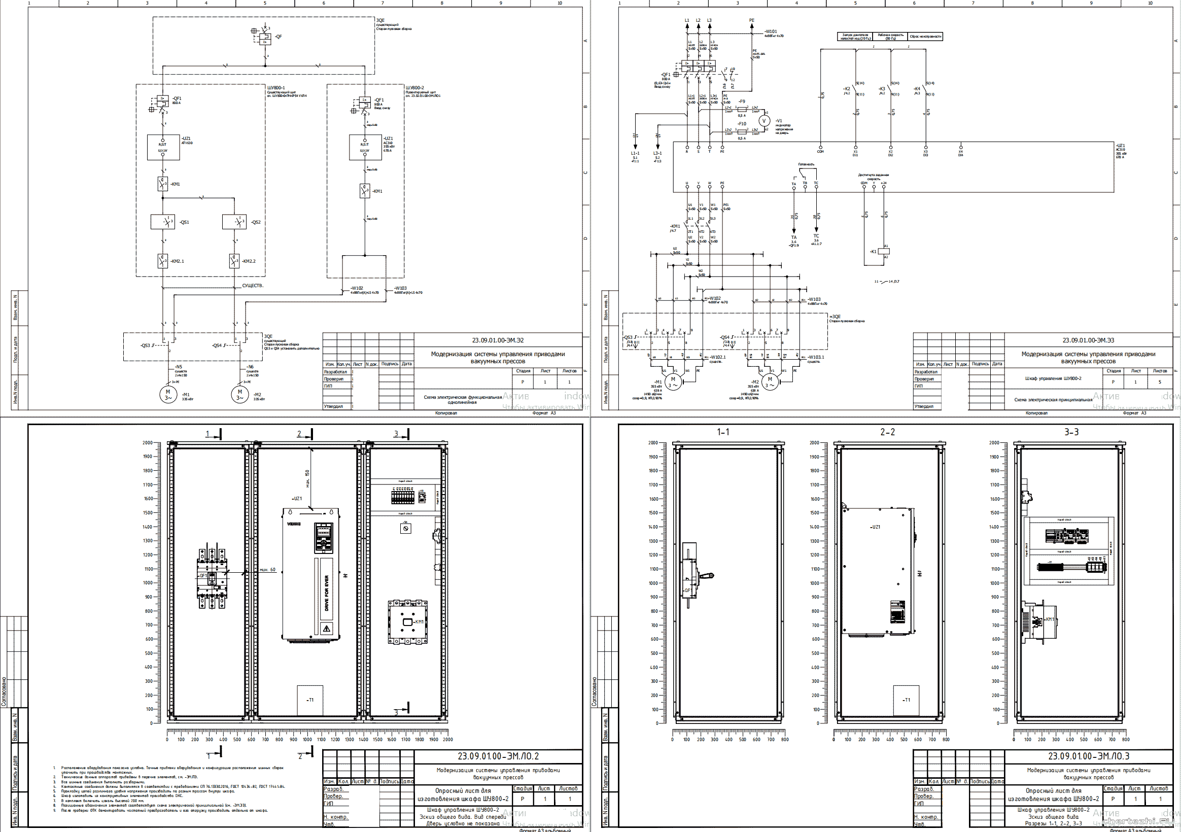
ЭМ Модернизация системы управления вакуумных прессов РП ЭМ Модернизация системы управления вакуумных прессов | Год выпуска: 2023
Р / Проектом предусматривается проектирование шкафа управления вакуумными прессами для ОАО "К". / Состав: комплект чертежей + спецификация.
Дата: 21.7.25 13:19 | Поместил: Volod80 | Размер: 971.33 KB | Скачали: 0 Платформа: PDF | Рб:
1
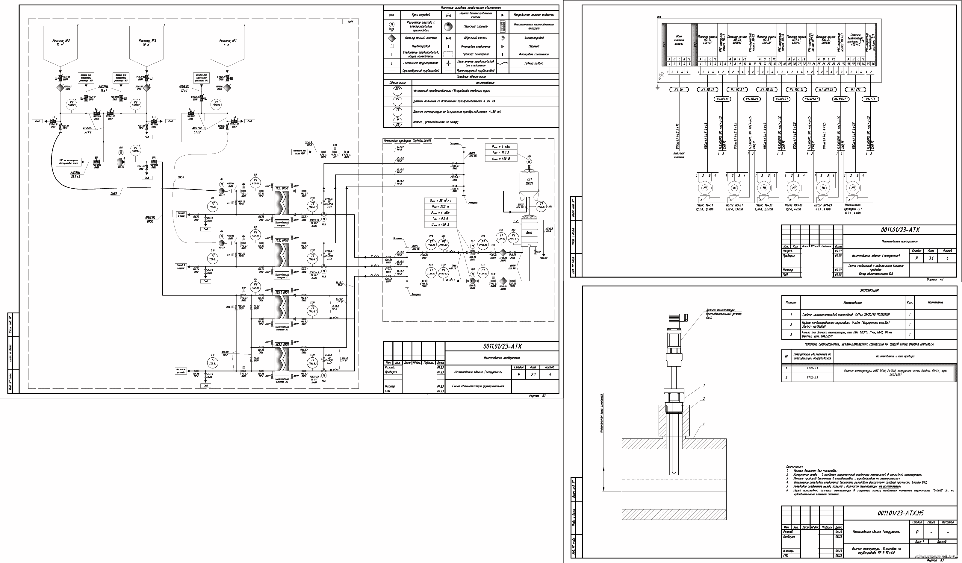
АТХ Система охлаждения готового продукта оборотной водой градирни РП АТХ Система охлаждения готового продукта оборотной водой градирни | Год выпуска: 2023
Р / Автоматизация технологических процессов / Установка охлаждения жидкого готового продукта (автомобильный шампунь, к примеру) при розливе его в упаковку с помощью пластинчатого теплообменника и открытой мокрой градирни. / Состав: комплект чертежей (7 листов) + кабельный журнал + установочные схемы приборов КИПиА + спецификация.
Дата: 19.12.24 09:15 | Поместил: Oleg1487 | Размер: 6.11 MB | Скачали: 3 Платформа: AutoCad | Рб:
2
ЭМ Система управления козловым краном ЗРМЗМ-20-32 РП ЭМ Система управления козловым краном ЗРМЗМ-20-32 | Год выпуска: 2020
Р / Проектом представлены принципиальные схемы управления козловым краном из кабины. / Состав: комплект чертежей + спецификация + кабельный журнал
Дата: 28.9.24 18:13 | Поместил: Nikoly777 | Размер: 1.22 MB | Скачали: 1 Платформа: AutoCad | Рб:
1
ЭМ Модернизация системы управления мостового крана КМЭ-10 с переводом его на радиоуправление РП ЭМ Модернизация системы управления мостового крана КМЭ-10 с переводом его на радиоуправление | Год выпуска: 2018
Р / Беспроводное радиоуправление мостовым краном. / Состав: комплект чертежей + спецификация + инструкция по управлению.
Дата: 28.9.24 06:46 | Поместил: Nikoly777 | Размер: 1.07 MB | Скачали: 1 Платформа: AutoCad | Рб:
2
АТХ ТХ Расширение силосного склада, гипсовое производство РП АТХ ТХ Расширение силосного склада, гипсовое производство | Год выпуска: 2014
РД / Автоматизация и электроснабжения гипсового производства с приложением исходников в виде раздела ТХ. / Состав: 2 комплекта чертежей + спецификация + ПЗ.
Дата: 12.5.23 14:07 | Поместил: Starski7878 | Размер: 12.22 MB | Скачали: 3 Платформа: AutoCad | Рб:
4
АТХ ЭМ Замена главного электрического двигателя компрессора РП АТХ ЭМ Замена главного электрического двигателя компрессора | Год выпуска: 2021
РД / Разработка разделов АТХ, АСУТП, ЭМ на взрывоопасном производстве. Интеграция в существующую систему. Подключение датчиков. / Состав: 2 комплекта чертежей + чертежи комплекта АСУТП без ПЗ.
Дата: 21.11.22 13:57 | Поместил: sweetdream81 | Размер: 1.98 MB | Скачали: 0 Платформа: AutoCad | Рб:
2
ЭМ Модернизация системы управления мостового крана РП ЭМ Модернизация системы управления мостового крана | Год выпуска: 2018
Стадия Р / Модернизация системы управления мостового крана КМЭ-10 с переводом его на радиоуправление, с возможностью управления от резервного подвесного пульта управления. / Состав: комплект чертежей.
Дата: 5.8.21 19:38 | Поместил: Nikoly777 | Размер: 1.04 MB | Скачали: 2 Платформа: AutoCad | Рб:
1
АСУЭ Автоматизированная система учета электроэнергии РП АСУЭ Автоматизированная система учета электроэнергии | Год выпуска: 2019
Стадия Р / «Установка приборов учета, класс напряжения 6 (10) кВ, ЛО (2 этап 175 точек учета) (2019 год, 114 точек учета) ПС-17 35 кВ Кингисеппская. / Состав: комплект чертежей + спецификация + Кабельный журнал + ПЗ.
Дата: 22.4.21 14:49 | Поместил: Aywar | Размер: 45.07 MB | Скачали: 0 Платформа: AutoCad | Рб:
1
АТХ Технологические сети склада ГСМ в Хабаровском крае РП АТХ Технологические сети склада ГСМ в Хабаровском крае | Год выпуска: 2019
Р / Автоматизация технологического оборудования склада в п. Оглонги. / Состав: комплект чертежей + спецификация.
Дата: 4.12.20 05:22 | Поместил: DenisUsov | Размер: 5.67 MB | Скачали: 2 Платформа: AutoCad | Рб:
1
А Автоматика цеха ферментации агропромышленного комплекса по выращиванию грибов РП А Автоматика цеха ферментации агропромышленного комплекса по выращиванию грибов | Год выпуска: 2016
РП / Разработка автоматики цехов по ферментации соломы для приготовления субстрата для выращивания грибов в Самарской области. / Состав: комплект чертежей + спецификация
Дата: 14.8.20 18:26 | Поместил: mev | Размер: 1.36 MB | Скачали: 1 Платформа: AutoCad | Рб:
2
Показать описание раздела:


 

 
Cloudim - онлайн консультант для сайта бесплатно.