Добавить проект
Прочитать правила
Платный доступ
Авторизация:
Информация


Чертежи » Рабочие проекты » Строительство » Архитектурные планы » Малые архитектурные формы » Просмотр раздела

Малые архитектурные формы проекты

Фильтр по проектам:
Показать выполненные в CAD программе:
Назначение объектов, сооружений (Малые формы архитектуры):
     Благоустройство     Коммунально-бытовые     Ограждения     Охранные     Рекламные конструкции     Спорт     Транспортные    Без фильтра
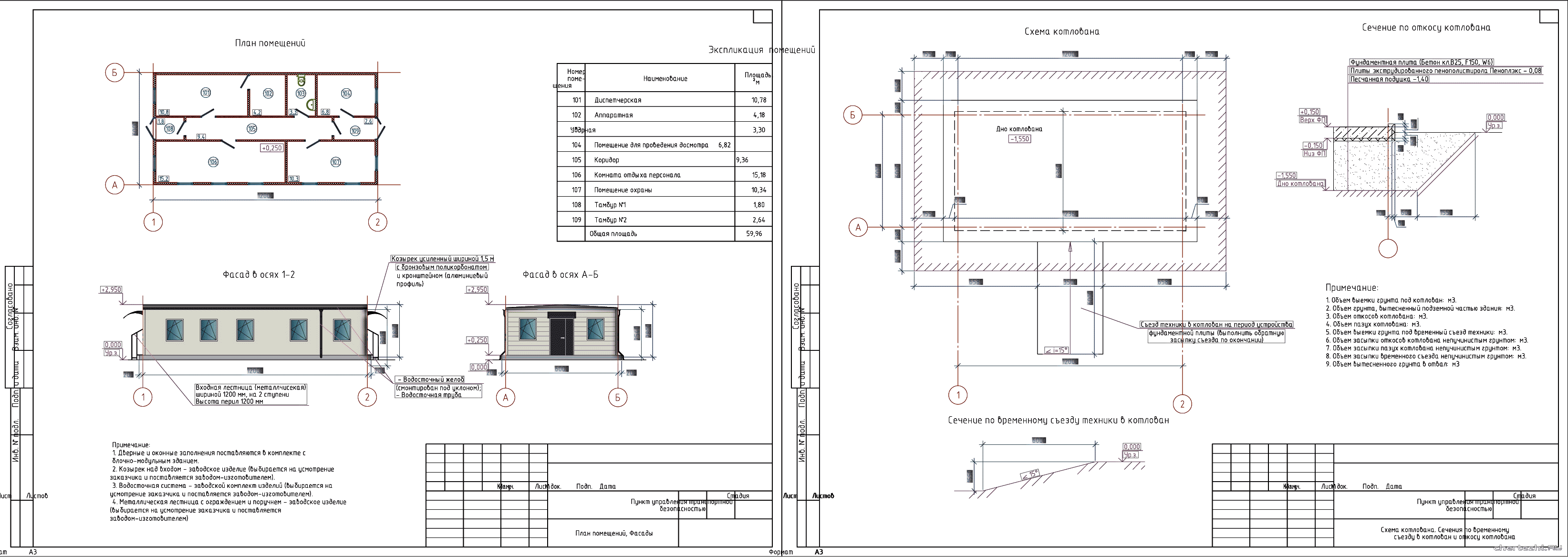
АСР Пункт управления транспортной безопасности РП АСР Пункт управления транспортной безопасности | Год выпуска: 2024
Р / Настоящим проектом предусмотрены архитектурно-строительные решения для двух зданий ТБ (здание совмещенного ПУ ТБ и Мини-контейнер-БК2). / Состав: комплект чертежей + спецификация.
Дата: 15.8.25 12:23 | Поместил: msslowpoke | Размер: 698.57 KB | Скачали: 0 Платформа: AutoCad | Рб:
1
АР Застекленная галерея между школой и столовой г. Луги Ленинградской области РП АР Застекленная галерея между школой и столовой г. Луги Ленинградской области | Год выпуска: 2024
П / Проект сооружения застекленной утепленной галереи. Галерея, соединяющая здание и школы и здание столовой. Утепленная, металлические конструкции, сэндвич панели. / Состав: комплект чертежей.
Дата: 25.2.25 05:07 | Поместил: DashaKopeikina | Размер: 1.49 MB | Скачали: 1 Платформа: AutoCad | Рб:
2
АР КР ЭОМ ВК ОВ Павильон отдыха 8 х 8 м РП АР КР ЭОМ ВК ОВ Павильон отдыха 8 х 8 м | Год выпуска: 2022
Р / Закрытая беседка (мангал, тапчан) с возможностью готовить и отдыхать до холодов. / Состав: 5 комплектов чертежи (АР - 28 листов, КР - 11 листов, ЭОМ - 4 листа, ВК - 3 листа, ОВ - 5 листов) + спецификации
Дата: 23.8.24 13:24 | Поместил: anderson899717 | Размер: 30.90 MB | Скачали: 3 Платформа: AutoCad, ArchiCAD, PDF | Рб:
5
АР Гараж металлический КП АР Гараж металлический | Год выпуска: 2023
Р / Здание гаража запроектировано из каркасов с обшивкой из сэндвич панелей толщиной 120 мм. / Состав: комплект чертежей
Дата: 25.6.24 12:06 | Поместил: amsterdam37 | Размер: 6.80 MB | Скачали: 4 Платформа: AutoCad | Рб:
1
АС Беседка 6 х 4 м РП АС Беседка 6 х 4 м | Год выпуска: 2022
Р / Архитектурно-строительные решения проекта беседки. / Состав: комплект чертежей.
Дата: 30.9.22 07:26 | Поместил: kudanna | Размер: 178.50 KB | Скачали: 1 Платформа: Компас | Рб:
2
АС Летний павильон 10 х 6 м в Алтайском крае РП АС Летний павильон 10 х 6 м в Алтайском крае | Год выпуска: 2021
АС / Проектирование летнего павильона для отдыха на турбазе предприятия из легких металлоконструкций. Высота здания по основному коньку кровли 4,8 м. Высота помещения внутри 3,0 м. / Состав: комплект чертежей + 3D-модель каркаса. Проект реализован.
Дата: 19.8.21 16:10 | Поместил: nikolabar | Размер: 15.18 MB | Скачали: 3 Платформа: ArchiCAD | Рб:
1
АС Навес у входной группы ТРЦ по оси "1" в г. Иркутск РП АС Навес у входной группы ТРЦ по оси "1" в г. Иркутск | Год выпуска: 2021
Р / Разработка стеклянного навеса над входной группой ТЦ в г. Иркутск. / Состав: комплект чертежей.
Дата: 29.4.21 12:13 | Поместил: butr | Размер: 2.50 MB | Скачали: 1 Платформа: AutoCad | Рб:
2
Чертежи КД - Уличный офисный павильон в форме многогранника РП Чертежи КД - Уличный офисный павильон в форме многогранника | Год выпуска: 2019
Стадия Р / Уличный павильон 10 х 10 м для расположения офиса/точки продаж. / Состав: чертежи 35 листов (узлы, настил, фанера, брус, короб, вход и т.д., без общих данных), чертежи выполнены с использованием СПДС для AutoCad
Дата: 14.12.20 07:47 | Поместил: Alex2222 | Размер: 14.39 MB | Скачали: 2 Платформа: AutoCad | Рб:
2
Остановка 3 х 3 м РП Остановка 3 х 3 м | Год выпуска: 2019
Состав: чертежи Сборочные единицы + деталировка
Дата: 27.3.20 10:41 | Поместил: kapelkoboris | Размер: 2.12 MB | Скачали: 0 Платформа: AutoCad | Рб:
1
КМД Остановочный павильон 3 х 1,5 м РП КМД Остановочный павильон 3 х 1,5 м | Год выпуска: 2018
Стадия Р / Остановочный павильон для пассажиров общественного транспорта. Каркас павильона выполнен из металлических профильных труб.Покрытие стен и кровли пролист С8. / Состав: комплект чертежей + 3Д модель
Дата: 3.2.20 17:47 | Поместил: nikolabar | Размер: 2.64 MB | Скачали: 2 Платформа: ArchiCAD | Рб:
1
Показать описание раздела:
Малые архитектурные формы благоустройства – это вспомогательные сооружения и элементы декора, которые выполняют простые функции и дополняют общий ансамбль.
Классификация форм
В зависимости от назначения они бывают:
- декоративными. К ним относятся фонтаны, скульптуры, искусственные водоемы в парках и т.д.;
- утилитарными. Эта категория включает скамейки, указатели, стенды, торговые киоски и павильоны, ограждения и пр.
Последние в свою очередь разделяются на:
- элементы организации рельефа и отдельных участков (откосы, пандусы);
- объекты торгового и коммунального назначения: киоски, палатки, детские малые архитектурные формы (игровые секции, аттракционы) и пр.;
- место размещения растений;
- водоемы, созданные человеком;
- ограждения;
- оборудование для отдыха (скамейки, пляжи, развлекательные площадки).
По принципу изготовления МАФ объединяются в 2 группы:
- индивидуальный проект малых архитектурных форм;
- производство по шаблонному типу.
Последнее актуально, когда речь идет о массовых застройках, благоустройстве объектов озеленения. Разработкой и реализацией таких проектов занимаются специальные организации. В некоторых случаях размещение и оформление МАФ регулируется на законодательном уровне.
Такие изделия производятся в основном из следующих материалов:
- бетона;
- дерева;
- кирпича;
- металла;
- полимеров;
- природного камня и пр.
На выбор конкретного из них влияет тип, назначение, будущий дизайн малых архитектурных форм. На нашем сайте вы можете скачать готовые проекты и преобразить внешний вид участка.
 
Cloudim - онлайн консультант для сайта бесплатно.