Добавить проект
Прочитать правила
Платный доступ
Авторизация:
Информация


Чертежи » Дипломные и курсовые работы » Строительство » Строительные конструкции » Конструкции из дерева и пластмасс » Просмотр раздела

Курсовые работы конструкции из дерева и пластмасс

Фильтр по проектам:
Показать выполненные в CAD программе:
Вузы: (КДиП) Название Вуза с буквы:
     А     Б     В     Д     З     И     К     Л     М     Н     О     П     Р     С     Сред.проф.зав.     Т     У     Х     Ю    Без фильтра
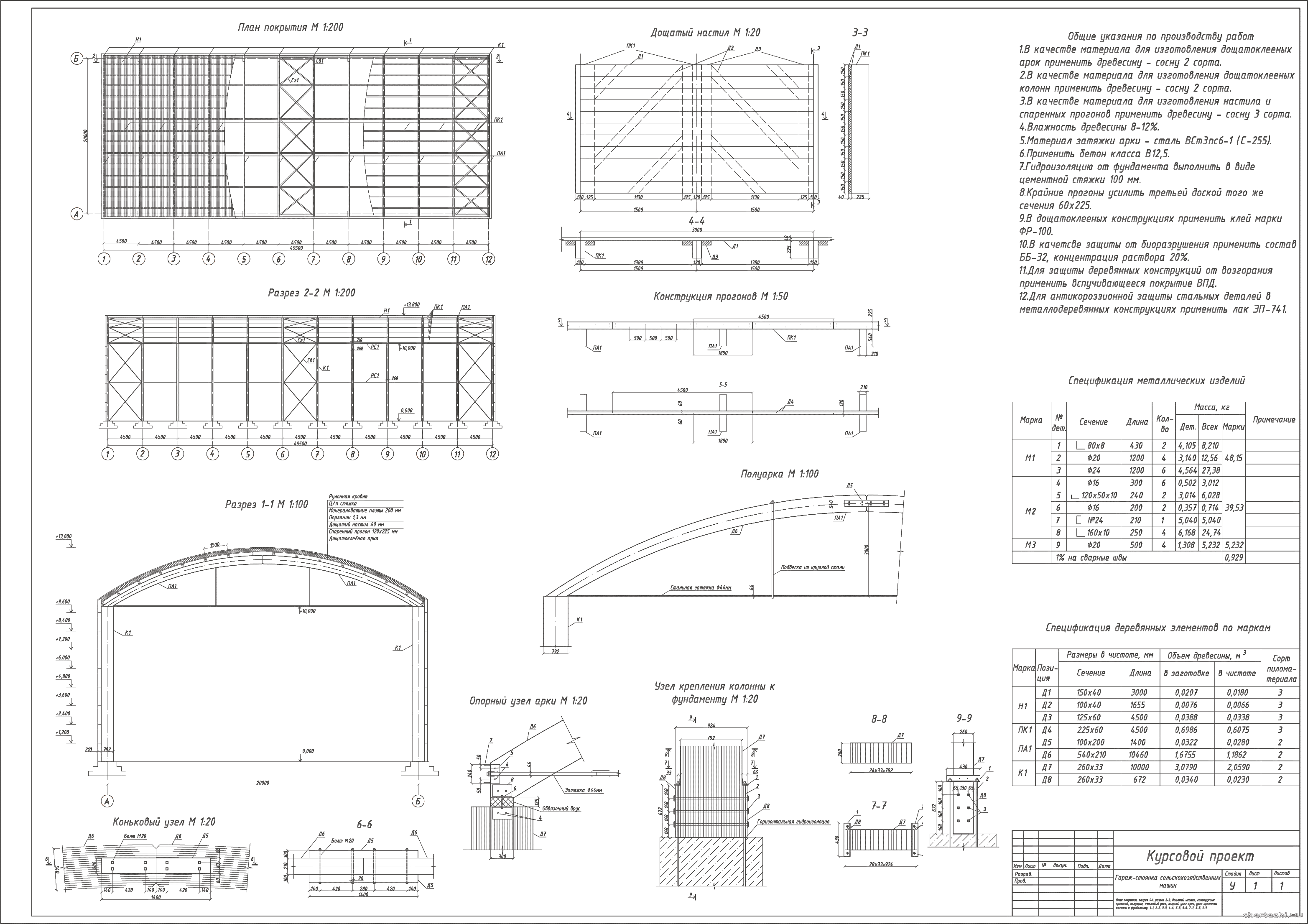
Курсовой проект - КДиП Гараж-стоянка сельскохозяйственных машин 49,5 х 20,0 м в г. Казань КП Курсовой проект - КДиП Гараж-стоянка сельскохозяйственных машин 49,5 х 20,0 м в г. Казань | Год выпуска: 2024
КубГТУ / Кафедра СК / Проектирование и расчет деревянных конструкций гаража-стоянки сельскохозяйственных машин / Состав: 1 лист чертеж (план покрытия, разрез 1-1, разрез 2-2, дощатый настил, конструкция прогонов, полуарка, коньковый узел, опорный узел арки, узел крепления колонны к фундаменту, 1-1, 2-2, 3-3, 4-4, 5-5, 6-6, 7-7, 8-8, 9-9) + ПЗ (41 страница).
Дата: 12.10.25 15:03 | Поместил: PUPS1K | Размер: 3.43 MB | Скачали: 1 Платформа: AutoCad | Рб:
1
Курсовой проект - КДиП Деревянное покрытие 2-х этажного промышленного здания универсального назначения 22,2 х 50,0 м в г. Великий Новгород КП Курсовой проект - КДиП Деревянное покрытие 2-х этажного промышленного здания универсального назначения 22,2 х 50,0 м в г. Великий Новгород | Год выпуска: 2025
ВГТУ / Кафедра строительных конструкций, оснований и фундаментов имени профессора Ю.М. Борисова / по дисциплине «Конструкции из дерева и пластмасс» / В проекте разработаны и рассчитаны деревянные конструкции крыши 2-х этажного промышленного здания универсального назначения. Здание прямоугольное в плане с размерами в осях 22,2 х 50 м. / Состав: 5 листов чертежи (схема расположения прогонов, балок, щитов, план здания узлы крепления, расположения прогонов, балок, щитов, схема расстановки нагелей) + файлы с расчётами двухскатной балки, прогона, щита (в exsel) + ПЗ (46 страниц).
Дата: 8.10.25 16:53 | Поместил: NinaF1 | Размер: 3.16 MB | Скачали: 0 Платформа: AutoCad | Рб:
1
Курсовой проект - КД промышленного здания универсального назначения 50,0 х 22,2 м в г. Великий Новгород КП Курсовой проект - КД промышленного здания универсального назначения 50,0 х 22,2 м в г. Великий Новгород | Год выпуска: 2025
ВГТУ / Кафедра металлических и деревянных конструкций / по дисциплине «Конструкции из дерева и пластмасс» / Проектирование деревянного покрытия промышленного здания универсального назначения. / Состав: 5 листов чертежи (Компоновочная схема здания, Схема расположения балок, Схема расположения прогонов, Схема расположения щитов, Спецификация монтажных элементов, Разрез 1-1. Дощато-гвоздевой щит Щ1, Спецификация элементов Щ1, Разрез 5-5, Расчетная схема дощато-гвоздевого щита Щ1. Монтажные узлы: 1,2,3,4,5, Разрез 4-4. Клееная балка Б1. Дощато-гвоздевой щит) + ПЗ (48 страниц)
Дата: 1.10.25 14:17 | Поместил: bibaiboba2dolbaeba56 | Размер: 2.47 MB | Скачали: 0 Платформа: AutoCad | Рб:
1
Курсовой проект - КДиП Расчёт и проектирование несущих элементов  сетчатого деревянного купола КП Курсовой проект - КДиП Расчёт и проектирование несущих элементов сетчатого деревянного купола | Год выпуска: 2025
ПГУАС / ИСИ / Кафедра СК / По дисциплине: «Конструкции из дерева и пластмасс» / Рассчитать и запроектировать несущие элементы сетчатого деревянного купола выставочного павильона. Диаметр купола 78 м, высота 17 м. / Состав: 3 листа чертежи + ПЗ
Дата: 12.9.25 17:22 | Поместил: archymaria | Размер: 2.16 MB | Скачали: 0 Платформа: AutoCad | Рб:
2
Курсовой проект - КД однопролетного здания. Арка кругового сечения из клееных деревянных конструкций КП Курсовой проект - КД однопролетного здания. Арка кругового сечения из клееных деревянных конструкций | Год выпуска: 2025
МГСУ / Кафедра "Металлических и Деревянных конструкций" / по дисциплине «Проектирование строительных конструкций» / Расчет арки кругового очертания из клееных деревянных конструкций / Вариант 19 / Состав: 1 лист чертеж (Поперечная схема здания с указанием размеров и действующих нагрузок. Схема расположения основных элементов конструкции. Узлы. Спецификация элементов и расход материалов. Визуализация) + ПЗ (42 страницы).
Дата: 26.7.25 08:38 | Поместил: trtrklava | Размер: 2.11 MB | Скачали: 1 Платформа: AutoCad, PDF | Рб:
2
Курсовой проект - КД Большепролетные арочные покрытия КП Курсовой проект - КД Большепролетные арочные покрытия | Год выпуска: 2024
НГАСУ (Сибстрин) / Кафедра металлических и деревянных конструкций / Расчет двухшарнирной арки, подбор сечений арки. / Состав: 1 лист чертеж + ПЗ (33 страницы)
Дата: 27.5.25 06:34 | Поместил: Alexa777 | Размер: 1010.27 KB | Скачали: 1 Платформа: AutoCad | Рб:
1
Курсовой проект - КДиП Каркас 1-о этажного однопролетного производственного здания 26,4 х 14,0 м КП Курсовой проект - КДиП Каркас 1-о этажного однопролетного производственного здания 26,4 х 14,0 м | Год выпуска: 2024
Губкинский филиал БГТУ / Кафедра "Гуманитарных, естественнонаучных и технических дисциплин" / дисциплина "Конструкции из дерева и пластмасс" / Состав: 2 листа чертежи (Совмещенные фасад в осях 9-17 и разрез 1-1, Совмещенный план на отм. 0.000, план кровли, Фасад Б-А, Разрез 2-2, Колонна КД1. Балка БДК1, Клееный пакет БДК1, Узлы 4,5, МС1, МС2, МС3,МС4, Расчетная схема балки) + ПЗ (35 страниц в рdf).
Дата: 19.5.25 07:37 | Поместил: LeeEnfield | Размер: 2.99 MB | Скачали: 2 Платформа: AutoCad | Рб:
1
Курсовой проект - КД Трапециевидная металло-деревянная ферма КП Курсовой проект - КД Трапециевидная металло-деревянная ферма | Год выпуска: 2025
ННГАСУ / Кафедра железобетонных, каменных и деревянных конструкций / по дисциплине «Конструкции из дерева и пластмасс» / Рассчитать и сконструировать покрытие однопролётного здания. / Состав: 1 лист чертеж + ПЗ (34 страницы).
Дата: 14.5.25 15:16 | Поместил: hysalss | Размер: 603.65 KB | Скачали: 2 Платформа: Компас | Рб:
1
Курсовой проект - КД 2-х этажного промышленного здания универсального назначения 40,0 х 19,8 м в г. Ставрополь КП Курсовой проект - КД 2-х этажного промышленного здания универсального назначения 40,0 х 19,8 м в г. Ставрополь | Год выпуска: 2025
ВГТУ / Кафедра металлических и деревянных конструкций / по дисциплине «Конструкции из дерева и пластмасс» / Проектирование деревянного покрытия промышленного здания универсального назначения. / Состав: 5 листов чертежи (Монтажные узлы; Дощато-гвоздевой щит; Клееная балка; Схема расположения прогонов; Компоновочная схема здания) + ПЗ (45 страниц).
Дата: 14.5.25 14:14 | Поместил: kukuruza21 | Размер: 4.78 MB | Скачали: 0 Платформа: AutoCad | Рб:
1
Курсовой проект - КД 2-х этажного промышленного здания универсального назначения 60,0 х 23,4 м в г. Волгоград КП Курсовой проект - КД 2-х этажного промышленного здания универсального назначения 60,0 х 23,4 м в г. Волгоград | Год выпуска: 2025
ВГТУ / Кафедра металлических и деревянных конструкций / по дисциплине «Конструкции из дерева и пластмасс» / Проектирование деревянного покрытия промышленного здания универсального назначения. / Вариант 6 / Состав: 5 листов чертежи ( Монтажные узлы; Дощато-гвоздевой щит; Клееная балка; Схема расположения прогонов; Компоновочная схема здания) + ПЗ (45 страниц).
Дата: 14.5.25 13:50 | Поместил: kukuruza21 | Размер: 1.64 MB | Скачали: 0 Платформа: AutoCad | Рб:
1
Показать описание раздела:
Курсовая пластмассы и конструкции из дерева представляют собой обязательную составляющую процесса обучения студентов соответствующих специальностей, предназначенная для развития их инженерных навыков. Все проекты разрабатываются на основании техзадания.
Готовые проекты на тему «Пластмассовые и деревянные конструкции курсовая работа» можно условно бесплатно скачать на сайте Чертежи. РУ. В данном разделе содержатся следующие категории конструирования:
- здания промышленного назначения;
- складского;
- жилого;
- сельскохозяйственного;
- здания общественного назначения (выставочные, торговые и т.д.);
- сооружения вспомогательного типа;
- по этажности: одно- и многоэтажные.
Курсовая «конструкции из дерева и пластмасс» имеет следующую структуру: - общие сведения;
- компоновка и пространственное раскрепление каркаса;
- разработка несущих конструкций;
- графический раздел;
- расчетная часть и пояснительная записка.
Содержание курсовой «деревянные конструкции и пластмассы» определяется техническим заданием. В общих сведениях осуществляется анализ исходных данных и ТЗ, приводится характеристика района строительства (особенности климата, рельефа, грунта).
При разработке можно применять алгоритм: вариантное, техническое, рабочее проектирование. Сначала схематически разрабатывается два и более варианта конструктивно-планировочных схем здания (построение схемы каркаса, определяются размеры отдельных элементов и конструкции в целом, выбираются сечения, эскизы узлов, уточняются размеры здания). Из них выбирается один, наиболее оптимальный по техническим и экономическим характеристикам.
На основании выбранного варианта составляется точная конструктивная разработка здания: осуществляется сбор нагрузок, выполняются статические расчеты (составление расчетных схем, определение внутренних усилий изгибающих моментов, поперечных и продольных сил) и конструктивные расчеты (рассчитываются узлы, осуществляется выбор материалов, определение форм и размеров сечения).
В графическом разделе курсовая пластмассы представлены рабочие чертежи несущей конструкции здания, чертежи элементов конструкций и узлов главной несущей, схемы расположения элементов конструкции.
В пояснительной записке приводится описание компоновочно-конструктивного решения объекта, расчеты конструкций здания, описание сборки и монтажа.
 
Cloudim - онлайн консультант для сайта бесплатно.