Добавить проект
Прочитать правила
Платный доступ
Авторизация:
Информация


Чертежи » Рабочие проекты » Инженерные системы » Электроснабжение » Жилые здания / помещения (э) » Просмотр раздела

Проекты Электроснабжение - Жилые здания / помещения

Фильтр по проектам:
Показать выполненные в CAD программе:
Электроснабжение (жилые здания) показывать:
     Квартиры     Многоэтажные/квартирные дома     Частные дома / коттеджи    Без фильтра
ЭС 9-ти этажное жилое здание РП ЭС 9-ти этажное жилое здание | Год выпуска: 2018
П / Внутреннее электроснабжение МЖД. / Состав: комплект чертежей + спецификация.
Дата: 22.10.25 14:48 | Поместил: TAD | Размер: 13.27 MB | Скачали: 0 Платформа: AutoCad, PDF | Рб:
2
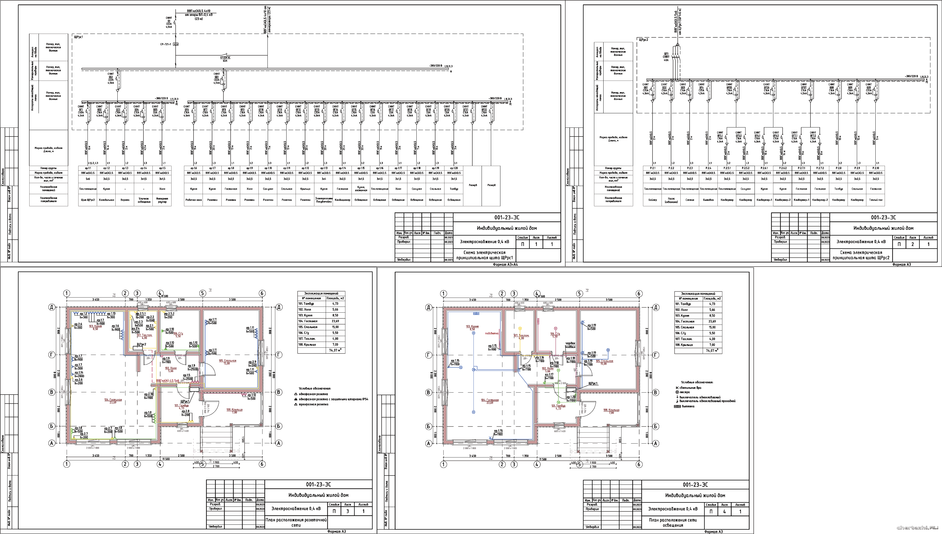
ЭС 1-о этажный индивидуальный жилой дом РП ЭС 1-о этажный индивидуальный жилой дом | Год выпуска: 2023
Р / Электроснабжение 0,4 кВ индивидуального жилого дома (1 этаж). / Состав: комплект чертежей + спецификация.
Дата: 13.10.25 07:20 | Поместил: AndreyMad | Размер: 756.31 KB | Скачали: 0 Платформа: AutoCad | Рб:
1
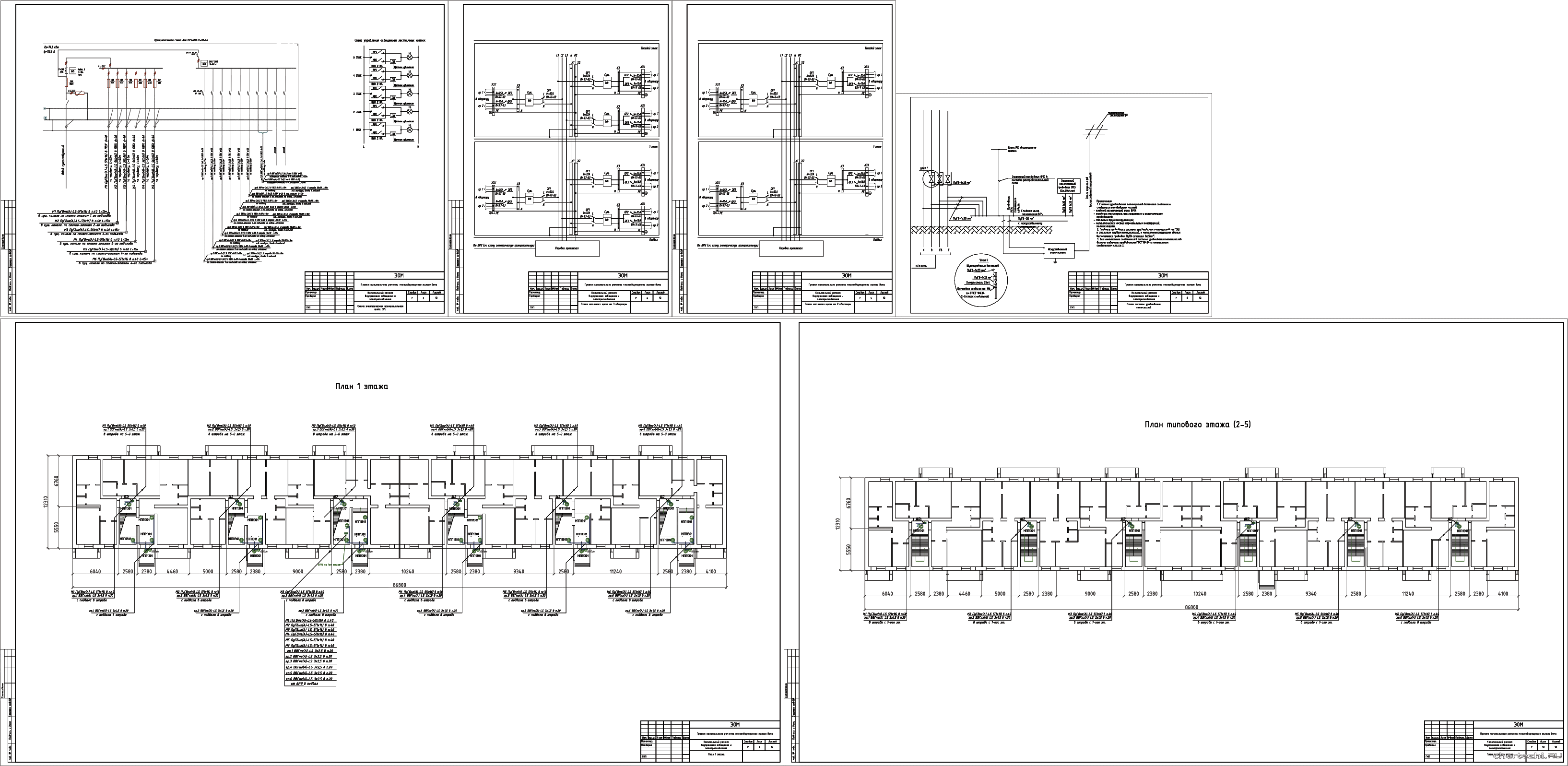
ЭОМ Капитальный ремонт 4-х этажного 2-х подъездного многоквартирного жилого дома в Воронежской области РП ЭОМ Капитальный ремонт 4-х этажного 2-х подъездного многоквартирного жилого дома в Воронежской области | Год выпуска: 2025
Р / Капитальный ремонт внутреннего освещения и электроснабжения МЖД. / Состав: комплект чертежей + спецификация.
Дата: 8.10.25 08:31 | Поместил: hlopok | Размер: 1001.29 KB | Скачали: 0 Платформа: AutoCad | Рб:
1
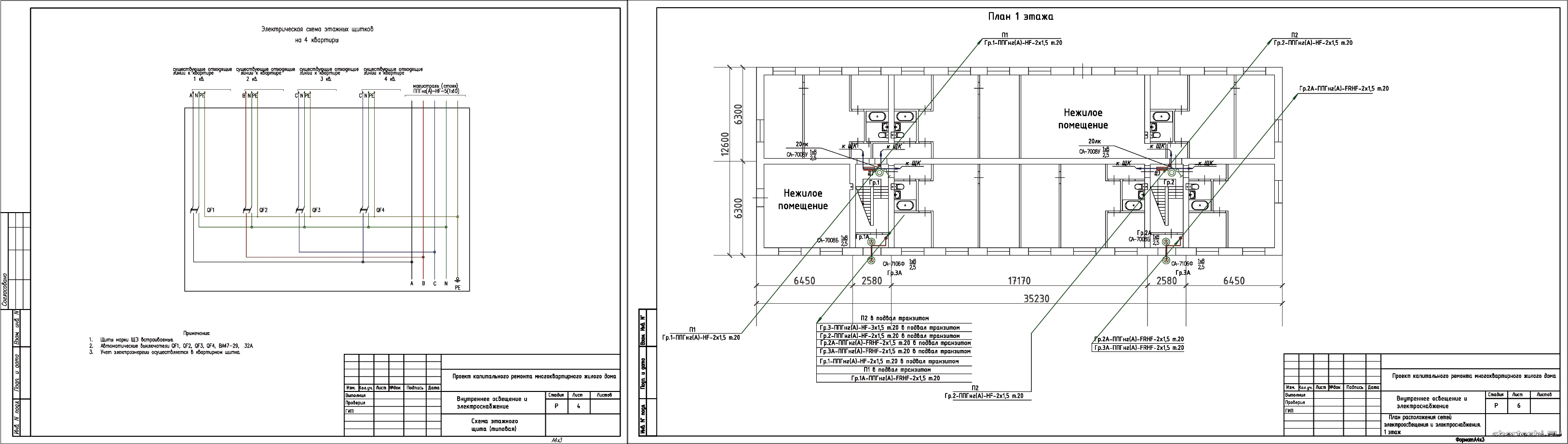
ЭОМ Капитальный ремонт освещения и электроснабжения 5-ти этажного жилого дома в г. Воронеж РП ЭОМ Капитальный ремонт освещения и электроснабжения 5-ти этажного жилого дома в г. Воронеж | Год выпуска: 2025
Р / Рабочая документация на капитальный ремонт многоквартирного дома, расположенного в г. Воронеж выполнена на основании задания на проектирование, правил устройства электроустановок ПУЭ-7 и свода правил СП 256-1325800.2016 / Состав: комплект чертежей + спецификация.
Дата: 30.9.25 07:23 | Поместил: hlopok | Размер: 654.98 KB | Скачали: 0 Платформа: AutoCad | Рб:
1
ЭОМ Электроснабжение квартиры Тип 2 РП ЭОМ Электроснабжение квартиры Тип 2 | Год выпуска: 2023
Р / Электроснабжение квартиры для ЖК. / Состав: комплект чертежей + спецификация
Дата: 22.2.25 06:28 | Поместил: 89806870076a | Размер: 2.26 MB | Скачали: 1 Платформа: AutoCad | Рб:
1
ЭОМ Электроснабжение квартиры Тип 1 РП ЭОМ Электроснабжение квартиры Тип 1 | Год выпуска: 2023
Р / Электроснабжение квартиры для ЖК. / Состав: комплект чертежей + спецификация
Дата: 22.2.25 05:19 | Поместил: 89806870076a | Размер: 1.85 MB | Скачали: 0 Платформа: AutoCad | Рб:
1
ЭОМ 2-х этажный индивидуальный жилой дом в Ленинградской области РП ЭОМ 2-х этажный индивидуальный жилой дом в Ленинградской области | Год выпуска: 2019
РД / Разработан проект внутренних электрических сетей индивидуального жилого дома (2 этажа). / Состав: комплект чертежей + спецификация.
Дата: 11.11.24 19:35 | Поместил: Slava211182 | Размер: 782.83 KB | Скачали: 1 Платформа: AutoCad | Рб:
1
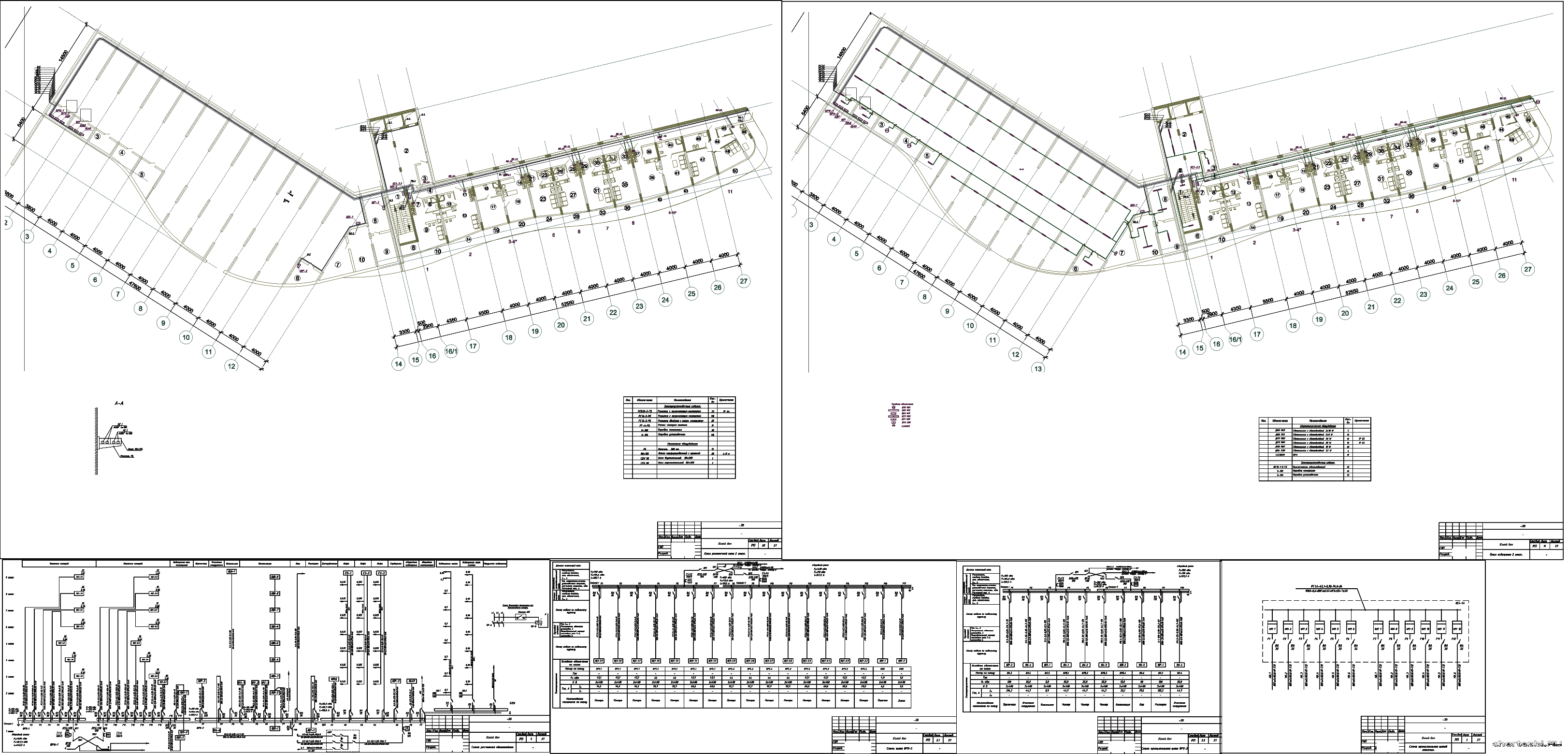
ЭО 9-ти этажный многоквартирный жилой дом в г. Севастополь РП ЭО 9-ти этажный многоквартирный жилой дом в г. Севастополь | Год выпуска: 2018
Р / Проект внутреннего электрооборудования и электроосвещения многоквартирного жилого дома с поликлиникой. / Состав: комплект чертежей + спецификация
Дата: 1.10.24 12:51 | Поместил: Nikoly777 | Размер: 4.65 MB | Скачали: 1 Платформа: AutoCad | Рб:
3
ЭОМ 5-ти этажный жилой дом на 90 квартир в г. Кызыл РП ЭОМ 5-ти этажный жилой дом на 90 квартир в г. Кызыл | Год выпуска: 2020
П / В объем настоящего проекта входит электрооборудование, электроосвещение, отреконструированного общежития под жилой дом на 90 квартир в военном городке. / Состав: комплект чертежей + спецификация
Дата: 26.9.24 12:25 | Поместил: YuliaD | Размер: 5.05 MB | Скачали: 0 Платформа: AutoCad | Рб:
1
ЭОС Проект реконструкции электроснабжения 5 этажного дома, 5 секций г. Сургут РП ЭОС Проект реконструкции электроснабжения 5 этажного дома, 5 секций г. Сургут | Год выпуска: 2023
Стадия Р / В проекте выполнено рабочее освещение. Принята система общего равномерного освещения. Напряжение питания групповой сети рабочего электроосвещения принято 220 В. / Состав: комплект чертежей + Спецификация, Каб.журнал
Дата: 18.9.24 07:28 | Поместил: Romapio | Размер: 1.49 MB | Скачали: 0 Платформа: AutoCad | Рб:
1
Показать описание раздела:
Подсоединение жилого дома к электрической сети и обеспечение освещения осуществляется в несколько этапов. Наиболее значимой частью данного процесса является проектирование.
Проекты электроснабжения здания разрабатываются на основании ТУ и архитектурно-строительных чертежей. Технические условия выдаются организацией, осуществляющей поставку электроэнергии.
Также проект внутреннего электроснабжения учитывает план расстановки электрической техники и приборов освещения.
Когда проект электроснабжения частного дома разработан, его отправляют на согласование в местные органы Госэнергонадзора. После того как проект утвержден, приступают к выполнению электромонтажных работ, по окончанию которых приступают к электрофизическим измерениям, получению акта осмотра и оформлению разрешения на эксплуатацию в организации, поставляющей электроэнергию.
Проведение электроснабжения в частном доме предусматривает:
- подведение коммуникаций к зданию;
- распределение;
- установление счетчика электроэнергии;
- организация групповой сети;
- обеспечение контура заземления.
Проект электроснабжения помещения содержит документацию:
- расчетную часть (нагрузки питающей линии);
- план здания/помещения;
- план расстановки электрических приборов;
- чертежи по электрике с указанием розеток, светильников, стабилизаторов напряжения;
- коммуникации вывода на улицу для питания бытовок;
- подбор оборудования и материалов;
- составление спецификации;
- молниезащита;
- расчет заземления;
Кроме того проект электроснабжения жилого дома предусматривает систему пожаробезопасности и предотвращения поражения током.
Типовые проекты электроснабжения здания можно рассмотреть и бесплатно скачать на сайте chertezhi.ru.
 
Cloudim - онлайн консультант для сайта бесплатно.