Добавить проект
Прочитать правила
Платный доступ
Авторизация:
Информация


Чертежи » Рабочие проекты » Инженерные системы » Газоснабжение » Внутреннее газоснабжение » Просмотр раздела

Проекты внутреннего газоснабжения (ГСВ)

Фильтр по проектам:
Показать выполненные в CAD программе:
Назначение зданий (газоснабжение):
     Здания соц-быт. назначения     Инженерные строения     Коттеджи, частные дома     Многоэтажные жилые дома     Промышленные здания    Без фильтра
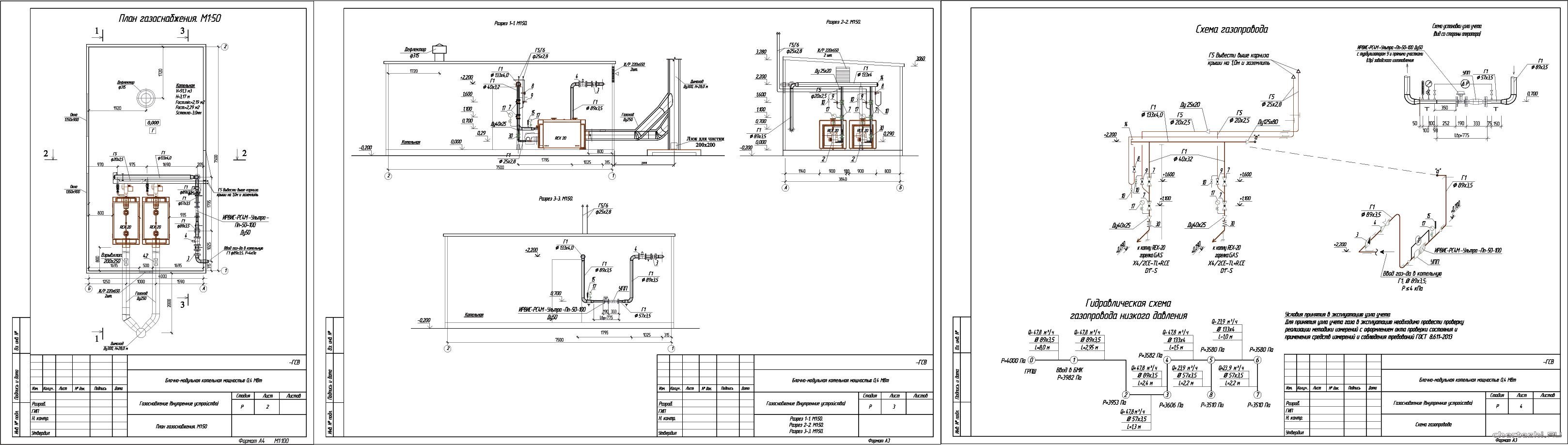
ГСВ Газоснабжение блочно-модульной котельной 0,4 МВт РП ГСВ Газоснабжение блочно-модульной котельной 0,4 МВт | Год выпуска: 2021
Р / Газоснабжение БМК 0,4 МВт с установкой двух котлов REX-20. / Состав: комплект чертежей + спецификация.
Дата: 27.1.26 08:14 | Поместил: Alfeya | Размер: 258.39 KB | Скачали: 0 Платформа: AutoCad | Рб:
1
ГСВ АГСВ Замена двух отопительных котлов в действующей котельной РП ГСВ АГСВ Замена двух отопительных котлов в действующей котельной | Год выпуска: 2023
П / Проектной документацией предусматривается демонтаж 2-х существующих котлов КЧМ-5-ГВ мощностью по 96 кВт, установка двух проектируемых котлов мощностью по 96 кВт каждый производства ROSSEN г. Туймазы. Разделом "Автоматика безопасности" предусматривается замена действующей автоматики безопасности котельной САКЗ-МК-3 на новую автоматику САКЗ-МК-3 с выводом сигналов об аварийном состоянии на пульт в помещение охраны и предусматривает автоматику безопасности и управление газовых котлов, пожарную и охранную сигнализацию, а так же автоматический контроль загазованности в помещении котельной с выводом сигнализации в помещение охраны. / Состав: 2 комплекта чертежей + спецификации + ПЗ.
Дата: 7.10.25 17:40 | Поместил: 61 | Размер: 9.77 MB | Скачали: 0 Платформа: AutoCad | Рб:
2
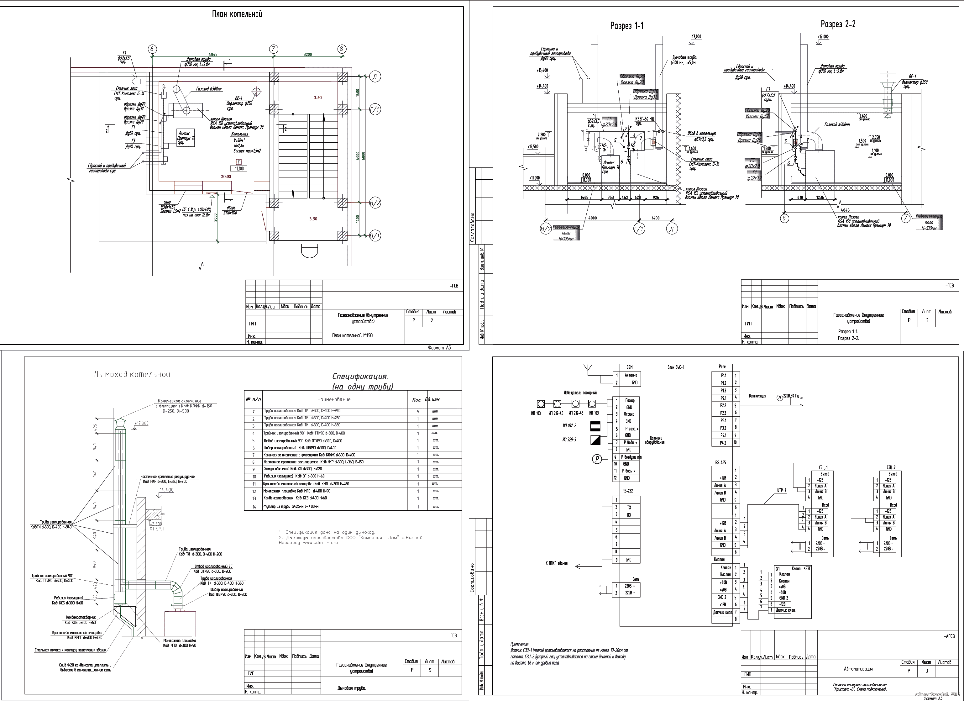
ГСВ АГСВ Газоснабжение крышной котельной РП ГСВ АГСВ Газоснабжение крышной котельной | Год выпуска: 2025
Р / Проектом предусматривается газоснабжение котла Rossen RSA 150, устанавливаемого взамен ранее эксплуатировавшегося одного котла Лемакс Премиум 70. Один котел Лемакс Премиум 70 остается в рабочем состоянии. / Состав: 2 комплекта чертежей + спецификация.
Дата: 2.10.25 03:36 | Поместил: Alfeya | Размер: 1.13 MB | Скачали: 1 Платформа: AutoCad | Рб:
2
ГС Газоснабжение жилого дома в г. Екатеринбург РП ГС Газоснабжение жилого дома в г. Екатеринбург | Год выпуска: 2025
Р / Установка ГРПШ-FE10-1-У1-СГ со встроенным счетчиком MK-G6T для снижения давления газа до низкого. Установка газового котла. Площадь отапливаемого помещения 309 м2. / Состав: комплект чертежей + спецификация.
Дата: 26.3.25 07:49 | Поместил: vito007 | Размер: 550.05 KB | Скачали: 0 Платформа: Компас | Рб:
1
ГСВ Техническое перевооружение сети газопотребления ПВК 12 на ТЭЦ-23 РП ГСВ Техническое перевооружение сети газопотребления ПВК 12 на ТЭЦ-23 | Год выпуска: 2016
Р / Реконструкция газопровода на ТЭЦ-23 от ГРП до горелок котла ПТВМ-180 №12. / Состав: комплект чертежей (22 листа) + спецификация
Дата: 21.12.24 16:56 | Поместил: Scorpion2710 | Размер: 5.11 MB | Скачали: 0 Платформа: AutoCad | Рб:
2
ГСВ Газоснабжение котельной мощностью 400 кВт РП ГСВ Газоснабжение котельной мощностью 400 кВт | Год выпуска: 2020
Р / Проектом предусматривается газоснабжение блочно-модульной газовой котельной в микрорайоне №1 жилого района "Н" в г.Чебоксары. Расход газа на котельную составляет 47,8 м³/час. / Состав: комплект чертежей + спецификация
Дата: 26.11.24 12:34 | Поместил: Alfeya | Размер: 319.23 KB | Скачали: 0 Платформа: AutoCad | Рб:
1
ГСВ ЭЛ ОПС Газоснабжение котельной с тремя котлами ALPHA E 4000 РП ГСВ ЭЛ ОПС Газоснабжение котельной с тремя котлами ALPHA E 4000 | Год выпуска: 2020
Р / Данным проектом предусматривается газоснабжение котельной с тремя котлами ALPHA E 4000 (по 4 МВт каждый), оборудованными горелками FBR. А также электроосвещение и силовое электрооборудование, устройство пожарной сигнализации. / Состав: 3 комплекта чертежи + спецификации + ПЗ.
Дата: 16.10.24 12:45 | Поместил: Alfeya | Размер: 12.13 MB | Скачали: 2 Платформа: AutoCad | Рб:
3
ГСН.ГСВ Индивидуальный жилой дом РП ГСН.ГСВ Индивидуальный жилой дом | Год выпуска: 2023
РП / Решения по устройству системы газоснабжения частного дома. / Состав: комплект чертежей + спецификация
Дата: 6.8.24 11:49 | Поместил: KalinAlyona | Размер: 217.98 KB | Скачали: 1 Платформа: AutoCad | Рб:
1
ГСН.ГСВ Индивидуальный жилой дом РП ГСН.ГСВ Индивидуальный жилой дом | Год выпуска: 2023
РП / Решения по устройству системы газоснабжения частного дома. / Состав: комплект чертежей + спецификация
Дата: 6.8.24 11:48 | Поместил: KalinAlyona | Размер: 228.49 KB | Скачали: 0 Платформа: AutoCad | Рб:
1
ГСН.ГСВ Индивидуальный жилой дом РП ГСН.ГСВ Индивидуальный жилой дом | Год выпуска: 2023
РП / Решения по устройству системы газоснабжения частного дома. / Состав: комплект чертежей + спецификация
Дата: 6.8.24 11:47 | Поместил: KalinAlyona | Размер: 217.45 KB | Скачали: 0 Платформа: AutoCad | Рб:
1
 
Cloudim - онлайн консультант для сайта бесплатно.