Добавить проект
Прочитать правила
Платный доступ
Авторизация:
Информация


Чертежи » Рабочие проекты » Инженерные системы » Водоснабжение и канализация » Административно - бытовые здания (вк) » Просмотр раздела

Административно - бытовые здания

Фильтр по проектам:
Показать выполненные в CAD программе:
Назначения помещений - (Административно-бытовые) ИОС:
     Гаражи     Имущественные комплексы     Коммунально-бытовые     Медицинские     Образовательные     Объекты общественного питания     Офисы     Спортивные     Театрально-зрелищные     Торговые    Без фильтра
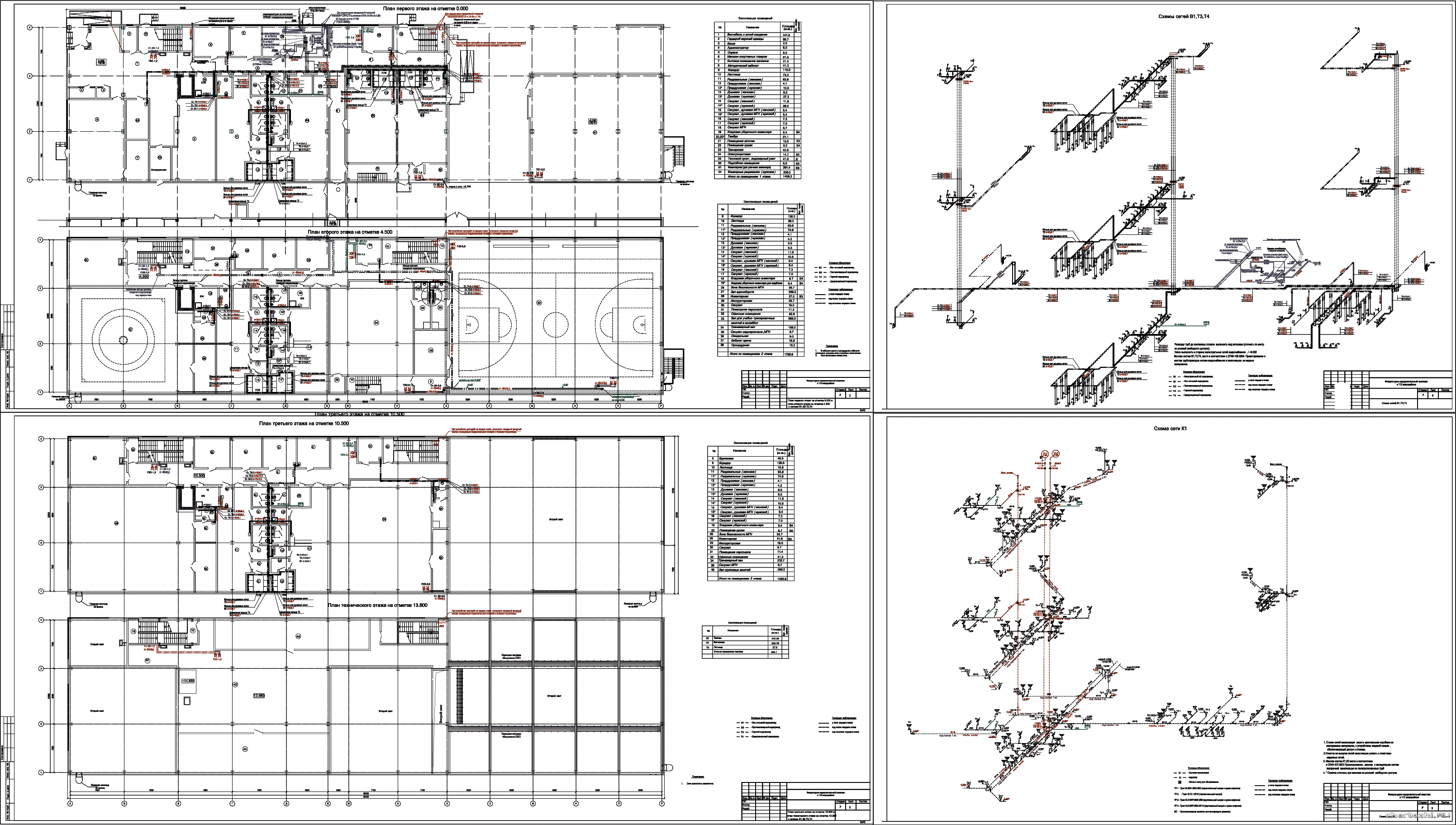
ВК Физкультурно-оздоровительный комплекс РП ВК Физкультурно-оздоровительный комплекс | Год выпуска: 2025
Р / Рабочий проект на внутренние сети В1,В2,Т3,К1,К2 здания ФОК. / Состав: комплект чертежей + спецификация.
Дата: 8.10.25 08:07 | Поместил: Woda | Размер: 8.36 MB | Скачали: 0 Платформа: AutoCad | Рб:
2
ВК Здание государственной филармонии в г. Магас РП ВК Здание государственной филармонии в г. Магас | Год выпуска: 2022
Р / Проект водоснабжения и водоотведения здания государственной филармонии (3 этажа + подвал + тех. этаж). / Состав: комплект чертежей.
Дата: 21.2.25 08:49 | Поместил: Liza72 | Размер: 10.60 MB | Скачали: 0 Платформа: AutoCad | Рб:
2
ВК Магазин электротоваров РП ВК Магазин электротоваров | Год выпуска: 2023
П / Водоснабжение и канализация магазина электротоваров (1 этаж). / Состав: комплект чертежей + спецификация (20 листов).
Дата: 20.1.25 11:51 | Поместил: lowecowec07043 | Размер: 8.30 MB | Скачали: 0 Платформа: AutoCad | Рб:
1
ВК Парикмахерская РП ВК Парикмахерская | Год выпуска: 2024
Р / Проект внутренних систем холодного и горячего водоснабжения и канализации коммерческого помещения (1 этаж). / Состав: комплект чертежей + спецификация
Дата: 10.12.24 15:16 | Поместил: Strong_kitten | Размер: 362.68 KB | Скачали: 0 Платформа: AutoCad | Рб:
1
ВК Подземная автостоянка на 122 машино-места в г. Хабаровск РП ВК Подземная автостоянка на 122 машино-места в г. Хабаровск | Год выпуска: 2022
Р / Водоснабжение, канализация и пожаротушение парковки жилого комплекса. / Состав: комплект чертежей + спецификация. К этому проекту на сайте есть другие комплекты: ОВ Подземная автостоянка на 122 машино-места в г. Хабаровск.
Дата: 25.10.24 13:27 | Поместил: oleonor | Размер: 3.65 MB | Скачали: 1 Платформа: AutoCad | Рб:
1
АР КЖ КМ СПОЗУ ЭОМ ВК НВК ОВиК ЭЭ Ресторан KFC в Московской области РП АР КЖ КМ СПОЗУ ЭОМ ВК НВК ОВиК ЭЭ Ресторан KFC в Московской области | Год выпуска: 2016
РП / Разработка типового проекта ресторана KFC в МО. / Состав: 11 комплектов чертежей (АР - 44 листа, КЖ - 18 листов, КМ-1 - 9 листов, КМ-2 - 8 листов, СПОЗУ - 12 листов, ЭОМ - 26 страниц, НВК - 6 листов, ВК - 15 листов, ОВиК - 12 листов, ЭЭ - 4 листа, ПНООЛР - 1 лист) + спецификации + ПЗ.
Дата: 23.7.24 15:07 | Поместил: ideya | Размер: 166.32 MB | Скачали: 6 Платформа: AutoCad | Рб:
7
ВК Капитальный ремонт врачебной амбулатории в Новосибирской области РП ВК Капитальный ремонт врачебной амбулатории в Новосибирской области | Год выпуска: 2024
П / Проект водоснабжения, канализации здания амбулатории (1 этаж). / Состав: комплект чертежей + спецификация
Дата: 23.5.24 08:52 | Поместил: teboeva | Размер: 6.25 MB | Скачали: 2 Платформа: AutoCad | Рб:
1
ВК Пожарное депо РП ВК Пожарное депо | Год выпуска: 2022
Р / Водоснабжение и канализация здания пожарного депо (2 этажа). Рабочий проект реализован. / Состав: комплект чертежей + спецификация
Дата: 17.4.24 14:17 | Поместил: lowecowec07043 | Размер: 43.75 MB | Скачали: 2 Платформа: AutoCad | Рб:
2
ВК Строительство сельской школы на 704 ученических места в Республике Ингушетия РП ВК Строительство сельской школы на 704 ученических места в Республике Ингушетия | Год выпуска: 2020
Р / Водоснабжение и водоотведение здания сельской школы (3 этажа + подвал). Потребный напор на вводе 22,5 м. / Состав: комплект чертежей + спецификация. К этому проекту на сайте есть другие комплекты: НВК Строительство сельской школы на 704 ученических места в Республике Ингушетия
Дата: 25.1.24 12:10 | Поместил: teboeva | Размер: 9.13 MB | Скачали: 6 Платформа: AutoCad | Рб:
2
ВК Гостиница с автостоянкой в г. Ялта РП ВК Гостиница с автостоянкой в г. Ялта | Год выпуска: 2023
П / В настоящем разделе проектной документации разработаны принципиальные технические решения по внутренним системам водоотведения и основному оборудованию, обеспечивающие работу систем инженерного обеспечения объекта капитального строительства строительства «Гостиница с автостоянкой» (5 этаж + автостоянка), из условия оптимального комфортного режима работы и отдыха в проектируемых зданиях. / Состав: комплект чертежей + спецификация К этому проекту на сайте есть другие комплекты: НВК Гостиница с автостоянкой в г. Ялта
Дата: 25.10.23 13:59 | Поместил: docent2017 | Размер: 13.12 MB | Скачали: 1 Платформа: AutoCad | Рб:
2
 
Cloudim - онлайн консультант для сайта бесплатно.