Добавить проект
Прочитать правила
Платный доступ
Авторизация:
Информация


Чертежи » Дипломные и курсовые работы » Строительство » Строительные конструкции » Металлические конструкции » Просмотр раздела

Курсовые проекты:


Металлические конструкции (металлоконструкции)

Фильтр по проектам:
Показать выполненные в CAD программе:
Вузы: (МК) Название Вуза с буквы:
     А     Б     В     Г     Д     З     И     К     Л     М     Н     О     П     Р     С     Т     У     Х     Ч     Ю     Я    Без фильтра
Курсовой проект - Арочное покрытие 60 м КП Курсовой проект - Арочное покрытие 60 м | Год выпуска: 2026
ВГТУ / Кафедра металлических и деревянных конструкций / по дисциплине «Расчет строительных конструкций большепролетных и высотных зданий и сооружений» / Состав: 1 лист чертеж (схема расположения элементов, расчетная схема арки, ведомость элементов, монтажный узел, разрезы) + ПЗ (40 страниц).
Дата: 27.4.26 13:09 | Поместил: shat1770 | Размер: 7.19 MB | Скачали: 0 Платформа: AutoCad | Рб:
1
Курсовой проект - МК одноэтажного здания 30 х 21 м КП Курсовой проект - МК одноэтажного здания 30 х 21 м | Год выпуска: 2025
ЮЗГУ / Кафедра "Промышленное и гражданское строительство" / дисциплина «Металлические конструкции, включая сварку» / Расчёт и проектирование несущих конструкций одноэтажного здания / В расчетной части курсового проекта производится компоновка конструктивной схемы каркаса, определяются действующие нагрузки и воздействия на каркас, назначаются стали и сварочные материалы, осуществляется выбор основных способов изготовления и монтажа конструкций. Производятся расчеты каркаса, расчеты элементов перекрытия (второстепенных и главных балок), колонн, стыков и узлов сопряжений конструкций. В графической части выполняются схемы и разрезы элементов каркаса, узлы сопряжений элементов каркаса, спецификация элементов каркаса. / Состав: 2 листа чертежи + ПЗ (31 страница).
Дата: 17.4.26 12:11 | Поместил: LeeEnfield | Размер: 783.29 KB | Скачали: 0 Платформа: AutoCad | Рб:
1
Курсовой проект - МК Расчёт и проектирование несущих конструкций одноэтажного здания 22,5 х 12,0 м КП Курсовой проект - МК Расчёт и проектирование несущих конструкций одноэтажного здания 22,5 х 12,0 м | Год выпуска: 2025
ЮЗГУ / Кафедра "Промышленное и гражданское строительство" / дисциплина «Металлические конструкции, включая сварку» / Необходимо выполнить расчет и проектирование несущих конструкций одноэтажного здания. / Состав: 2 листа чертежи (Схемы расположения элементов; Конструкция фермы Ф-1) + ПЗ (32 страницы).
Дата: 14.4.26 08:44 | Поместил: LeeEnfield | Размер: 726.01 KB | Скачали: 0 Платформа: AutoCad | Рб:
1
Курсовая работа - МК балочной рабочей площадки 66 х 18 м КП Курсовая работа - МК балочной рабочей площадки 66 х 18 м | Год выпуска: 2026
КГАСУ / Кафедра металлических и деревянных конструкций / Проектирование конструкций балочной рабочей площадки / Вариант 18 / Состав: 2 листа чертежи (Монтажная схема балочной клетки, разрезы, узлы; Отправочные марки Б1, Б2, К1) + ПЗ (54 страницы).
Дата: 9.4.26 15:24 | Поместил: LOS | Размер: 1.16 MB | Скачали: 0 Платформа: AutoCad | Рб:
1
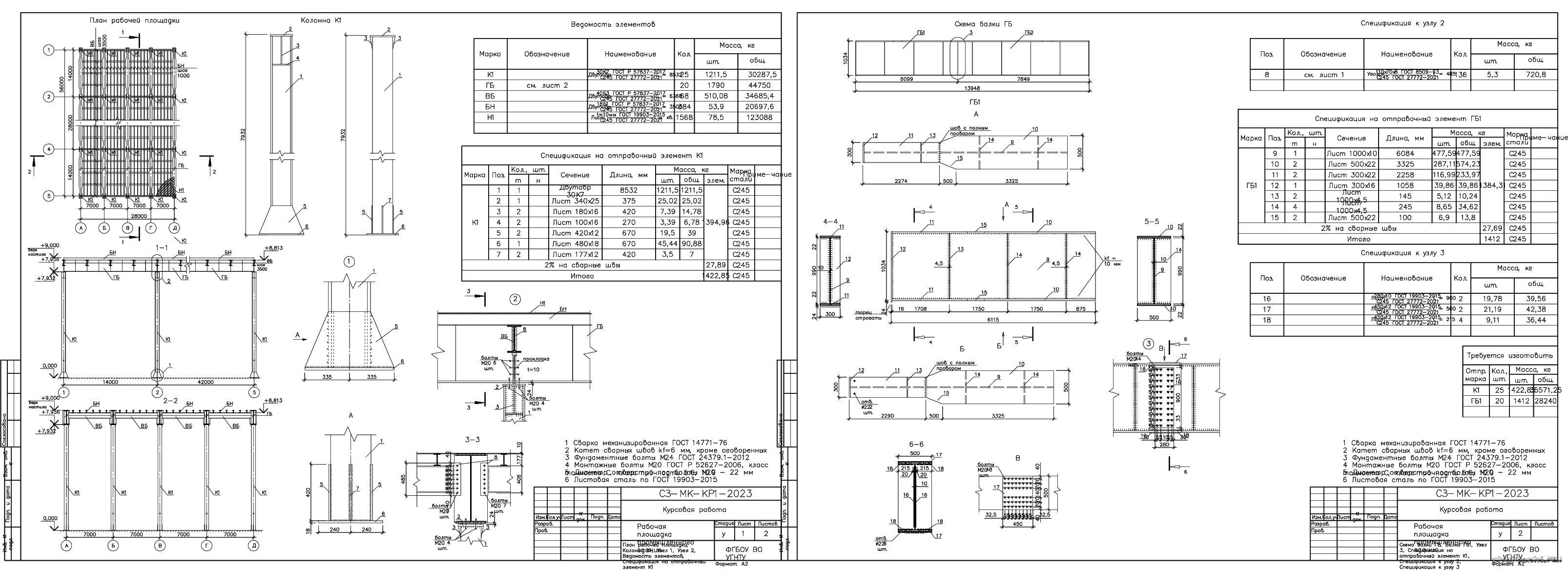
Курсовой проект - МК балочной рабочей площадки 42,0 х 19,5 м КП Курсовой проект - МК балочной рабочей площадки 42,0 х 19,5 м | Год выпуска: 2025
НИУ МГСУ / Кафедра «Металлических и деревянных конструкций» / по дисциплине «Металлические конструкции» / Проектирование конструкций балочной рабочей площадки. Компоновка конструктивной схемы балочной рабочей площадки; расчет плоского стального настила; сбор нагрузок расчет балки настила, составной главной балки и колонны, расчет и конструирование узлов (опирания главной балки на колонну, базы колонны и монтажного узла главной балки на высокопрочных болтах). / Состав: 2 листа чертежи + ПЗ (65 страниц) + модель траверсы (в LIRA).
Дата: 24.3.26 15:25 | Поместил: Ludochka | Размер: 1.69 MB | Скачали: 0 Платформа: AutoCad | Рб:
1
Курсовой проект - МК балочной рабочей площадки 36 х 15 м КП Курсовой проект - МК балочной рабочей площадки 36 х 15 м | Год выпуска: 2026
МГСУ / Кафедра металлических и деревянных конструкций / по дисциплине «Металлические конструкции» / Проектирование конструкций балочной рабочей площадки / Вариант 15 / Состав: 2 листа чертежи (Монтажная схема балочной клетки, разрезы, узлы. Отправочные марки Б1, Б2, К1) + ПЗ (56 страниц).
Дата: 19.3.26 16:10 | Поместил: mackot | Размер: 1.72 MB | Скачали: 0 Платформа: AutoCad | Рб:
1
Курсовой проект - МК двухэтажного здания 54,0 х 16,8 м в г. Москва КП Курсовой проект - МК двухэтажного здания 54,0 х 16,8 м в г. Москва | Год выпуска: 2026
МГСУ / Кафедра металлических и деревянных конструкций / по дисциплине «Методы проектирования металлических и деревянных конструкций» / Металлический каркас двухэтажного здания. Вариант 45 / Состав: 2 листа чертежи (План каркаса, схемы конструкций, разрезы, узлы. Схема конструкции ФС, узел 2-2, разрез А-А) + ПЗ (64 страницы) + файл в Lira.
Дата: 19.3.26 15:59 | Поместил: mackot | Размер: 2.99 MB | Скачали: 0 Платформа: AutoCad | Рб:
1
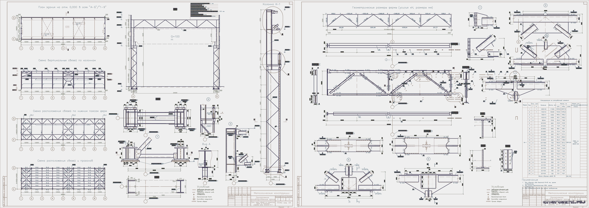
Курсовой проект - МК рабочей площадки 24 х 14 м КП Курсовой проект - МК рабочей площадки 24 х 14 м | Год выпуска: 2025
ИРНИТУ / Кафедра строительных конструкций / по металлическим конструкциям, включая сварку / Расчет и проектирование элементов металлических конструкций, используемых при организации рабочих площадок. / Состав: 1 лист чертеж (схема расположения элементов балочной клетки; отправочная марка балки; отправочная марка колонны) + ПЗ (32 страницы).
Дата: 13.3.26 14:08 | Поместил: maksimV | Размер: 806.28 KB | Скачали: 0 Платформа: AutoCad | Рб:
1
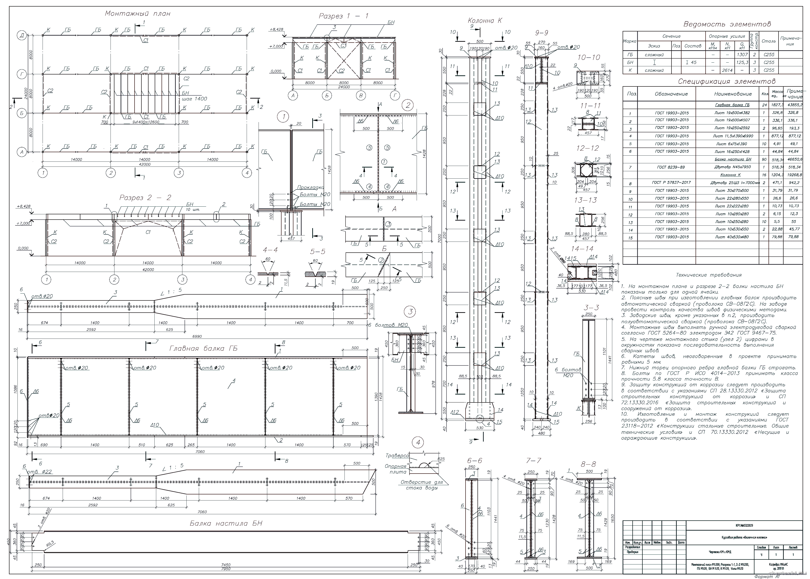
Курсовая работа - МК балочной рабочей площадки 36 x 15 м КП Курсовая работа - МК балочной рабочей площадки 36 x 15 м | Год выпуска: 2025
НИУ МГСУ / Кафедра "Металлический и деревянных конструкций" / lисциплина "Металлические конструкции" / Цель расчета балочной клетки — обоснование сечений элементов, проверка прочности, устойчивости и жесткости конструкции. Конструкция, должна полностью удовлетворять всем эксплуатационным требованиям, быть экономичной и должна иметь высокую надежность в течение всего периода эксплуатации. / Состав: 2 листа чертежи + ПЗ (44 страницы).
Дата: 2.3.26 19:45 | Поместил: kaneko | Размер: 691.52 KB | Скачали: 0 Платформа: AutoCad | Рб:
1
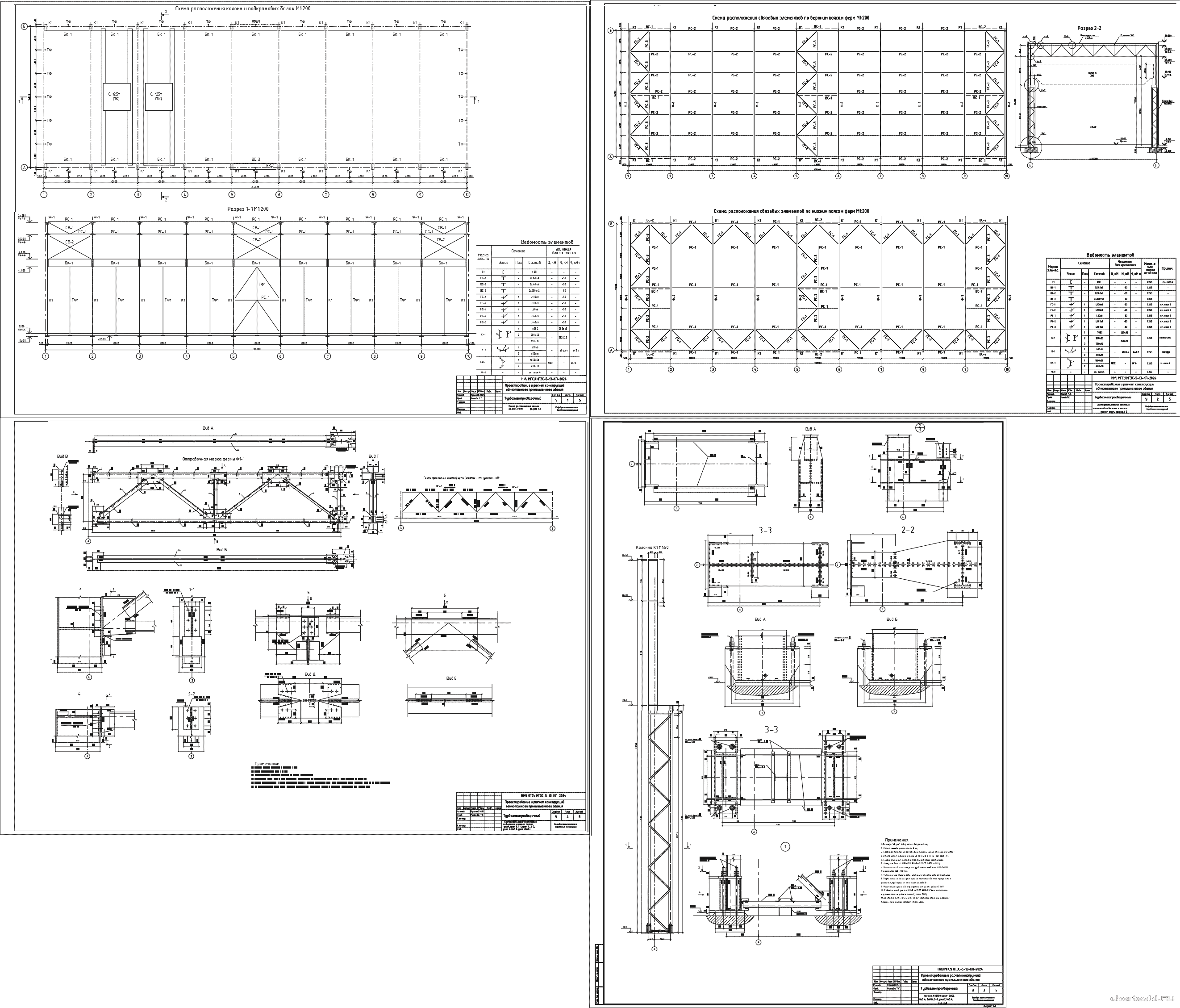
Курсовой проект - МК механического цеха 132 х 30 м КП Курсовой проект - МК механического цеха 132 х 30 м | Год выпуска: 2024
ВГТУ / Кафедра металлических и деревянных конструкций / по дисциплине «Металлические конструкции» / Металлический каркас промышленного здания / Состав: 2 листа чертежи (схема связей по поясам ферм, схема торцевого фахверка, расчетная схема рамы, ферма, колонна, разрезы, узлы и лист чертежами фермы) + ПЗ (72 страницы).
Дата: 27.2.26 23:28 | Поместил: melihova123 | Размер: 5.46 MB | Скачали: 0 Платформа: AutoCad, PDF | Рб:
1
Показать описание раздела:
Курсовой металлические конструкции – это прототип реального проектирования, который выполняется студентами соответствующих специальностей по упрощенным исходным данным, и предназначен для развития навыков решения инженерных задач. Данная работа разрабатывается с учетом действующих в строительной сфере норм и правил.
Готовые работы на тему «металлоконструкции курсовая» можно бесплатно скачать на сайте Чертежи.РУ. Среди них представлены проекты по разработке металлического каркаса для зданий и сооружений промышленных (одно- и многоэтажные), строительных, складских, административных, жилых, а также специального назначения.
Курсовой проект металлоконструкции состоит из основных разделов:
- общие данные;
- расчетно-пояснительная записка;
- графическая часть.
В общих сведениях содержится информация о месте строительства объекта, его рельефных и климатических особенностях, характеристики конструируемого здания (функциональное назначение, тип фундамента, металл конструкций и т.д.).
Металлоконструкций расчет для курсовой включает в себя сбор допустимых нагрузок и воздействий, определение параметров и технических характеристик конструкций, прочностные и деформационные расчеты МК.
С целью обеспечения надежной и безопасной эксплуатации проектируемого здания учитываются положения «Техрегламента о безопасности».
Курсовая работа по теме металлические конструкции в графическом разделе содержит план с изображением общего вида металлоконструкций (проекции, планы, разрезы), расчетные схемы, чертеж основных узлов и отдельных элементов конструкции, комплект чертежей, содержащий нагрузки, воздействия на фундамент и МК.
"Металлические конструкции" курсовой проект разрабатывается на основании принципа: решения по конструированию должны быть экономически целесообразными. Для этого выполняется расчет стоимость материалов и затрат на проведение работ. При этом конструкция должна соответствовать своим функциональным и эксплуатационным характеристикам, быть прочным и долговечным. Таким образом, проектирование состоит в сравнении нескольких вариантов и выбора наиболее оптимального.
 
Cloudim - онлайн консультант для сайта бесплатно.