Добавить проект
Прочитать правила
Платный доступ
Авторизация:
Информация


Чертежи » Дипломні і курсові роботи » Машинобудування і механника » Автомобільна галузь » Устаткування АТП, СТО » Просмотр раздела

Дипломні та курсові по темі: Устаткування для АТП, ТО, СТО

Фильтр по проектам:
Показать выполненные в CAD программе:
Сборники проектов, метки для этой категории:
Курсовий проект - Розробка стенда для обслуговування и ремонту гідроциліндрів автомобілів Foton Aumark КП Курсовий проект - Розробка стенда для обслуговування и ремонту гідроциліндрів автомобілів Foton Aumark | Год выпуска: 2025
ТЕА / Автомобільний транспорт / Метою даного курсового проєкту є розробка конструкторської документації та технологічного обґрунтування спеціалізованого стенда, що застосовується в дільниці ТО-1/ТО-2 для обслуговування й ремонту гідроциліндрів автомобілів Foton Aumark. У роботі виконано аналіз прототипів, розроблено структурну та кінематичну схему стенда, визначено навантаження на його елементи, виконано інженерні розрахунки та сформульовано вимоги з охорони праці, що гарантують безпечну експлуатацію обладнання. Розроблений стенд сприятиме підвищенню ефективності ремонтно-обслуговувальних робіт, покращенню організації робочого місця майстра та забезпеченню надійної роботи гідравлічних систем вантажних автомобілів Foton Aumark в умовах інтенсивної експлуатації. / Склад: 2 листа креслень (стенд для розбирання гідропіднімачів самоскидів, планування пункту ТО та ПР автомобілів) + ПЗ (44 сторінки).
Дата: 28.11.25 10:43 | Поместил: soroka | Размер: 884.67 KB | Скачали: 0 Платформа: Компас Рб:
2
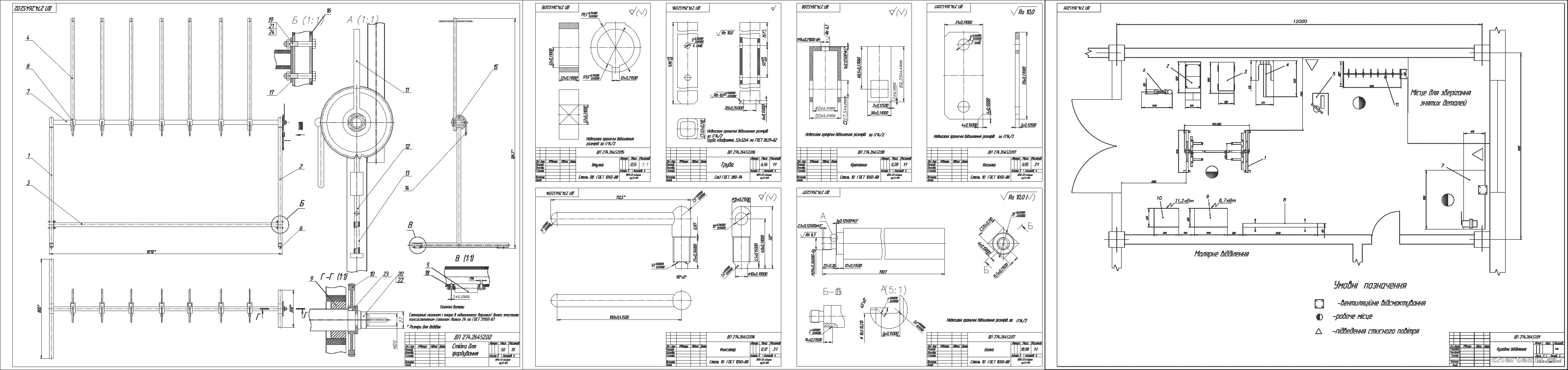
Дипломний проект (училище) - Покращення ремонту кузовних деталей із розробкою поворотного стенда для фарбування деталей ДП Дипломний проект (училище) - Покращення ремонту кузовних деталей із розробкою поворотного стенда для фарбування деталей | Год выпуска: 2025
ВПУ №22 м. Сарни / зі спеціальності 274 «Автомобільний транспорт» / В моєму проєкті представлено розробка стійки для фарбування елементів кузова. Дана розробка є необхідним елементом автомаляра та рихтувальника. / Склад: 4 аркуша креслення + специфікація + ПЗ.
Дата: 22.4.25 13:21 | Поместил: Passat | Размер: 10.06 MB | Скачали: 0 Платформа: AutoCad Рб:
3
Курсовий проект - Розробка стенда для діагностики гальмівної системи легкового автомобіля КП Курсовий проект - Розробка стенда для діагностики гальмівної системи легкового автомобіля | Год выпуска: 2023
Метою цього курсового проекту є розробка стенда для діагностики гальмівної системи легкового автомобіля. У процесі виконання роботи необхідно вирішити такі завдання: розглянути призначення та конструкції гальмівної системи легкових автомобілів; розглянути можливі несправності гальмівної системи; розглянути можливі способи діагностування гальмівної системи; провести конструкторську розробку стенду; провести розрахунок основних елементів стенду; зробити висновки. / Склад: 10 листів креслень + ПЗ (51 сторінка) + 2 специфікації.
Дата: 21.3.24 10:07 | Поместил: ruslan668 | Размер: 784.63 KB | Скачали: 0 Платформа: Компас Рб:
3
Курсовий проект - Проект дільниці ТО-1 з конструкторською розробкою пристосування (ЗАЗ Lanos - 90 машин) КП Курсовий проект - Проект дільниці ТО-1 з конструкторською розробкою пристосування (ЗАЗ Lanos - 90 машин) | Год выпуска: 2016
ЧНТУ / Кафедра АТ та ГМ / Завданням курсового проекту передбачено зробити ділянку для проведення поточного ремонту, ТО 1. / Склад: 1 аркуш креслення + ПЗ + Специфікація
Дата: 12.5.20 05:45 | Поместил: mish17mishka | Размер: 659.53 KB | Скачали: 3 Платформа: Компас Рб:
1
Дипломний проект - Розробка технологічного процесу ТО і ремонту зчеплення автомобіля ГАЗ 3110 із цільовою розробкою стенда для розбирання та збирання зчеплення ДП Дипломний проект - Розробка технологічного процесу ТО і ремонту зчеплення автомобіля ГАЗ 3110 із цільовою розробкою стенда для розбирання та збирання зчеплення | Год выпуска: 2018
ВПУ-22 м. Сарни / Методична комісія автомеханіків та механізаторів /  Вихідні дані: Марка автомобіля ГАЗ-3110, спискова кількість _автомобілів – Ас = 250 авт, середньодобовий пробіг - lсд = 350 км, час в наряді – Тн =8 год, категорія умов експлуатації – 3, кількість робочих днів за рік – 253 дн. / Склад: 4 аркуша креслення + ПЗ.
Дата: 25.2.18 19:52 | Поместил: Passat | Размер: 2.82 MB | Скачали: 1 Платформа: АutoCad Рб:
3
Дипломний проект (училище) - Розробка технологічного процесу ТО і ПР ремонту кабін вантажних автомобілів з цільовою розробкою стенда для ремонту кабін ДП Дипломний проект (училище) - Розробка технологічного процесу ТО і ПР ремонту кабін вантажних автомобілів з цільовою розробкою стенда для ремонту кабін | Год выпуска: 2018
ВПУ-22 м.Сарни / Методична комісія автомеханіків та механізаторів / Вихідні дані: Марка автомобіля КамАЗ - 53215, спискова кількість _автомобілів – Ас = 90 авт, середньодобовий пробіг - lсд = 200 км, час в наряді – Тн =8 год, категорія умов експлуатації – 3, кількість робочих днів за рік – 253 дн. / Склад: 4 аркуша креслення + специфікація + ПЗ.
Дата: 25.1.18 09:45 | Поместил: Passat | Размер: 5.90 MB | Скачали: 3 Платформа: АutoCad Рб:
3
Дипломний проект (технікум) - Пересувна майстерня по ремонту дорожніх машин на базі автомобіля ЗИЛ - 130 ДП Дипломний проект (технікум) - Пересувна майстерня по ремонту дорожніх машин на базі автомобіля ЗИЛ - 130 | Год выпуска: 2004
ПБТТБ / Пересувна майстерня по ремонту дорожніх машин і обладнання змонтоване на базі автомобіля ЗИЛ-130. Все обладнання розміщене в кузові. Каркас має товщину стін 80мм. В середині встановлена теплоізоляція з скловати. При проведенні зварних робіт, майстерня і зварювальні апарати заземлюються. Для освітлення робочих місць в кузові є вікна. Електричні пристрої живляться від генератора або електромережі. Двері кузова одностворчаті, легко відкриваються і закриваються. В майстерні є аптечка. На випадок виникнення пожежі передбачено один вогнегасник. / Склад: 4 аркуша креслення А1(Карта технологічна, Прес гвинтовий, Пересувна майстерня, Деталювання: повзун, гвинт ходовий, захоплювач, втулка різьбова, гайка) + ПЗ.
Дата: 10.10.17 18:49 | Поместил: pan77 | Размер: 627.87 KB | Скачали: 4 Платформа: AutoCad Рб:
2
Курсовий проект - Камера мийна для блоків двигунів автомобілів КП Курсовий проект - Камера мийна для блоків двигунів автомобілів | Год выпуска: 2015
НТУ м.Київ / Кафедра "Автомобілі та автомобільне господарство" / Спеціальність "Технічне обслуговування та ремонт автомобілів і двигунів" / Установка складається з наступних складових частин: мийної камери непрохідного типу, ємності для відстою та підігріву мийної рідини з грязевідстійник, насосних агрегатів і шафи управління. / Склад: 1 аркуш креслення + специфікація + ПЗ.
Дата: 19.7.17 06:07 | Поместил: sas_hik | Размер: 265.48 KB | Скачали: 1 Платформа: Компас Рб:
1
Курсовий проект - Стенд для перевірки рядних паливних насосів високого тиску дизельних двигунів КП Курсовий проект - Стенд для перевірки рядних паливних насосів високого тиску дизельних двигунів | Год выпуска: 2015
НТУ м.Київ / Кафедра "Автомобілі та автомобільне господарство" / Стенд для випробування і регулювання ТНВД різних типів вітчизняного та імпортного виробництва з діаметром плунжера до 12 мм (8 -ми секційний, з асинхронним електродвигуном, перетворювачем частоти). Стенди універсальністю, що важливо на сьогодні. Стенд призначений для діагностики і регулювання ТНВД до 8 секцій включно дизелів типу ЯМЗ-236, ЯМЗ-238, ЯМЗ-7511, ЯМЗ-236 БЕ (НЕ), ЯМЗ-236 М2, ЗІЛ-645, ЗІЛ-0550, ГАЗ-5424, ГАЗ-5441 та багато інших. / Склад: 1 аркуш креслення + специфікація + ПЗ.
Дата: 18.7.17 13:02 | Поместил: sas_hik | Размер: 167.07 KB | Скачали: 3 Платформа: Компас Рб:
1
Курсовий проект - Проектування стенда для збирання генераторів КП Курсовий проект - Проектування стенда для збирання генераторів | Год выпуска: 2016
НТУ / Кафедра "Автомобили" / Розроблюваний стенд призначений для складання генераторів двигунів різних марок. За основу взято прототип - стенд для збірки генераторів моделі 6606-120 . Недоліком даного стенду, а також і ряду інших стендів, є недостатнє зусилля, яке не дозволяє встановлювати шківи, кришки, вентилятори на якоря генераторів певних моделей. Крім того, у прототипу переміщення штока здійснюється на порівняно невелику відстань, недостатнє для складання деяких генераторів. / Склад: 1 аркуш креслення + специфікація + ПЗ.
Дата: 29.4.17 09:47 | Поместил: sas_hik | Размер: 168.01 KB | Скачали: 3 Платформа: Компас Рб:
1
Курсовий проект - Стенд для зняття тягово-гальмівних характеристик автомобіля КП Курсовий проект - Стенд для зняття тягово-гальмівних характеристик автомобіля | Год выпуска: 2015
НТУ г.Київ / Кафедра "Автомобілі та автомобільне господарство" / Спеціальність "Технічне обслуговування та ремонт автомобілів і двигунів" / Універсальний стенд призначений для визначення технічного стану двигуна, трансмісії автомобілів на АТП, СТО та для проведення регулювальних робіт. Тягові якості автомобілів діагностуються по величині потужності на ведучих колесах в режимі повного подачі палива. / 1 аркуш креслення + специфікації + ПЗ.
Дата: 15.4.17 08:08 | Поместил: sas_hik | Размер: 558.10 KB | Скачали: 2 Платформа: Компас Рб:
1
1 2 3 Далее »
 
Cloudim - онлайн консультант для сайта бесплатно.