Добавить проект
Прочитать правила
Платный доступ
Авторизация:
Информация


Чертежи » Рабочие проекты » Инженерные системы » Автоматизация / Автоматика » Котельные / Тепловые пункты / ИТП (а) » Просмотр раздела

Котельные / Тепловые пункты / ИТП

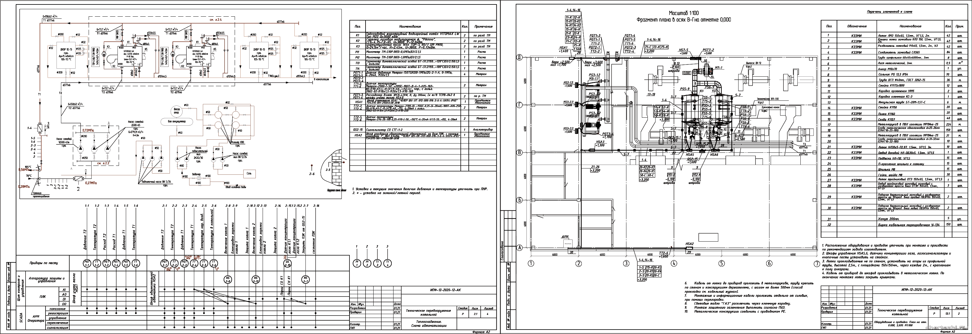
АК Техническое перевооружение котельной в г. Алушта РП АК Техническое перевооружение котельной в г. Алушта | Год выпуска: 2021
Р / Проект АСУТП по ГОСТ 34.201-2020, с заменой котлов и горелок, на базе серийно выпускаемых шкафов ЧЕЛЕР. / Состав: комплект чертежей + спецификация.
Дата: 29.9.25 11:41 | Поместил: Alexandr_1979 | Размер: 2.06 MB | Скачали: 1 Платформа: AutoCad | Рб:
3
ЭА Электроавтоматика жилого дома РП ЭА Электроавтоматика жилого дома | Год выпуска: 2024
Р / Электроавтоматика. Жилая секция 1,2. / Состав: комплект чертежей.
Дата: 11.1.25 05:07 | Поместил: difesco | Размер: 328.67 KB | Скачали: 0 Платформа: AutoCad | Рб:
1
ТМ ЭОМ АГСВ ГСВ Капитальный ремонт котельной 2 котла Микро 95 (монтаж системы автономного отопления) РП ТМ ЭОМ АГСВ ГСВ Капитальный ремонт котельной 2 котла Микро 95 (монтаж системы автономного отопления) | Год выпуска: 2021
Стадия П / Максимальный расход газа на котельную составляет 2,076 м3/ч. / Состав: 4 комплекта чертежей без спецификаций
Дата: 25.8.22 11:39 | Поместил: dille | Размер: 2.74 MB | Скачали: 2 Платформа: AutoCad | Рб:
1
АК ЭО ЭГ Котельная 1,5 МВт РП АК ЭО ЭГ Котельная 1,5 МВт | Год выпуска: 2019
Р / Автоматизация комплексная, электроосвещение внутреннее, молниезащита и заземление котельной 1,5 МВт (три отопительных котла Unical ELLPREX-510 с газовыми двухступенчатыми горелками FBR GAS P 70/2 CE TL+ R. CE D1"1/2-FS50). / Состав: 3 комплекта чертежей + спецификации.
Дата: 16.6.22 08:21 | Поместил: Alexey1975 | Размер: 1.24 MB | Скачали: 3 Платформа: AutoCad | Рб:
2
УКУГ Замена узла коммерческого учета газа в котельной комплекс СГ-ЭК-Вз-Р-0,2-400/1,6 РП УКУГ Замена узла коммерческого учета газа в котельной комплекс СГ-ЭК-Вз-Р-0,2-400/1,6 | Год выпуска: 2021
Р / Полный проект на замену узла учета газа на комплекс СГ-ЭК-Вз-Р на базе Rabo. / Состав: комплект чертежей + спецификация
Дата: 18.2.22 08:20 | Поместил: Cosmoflight | Размер: 3.77 MB | Скачали: 0 Платформа: AutoCad | Рб:
1
АТМ Котельная водоочистной станции в Республике Мордовия РП АТМ Котельная водоочистной станции в Республике Мордовия | Год выпуска: 2020
Р / Проект автоматизации тепломеханических решений котельной в г. Ардатов. Разработан в составе документации на строительство водоочистной станции. Автоматизируемое оборудование: Котел Baxi ECO FOUR 1.14; Газосигнализатор УКЗ-РУ-CH4-CO; вентилятор. / Состав: комплект чертежей + спецификация + КЖ.
Дата: 25.9.21 18:30 | Поместил: ViktorV | Размер: 415.29 KB | Скачали: 0 Платформа: AutoCad | Рб:
2
ЭОМ ПТ УКУТЭТ ТМ АТМ Здание ЦОВ 112 и ИТП Свердловской области г. Екатеринбург РП ЭОМ ПТ УКУТЭТ ТМ АТМ Здание ЦОВ 112 и ИТП Свердловской области г. Екатеринбург | Год выпуска: 2015
Р / Проект электроснабжения и электроосвещения, автоматика УКУТ с заданиями от смежных разделов. / Состав: 5 комплектов чертежи (ЭОМ - 13 листов, ПТ - 7 листов, УКУТ - 9 листов, ТМ - 8 листов, АТМ - 3 листа) + спецификации.
Дата: 23.9.21 11:40 | Поместил: Nikoly777 | Размер: 12.28 MB | Скачали: 2 Платформа: AutoCad | Рб:
3
АТСН Автоматизация топливоснабжения наружного РП АТСН Автоматизация топливоснабжения наружного | Год выпуска: 2018
Стадия Р / Проектом предусматривается сигнализация верхнего и нижнего уровней в надземных резервуарах РГС-50 дизельного топлива, а также сигнализация верхнего уровня в подземном резервуаре РГС-10 аварийного слива. / Состав: чертежи 6 листов (общие данные, схема автоматизации функциональная, схема электрическая принципиальная, схема соединения и подключения внешних проводок, план расположения оборудования и внешних проводок, кабельный журнал) + Спецификация
Дата: 8.9.21 10:54 | Поместил: vetal1986 | Размер: 1.86 MB | Скачали: 2 Платформа: AutoCad | Рб:
2
АТМ Детский сад "Росинка" в Свердловской области РП АТМ Детский сад "Росинка" в Свердловской области | Год выпуска: 2018
Р / Автоматизированная система коммерческого учета тепловой энергии и теплоносителя в детском саду на основе тепловычислителя СПТ 941.20 4217-089-23041473-2014, изготовитель: ЗАО НПФ "Логика", г. Санкт-Петербург. Приборы учета тепловой энергии устанавливаются в специально отведенном теплопункте технологического подполья. Тепловычислитель устанавливается там же в теплопункте рядом с приборами учета. / Состав: комплект чертежей + спецификация + ПЗ + расчет потерь в гидравлике + карта программирования.
Дата: 11.8.21 07:47 | Поместил: Nikoly777 | Размер: 5.90 MB | Скачали: 0 Платформа: AutoCad | Рб:
2
АТС Цех минеральной сепарации РП АТС Цех минеральной сепарации | Год выпуска: 2019
Р / Разработка рабочей документации раздела "Автоматизированных систем" первого и второго уровня автоматизации на горно-обогатительном комбинате. В данном комплекте приведены решения по организации автоматической работы индивидуального теплового пункта на объекте "Цех минеральной сепарации". / Состав: комплект чертежей + спецификация + кабельный журнал.
Дата: 5.7.21 03:10 | Поместил: archibalt | Размер: 9.66 MB | Скачали: 0 Платформа: AutoCad, | Рб:
2
 
Cloudim - онлайн консультант для сайта бесплатно.