Добавить проект
Прочитать правила
Платный доступ
Авторизация:
Информация


Чертежи » Рабочие проекты » Инженерные системы » Электроснабжение » Административно - бытовые здания (э) » Просмотр раздела

Административно - бытовые здания

Фильтр по проектам:
Показать выполненные в CAD программе:
Назначения помещений - (Административно-бытовые) Электроснабжение:
     Аптеки     Гаражи     Имущественные комплексы     Коммунально-бытовые     Медицинские     Образовательные     Объекты общественного питания     Офисы     Спортивные     Театрально-зрелищные     Торговые    Без фильтра
Сборники проектов, метки для этой категории:
Многофункциональный комплекс / центр проектПример проекты квартирПроект автосалонаПроект автосервисаПроект АЗСПроект аэропорта (план аэропорта)Проект больницыПроект депоПроект дома культурыПроект наружного освещенияПроект павильонаПроект парковкиПроект пекарниПроект прачечнойПроект трансформаторной подстанции, КТППроект фитнес клубаПроект школыПроект электроснабжение котельныхПроект электроснабжения домаПроект электроснабжения квартирыпроекты АПСпроекты АСКУЭПроекты АСКУЭ на базе МеркурийПроекты АУПСПроекты баньПроекты бассейновПроекты БКТППроекты видеонаблюденияПроекты ВЛ 0,4 кВ, 6 кВ, 10 кВ, 110 кВПроекты г. ВоронежПроекты г. СургутПроекты гостиницпроекты детских садовПроекты дымоудаленияПроекты и планы стоматологических клиник, кабинетовПроекты и чертежи подсветкиПроекты КЛ 0,4 кВ, 6 кВ, 10 кВ, 110 кВПроекты мастерскойпроекты ОПСПроекты по автоматизации систем вентиляцииПроекты поликлиники детские, городские, типовыеПроекты рынковПроекты сервернойпроекты СКСпроекты СОТПроекты церквейТеатры, кинотеатрыЭлектроснабжение детского садаЭлектроснабжение магазина
ЭС Реконструкция хирургического корпуса ЦРБ в р.п. Колывань Новосибирской области РП ЭС Реконструкция хирургического корпуса ЦРБ в р.п. Колывань Новосибирской области | Год выпуска: 2023
П / Электроснабжение хирургического корпуса больницы (4 этажа + подвал + чердак). / Состав: комплект чертежей (90 листов) + спецификация + ПЗ.
Дата: 13.3.26 10:07 | Поместил: VladimirGas | Размер: 22.41 MB | Скачали: 1 Платформа: AutoCad, PDF | Рб:
5
ЭОМ Административное здание УФНС России в г. Воронеж РП ЭОМ Административное здание УФНС России в г. Воронеж | Год выпуска: 2025
П / Капитальный ремонт здания. Система электрообеспечения (электроснабжение, внутренние электрические сети, освещение, заземление). / Состав: комплект чертежей + спецификация.
Дата: 28.12.25 17:50 | Поместил: Niantek | Размер: 2.97 MB | Скачали: 0 Платформа: AutoCad | Рб:
2
ЭОМ Переустройство помещений здания СТО в г. Казань РП ЭОМ Переустройство помещений здания СТО в г. Казань | Год выпуска: 2024
Р / Внутреннее электроснабжение и электроосвещение здания СТО (2 этажа). / Состав: комплект чертежей + спецификация.
Дата: 24.12.25 13:29 | Поместил: bennyhill92 | Размер: 3.89 MB | Скачали: 0 Платформа: AutoCad | Рб:
2
ЭС Магазин в сельском поселении Республики Хакасия РП ЭС Магазин в сельском поселении Республики Хакасия | Год выпуска: 2025
П / Разработка плана сети освещения, электроснабжения магазина (2 этажа + подвал); устройство молниезащиты здания; устройство системы уравнивания потенциалов. / Состав: комплект чертежей + спецификация + ПЗ.
Дата: 1.11.25 04:50 | Поместил: Rustam122321 | Размер: 4.97 MB | Скачали: 1 Платформа: AutoCad | Рб:
2
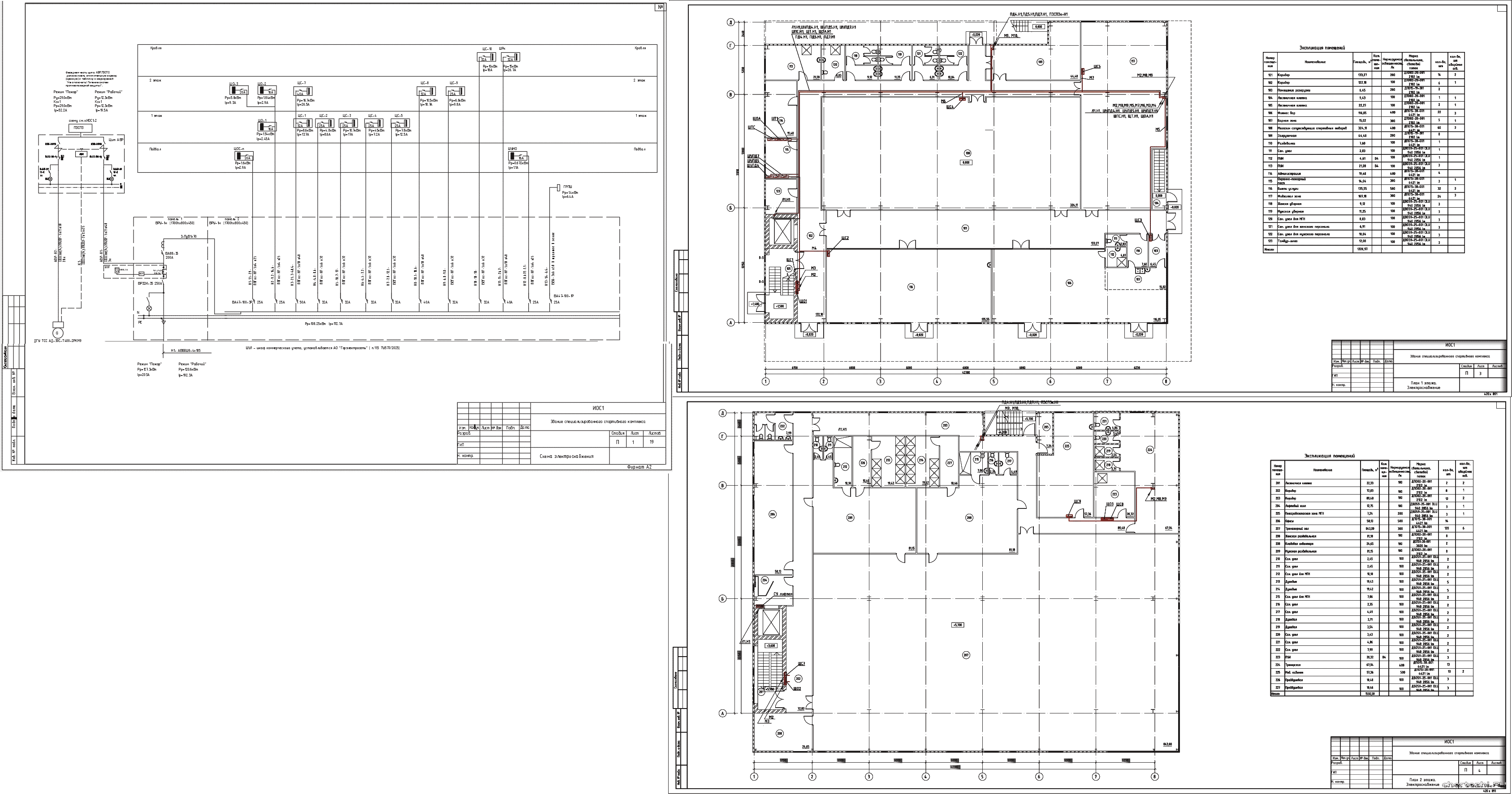
ЭС Здание специализированого спортивного комплекса РП ЭС Здание специализированого спортивного комплекса | Год выпуска: 2025
П / Электроснабжение спортивного комплекса с фитжитал зоной (2 этажа + подвал + тех.помещения). / Состав: комплект чертежей + ПЗ (по 87 постановлению).
Дата: 27.10.25 07:32 | Поместил: SGN | Размер: 6.76 MB | Скачали: 1 Платформа: AutoCad | Рб:
2
ЭОМ Здание детского сада на 130 мест в Московской области РП ЭОМ Здание детского сада на 130 мест в Московской области | Год выпуска: 2025
Р / Внутреннее электроосвещение, силовое оборудование, заземление и молниезащита здания детского сада (2 этажа + подвал). / Состав: комплект чертежей + спецификация.
Дата: 20.10.25 14:40 | Поместил: SGN | Размер: 6.32 MB | Скачали: 2 Платформа: AutoCad | Рб:
2
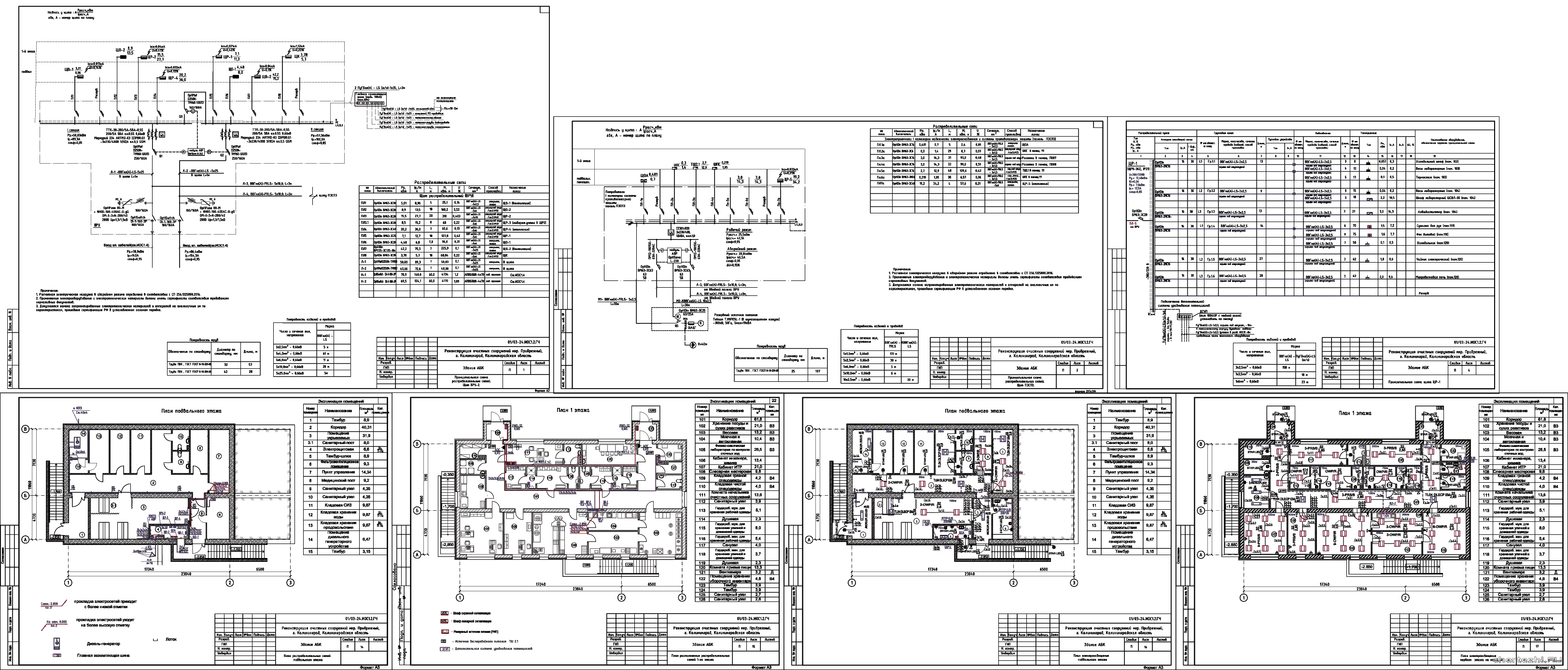
ЭОМ Здание АБК очистных сооружений в г. Калининград РП ЭОМ Здание АБК очистных сооружений в г. Калининград | Год выпуска: 2025
П / Реконструкция очистных сооружений мкр. Прибрежный г. Калининград / Внутреннее электроснабжение административно-бытового корпуса очистных сооружений (1 этаж + подвал). / Состав: комплект чертежей + спецификация.
Дата: 6.8.25 15:34 | Поместил: OsOlya | Размер: 2.70 MB | Скачали: 0 Платформа: AutoCad | Рб:
3
ЭОМ Гостиничный корпус базы отдыха в Самарской области РП ЭОМ Гостиничный корпус базы отдыха в Самарской области | Год выпуска: 2024
П / Проект электроснабжения и электроосвещения двухэтажного гостиничного корпуса на базе отдыха. В составе однолинейные схемы ГРЩ, силовых щитов, щитов освещения, планы прокладки КЛ и размещения оборудования. Узлы выхода кабелей на кровлю и ввода в здание. / Состав: комплект чертежей + спецификация + кабельный журнал.
Дата: 31.7.25 08:17 | Поместил: lupus1est | Размер: 3.19 MB | Скачали: 2 Платформа: AutoCad | Рб:
3
ЭОМ Картинг-клуб РП ЭОМ Картинг-клуб | Год выпуска: 2025
Р / Проект внутренних сетей электроснабжения для мобильных помещений картинг-клуба на открытой автомобильной парковке у ТЦ. / Состав: комплект чертежей + спецификация.
Дата: 11.6.25 08:56 | Поместил: vilkay | Размер: 471.96 KB | Скачали: 0 Платформа: AutoCad | Рб:
1
ЭСЭО Капитальный ремонт бассейна детского сада в г. Нерюнгри РП ЭСЭО Капитальный ремонт бассейна детского сада в г. Нерюнгри | Год выпуска: 2024
Р / Проект электроснабжения и освещения помещения бассейна детского садика в рамках капитального ремонта. Установка противопожарного клапана вентиляции, электроснабжение и управление приводами задвижек водоснабжения чаши бассейна. / Состав: комплект чертежей (отсутствуют фото в технических характеристиках оборудования) + спецификация. К этому проекту на сайте есть другие комплекты: ОВ Капитальный ремонт бассейна детского сада в г. Нерюнгри
Дата: 30.5.25 23:55 | Поместил: EvgeniyK | Размер: 3.08 MB | Скачали: 0 Платформа: AutoCad | Рб:
2
 
Cloudim - онлайн консультант для сайта бесплатно.