Добавить проект
Прочитать правила
Платный доступ
Авторизация:
Информация


Чертежи » Рабочие проекты » Строительство » Строительные чертежи » Металлоконструкции зданий и сооружений » Просмотр раздела

Металлоконструкции зданий и сооружений / Проекты КМ, КМД

Фильтр по проектам:
Показать выполненные в CAD программе:
Назначение зданий, сооружений (металлок-ции):
     Здания соц-быт. назначения     Конструкции, строения, малые формы арх.     Коттеджи / Частные дома     Многоэтажные жилые дома     Промышленные здания    Без фильтра
Сборники проектов, метки для этой категории:
АР КМ КЖ Административное здание 39,0 х 19,5 м в г. Волжский РП АР КМ КЖ Административное здание 39,0 х 19,5 м в г. Волжский | Год выпуска: 2017
Р / Строительство административно-торгового здания с выставочным залом (2 этажа). Назначение проектируемого объекта «Административное здание» – выставка-продажа сельхозтехники и запасных частей к ним. / Состав: 3 комплекта чертежей (АР - 8 листов, КЖ - 13 листов, КЖ - 20 листов) + чертежи ГП (4 листа) + ПЗ.
Дата: 18.3.26 14:27 | Поместил: vlad0770 | Размер: 5.35 MB | Скачали: 0 Платформа: AutoCad | Рб:
3
Чертежи КМД Навес с подкрановыми путями РП Чертежи КМД Навес с подкрановыми путями | Год выпуска: 2024
Монтажный, сборочные чертежи и деталировка. / Состав: 59 листов чертежей (навес (МЧ), листы, уголки, двутавры, швеллеры, квадраты, шайба, колонны передняя, средняя и задняя, ребра, кронштейн, балки, связи).
Дата: 12.2.26 04:24 | Поместил: rkdperm | Размер: 3.86 MB | Скачали: 1 Платформа: Компас | Рб:
2
КМД АБК с авторемонтным цехом в г Ульяновск РП КМД АБК с авторемонтным цехом в г Ульяновск | Год выпуска: 2023
Р / Металлокаркас здания АБК с авторемонтным цехом. / Состав: комплект чертежей (90 листов).
Дата: 28.8.25 02:45 | Поместил: ildar81 | Размер: 9.65 MB | Скачали: 2 Платформа: AutoCad | Рб:
3
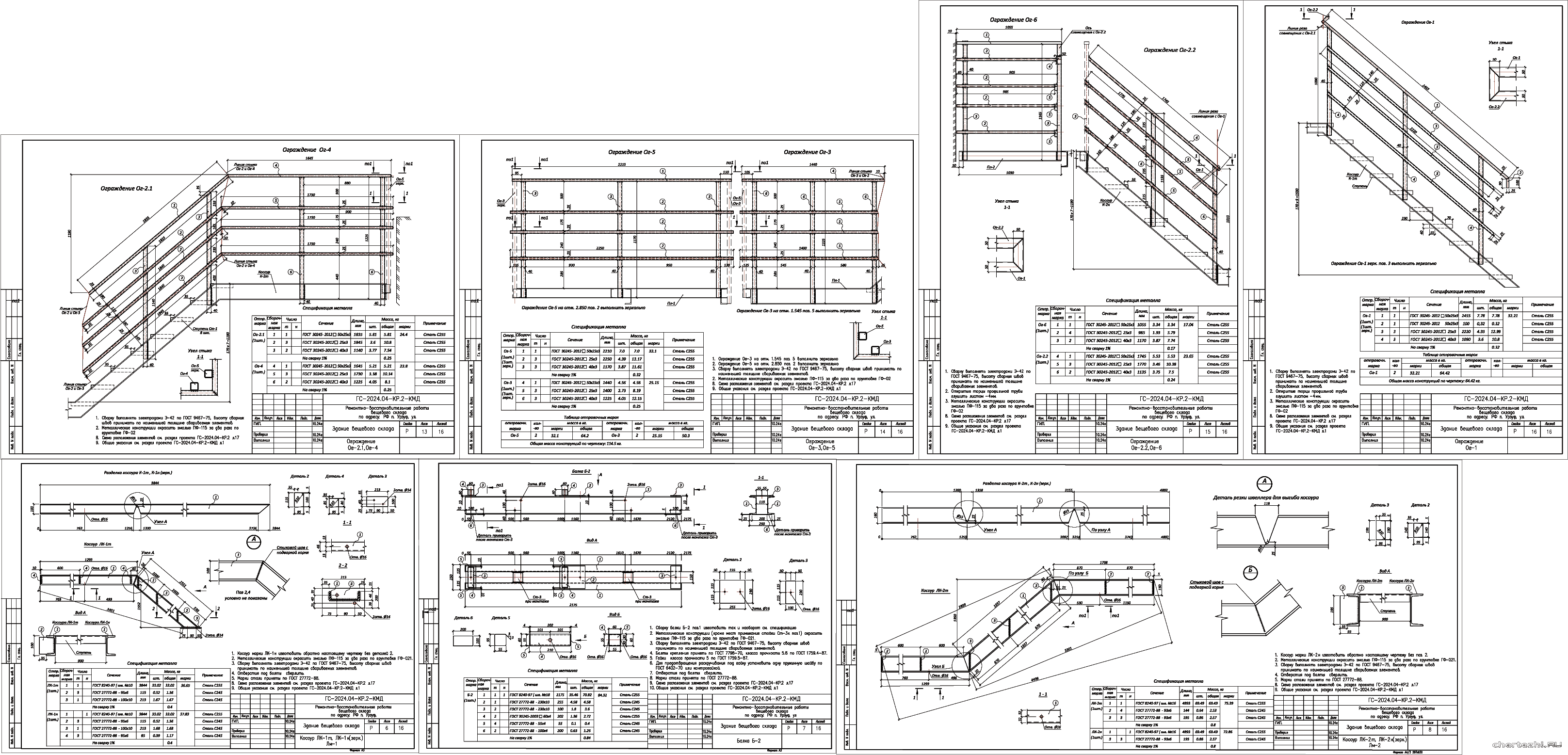
КМД Лестница РП КМД Лестница | Год выпуска: 2025
Р / Конструкции металлические деталлировочные наружной лестницы на 2-й этаж здания вещевого склада. Материал конструкций - стали С255, С245 по ГОСТ 27772-2015. / Состав: комплект чертежей.
Дата: 30.7.25 15:52 | Поместил: tve60 | Размер: 2.59 MB | Скачали: 0 Платформа: AutoCad | Рб:
2
КМ Склад с административно-бытовыми помещениями 99 х 48 м РП КМ Склад с административно-бытовыми помещениями 99 х 48 м | Год выпуска: 2024
Р / В настоящем комплекте рабочей документации разработаны решения по устройству металлических конструкций склада с административно-бытовыми помещениями. / Состав: комплект чертежей + спецификация.
Дата: 4.4.25 19:07 | Поместил: ILNURN | Размер: 7.11 MB | Скачали: 1 Платформа: AutoCad | Рб:
3
КМ Эстакада для газопровода ∅ 89 мм РП КМ Эстакада для газопровода ∅ 89 мм | Год выпуска: 2025
Р / Конструктивные решения строительства эстакады для газопровода / Состав: комплект чертежей.
Дата: 11.3.25 15:36 | Поместил: MAGNITOFON | Размер: 7.07 MB | Скачали: 1 Платформа: AutoCad | Рб:
1
КМ Производственное здание 18 х 27 м РП КМ Производственное здание 18 х 27 м | Год выпуска: 2018
Р / Конструкции металлические здания, которое может использоваться как складское или производственное. / Состав: комплект чертежей.
Дата: 5.3.25 17:56 | Поместил: aborisoff | Размер: 3.35 MB | Скачали: 4 Платформа: AutoCad | Рб:
1
КМ Пролетное строение 15,5 м (ферма) эстакады над автодорогой РП КМ Пролетное строение 15,5 м (ферма) эстакады над автодорогой | Год выпуска: 2023
Конструкции металлические. Все конструкции - стальные. Колонны сплошного сечения. Ферма пространственная из труб стальных профильных квадратного сечения. / Состав: комплект чертежей.
Дата: 12.2.25 18:24 | Поместил: Ponomareva | Размер: 1.59 MB | Скачали: 0 Платформа: AutoCad | Рб:
1
Чертежи КМ Лестница монтажная с площадкой РП Чертежи КМ Лестница монтажная с площадкой | Год выпуска: 2021
РД / Конструкции металлические лестницы монтажной с площадкой. / Состав: 4 листа чертежи (виды, план, разрезы, узлы лестницы монтажной).
Дата: 17.12.24 13:10 | Поместил: Ponomareva | Размер: 4.54 MB | Скачали: 0 Платформа: AutoCad | Рб:
1
КМ Крепление продувочных трубопроводов газопровода РП КМ Крепление продувочных трубопроводов газопровода | Год выпуска: 2020
РД / Конструкции металлические для крепления продувочных трубопроводов (свечей) газопровода ТЭЦ. / Состав: комплект чертежей.
Дата: 16.12.24 17:27 | Поместил: Ponomareva | Размер: 10.79 MB | Скачали: 0 Платформа: AutoCad | Рб:
1
Показать описание раздела:
Основные несущие элементы запланированных к возведению построек - металлоконструкции зданий и сооружений. Из них собирают:
- склады и ангары;
- ледовые арены;
- торговые центры;
- производственные корпуса;
- энергетические объекты и пр.
Проект здания из металлоконструкций отражает конструкционно-силовую компоновку объекта. Его разрабатывают как:
- рабочий проект (в 1 этап);
- утверждаемую часть и рабочую документацию (в 2 этапа).
В результате проект металлоконструкций получает:
- спецификацию проката;
- расчетные нагрузки;
- стандартные узлы и пр.
Также типовой проект металлоконструкций включает информацию о:
- геодезической привязке постройки на местности;
- типе основы сооружения;
- сопряжении металлических конструкций;
- увязке МК с архитектурно-строительной и технологической частями.
Качественное выполнение на площадке строительно-монтажных работ обеспечивают:
- проект КМ - рабочие чертежи марки КМ (выполняют проектировщики);
- проект КМД - рабочие деталировочные чертежи марки КМД (выполняют на заводе).
В последнем случае особенности монтажа на площадке, отгрузки и транспортирования, технологии изготовления вносят в чертежи КМД.
Выбранная схема проектирования по ЕСПДС (единой системе подготовки документации в строительстве) сокращает время, затрачиваемое на производство и чертежи КМ. Они - самостоятельная и единственная документация, по которой осуществляют их изготовление и монтаж.
Чертежи металлоконструкций деталировочные содержат необходимую информацию для:
- обработки;
- разметки;
- сварки;
- контроля качества;
- сборки.
Любой пример проекта КМ КМД подтверждает его финансово-экономическую эффективность, оперативность внесения правок для обеспечения долговечности, надежности и снижения издержек. Скачать проект металлоконструкций можно на сайте из приведенных в каталоге.
 
Cloudim - онлайн консультант для сайта бесплатно.